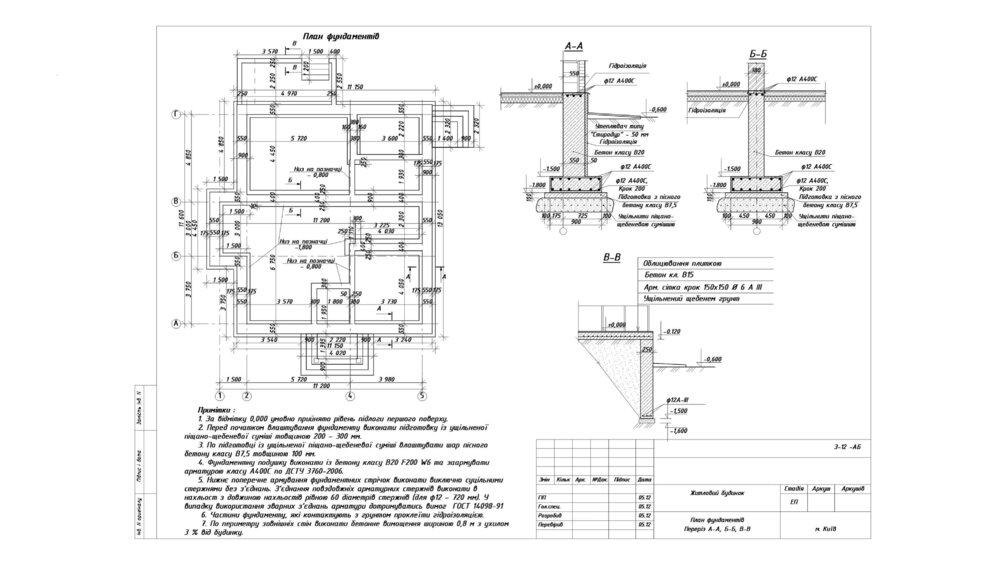
Upletai Опубліковано: 16 серпня 2012 Поділитись Опубліковано: 16 серпня 2012 Добрый день, прошу покритиковать фундамент, который предложил мой архитектор. Геология нормальная - 0.6-1м чернозем, и до 3.0 суглинок-супесь нормального состава на 2.9-3.0 вода, техническая, около 1м. Не доверять архитектору у меня причин нет, но все-же закрадывается сомнение в целесообразности такого злостного армирования и толщины стены. С одной стороны - перестраховка главное оружие частного застройщика, а с другой стороны - не влажу в бюджет, который изначально уже умножен на 2 ) Дом планируется из кератерма+клинкер. Посилання на коментар Поділитися на інших сайтах More sharing options...
tansss Опубліковано: 16 серпня 2012 Поділитись Опубліковано: 16 серпня 2012 Под описаную (читать правильно:D) геологию тип фундамента более чем правильный Одно что практически удвоил бы армирование вертикальной части вообще и учетверил по несущим и наружным стенамС водой на метре и чернозёмом - шутки плохи.... Ну и на земляных работах...... ойёёёёёйой 1 Посилання на коментар Поділитися на інших сайтах More sharing options...
Golos Опубліковано: 16 серпня 2012 Поділитись Опубліковано: 16 серпня 2012 Под описаную (читать правильно:D) геологию тип фундамента более чем правильный Одно что практически удвоил бы армирование вертикальной части вообще и учетверил по несущим и наружным стенамС водой на метре и чернозёмом - шутки плохи.... Ну и на земляных работах...... ойёёёёёйой Вода на 3х. Запятые стоят не правильно. Армирование с запасом. Но я думаю архитектор не от себя начертал, с конструктором работал. Не готов вспоминать строймеханику, но доп. армирование вертикальной части на несущую способность цоколя не повлияет, имхо. 1 Посилання на коментар Поділитися на інших сайтах More sharing options...
Upletai Опубліковано: 17 серпня 2012 Автор Поділитись Опубліковано: 17 серпня 2012 Спасибо, вода на 3-х, чернозем на 0.6-0.9. Просто стоимость немного обескуражила, учитывая что подобные дома строятся с фундаментом за намного меньшие деньги. Добавлено через 4 минуты так же смущает использование арматуры 12, при том что всюду используют 8-10. Посилання на коментар Поділитися на інших сайтах More sharing options...
tansss Опубліковано: 17 серпня 2012 Поділитись Опубліковано: 17 серпня 2012 Не готов вспоминать строймеханику, но доп. армирование вертикальной части на несущую способность цоколя не повлияет, имхо. Не могу считать себя проектантом Но может подскажите - это часом не вторая категория грунтов и как будете спасаться от бокового пучения по монолитной стене и обходить нормы???? Может и коэф. армирования для заглублённых фундаментов ктото снизил по нормам???? Я насчитал +/- 35кг на куб бетона, може я не в курсе и ЭТОГО МНОГО???? 1 Посилання на коментар Поділитися на інших сайтах More sharing options...
Raha Опубліковано: 18 серпня 2012 Поділитись Опубліковано: 18 серпня 2012 Геология нормальная Суглинок-супесь - это вовсе не "нормальная геология", а риск морозного пучения, может еще просадочности, так что фундамент в вашем случае явно не простенький нужен. 1 Посилання на коментар Поділитися на інших сайтах More sharing options...
Upletai Опубліковано: 18 серпня 2012 Автор Поділитись Опубліковано: 18 серпня 2012 Спасибо всем, значит менять ничего не буду, ищу монолитчиков Посилання на коментар Поділитися на інших сайтах More sharing options...
Рекомендовані повідомлення
Створіть акаунт або увійдіть у нього для коментування
Ви маєте бути користувачем, щоб залишити коментар
Створити акаунт
Зареєструйтеся для отримання акаунта. Це просто!
Зареєструвати акаунтУвійти
Вже зареєстровані? Увійдіть тут.
Увійти зараз