Zyxer Опубліковано: 28 серпня 2012 Поділитись Опубліковано: 28 серпня 2012 Добрый день, есть квартира в новострое, т.е. можно пока бомбить, сверлить и т.д. Хочу предусмотреть сейчас кондиционирование. И буду начинать ремонт. Вешать кучу блоков в каждой комнате не интересно и не красиво. Почитал инфо - склоняюсь к канальным - по одному на каждый этаж. Сами канальники планирую расположить на балконах (они отапливаемы). Плюс мне нравится приток свежего воздуха. Что посоветуете, готов рассмотреть предложения. Потолки 2,7 м. Посилання на коментар Поділитися на інших сайтах More sharing options...
REYDER Опубліковано: 28 серпня 2012 Поділитись Опубліковано: 28 серпня 2012 Сами канальники планирую расположить на балконах (они отапливаемы). а монолитные пояса проходить воздуховодами вам разрешат? может лучше в с. у.? так же укажите размер окон и где какие, и желательно разрез видеть. Хотя одесситов вроде тут нету, но подсказать кое что сможем))) Посилання на коментар Поділитися на інших сайтах More sharing options...
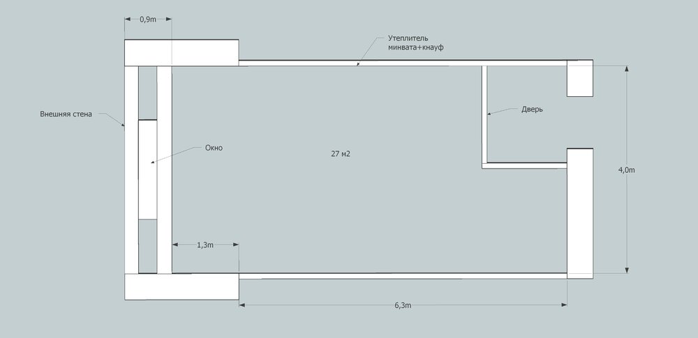
Zyxer Опубліковано: 28 серпня 2012 Автор Поділитись Опубліковано: 28 серпня 2012 а монолитные пояса проходить воздуховодами вам разрешат? может лучше в с. у.? так же укажите размер окон и где какие, и желательно разрез видеть. Хотя одесситов вроде тут нету, но подсказать кое что сможем))) В с.у негде и не красиво Та нет можно без прохода монолитных, окна на стороне север - зал- 1700х1510 две штуки. Спальня аналогично Балконы, тоже Север 3090х1560 и 2700х1560 Посилання на коментар Поділитися на інших сайтах More sharing options...
REYDER Опубліковано: 28 серпня 2012 Поділитись Опубліковано: 28 серпня 2012 В с.у негде и не красиво Та нет можно без прохода монолитных, тогда думаю вам лучше обратиться к одесситам, так как канальники требуют выезда на место. Много есть моментов с ними. тем более вы на балконах хотите. Посилання на коментар Поділитися на інших сайтах More sharing options...
Zyxer Опубліковано: 28 серпня 2012 Автор Поділитись Опубліковано: 28 серпня 2012 тогда думаю вам лучше обратиться к одесситам, так как канальники требуют выезда на место. Много есть моментов с ними. тем более вы на балконах хотите. Ну я как бы не настаивал, это одна из идей, и нет понимания цены, если это в два раза дороже простых кондиционеров (мультисплит), тогда не очень интересно. Посилання на коментар Поділитися на інших сайтах More sharing options...
airservis Опубліковано: 28 серпня 2012 Поділитись Опубліковано: 28 серпня 2012 Ну я как бы не настаивал, это одна из идей, и нет понимания цены, если это в два раза дороже простых кондиционеров (мультисплит), тогда не очень интересно. Дороже. Зато намного комфортнее. И без "ящиков". Посилання на коментар Поділитися на інших сайтах More sharing options...
Zyxer Опубліковано: 28 серпня 2012 Автор Поділитись Опубліковано: 28 серпня 2012 Дороже. Зато намного комфортнее. И без "ящиков". Это да, поэтому и склоняюсь больше к такой системе.. Посилання на коментар Поділитися на інших сайтах More sharing options...
REYDER Опубліковано: 28 серпня 2012 Поділитись Опубліковано: 28 серпня 2012 поэтому и склоняюсь больше к такой системе.. ну это правильно. для ориентации гляньте 2 канальника в нете на 5 кВт по холоду. + столько же на монтажные комплектующие и работы. И ОЧЕНЬ ПРИМЕРНО будете ориентироваться по цене. Дальше уже инженеры вам насчитают в меру своей распущенности. Посилання на коментар Поділитися на інших сайтах More sharing options...
alliswell Опубліковано: 31 серпня 2012 Поділитись Опубліковано: 31 серпня 2012 (змінено) Магазин Климат ул Польская 17.Очень хорошие специалисты.Одни из лучших в Одессе. Заедьте, пускай прикинут пару предложений на базе канальных кондиционеров C&H (базовые модели / инверторные) . Если устроит порешаем еще скидочку. Есть в наличии недорогие базовые модели C&Н on-off - хорошие проверенные GFH18K3BI/GUHN18NK1AO !!! GFH24K3BI/GUHN24NK1AO !!! GFH36K3BI/GUHN36NM1AO GFH48K3BI/GUHN48NM1AO GFH60K3BI/GUHN60NM1AO Но для квартиры рекомендую остановиться на чуть более дорогих инверторных системах последнего поколения DC INVERTOR (AA Classs Energy Efficiency)—Generation III GFH12K3CI/GUHD12NK3CO GFH18K3CI/GUHD18NK3CO !!! GFH24K3CI/GUHD24NK3CO !!! GFH30K3CI/GUHD30NK3CO GFH36K3CI/GUHD36NK3CO GFH42K3CI/GUHD42NK3CO GFH48K3CI/GUHD48NK3CO GFH36K3CI/GUHD36NM3CO GFH42K3CI/GUHD42NM3CO GFH48K3CI/GUHD48NM3CO GFH60K3CI/GUHD60NM3CO О преимуществе инверторов там и проконсультируют и покажут рабочие объекты по инверторным канальным к-рам. Вкратце см буклетик с ТТХ Змінено 31 серпня 2012 користувачем alliswell Посилання на коментар Поділитися на інших сайтах More sharing options...
MorfeiTM Опубліковано: 31 серпня 2012 Поділитись Опубліковано: 31 серпня 2012 1. По месту жительства пригласите специалиста, который правильно Вам все подберет и скомпонует. 2. Забудьте на время ремонта своей квартиры (отличная квартира) о кондиционерах бюджетках. Что бы не получилось "купил хамер а теперь ищу где газ поставить". Смотрите в сторону МЕ, Дайкин)) удачи Посилання на коментар Поділитися на інших сайтах More sharing options...
REYDER Опубліковано: 31 серпня 2012 Поділитись Опубліковано: 31 серпня 2012 так а чего... Фуджитсу клевые канальники то)) ИМХО обожаю их. Посилання на коментар Поділитися на інших сайтах More sharing options...
Zyxer Опубліковано: 31 серпня 2012 Автор Поділитись Опубліковано: 31 серпня 2012 1. По месту жительства пригласите специалиста, который правильно Вам все подберет и скомпонует. 2. Забудьте на время ремонта своей квартиры (отличная квартира) о кондиционерах бюджетках. Что бы не получилось "купил хамер а теперь ищу где газ поставить". Смотрите в сторону МЕ, Дайкин)) удачи Так вот и ищу, кто бы мог что-то дельное предложить. Для этого и схемки сделал. Посилання на коментар Поділитися на інших сайтах More sharing options...
Владимир Климат Опубліковано: 31 серпня 2012 Поділитись Опубліковано: 31 серпня 2012 Zyxer,могу предложить 5-ти киловатные канальники МЕ. Если интересно, скину в ЛС цену и поищу Вам нашего "тамошнего" (местного) дилера, который смонтирует. Посилання на коментар Поділитися на інших сайтах More sharing options...
Zyxer Опубліковано: 31 серпня 2012 Автор Поділитись Опубліковано: 31 серпня 2012 Zyxer,могу предложить 5-ти киловатные канальники МЕ. Если интересно, скину в ЛС цену и поищу Вам нашего "тамошнего" (местного) дилера, который смонтирует. О, это уже вариант. Только мне как-бы под ключ надо с пониманием где и что будет висеть, я сам не смонтирую... Посилання на коментар Поділитися на інших сайтах More sharing options...
Владимир Климат Опубліковано: 1 вересня 2012 Поділитись Опубліковано: 1 вересня 2012 О, это уже вариант. Только мне как-бы под ключ надо с пониманием где и что будет висеть, я сам не смонтирую... Воздуховоды тарабанить с Киева в Одессу не вижу смысла (дешевле на месте изготовить). Можно нарисовать на планах расположения и подобрать сечения. Тот, кто будет монтировать, по месту всё прикинет... Посилання на коментар Поділитися на інших сайтах More sharing options...
Zyxer Опубліковано: 1 вересня 2012 Автор Поділитись Опубліковано: 1 вересня 2012 Воздуховоды тарабанить с Киева в Одессу не вижу смысла (дешевле на месте изготовить). Можно нарисовать на планах расположения и подобрать сечения. Тот, кто будет монтировать, по месту всё прикинет... Таки да,Вы правы. Хочу найти того, кто возьмётся и рпедложит оптимальную систему. Посилання на коментар Поділитися на інших сайтах More sharing options...
alliswell Опубліковано: 3 вересня 2012 Поділитись Опубліковано: 3 вересня 2012 Таки да,Вы правы. Хочу найти того, кто возьмётся и рпедложит оптимальную систему. Магазин "Климат", г Одесса, ул Польская 17, 346-436 Сергей Колчак business С&H, middle HITACHI,MHI premium ME,DAIKIN + свое пр-во по вентиляции, авторизованы,офиц гарантия + качество работ. любой из этих профессиональных брендов заслуживает внимания и хорош в своем сегменте.После просмотра просчитают несколько вариантов, определитесь, что Вам будет ближе. Посилання на коментар Поділитися на інших сайтах More sharing options...
Zyxer Опубліковано: 3 вересня 2012 Автор Поділитись Опубліковано: 3 вересня 2012 Магазин "Климат", г Одесса, ул Польская 17, 346-436 Сергей Колчак business С&H, middle HITACHI,MHI premium ME,DAIKIN + свое пр-во по вентиляции, авторизованы,офиц гарантия + качество работ. любой из этих профессиональных брендов заслуживает внимания и хорош в своем сегменте.После просмотра просчитают несколько вариантов, определитесь, что Вам будет ближе. Заеду сегодня, но мне немаловажно именно подбор системы под мои нужды (канальник, потолочный), а не просто купить кондиционер Посилання на коментар Поділитися на інших сайтах More sharing options...
alliswell Опубліковано: 3 вересня 2012 Поділитись Опубліковано: 3 вересня 2012 Заеду сегодня, но мне немаловажно именно подбор системы под мои нужды (канальник, потолочный), а не просто купить кондиционер просто купить кондиционер у одной компании, а заказать монтаж в другой,проект в 3-ей - категорически не рекомендую. Проект,поставку оборудования и монтаж его необходимо делать в комплексе и у одной компании см. п3 Посилання на коментар Поділитися на інших сайтах More sharing options...
Анатолий62 Опубліковано: 5 вересня 2012 Поділитись Опубліковано: 5 вересня 2012 Сами канальники планирую расположить на балконах (они отапливаемы). Сам живу в двух-уровневой. У меня высота лесничного пролёта ок 5,5 м. Скоро ремонт и думаю там всю инженерку сварганить. Посилання на коментар Поділитися на інших сайтах More sharing options...
blacktigra Опубліковано: 11 вересня 2012 Поділитись Опубліковано: 11 вересня 2012 Zyxer, если еще актуально, могу порекомендовать одесский Ивик что на Комитетской. Они поставщики Mitsubishi Heavy и на рынке с самых истоков. Это инжиниринговая компания со своим проектным, монтажным отделом и сервисным отделом. Если интересно, я могу договориться с руководством чтобы вам дали толкового менеджера. Посилання на коментар Поділитися на інших сайтах More sharing options...
Рекомендовані повідомлення
Створіть акаунт або увійдіть у нього для коментування
Ви маєте бути користувачем, щоб залишити коментар
Створити акаунт
Зареєструйтеся для отримання акаунта. Це просто!
Зареєструвати акаунтУвійти
Вже зареєстровані? Увійдіть тут.
Увійти зараз