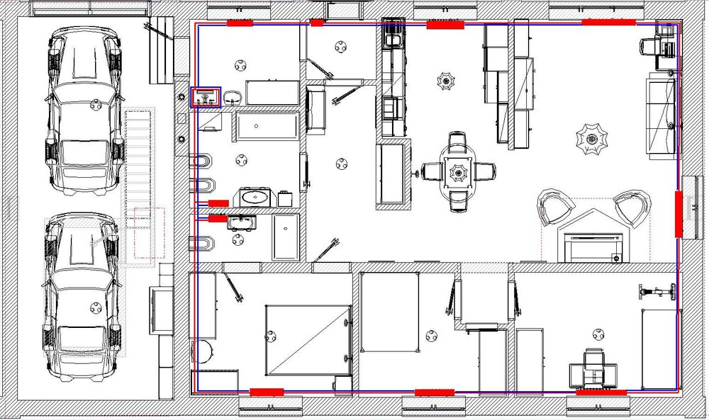
ХХХХ Опубліковано: 31 серпня 2012 Поділитись Опубліковано: 31 серпня 2012 через месяц заканчиваем коробку дома и надо думать об отоплении и ГВС итак о отоплении... дом - 1 этаж, стены - кирпич, залит черновой пол, контур отапливаемой зоны 12,5м*10м котёл - нравится 2-ухконтурный Иммергаз Avio 24 kW со встроеным бойлером (дымоходный) трубы - металлопластик или ПП? радиаторы -тип, производитель? тип разводки - коллекторная/горизонтальная, одно-/двухтрубная? на рисунке - контур дома с вариантом коллекторной и горизонтальной двутрубной разводки. неожиданно, но лучевая разводка по материалам не намного больше выходит... кроме того ищу монтажника и поставщика оборудования :D Посилання на коментар Поділитися на інших сайтах More sharing options...
murava Опубліковано: 31 серпня 2012 Поділитись Опубліковано: 31 серпня 2012 Делать настроены сами или будете отдаваться в чужие руки? Посилання на коментар Поділитися на інших сайтах More sharing options...
ХХХХ Опубліковано: 31 серпня 2012 Автор Поділитись Опубліковано: 31 серпня 2012 о! вас я тут и хотел увидеть в первую очередь.... конечно отдамся... главное руки умелые Посилання на коментар Поділитися на інших сайтах More sharing options...
murava Опубліковано: 31 серпня 2012 Поділитись Опубліковано: 31 серпня 2012 Я наоборот думал Вы все сами Если сами - то коллекторная разводка - самое оно: проще, понятней и дуракоустойчивей. На сэкономленные деньги купите много хорошей трубы и красивый котел. 1 Посилання на коментар Поділитися на інших сайтах More sharing options...
ХХХХ Опубліковано: 31 серпня 2012 Автор Поділитись Опубліковано: 31 серпня 2012 ага, ясно. ну сам точно не буду делать. жалко материалы попортить... а раз платим специалисту - то разводка будет горизонтальная. так может тогда ещё сэкономить и пусть будет однотрубной? Посилання на коментар Поділитися на інших сайтах More sharing options...
murava Опубліковано: 31 серпня 2012 Поділитись Опубліковано: 31 серпня 2012 Может ваще сэкономим и пусть будет печное? 4 Посилання на коментар Поділитися на інших сайтах More sharing options...
ХХХХ Опубліковано: 31 серпня 2012 Автор Поділитись Опубліковано: 31 серпня 2012 печное тоже будет :D - как резервное. вернее не печное, а каминное с разводкой воздуха. Добавлено через 1 минуту из подтекста понимаю - двутрубное горизонтальное. ага... исходные есть... теперь определимся - извечная дилемма ПП или МП? Посилання на коментар Поділитися на інших сайтах More sharing options...
murava Опубліковано: 31 серпня 2012 Поділитись Опубліковано: 31 серпня 2012 На лучевую наверное сподручней будет металопластик или РЕХ трубу. 1 Посилання на коментар Поділитися на інших сайтах More sharing options...
ХХХХ Опубліковано: 31 серпня 2012 Автор Поділитись Опубліковано: 31 серпня 2012 понял - видимо вопрос материала труб будет определяться убеждениями исполнителя и наличием у него опыта и инструмента... похоже надо идти в тендеры... grand merci, многоуважаемый Murava Посилання на коментар Поділитися на інших сайтах More sharing options...
murava Опубліковано: 31 серпня 2012 Поділитись Опубліковано: 31 серпня 2012 А какой смысл в тендерах, если никакой конкретики? Искать "что дешевле" ? В Эпицентре полно 16й трубы по 3 грн - вне конкуренции, гарантирую. 1 Посилання на коментар Поділитися на інших сайтах More sharing options...
ХХХХ Опубліковано: 31 серпня 2012 Автор Поділитись Опубліковано: 31 серпня 2012 и опять верно! зачётик... не "тендер" - а объявление... мол, кто из "могикан" форума свободен на октябрь... главное, что бы они не шокировали меня суммой.. хотя, чем дальше стройка - тем тяжелее меня шокировать пятизначными суммами... Посилання на коментар Поділитися на інших сайтах More sharing options...
murava Опубліковано: 31 серпня 2012 Поділитись Опубліковано: 31 серпня 2012 ... хотя, чем дальше стройка - тем тяжелее меня шокировать пятизначными суммами... Ничего, сантехники Вас смогут если не шокировать, то гарантированно удивить ... :D 1 Посилання на коментар Поділитися на інших сайтах More sharing options...
Сергей 31 Опубліковано: 31 серпня 2012 Поділитись Опубліковано: 31 серпня 2012 мол, кто из "могикан" форума свободен на октябрь...( если не шокировать, то гарантированно удивить ... :D Гарантированно удивляю: магикане расписывают работу на весну. У парочки морозостойких магикан окошки на декабрь- январь. Посилання на коментар Поділитися на інших сайтах More sharing options...
murava Опубліковано: 31 серпня 2012 Поділитись Опубліковано: 31 серпня 2012 Все у вас, могикан, как у индейцев Посилання на коментар Поділитися на інших сайтах More sharing options...
ХХХХ Опубліковано: 31 серпня 2012 Автор Поділитись Опубліковано: 31 серпня 2012 ну вот... а мне именно на октябрь.. неужто криворуких придётся брать? Посилання на коментар Поділитися на інших сайтах More sharing options...
ХХХХ Опубліковано: 1 вересня 2012 Автор Поділитись Опубліковано: 1 вересня 2012 а у вас Андрей тоже наверно всё расписано до 2014 года? Посилання на коментар Поділитися на інших сайтах More sharing options...
murava Опубліковано: 1 вересня 2012 Поділитись Опубліковано: 1 вересня 2012 а у вас Андрей тоже наверно всё расписано до 2014 года? Нет, сегодня вечером я совершенно свободна (с) 1 Посилання на коментар Поділитися на інших сайтах More sharing options...
Анатолий62 Опубліковано: 5 вересня 2012 Поділитись Опубліковано: 5 вересня 2012 В Эпицентре полно 16й трубы по 3 грн - вне конкуренции согласен) Но ..есть один ньюанс))) Посилання на коментар Поділитися на інших сайтах More sharing options...
alex_the_ape Опубліковано: 10 жовтня 2012 Поділитись Опубліковано: 10 жовтня 2012 Здравствуйте! Если еще актуально, скажите, пожалуйста, а где территориально находится объект? Посилання на коментар Поділитися на інших сайтах More sharing options...
Рекомендовані повідомлення
Створіть акаунт або увійдіть у нього для коментування
Ви маєте бути користувачем, щоб залишити коментар
Створити акаунт
Зареєструйтеся для отримання акаунта. Це просто!
Зареєструвати акаунтУвійти
Вже зареєстровані? Увійдіть тут.
Увійти зараз