HumanKM Опубліковано: 8 вересня 2012 Поділитись Опубліковано: 8 вересня 2012 Надо заказать три двери из люминия и пять роллетов. Ищу кто занимается и тем и другим. Ну и цена у кого адекватная. Размеры чуть позже дам (постараюсь сегодня). Посилання на коментар Поділитися на інших сайтах More sharing options...
ko&ko Опубліковано: 10 вересня 2012 Поділитись Опубліковано: 10 вересня 2012 Надо заказать три двери из люминия и пять роллетов. Ищу кто занимается и тем и другим. Ну и цена у кого адекватная. Размеры чуть позже дам (постараюсь сегодня). Скидывайте размеры. Будем посчитать. Посилання на коментар Поділитися на інших сайтах More sharing options...
HumanKM Опубліковано: 11 вересня 2012 Автор Поділитись Опубліковано: 11 вересня 2012 Двери: ШхВ 1. 700 х 2040 2. 1010 х 2040 3. 810 х 2040 Все правые, внизу сендвич вверху одинарное стекло. Если на Ваш взгляд будет не лишним то на три петли. Роллеты ШхВ Даю размеры проемов. Ролет нужно смонтировать по наруже (тоесть накинуть необходимое по высоте и ширине), чтоб после открытия светловой проем остался тот же. 1. 890х1380 х 4шт 2. 1010х1380 х 3шт 3. 890 х 2020 х 1шт. Роллеты будут закрывать проемы в беседке. Поэтому думаю будет неудобно пользоваться карданом или лебедкой (всего будет 8 роллет). Наверное пружинный будет удобнее (быстрее). Я на практике видел пружинные с закрыванием на замок, опять же - наверное это не удобно держать 6 ключей. Сказали бывают какието задвижки? Можно ли на окна (то что с Высотой 1380) поставить такие задвижки при накладном монтаже, чтоб они из нутри закрывались? Ну а на дверь (тот роллет что с высотой 2020) можно и замочек поставить. Посилання на коментар Поділитися на інших сайтах More sharing options...
HumanKM Опубліковано: 12 вересня 2012 Автор Поділитись Опубліковано: 12 вересня 2012 Ну так будем считать? Или как? Посилання на коментар Поділитися на інших сайтах More sharing options...
HumanKM Опубліковано: 18 вересня 2012 Автор Поділитись Опубліковано: 18 вересня 2012 См.личку. чтото очень дорого по дверя к сожалению предложений больше не имею а ролеты на инвестоле на 40% дешевле Посилання на коментар Поділитися на інших сайтах More sharing options...
gnom_slava Опубліковано: 18 вересня 2012 Поділитись Опубліковано: 18 вересня 2012 (змінено) Роллеты будут закрывать проемы в беседке. Поэтому думаю будет неудобно пользоваться карданом или лебедкой (всего будет 8 роллет). Наверное пружинный будет удобнее (быстрее). Я на практике видел пружинные с закрыванием на замок, опять же - наверное это не удобно держать 6 ключей. Сказали бывают какието задвижки? Можно ли на окна (то что с Высотой 1380) поставить такие задвижки при накладном монтаже, чтоб они из нутри закрывались? Ну а на дверь (тот роллет что с высотой 2020) можно и замочек поставить. да, пружиной удобнее, чем карданом или тросом. да и надежнее - из нескольких сотен ролет с пружинами ремонтировать именно пружины приходилось раза 2-3, чего не скажу о других ручных подъемах. и задвижки ручные вообще ни разу не отказывали (там отказывать нечему - просто формованый кусок металла ) . а вот замки с ключом, особенно зимой или при редком использовании, очень капризны. поэтому могу порекомендовать на дверь дешевенький китайский электропривод с ДУ или замковым выключателем - немного дороже, но надежней и легче в управлении. да и дверь, думаю, вы будете чаще, чем окна, поднимать. а ролеты на инвестоле на 40% дешевле могу не пересчитывая предложить вам цену "инвестолла", если, конечно, вы там не дилер . даже, пожалуй, скидку на доставку в переяслав могу сделать. Змінено 18 вересня 2012 користувачем gnom_slava Посилання на коментар Поділитися на інших сайтах More sharing options...
HumanKM Опубліковано: 19 вересня 2012 Автор Поділитись Опубліковано: 19 вересня 2012 да, пружиной удобнее, чем карданом или тросом. да и надежнее - из нескольких сотен ролет с пружинами ремонтировать именно пружины приходилось раза 2-3, чего не скажу о других ручных подъемах. и задвижки ручные вообще ни разу не отказывали (там отказывать нечему - просто формованый кусок металла ) . а вот замки с ключом, особенно зимой или при редком использовании, очень капризны. поэтому могу порекомендовать на дверь дешевенький китайский электропривод с ДУ или замковым выключателем - немного дороже, но надежней и легче в управлении. да и дверь, думаю, вы будете чаще, чем окна, поднимать. могу не пересчитывая предложить вам цену "инвестолла", если, конечно, вы там не дилер . даже, пожалуй, скидку на доставку в переяслав могу сделать. инвестол дилерскую цену дает. Я хоть еще ниразу с ними не работал - но в дилеры попадую короче я так понял ролеты брать на инвестоле и не искать больше нигде. думаю в пятницу закажу остается открыт вопрос по дверям. Предложите кто нибуть?! Посилання на коментар Поділитися на інших сайтах More sharing options...
pshinik Опубліковано: 21 вересня 2012 Поділитись Опубліковано: 21 вересня 2012 Надо заказать три двери из люминия и пять роллетов. Ищу кто занимается и тем и другим. Ну и цена у кого адекватная. Размеры чуть позже дам (постараюсь сегодня). На сегодняшний день понятие адекватная цена к сожалению очень размытая. Если говорить о качестве, то всегда будет стоить своих денег, но разумных. Китай сейчас делает такие сплавы, что может и дешевле, а качество будет хуже. Посилання на коментар Поділитися на інших сайтах More sharing options...
Ruslan R Опубліковано: 21 вересня 2012 Поділитись Опубліковано: 21 вересня 2012 Китай сейчас делает такие сплавы, что может и дешевле, а качество будет хуже. Ну китайского алюминиевого профиля для оконно-дверных систем еще не встречал, кроме конечно алюминиевого профилька для москитных сеток. Посилання на коментар Поділитися на інших сайтах More sharing options...
HumanKM Опубліковано: 24 вересня 2012 Автор Поділитись Опубліковано: 24 вересня 2012 к сожалению никто из форумчан мне не помог если кто-то и предлогал, то только розничные цены Роллеты уже заказаны из профиля алютех. Цена на 40% ниже предложеных цен на форуме. Двери тоже заказал. Профиль Сарай. Замки Кале. Фурнитура Фапим. Цена на 30% ниже самой низкой форумной. Жаль я всегда помогал по своей части форумчанам Вобщем тема закрыта все заказано ролеты будут у меня на руках в среду а двери в пятницу 2 Посилання на коментар Поділитися на інших сайтах More sharing options...
Ruslan R Опубліковано: 24 вересня 2012 Поділитись Опубліковано: 24 вересня 2012 Двери тоже заказал. Профиль Сарай. Замки Кале. Фурнитура Фапим. Цена на 30% ниже самой низкой форумной. Жаль я всегда помогал по своей части форумчанам А почему не посоветовались по поводу профиля? Вы выбрали самый худший и самый дешевый профиль который только может быть в алюминии. Фурнитура, хоть и Fapim, но от нее толку мало - это оконные петли, нерегулируемые. Не предлагал вам нормальный профиль, так как изначально вы погнались за минимальной ценой. Следил за темой, но так ничего о профиле и фурнитуре для дверей не обсудили... Это в ПВХ по барабану какой кусок пластика (бренд профиля) натягивать на армировку или наоборот. В алюминии очень много зависит от системы профиля. Посилання на коментар Поділитися на інших сайтах More sharing options...
HumanKM Опубліковано: 24 вересня 2012 Автор Поділитись Опубліковано: 24 вересня 2012 А почему не посоветовались по поводу профиля? Вы выбрали самый худший и самый дешевый профиль который только может быть в алюминии. Фурнитура, хоть и Fapim, но от нее толку мало - это оконные петли, нерегулируемые. Не предлагал вам нормальный профиль, так как изначально вы погнались за минимальной ценой. Следил за темой, но так ничего о профиле и фурнитуре для дверей не обсудили... Это в ПВХ по барабану какой кусок пластика (бренд профиля) натягивать на армировку или наоборот. В алюминии очень много зависит от системы профиля. вот-вот все так - только следили за темой а сказать какой профиль плохой а какой хороший никто не асилил ну люди которые предлогали двери за дороже, предлогали их из этого же профиля, такчто цена выигрывает полюбому. Ну а качество - ХЗ, попользуемся увидим. Поймите правильно - 4 человека предложило купить эти двери за 10-11 тыс (в том же профиле и тд и тп), а я нашел человека который мне предложил дилерскую цену 7 тыс грн Я правильно сделал что заказал у него? Как бы поступили Вы на моем месте??? 1 Посилання на коментар Поділитися на інших сайтах More sharing options...
gnom_slava Опубліковано: 24 вересня 2012 Поділитись Опубліковано: 24 вересня 2012 Роллеты уже заказаны из профиля алютех. Цена на 40% ниже предложеных цен на форуме. Двери тоже заказал. Профиль Сарай. Замки Кале. Фурнитура Фапим. Цена на 30% ниже самой низкой форумной. Жаль я всегда помогал по своей части форумчанам вы же всё взяли по дилерским ценам да и ещё без установки. не скажу за дверь, но по ролетам: в "инвестолле" цена ниже, чем вы взяли бы как дилер в самом "алютехе". так что дешевле вам никто физически не мог предложить. ведь вам предлагали всё как конечному потребителю, а не как возможному дилеру. так что ненадо сильно обижаться. Посилання на коментар Поділитися на інших сайтах More sharing options...
HumanKM Опубліковано: 24 вересня 2012 Автор Поділитись Опубліковано: 24 вересня 2012 вы же всё взяли по дилерским ценам да и ещё без установки. не скажу за дверь, но по ролетам: в "инвестолле" цена ниже, чем вы взяли бы как дилер в самом "алютехе". так что дешевле вам никто физически не мог предложить. по роллетам я так и понял уже, поэтому и заказал там. кроме того давно планировал начать работать с ними по жалюзям, а то что там и ролеты просто раньше не знал. Посилання на коментар Поділитися на інших сайтах More sharing options...
gnom_slava Опубліковано: 24 вересня 2012 Поділитись Опубліковано: 24 вересня 2012 кроме того давно планировал начать работать с ними по жалюзям, а то что там и ролеты просто раньше не знал. слово "жалюзи" не склоняется а вообще у них много чего есть.они даже могут продать то, что сами поставить не могут))) Посилання на коментар Поділитися на інших сайтах More sharing options...
Ruslan R Опубліковано: 24 вересня 2012 Поділитись Опубліковано: 24 вересня 2012 Поймите правильно - 4 человека предложило купить эти двери за 10-11 тыс (в том же профиле и тд и тп) Я думал с сараем уже никто не работает... Разница в 3-4 тыс. грн. не может быть из одного и того же профиля. Что то вы напутали. ...а я нашел человека который мне предложил дилерскую цену 7 тыс грн Я правильно сделал что заказал у него? Как бы поступили Вы на моем месте??? Я б даже в себестоимость материалов (профиля, аксессуаров) не вложился в 7тыс. грн и это не включая изготовление, монтаж, ну и прибыль. А правильно ли вы сделали? Не знаю, смотря с какой стороны посмотреть. Мы сейчас говорим о разных ценовых категориях. Если так сравнивать, то я вам о мерседесе говорю, а вы мне о запорожце. Как для запорожца так стоимость нормальная (если монтаж включен в стоимость), а до мерседеса нужно было доплатить всего 3,5 тыс. грн. Посилання на коментар Поділитися на інших сайтах More sharing options...
HumanKM Опубліковано: 25 вересня 2012 Автор Поділитись Опубліковано: 25 вересня 2012 Я думал с сараем уже никто не работает... Разница в 3-4 тыс. грн. не может быть из одного и того же профиля. Что то вы напутали. Я б даже в себестоимость материалов (профиля, аксессуаров) не вложился в 7тыс. грн и это не включая изготовление, монтаж, ну и прибыль. А правильно ли вы сделали? Не знаю, смотря с какой стороны посмотреть. Мы сейчас говорим о разных ценовых категориях. Если так сравнивать, то я вам о мерседесе говорю, а вы мне о запорожце. Как для запорожца так стоимость нормальная (если монтаж включен в стоимость), а до мерседеса нужно было доплатить всего 3,5 тыс. грн. позно чтото говорить вы ж мне мерседес не предложили а теперь говорите надо было и по профилям вы мне ничего не расказали а теперь оказывается сарй это плохо Двреи надо было срочно и вы ниграма не напряглись предложить, посоветовать, растолковать такчто - после боя руками не машут Посилання на коментар Поділитися на інших сайтах More sharing options...
Ruslan R Опубліковано: 25 вересня 2012 Поділитись Опубліковано: 25 вересня 2012 а теперь оказывается сарй это плохо Лет так 10 назад - это было круто. Сейчас же, не намного дороже, есть альтернатива в разы круче. и по профилям вы мне ничего не расказали и вы ниграма не напряглись предложить, посоветовать, растолковать Так вы ничего и не спросили. С моей стороны это выглядело бы как реклама того или иного профиля. Нужно было сказать что предлагают такие системы профилей, какой лучше. Посилання на коментар Поділитися на інших сайтах More sharing options...
keaus Опубліковано: 29 вересня 2012 Поділитись Опубліковано: 29 вересня 2012 Интересует установка ролет в санузел - закрыть нишу бойлера. Данный девайс широко представлен в России, а в Украине их не встречал. Размер проема для монтажа ролеты 900х1500, цвет темно-коричневый. Посилання на коментар Поділитися на інших сайтах More sharing options...
HumanKM Опубліковано: 29 вересня 2012 Автор Поділитись Опубліковано: 29 вересня 2012 вчера привезли двери чуть позже скину фото - чтоб специалисты заценили сразу скажу - что получил то что хотел профиль нравится, петли не оконные, фурнитура понравилась Посилання на коментар Поділитися на інших сайтах More sharing options...
Ruslan R Опубліковано: 29 вересня 2012 Поділитись Опубліковано: 29 вересня 2012 вчера привезли двери чуть позже скину фото - чтоб специалисты заценили сразу скажу - что получил то что хотел профиль нравится, петли не оконные, фурнитура понравилась Вот как выглядят полноценные дверные накладные петли для алюминиевых дверей. Толщина стенки алюминиевого профиля должна быть не меньше 1,8мм. В Saray даже нет дверной рамы и створки, и петли там устанавливаются в фурнитурный паз, как в обычном окне. Посилання на коментар Поділитися на інших сайтах More sharing options...
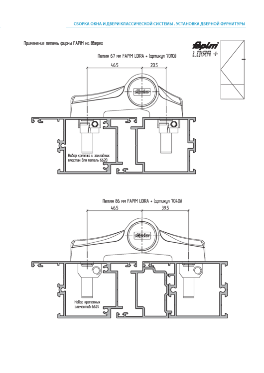
HumanKM Опубліковано: 1 жовтня 2012 Автор Поділитись Опубліковано: 1 жовтня 2012 www.stroimdom.com.ua/forum/showthread.php?p=1814065#post1814065 Сдесь есть фото моих дверей я вчера их установил Посмотрите и оцените пожалуйста Помоему все как на представленом выше чертеже - ни так ли??? Добавлено через 1 час 6 минут да забыл уточнить с прифилем и фурнитурой то мой провтык профиль РЕСКАРА турция Фурнитура Элемент Замки КАЛЕ Посилання на коментар Поділитися на інших сайтах More sharing options...
Ruslan R Опубліковано: 1 жовтня 2012 Поділитись Опубліковано: 1 жовтня 2012 профиль РЕСКАРА турция Фурнитура Элемент Ну Rescara это не Saray. Но толщина стенки профиля желает лучшего - всего 1,5мм. Хотя двери у вас не для массового хождения толп людей, так что все будет нормально. О фурнитуре впервые слышу (снова с названием напутали). Двери все рядом стоят - нужно было на все двери по три петли ставить - для симметрии. Возникает вопрос по ходу, а почему двери из холодной серии (профиль без терморазрыва)? У вас все три помещения что неотапливаемые? Посилання на коментар Поділитися на інших сайтах More sharing options...
HumanKM Опубліковано: 1 жовтня 2012 Автор Поділитись Опубліковано: 1 жовтня 2012 Ну Rescara это не Saray. Но толщина стенки профиля желает лучшего - всего 1,5мм. Хотя двери у вас не для массового хождения толп людей, так что все будет нормально. О фурнитуре впервые слышу (снова с названием напутали). Двери все рядом стоят - нужно было на все двери по три петли ставить - для симметрии. Возникает вопрос по ходу, а почему двери из холодной серии (профиль без терморазрыва)? У вас все три помещения что неотапливаемые? Да это все неотаплаваемое хоз помещение возле большого дома. Потому и профиль холодный и стекло вместо стеклопакета. Три петли поставили только на большую дверь - метр по ширине. При монтаже мне показалось что она и на 2-ух петлях служила бы хорошо. Дверь очень легкая. Петли вродь массивные и серьйозные. На подшипниках. Фурнитура (ручки) шла в коробочках с надписю Element. Ручки метал, тяжелые с резиновыми уплотнениями на примыканиях к двери. Петли думаю той же фирмы, так как на заглушках на петлях буква Е. Посилання на коментар Поділитися на інших сайтах More sharing options...
Ruslan R Опубліковано: 1 жовтня 2012 Поділитись Опубліковано: 1 жовтня 2012 При монтаже мне показалось что она и на 2-ух петлях служила бы хорошо. Вам не показалось, оно бы так и было (исходя из помещения куда установлены двери). Посилання на коментар Поділитися на інших сайтах More sharing options...
Рекомендовані повідомлення
Створіть акаунт або увійдіть у нього для коментування
Ви маєте бути користувачем, щоб залишити коментар
Створити акаунт
Зареєструйтеся для отримання акаунта. Це просто!
Зареєструвати акаунтУвійти
Вже зареєстровані? Увійдіть тут.
Увійти зараз