Перейти до публікації
Пошук в
  • Додатково...
Шукати результати, які містять...
Шукати результати в...

Наш дом по Сербской технологии.

Koks

Рекомендовані повідомлення

Уважаемые форумчане.

 

Решил вести и свою ветку о строительстве нашего дома по Сербской технологии.

Итак, приступим.

 

Весной этого года был куплен участок 10.5 соток.

Участок квадратный с березками, все коммуникации, огорожен забором готовый к постройке дома.

Все вышеперечисленное - было основными критериями при выборе участка.

 

Благодаря местному специалисту по земельным вопросам apxitektop'у мы были спасены от принятия неправильного решения

относительно сомнительного и спорного участка в лесной зоне.

И приобрели вышеописанный участок без малейших проблем и нареканий.

Так что Юра был для нас как земельный ангел хранитель, за что мы ему благодарны)

1830767481_.thumb.JPG.d51c2069c24b867bb4e938b2d5dab4c0.JPG

  • Лайк 1
Посилання на коментар
Поділитися на інших сайтах

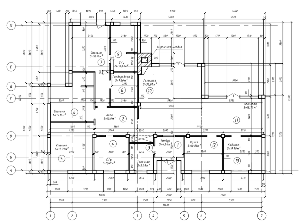
Собственно проект дома, который уже обсуждался в соответствующей ветке и подвергся критике)

764035094_2012-09-2120_21_03.png.058f894363743c91d138d460d78e0673.png

1962123939_2012-09-2120_20_19.jpg.3c9a6c123986faee7eafd9a33b0ef5e4.jpg

477010572_2012-09-2120_19_05.jpg.479c4bd77827d13ddc59c902be8b7150.jpg

170029982_2012-05-0223_31_57.jpg.46c19e5e011abc4f050f2c8106ba13a4.jpg

  • Лайк 28
Посилання на коментар
Поділитися на інших сайтах

Собственно проект дома, который уже обсуждался в соответствующей ветке и подвергся критике)

 

оч прикольный проект, хотя и не для 10,5 соток, а для поболее (имхо), но внешний вид - ммммм, красавец

  • Лайк 4
Посилання на коментар
Поділитися на інших сайтах

оч прикольный проект, хотя и не для 10,5 соток, а для поболее (имхо), ...

Он пойдет и на 6 соток, если вокруг соседей не будет. А если соседи будут, то и 18 соток будет маловато(ИМХО)

  • Лайк 1
Посилання на коментар
Поділитися на інших сайтах

Он пойдет и на 6 соток, если вокруг соседей не будет. А если соседи будут, то и 18 соток будет маловато(ИМХО)

 

я, собственно, это же и имела ввиду :beer:, надо что бы соседей небыло :)

Посилання на коментар
Поділитися на інших сайтах

я, собственно, это же и имела ввиду :beer:, надо что бы соседей небыло :)

 

Соседи есть, но их дома находятся на расстоянии, которое нас устраивает.

К томуже на участке растут березки, которые активно разрастаются и отгараживают от соседского взгляда)

 

Добавлено через 7 минут

Итак стройка началась.

 

Руководство стройкой я доверил сербскому специалисту (далее Богдан) у которого свои подходы к культуре строительства, материалам и

технологиям. Собственно технологию и материалы далее попытаюсь подробно описать.

 

Начало было положено планировкой участка под чутким руководством Богдана , сняли около 200 мм. грунта.

 

После чего начали вязать арматуру, до того, как копать фундамент. Которая пойдет в нижний и верхний армированный пояс, а также для вертикальных колонн.

Также заранее были подготовленны материалы: пленка 200 микрон для изоляции нижней части фундамента, для верхней опалубки, обрезная доска 30мм, брус 50х50, проволока 3мм. (мелочи типа гвоздей описывать не буду).

 

Далее начали копать фундамент, вручную, т.к. есть печальный опыт рытья техникой. В строительстве фундамента участвовали только Украинские рабочие (пишу только Украинские, т.к. на строительство остальной части дома приехали Сербские специалисты).

 

Хочу сказать, что под руководством Богдана и матами наших работников фундамент был выкопан шириной 350мм. (внизу ширину увеличили 600мм.) и глубиной 950 идеально ровно (все фото процесса ниже).

 

После чего траншею внизу усыпали щебнем, внешнюю сторону траншеи устелили пленкой с нахлестом под будущую отмостку

 

После вышеуказанных манипуляций приступили к укладке подготовленной арматуры в траншею.

 

И собственно заливка. Бетон покупати в миксерах и заливали насосом, т.к. дом длиной 21 метр располагается вдоль фасадной части на расстоянии 4 метров от забора.

__________.thumb.JPG.76befeef86e4e16cbe23662175cdc86b.JPG

DSC_0047.thumb.jpg.8c23958f15b7a06386ae454e2dd04dcc.jpg

DSC_0055.thumb.jpg.6dc9992e8afc45ded1a6b57cfa4db034.jpg

DSC_0052.thumb.jpg.0e0e549f8cff2e217b0003d54c1d8ff9.jpg

Змінено користувачем Koks
  • Лайк 1
Посилання на коментар
Поділитися на інших сайтах

Установлена, укреплена брусьями и проволокой опалубка.

Установлена верхняя часть армопояса.

В середине проложена арматура для стен, которые не будут несущими.

По внешнему периметру проложен пенопласт, для того, чтобы потом его

демонтировать и образовалась ниша в бетоне для прокладки коммуникаций (вода отопление и т.д.)

 

Заливка бетона верхней части фундамента происходила по прежней схеме - миксеры+насос

DSC_0144.thumb.jpg.ac92068ab9fe3022d9859d39c810fab0.jpg

DSC_0146.thumb.jpg.ea801cedfdf89070848e79d7639c5e85.jpg

DSC_0149.thumb.jpg.6c5f9dffcefa60e066bf05b1387fc66f.jpg

DSC_0152.thumb.jpg.74937752a2f61bb87b6f9ebcd5f3a686.jpg

DSC_0191.thumb.jpg.a754d09a4c8c4558af69ed9662fe6060.jpg

DSC_0170.thumb.jpg.14fd50f5a63736b37ef6f106b47ce148.jpg

DSC_0212.thumb.jpg.fd1a82cf1a5d22362412e1ebf7992df3.jpg

DSC_0215.thumb.jpg.c9c67fc925d752bfbd45b9c61ca92037.jpg

DSC_0211.thumb.jpg.7e04ad8208e428ff5f2ef61e9b94ec08.jpg

Посилання на коментар
Поділитися на інших сайтах

И я подпишусь...очень красивенький дом...а где ветка на обсуждение?

 

Несмотря на нижеуказанные отзывы о проекте считаю его очень красвым и рациональным.

Мы сделали небольшие корректировки в планировке.

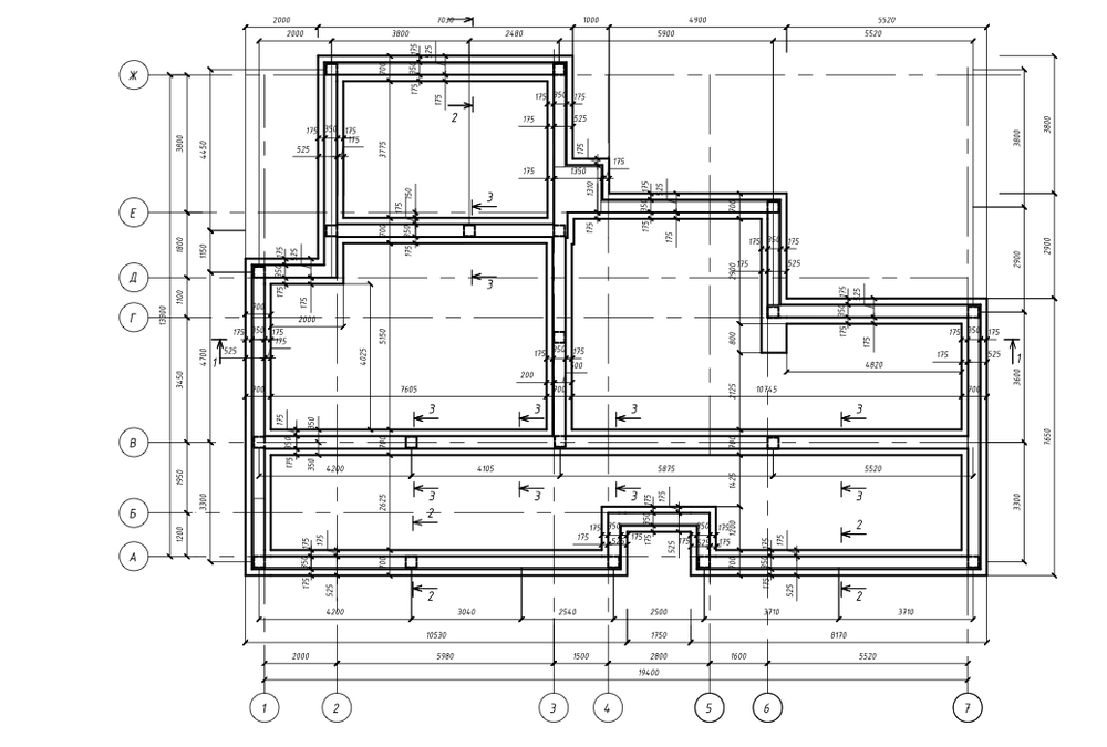
И Богдан внес коррективы с соответствии со своей монолитно-каркасной технологией.

 

www.stroimdom.com.ua/forum/showthread.php?t=95352

1857820188_2012-09-2123_27_15.thumb.png.68f3d3c157030a729bd38bd4163ecb47.png

278876782_2012-09-2123_27_54.thumb.png.2ac3e1337fbf3873a696b1e516e41137.png

  • Лайк 1
Посилання на коментар
Поділитися на інших сайтах

Продолжаем...

 

Сняли опалубку, очистили доски от бетона, извлекли все гвозди и аккуратно уложили.

 

Заполнили фундамент песком, пролили, утрамбовали вибромашиной.

 

В утрамбованном песке выкопали траншеи проложили пленкой и уложили арматуру для не несущих стен. Все это залили бетоном. Получили черновую стяжку пола. При этом оставили незабетонированные участки в тех местах, где будут санузлы. Для того, чтобы проложить коммуникации, а также для удобства плиточников, которые сделают себе стяжку такой, какая им понадобится.

 

Также подготовили к бетонированию площадку для машин.

IMG_1752.thumb.jpg.df50278ab7fdeea45beb0645633c9c95.jpg

IMG_1765.thumb.jpg.483bde99c335e783105115f8c7ba3d68.jpg

IMG_1766.thumb.jpg.4499731be773579a1774e80d4545790f.jpg

IMG_1769.thumb.jpg.d87f43fdc25c15b2af6a6bfe5ae1dc3f.jpg

IMG_1865.thumb.jpg.4b4a0be0ddbbf4881dccae8207643abe.jpg

IMG_1867.thumb.jpg.4b7d834627ab31042154f4344f33ac12.jpg

IMG_1868.thumb.jpg.5fd0e73484b24e13f0cceeca84ffdfcd.jpg

IMG_1873.thumb.jpg.af0a5ef7760b153e43886adef78b7ed7.jpg

IMG_1878.thumb.jpg.5655ec489fc16c8300a4ff8ec3fd0e52.jpg

Посилання на коментар
Поділитися на інших сайтах

Забетонировали площадку для машин.

Посадили первый газон)))

С Сербской технологией и материалами Богдан привез два сербских специалиста.

Пока ждали Сербские керамические блоки, они сделали септик. Диаметр 2м. глубина 3.5, в септике сделали сухую кладку из колотого камня. Я остался очень доволен их первой работой)))

Хотя их первое изделие - стремянка)))

IMG_2352.thumb.jpg.efb11990282867a5a461c4f028ef6bd6.jpg

IMG_2353.thumb.jpg.4ba5b30df7a7e3b8e9dbc48f5e7519d2.jpg

IMG_2382.thumb.jpg.c93be338cc5fa097205b12c5709fa244.jpg

IMG_2384.thumb.jpg.79371d56341c9ba388cde021f0429aee.jpg

IMG_2446.thumb.jpg.4faef29c06549f903c376a894b3c273e.jpg

IMG_2422.thumb.jpg.eb90b85923cfb5de7cc290a0ea566120.jpg

  • Лайк 3
Посилання на коментар
Поділитися на інших сайтах

Приехали керамические блоки.

Т.к. у нас чудо государство, таможенные формальности длились около 10 дней.

Но уже все позади, 3 фуры продукции на участке.

Приехали керамические блоки и перекрытия.Черепица будет в следующей партии.

В этих керамических блоках первое, что меня удивило - это прочность.

Они проехали 2000км на жиденьких поддонах обмотанных стрейч пленкой в 2 слоя, были перегружены на таможенный склад, оттуда снова на фуры, привезены и выгружены на участок.

После всех этих издевательств над продукцией, потери были минимальны.

IMG_2456.thumb.jpg.e7363a7b170fb02f32e61ab062934929.jpg

IMG_2457.thumb.jpg.efe3969a9cc41968b07f68735f4d60bb.jpg

IMG_2458.thumb.jpg.9cff3782d65d9ff445635605debc123a.jpg

IMG_2459.thumb.jpg.f07871b207709b43468a9370ce8ff923.jpg

IMG_2493.thumb.jpg.3f817de490366d0305a174c8bd243889.jpg

IMG_2461.thumb.jpg.562dc7705bb0c87da3a02a0afbab3ef4.jpg

Посилання на коментар
Поділитися на інших сайтах

Проект красивый - подписываюсь.

Фундамент акуратно выкопали - понравилось.

 

Скажите, чем Вы планируете облицовывать дом? Какой древесиной и какой конфигурации?

И еще вопрос, что именно Сербского в этой монолитно-каркасной технологии постройки? Сербы?

  • Лайк 2
Посилання на коментар
Поділитися на інших сайтах

Сербская технология? В чем она? в этих сомнительного качества блоках? Что такого значимого внесли сербы в современное строительство? Зачем вы себе так усложнили жизнь? Таких керамических поризированных блоков полно у других производителей - Поротерм, Кератерм.

 

ваш септик - развлекалово для эстетов до момента заполнения г...ом - к реальной жизни он не приспособлен - нет переливочных камер, дренажного тоннеля, гидроизоляции стен. Он у вас через год разлезется по швам и будете вы его каждые 2 недели выкачивать поскольку все отходы будут стоять - им некуда двигаться.

  • Лайк 8
Посилання на коментар
Поділитися на інших сайтах

Проект красивый - подписываюсь.

Фундамент акуратно выкопали - понравилось.

Скажите, чем Вы планируете облицовывать дом? Какой древесиной и какой конфигурации?

И еще вопрос, что именно Сербского в этой монолитно-каркасной технологии постройки? Сербы?

 

Дом будет облицовываться частично камнем, частично доской из дуба. Так как указано на фото выше. Основная идея экстерьера - дерево, стекло, камень, керамика.

 

Это Сербская монолитно-каркасная технология, которая была разработана в 60х годах после сильнейшего землетрясения (в июле мы ездили в Сербию и Черногорию, у них более менее новые дома построены по такой технологии). Согласно этой технологии строится фундамент с арматурным поясом внизу (который является основным). Нижний перевязывается вертикальным арматурным поясом с верхним поясом фундамента.

 

Далее делается кладка из керамических блоков производство которых в Сербии, т.к. у них есть глина, которая при производстве блоков и перекрытий запекается при температуре 700-800 градусов.

 

Во время кладки, по углам и в нужных узлах оставляют место размером 200х200мм. Потом в эти ниши закладывают вертикальные армированные пояса, которые связаннны с нижним и верхним поясами фундамента. После чего, там где нужно, ставят утепленную пенопластом несъемную опалубку и заливают бетоном.

 

Когда кладка закончена, сверху по периметру снова делают армированный пояс и заливают бетоном. Этот пояс будет основанием для керамического перекрытия. Керамическое перекрытие описывать не буду, думаю об этом достаточно есть информации.

 

Получаем прочный бетонный каркас, хорошо связанный с керамическими блоками. Этот каркас и будет выполнять несущую функцию.

 

Все вышеописанное видно на фото, которые я выложил.

____1.thumb.JPG.052b167458bcd46772f2f738f850b060.JPG

  • Лайк 2
Посилання на коментар
Поділитися на інших сайтах

Сербская технология? В чем она? в этих сомнительного качества блоках? Что такого значимого внесли сербы в современное строительство? Зачем вы себе так усложнили жизнь? Таких керамических поризированных блоков полно у других производителей - Поротерм, Кератерм.

 

ваш септик - развлекалово для эстетов до момента заполнения г...ом - к реальной жизни он не приспособлен - нет переливочных камер, дренажного тоннеля, гидроизоляции стен. Он у вас через год разлезется по швам и будете вы его каждые 2 недели выкачивать поскольку все отходы будут стоять - им некуда двигаться.

 

Я вижу, что Вы не очень хорошо разбираетесь в керамических блоках ( не понимаю как вообще можно сравнивать кератерм, который рассыпается на поддонах), по этому попрошу воздержаться от подобных комментариев.

 

В этой ветке я не собираюсь сравнивать технологии, защищать их или придавать сомнению. Я строю дом для своей семьи по технологии, которую выбрал. А здесь описываю для тех, кому она может быть интересна.

 

Я сделал свой личный выбор в пользу этой технологии, если Вам она не нравится просто не заходите в эту ветку. Если Вам интересно, можете задавать вопросы, я постараюсь на них ответить.

  • Лайк 19
Посилання на коментар
Поділитися на інших сайтах

Разбираюсь. Свой дом построил из 44-го поротерма. Хуже вашего сербского ноунэйма? Ваша технология суперсейсмовыносливого дома имеет смысл в Крыму. В наших широтах надо думать не о землетрясении а об эффективных теплоизоляционных свойствах зданий. В вашей технологии с этим явные проблемы.

 

Форум - это не только инструмент самолюбования. Это еще и возможность критиковать и быть раскритикованым.

 

Ваш дом, ваш странный септик - ваши радости и разочарования, нам там не жить.

  • Лайк 3
Посилання на коментар
Поділитися на інших сайтах

я не собираюсь сравнивать технологии, защищать их или придавать сомнению.

Я сделал свой личный выбор в пользу этой технологии,.

 

Все верно, но немножечко неверно.

Это так, только до тех пор, пока сосед не поинтересуется, почему в его колодце ваши сцаки.

Так что иногда, все же приходится защищать свою технологию и предавать ее сомнению.

А вообще, ветка интересная. Подпишусь.:beer:

  • Лайк 8
Посилання на коментар
Поділитися на інших сайтах

Я сделал свой личный выбор в пользу этой технологии, если Вам она не нравится просто не заходите в эту ветку. Если Вам интересно, можете задавать вопросы, я постараюсь на них ответить

 

С таким подходом, Вы лишаетесь возможности "со стороны", без "розовых очков" поглядывать на свою, несомненно, очень интересную стройку. Как по мне, то любые конструктивные замечания - это клад, для застройщика.

Лично мне жалко труда на Ваш септик, я бы такой красотой какую нибудь терраску сделал, а в септик пару колец бросил.

  • Лайк 8
Посилання на коментар
Поділитися на інших сайтах

Разбираюсь. Свой дом построил из 44-го поротерма. Хуже вашего сербского ноунэйма? Ваша технология суперсейсмовыносливого дома имеет смысл в Крыму. В наших широтах надо думать не о землетрясении а об эффективных теплоизоляционных свойствах зданий. В вашей технологии с этим явные проблемы.

 

Форум - это не только инструмент самолюбования. Это еще и возможность критиковать и быть раскритикованым.

 

Ваш дом, ваш странный септик - ваши радости и разочарования, нам там не жить.

 

Я не говорил, что Поротерм хуже, он просто другой. Кератерм хуже. Сербский блок ноунейм в Украине. В бывшей Югославии он применяется широко. Я думаю, что негативной критике можно подвергнуть любую технологию, весь вопрос в предпочтениях. Кто-то строит из самана, кто-то из термоблоков, а кто-то из Поротерма. Технология - выбор каждого.

Относительно сейсмической устойчивости. В моей ситуации такой конструктив позволяет сделать перекрытие из керамических элементов под уклоном 20 градусов, и укрыть дом черепицей, без ущерба планировки. Также такая конструкция не даст потрескаться дому от усадки и зимних пучений.

 

А на счет ЗДРАВОЙ критики или обсуждения я не против.

 

Добавлено через 1 минуту

С таким подходом, Вы лишаетесь возможности "со стороны", без "розовых очков" поглядывать на свою, несомненно, очень интересную стройку. Как по мне, то любые конструктивные замечания - это клад, для застройщика.

Лично мне жалко труда на Ваш септик, я бы такой красотой какую нибудь терраску сделал, а в септик пару колец бросил.

 

Как я указал выше, буду очень рад здравой критике.:beer:

  • Лайк 1
Посилання на коментар
Поділитися на інших сайтах

Хочу Вам сказать, что технология монолитно-каркасного строительства применяется и у нас, при чем довольно успешно уже последние 15 лет.

Придумали ее не сербы, если Вы не знали.

По поводу септика - поддерживаю замечания.

Пока Вы эту красоту не покроете полимерцементной гидроизоляцией изнутри (закрыв при этом всю красоту кладки) - грош цена будет вашему септику, когда он будет загрязнять почву Вам и вашим соседям!

Кроме того - не хватает параллельно второй камеры септика с переливом (это как самый миниморум).

  • Лайк 3
Посилання на коментар
Поділитися на інших сайтах

Створіть акаунт або увійдіть у нього для коментування

Ви маєте бути користувачем, щоб залишити коментар

Створити акаунт

Зареєструйтеся для отримання акаунта. Це просто!

Зареєструвати акаунт

Увійти

Вже зареєстровані? Увійдіть тут.

Увійти зараз
×
×
  • Створити...