MWer Опубліковано: 9 жовтня 2012 Поділитись Опубліковано: 9 жовтня 2012 Алексей! Мембрана без провиса на всех инструкциях. Безотносительно к моей теории. Я постараюсь найти ссылки. Завтра. Посилання на коментар Поділитися на інших сайтах More sharing options...
Max77 Опубліковано: 10 жовтня 2012 Поділитись Опубліковано: 10 жовтня 2012 Неделю назад строители натянули СДМ Евробарьер плюс и прибили планками к стропилам. Натяжение среднее: где плотно, где провисает 1-2см. Металлоочерепица еще не уложена. Два дня назад шел дождь. В местах, где СДМ была прибита гвоздем через планку, капала вода, причем где больше, где меньше. Скажите, так должно быть, или же крышники чего то накосячили? Можно ли еще устранить этот недостаток, или же после укладки металлочерепицы все будет нормально? Посилання на коментар Поділитися на інших сайтах More sharing options...
VasylOk Опубліковано: 10 жовтня 2012 Поділитись Опубліковано: 10 жовтня 2012 И у меня тоже есть вопрос. Евробарьер набит зеленой стороной вверх, а вот надпись "ЕВРОБАРЬЕР" как бы вверх ногами. Это критично? Посилання на коментар Поділитися на інших сайтах More sharing options...
Expert Опубліковано: 10 жовтня 2012 Поділитись Опубліковано: 10 жовтня 2012 И у меня тоже есть вопрос. Евробарьер набит зеленой стороной вверх, а вот надпись "ЕВРОБАРЬЕР" как бы вверх ногами. Это критично? Нет, не критично 1 Посилання на коментар Поділитися на інших сайтах More sharing options...
Max77 Опубліковано: 11 жовтня 2012 Поділитись Опубліковано: 11 жовтня 2012 У меня в коньке крыши барьер лежит на двух скатах. Получается на одном скате написано Евро, а на другом - барьер вверх ногами. Подскажите, это не критично???:D А если серьезно, подскажите как локализовать протечки в местах, где СДМ прибивается гвоздями к стропилам??? Пол ночи не сплю, опять пошел дождь, вода потихоньку капает и затекает под частично уложенную минвату. Сегодня должны начать укладывать черепицу, но видать из-за дождя придеться отложить. Посилання на коментар Поділитися на інших сайтах More sharing options...
Max77 Опубліковано: 11 жовтня 2012 Поділитись Опубліковано: 11 жовтня 2012 Про ленту думал, но она же тоже будет пробиваться гвоздями. Получается пользы от нее никакой. Уклон 37 градусов. Посилання на коментар Поділитися на інших сайтах More sharing options...
Expert Опубліковано: 11 жовтня 2012 Поділитись Опубліковано: 11 жовтня 2012 У меня в коньке крыши барьер лежит на двух скатах. Получается на одном скате написано Евро, а на другом - барьер вверх ногами. Подскажите, это не критично???:D А если серьезно, подскажите как локализовать протечки в местах, где СДМ прибивается гвоздями к стропилам??? Пол ночи не сплю, опять пошел дождь, вода потихоньку капает и затекает под частично уложенную минвату. Сегодня должны начать укладывать черепицу, но видать из-за дождя придеться отложить. Первичные рекомендации следующие (хоть, так сказать, не видя больного и анализов, диагноз не ставят…): 1) мех-поврежеждения - с помощью аппликаций. + герметик к-2 предварительно разогретый 2) в месте крепления контррейки – используют уплотнитель из вспененного полиэтилена, но если монтаж уже произведен, тут ничего не поделаешь 3) Протечки у вас могут быть и по другой причине – просто мембрана может не выдерживает водяной столб из-за избытка осадков. Накрывайте поскорей. Проблема по идее должна уйти. При условии, что сама по себе мембрана не бракованная и уклон кровли не менее 20 градусов 1 Посилання на коментар Поділитися на інших сайтах More sharing options...
Max77 Опубліковано: 11 жовтня 2012 Поділитись Опубліковано: 11 жовтня 2012 Слава Богу уже дождя нет и вышло солнышко. Крышники уже почти один скат перекрыли. Посилання на коментар Поділитися на інших сайтах More sharing options...
BeeKeeper Опубліковано: 11 жовтня 2012 Автор Поділитись Опубліковано: 11 жовтня 2012 правильная ли это мембрана? Вот такая. Теперь смонтировать бы ее правильно. Спасибо форуму многое прояснилось. Есть еще одно небольшое сомнение: везде пишут, что боится ультрафиолета. А я ее купил в прошлом октябре. Хранил в комнате. Не совсем на свету, но и не в кромешной темноте (как фотопленку). Надо было бы занести в подвал. Но как-то этот момент упустил. Надеюсь, что такое хранение не сильно повлияло на качества. На крайний случай возможно обрезать первые 1-2 витка из рулона, которые непосредственно освещались комнатным светом. Посилання на коментар Поділитися на інших сайтах More sharing options...
Max77 Опубліковано: 11 жовтня 2012 Поділитись Опубліковано: 11 жовтня 2012 Не заморачивайтесь с этим, у этой СДМ УФ-устойчивость 4 месяца с момента монтажа на кровлю. Тоесть, СДМ может стоять без накрытия металлочерепицей 4 месяца. 1 Посилання на коментар Поділитися на інших сайтах More sharing options...
NAVIN Опубліковано: 17 лютого 2013 Поділитись Опубліковано: 17 лютого 2013 мех-поврежеждения - с помощью аппликаций. + герметик к-2 предварительно разогретый Добрый день, могли бы прокоментировать - что за аппликации? Посилання на коментар Поділитися на інших сайтах More sharing options...
Expert Опубліковано: 20 лютого 2013 Поділитись Опубліковано: 20 лютого 2013 Добрый день, могли бы прокоментировать - что за аппликации? делаем латки нехитрым способом с помощью ленты хорошей, как на изо в школе ;) Посилання на коментар Поділитися на інших сайтах More sharing options...
biz-kiev Опубліковано: 21 лютого 2013 Поділитись Опубліковано: 21 лютого 2013 СДМ УФ-устойчивость про это производитель кричит а про ветроустойчивость умалчивает. при добротном ветре могут быть проблемы. поэтому накрывать надо быстро. Посилання на коментар Поділитися на інших сайтах More sharing options...
*Alexey* Опубліковано: 26 лютого 2013 Поділитись Опубліковано: 26 лютого 2013 про это производитель кричит а про ветроустойчивость умалчивает. при добротном ветре могут быть проблемы. поэтому накрывать надо быстро. Ветер штука паршивая, но!! если вместе с пленкой и контрой набивается обрешетка, то ничего ветер пленке в принципе не сделает (доказано моей личной практикой). Правда и плотность пленки играет далеко не последнюю роль. Мы менее 130 г/квм стараемся не применять. Разве что скаты с уклоном более 50 град - тогда возможно беда будет. И еще: консервация объекта не прихоти, а оооочень необходимая весчЪ. И если в доме гуляет ветер, то парусная нагрузка на пленку увеличивается в разы - вот тут уже действительно возникают проблемы от ветровой нагрузки. Консервируйте коробки господа 1 Посилання на коментар Поділитися на інших сайтах More sharing options...
Wasabi Опубліковано: 26 лютого 2013 Поділитись Опубліковано: 26 лютого 2013 2) в месте крепления контррейки – используют уплотнитель из вспененного полиэтилена, но если монтаж уже произведен, тут ничего не поделаешь Если позволите - маленькое уточнение. А скажите пожалуйста, уплотнитель на всю длину бруска или пятачок на месте забивания гвоздя? Посилання на коментар Поділитися на інших сайтах More sharing options...
РусланР Опубліковано: 26 лютого 2013 Поділитись Опубліковано: 26 лютого 2013 на всю длину контррейки 2 Посилання на коментар Поділитися на інших сайтах More sharing options...
Expert Опубліковано: 26 лютого 2013 Поділитись Опубліковано: 26 лютого 2013 Если позволите - маленькое уточнение. А скажите пожалуйста, уплотнитель на всю длину бруска или пятачок на месте забивания гвоздя? Все нужно уплотнять. Цена вопроса, пару рулонов - пару соток гривень. Подготовили брус для контрреек. Сами взяли рулоны уплотнителя, на земле прилепили, монтажникам брус в зубы отдали ;) Посилання на коментар Поділитися на інших сайтах More sharing options...
biz-kiev Опубліковано: 6 березня 2013 Поділитись Опубліковано: 6 березня 2013 Все нужно уплотнять. Цена вопроса, пару рулонов - пару соток гривень. Подготовили брус для контрреек. Сами взяли рулоны уплотнителя, на земле прилепили, монтажникам брус в зубы отдали ;) а если рабочие не той стороной рейку положат? тогда надо и рейку самому бить... да так в принципе и все надо самому делать, а то АВДРУГ? .... если сами занимаетесь контролем стройки - качайте инструкции производителей и бригадиру на штудирование. потом же по ним и примете работу. Посилання на коментар Поділитися на інших сайтах More sharing options...
Expert Опубліковано: 11 березня 2013 Поділитись Опубліковано: 11 березня 2013 а если рабочие не той стороной рейку положат? тогда надо и рейку самому бить... да так в принципе и все надо самому делать, а то АВДРУГ? .... если сами занимаетесь контролем стройки - качайте инструкции производителей и бригадиру на штудирование. потом же по ним и примете работу. А бывает такое, что кровельщики черепицу верх ногами ложат :D Посилання на коментар Поділитися на інших сайтах More sharing options...
silver8848 Опубліковано: 31 березня 2013 Поділитись Опубліковано: 31 березня 2013 Добрый день! Может кто-то сможет дать ответ на такой вопрос. Как правильно уложить и закрепить мембрану в эндове? Схематически, как мне кажется, все сделано правильно. Мне уложили мембрану на крышу с нахлестами и заходом на соседний скат. Далее прибили скобами, концы мембраны тем самым наделали микродырки вдоль эндовы. Я был против, но меня успокоили что все будет ОК. Сейчас, после зимы, после снеговых и ветровых нагрузок в местах скоб появились небольшие надрывы мембраны. Через них начала капать вода. Вода, в данном случае как индикатор, где в будущем будет капать конденсат. Так как полностью крышу не успели накрыть и смонтировать конек, то скорее всего это капает тающий снег, который задуло под МЧ. Через неделю монтажники придут заканчивать крышу. Нужно понять как правильно исправить крышу. Разобрать крышу вдоль эндовы- снять обрешотку, контробрешотку, под мембрану смонтировать ремонтные куски новой мембраны и собрать все заново без применения скоб??? Что по этому поводу говорят монтажные тех. карты. Именно про эндовы я ничего не нашел. Посилання на коментар Поділитися на інших сайтах More sharing options...
vasya2013 Опубліковано: 31 березня 2013 Поділитись Опубліковано: 31 березня 2013 самого интерисует метод герметизации узла крепления скоб ... скобы это пол беды... как я считаю... после скоб будет идти контр рейка которую прикрутят или прибьют не важно.. для ее крепления будет много гвоздей или саморезов под которые и будет попадать влага.... как то так..... Посилання на коментар Поділитися на інших сайтах More sharing options...
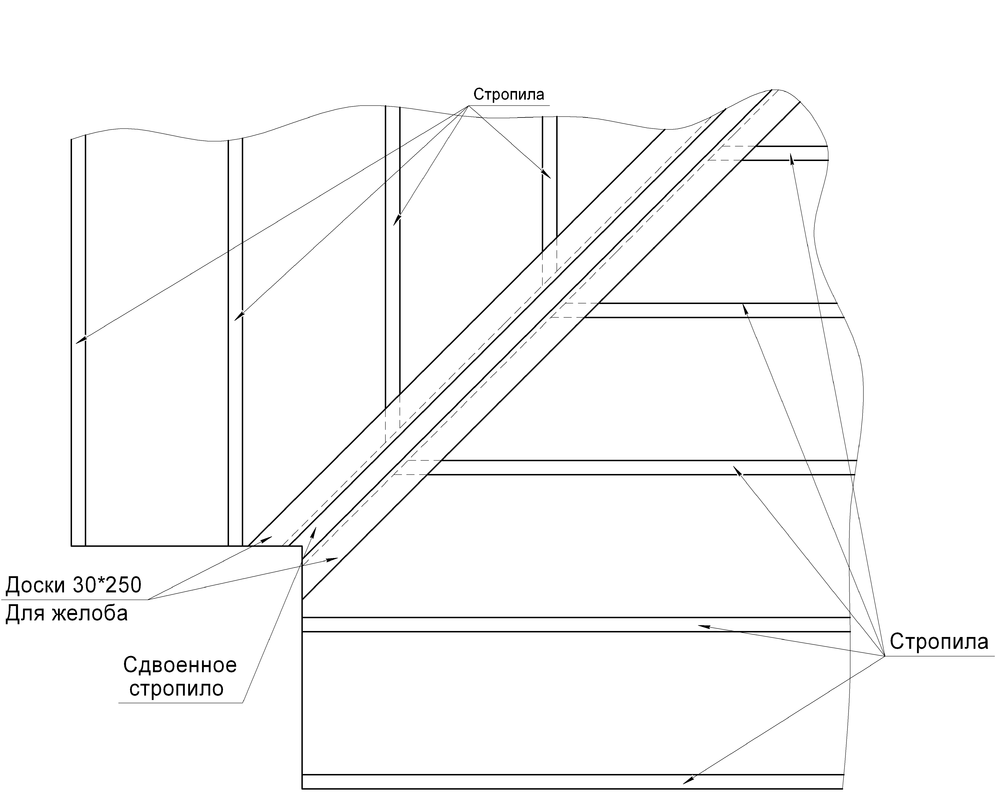
MWer Опубліковано: 4 квітня 2013 Поділитись Опубліковано: 4 квітня 2013 Добрый день! Может кто-то сможет дать ответ на такой вопрос. Как правильно уложить и закрепить мембрану в эндове? Схематически, как мне кажется, все сделано правильно. Мне уложили мембрану на крышу с нахлестами и заходом на соседний скат. Далее прибили скобами, концы мембраны тем самым наделали микродырки вдоль эндовы. Я был против, но меня успокоили что все будет ОК. Сейчас, после зимы, после снеговых и ветровых нагрузок в местах скоб появились небольшие надрывы мембраны. Через них начала капать вода. Вода, в данном случае как индикатор, где в будущем будет капать конденсат. Так как полностью крышу не успели накрыть и смонтировать конек, то скорее всего это капает тающий снег, который задуло под МЧ. Через неделю монтажники придут заканчивать крышу. Нужно понять как правильно исправить крышу. Разобрать крышу вдоль эндовы- снять обрешотку, контробрешотку, под мембрану смонтировать ремонтные куски новой мембраны и собрать все заново без применения скоб??? Что по этому поводу говорят монтажные тех. карты. Именно про эндовы я ничего не нашел. Тех карты посмотрите в инструкциях фирмы "Деркен", производителя мембран "Дельта". Есть там и ендовы. Существует несколько способов, поэтому немогу дать описание правильного, опишу свой. Вдоль ендовы, по обе стороны прибивается брусы в плоскости контробрешетки и толщиной как у контробрешетки. Поверх них, вдоль ендовы раскатывается полотно мембраны, нахлест на скаты по 75 см. Крепится к стропилам по краям полотна. Полотно натягивается только вдоль ендовы, поперек - нет. После перехода мембраны с ендовного бруса на стропилину получается свободный провис в виде желобка, он есть и на Вашем рисунке. После описанных манипуляций можно приступать к стандартному монтажу мембраны, обрешетки и контробрешетки. При этом рядовые полотна мембраны с нахлестом проклеиваются к ендовной полосе, а обрешетка(с уплотнительной лентой на окончании в сторону ендовы прибивается прямо к ендовному брусу, поверх мембраны. Ни один из способов на практике не дает стопроцентного результата, но вода в ендове и не должна быть. Свой вариант считаю наиболее близким к идеальному, во всяком случае места прикрепления скобками оказываются недоступны для воды. Извините за отсутствие рисунка, нет технической возможности Смотрите инструкцию от "дельты"! 1 Посилання на коментар Поділитися на інших сайтах More sharing options...
silver8848 Опубліковано: 4 квітня 2013 Поділитись Опубліковано: 4 квітня 2013 Я задавал этот же вопрос в другой теме, и там дали по сути такой же ответ, посмотрите пост №48 www.stroimdom.com.ua/forum/showthread.php?t=123617&page=3 Посилання на коментар Поділитися на інших сайтах More sharing options...
Рекомендовані повідомлення
Створіть акаунт або увійдіть у нього для коментування
Ви маєте бути користувачем, щоб залишити коментар
Створити акаунт
Зареєструйтеся для отримання акаунта. Це просто!
Зареєструвати акаунтУвійти
Вже зареєстровані? Увійдіть тут.
Увійти зараз