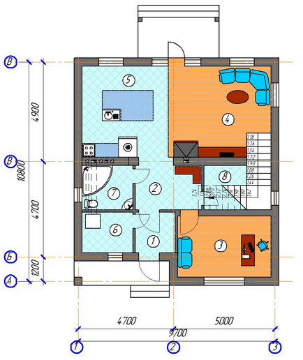
alexob Опубліковано: 14 листопада 2012 Автор Поділитись Опубліковано: 14 листопада 2012 Практически определились с планировкой, но... возник вопрос о расположении камина и телевизора. Друзья, будут ли идеи как и где в такой планировке можно расположить эти вещи? Читал темы и мысли о расположении телевизора НАД камином, но есть сомнения. Может как то можно камин с лестницей обыграть красиво? Посилання на коментар Поділитися на інших сайтах More sharing options...
Luko Опубліковано: 16 листопада 2012 Поділитись Опубліковано: 16 листопада 2012 По камину и телевизору не подскажу, но... У меня похожая планировка, несущая стена "поперек " дома, 174м2. Какая крыша будет у Вас? На картинке выше - двускатка. Так вот, террасу Вы захотите накрыть и будете решать, из чего сделать навес, чтобы и свет был, и снег при падении не развалил... Подумайте, может поиграться с планировкой и оставить несущую стену вдоль дома? тогда в сторону навеса над террасой выходит фронтон и снег падать не будет Посилання на коментар Поділитися на інших сайтах More sharing options...
alexob Опубліковано: 16 листопада 2012 Автор Поділитись Опубліковано: 16 листопада 2012 По камину и телевизору не подскажу, но... У меня похожая планировка, несущая стена "поперек " дома, 174м2. Какая крыша будет у Вас? На картинке выше - двускатка. Так вот, террасу Вы захотите накрыть и будете решать, из чего сделать навес, чтобы и свет был, и снег при падении не развалил... Подумайте, может поиграться с планировкой и оставить несущую стену вдоль дома? тогда в сторону навеса над террасой выходит фронтон и снег падать не будет Крыша будет двускатка, терраса как раз в сторону фронтона и будет. Вот такой планируется навес и терраса (видно террасу спереди и на заднем плане навес под авто (вместо гаража)). Терраса правда больше по размеру будет немного - метра 2,5 в ширину. Посилання на коментар Поділитися на інших сайтах More sharing options...
Luko Опубліковано: 16 листопада 2012 Поділитись Опубліковано: 16 листопада 2012 Крыша будет двускатка, терраса как раз в сторону фронтона и будет. Вот такой планируется навес и терраса (видно террасу спереди и на заднем плане навес под авто (вместо гаража)). Терраса правда больше по размеру будет немного - метра 2,5 в ширину. очень хорошо, но на какие стены Вы будете опирать коньковую балку? Посилання на коментар Поділитися на інших сайтах More sharing options...
alexob Опубліковано: 16 листопада 2012 Автор Поділитись Опубліковано: 16 листопада 2012 очень хорошо, но на какие стены Вы будете опирать коньковую балку? а вот так как здесь с 85 поста. Просто ложиться балка на сущие стены, только не вдоль. Посилання на коментар Поділитися на інших сайтах More sharing options...
Luko Опубліковано: 16 листопада 2012 Поділитись Опубліковано: 16 листопада 2012 а вот так как здесь с 85 поста. Просто ложиться балка на сущие стены, только не вдоль. тогда ок, не знала про такой вариант еще подумала, глядя на лестницу... какое будет перекрытие? если жб, то как будет заливаться монолитный участок возле лестницы? Посилання на коментар Поділитися на інших сайтах More sharing options...
alexob Опубліковано: 16 листопада 2012 Автор Поділитись Опубліковано: 16 листопада 2012 тогда ок, не знала про такой вариант еще подумала, глядя на лестницу... какое будет перекрытие? если жб, то как будет заливаться монолитный участок возле лестницы? даже еще не думал. Возможно опору поставим и там какая-то плита ляжет небольшая. Хотя может и нет. Тогда сделаем опалубку заармируем и зальем Посилання на коментар Поділитися на інших сайтах More sharing options...
Luko Опубліковано: 16 листопада 2012 Поділитись Опубліковано: 16 листопада 2012 даже еще не думал. Возможно опору поставим и там какая-то плита ляжет небольшая. Хотя может и нет. Тогда сделаем опалубку заармируем и зальем интересно, как Вы будете это делать с опорой на три точки... когда будете делать, опишите процесс, хорошо? я пока потолок над гардеробной под лестницей буду ГК планирую зашивать, но ходить по нему врядли получится... Посилання на коментар Поділитися на інших сайтах More sharing options...
alexob Опубліковано: 16 листопада 2012 Автор Поділитись Опубліковано: 16 листопада 2012 интересно, как Вы будете это делать с опорой на три точки... когда будете делать, опишите процесс, хорошо? я пока потолок над гардеробной под лестницей буду ГК планирую зашивать, но ходить по нему врядли получится... почему же на 3 - на все 4-ре будем ложить Задняя сторона гардероба что к лестнице все равно закладывается - тот именно там стеночка и будет опорой или столбик сделать. Вот так примерно: А то, что это не помечено на плане, исправим, спасибо Посилання на коментар Поділитися на інших сайтах More sharing options...
Luko Опубліковано: 16 листопада 2012 Поділитись Опубліковано: 16 листопада 2012 Вот так примерно Спасибо, так должно получиться Жаль, что у меня так не выйдет... Буду думать еще... Удачи! Посилання на коментар Поділитися на інших сайтах More sharing options...
Drosselbeere Опубліковано: 16 листопада 2012 Поділитись Опубліковано: 16 листопада 2012 какое будет перекрытие? если жб, то как будет заливаться монолитный участок возле лестницы? участок не большой можно выполнить консольно, городить стену нет смысла Посилання на коментар Поділитися на інших сайтах More sharing options...
Luko Опубліковано: 16 листопада 2012 Поділитись Опубліковано: 16 листопада 2012 участок не большой можно выполнить консольно, городить стену нет смысла какой размер максимум? можете показать, как примерно это будет выглядеть? Посилання на коментар Поділитися на інших сайтах More sharing options...
alexob Опубліковано: 16 листопада 2012 Автор Поділитись Опубліковано: 16 листопада 2012 участок не большой можно выполнить консольно, городить стену нет смысла а что значит консольно, покажите пожалуйста? Железный уголок из стены выпустить? В идеале для меня было бы НЕ лить этот "балкончик", а найти такую плиту и просто положить. Посилання на коментар Поділитися на інших сайтах More sharing options...
Drosselbeere Опубліковано: 16 листопада 2012 Поділитись Опубліковано: 16 листопада 2012 а что значит консольно например балконы одного не пойму, для чего вы городите лестницу в зале? Посилання на коментар Поділитися на інших сайтах More sharing options...
alexob Опубліковано: 16 листопада 2012 Автор Поділитись Опубліковано: 16 листопада 2012 одного не пойму, для чего вы городите лестницу в зале? Всегда нравилось, когда лестницу видно из мест постоянной тусовки - это первое. Второе, расположив таким образом лестницу, я выигрываю место для гардероба или кладовки более-менее нормального размера. Пробовали располагать лестницу "как все" - при тех же количествах помещений и их площадях, общая площадь дома увеличивается. Добавлено через 2 минуты А какой минус в таком расположении? Посилання на коментар Поділитися на інших сайтах More sharing options...
Drosselbeere Опубліковано: 17 листопада 2012 Поділитись Опубліковано: 17 листопада 2012 А какой минус в таком расположении? не хотелось бы, что бы движение на 2 этаж был через всю комнату, ИМХО Посилання на коментар Поділитися на інших сайтах More sharing options...
alexob Опубліковано: 1 грудня 2012 Автор Поділитись Опубліковано: 1 грудня 2012 Даст кто-то идею обыграть камин и телик? Посилання на коментар Поділитися на інших сайтах More sharing options...
berizka_00 Опубліковано: 2 грудня 2012 Поділитись Опубліковано: 2 грудня 2012 Если камин будет действующий то я б не стал вешать над ним телевизор. И дверца и стенка камина прогреваются, что может негативно повлиять на телек Посилання на коментар Поділитися на інших сайтах More sharing options...
alexob Опубліковано: 2 грудня 2012 Автор Поділитись Опубліковано: 2 грудня 2012 А при расположении РЯДОМ с камином не будет ли той же проблемы? не могу найти красивого решения расположения на одной стене. Может конечно стоит рассмотреть вариант расположения камина по центру стены (самый фейшуйный вариант ), а телевизор неизвестно куда прилепить. Посилання на коментар Поділитися на інших сайтах More sharing options...
Luko Опубліковано: 2 грудня 2012 Поділитись Опубліковано: 2 грудня 2012 А при расположении РЯДОМ с камином не будет ли той же проблемы? не могу найти красивого решения расположения на одной стене. Может конечно стоит рассмотреть вариант расположения камина по центру стены (самый фейшуйный вариант ), а телевизор неизвестно куда прилепить. (%D1%81%D1%81%D1%8B%D0%BB%D0%BA%D0%B0%20%D0%BD%D0%B0%20%D0%B8%D0%B7%D0%BE%D0%B1%D1%80%D0%B0%D0%B6%D0%B5%D0%BD%D0%B8%D0%B5%20%D1%83%D1%81%D1%82%D0%B0%D1%80%D0%B5%D0%BB%D0%B0) 1 Посилання на коментар Поділитися на інших сайтах More sharing options...
berizka_00 Опубліковано: 2 грудня 2012 Поділитись Опубліковано: 2 грудня 2012 А при расположении РЯДОМ с камином не будет ли той же проблемы? . Ну если вентилятором тепло на телек не гнать, то само по себе тепло в сторону не пойдет :D Посилання на коментар Поділитися на інших сайтах More sharing options...
Svelik Опубліковано: 2 грудня 2012 Поділитись Опубліковано: 2 грудня 2012 Даст кто-то идею обыграть камин и телик? Посмотрите здесь. много фоток- есть интересные идеи. www.houzz.com/fireplace-tv/p/32 1 Посилання на коментар Поділитися на інших сайтах More sharing options...
Рекомендовані повідомлення
Створіть акаунт або увійдіть у нього для коментування
Ви маєте бути користувачем, щоб залишити коментар
Створити акаунт
Зареєструйтеся для отримання акаунта. Це просто!
Зареєструвати акаунтУвійти
Вже зареєстровані? Увійдіть тут.
Увійти зараз