Анатолий62 Опубліковано: 31 жовтня 2012 Поділитись Опубліковано: 31 жовтня 2012 Создаю ветку для информирования общественности по новинкам ( и не только) на Рынке Украины по тепловым насосам с теплообменом "воздух-вода".надеюсь потребителям это поможет определиться с Выбором. Посилання на коментар Поділитися на інших сайтах More sharing options...
glirus Опубліковано: 31 жовтня 2012 Поділитись Опубліковано: 31 жовтня 2012 Ждемс))).... Посилання на коментар Поділитися на інших сайтах More sharing options...
Анатолий62 Опубліковано: 31 жовтня 2012 Автор Поділитись Опубліковано: 31 жовтня 2012 Итак начнём. По исполнению тепловые насосы данного типа могут выполняться как "сплит система"-при которой с наружной установкой блока испарителя ( рис 1) или как "моноблок" , который размещаеться внутри помещения.При таком исполнении испаритель и компрессорный блок расположены в общем корпусе ,а воздух подводиться по воздуховодам с улицы( рис.2). Но к сожалению из-за технических и конструктивных особенностей мощность "моноблоков" ограничена у всех фирм производителей на уровне 11-13кВт. Посилання на коментар Поділитися на інших сайтах More sharing options...
REYDER Опубліковано: 31 жовтня 2012 Поділитись Опубліковано: 31 жовтня 2012 а эта тема зачем? или вы хотите тут сравнить все ТН воздух-вода? так не все выдадут полное ТТХ что бы было адекватное сравнение. Не вижу смысла в теме... она превратится в рекламную площадку продаванов ТН и как всегда будет куча споров и бреда. ИМХО. Без обид. Посилання на коментар Поділитися на інших сайтах More sharing options...
Анатолий62 Опубліковано: 1 листопада 2012 Автор Поділитись Опубліковано: 1 листопада 2012 тут сравнить все ТН воздух-вода? Не только сравнить- а как можно полнее аккумулировать информацию по этому типу насосов, не только Европейских но и любых других производителей.Кроме того общими усилиями донесём народу разницу между ТН и "чиллером". Посилання на коментар Поділитися на інших сайтах More sharing options...
a123 Опубліковано: 1 листопада 2012 Поділитись Опубліковано: 1 листопада 2012 Итак начнём. По исполнению тепловые насосы данного типа могут выполняться как "сплит система"-при которой с наружной установкой блока испарителя ( рис 1) или как "моноблок" , который размещаеться внутри помещения.При таком исполнении испаритель и компрессорный блок расположены в общем корпусе ,а воздух подводиться по воздуховодам с улицы( рис.2). Но к сожалению из-за технических и конструктивных особенностей мощность "моноблоков" ограничена у всех фирм производителей на уровне 11-13кВт. А откуда у вас информация, что мощность моноблоков ограничена У ВСЕХ производителей? Вот например моноблок 35кВт www.dimplex.de/ru/teplovoi-nasos/vozdukh-voda/naruzhnaja-ustanovka/la-40tu.html И никакие 'технические особенности' не мешают ему прекрасно работать. Я так понял, вы хотите в этой ветке создать некий каталог всех ТН воздух-вода? Насчет 'сравнить' - не советую. Даже одно сравнение превратится в бесконечную дискуссию. 3 Посилання на коментар Поділитися на інших сайтах More sharing options...
REYDER Опубліковано: 1 листопада 2012 Поділитись Опубліковано: 1 листопада 2012 Насчет 'сравнить' - не советую. Даже одно сравнение превратится в бесконечную дискуссию. поддержу... А откуда у вас информация, что мощность моноблоков ограничена У ВСЕХ производителей? просто Анатолий новичок в этом деле он не видел тепловых насосов на 1МВт воздух вода))), а на 450 кВт я могу похвастаться установкой))). Посилання на коментар Поділитися на інших сайтах More sharing options...
Анатолий62 Опубліковано: 2 листопада 2012 Автор Поділитись Опубліковано: 2 листопада 2012 %?Вот например моноблок 35кВт (ссылка устарела) или как "моноблок" , который размещаеться внутри помещения.!!!!!Читаем внимательно. При моноблоке с наружной установкой при вылете компрессора-пропадании электричества опастность заморозить водяной контур 90% Посилання на коментар Поділитися на інших сайтах More sharing options...
a123 Опубліковано: 2 листопада 2012 Поділитись Опубліковано: 2 листопада 2012 согласен, при нашем климате и нашем электричестве моноблок может замерзнуть. Вот вам моноблоки до 35кВт для установки внутри помещения того же производителя: www.dimplex.de/ru/teplovoi-nasos/vozdukh-voda/ustanovki-v-pomeshchenii.html#c42883 На сайте есть технические данные и большие мануалы по инсталляции - полезно почитать. 1 Посилання на коментар Поділитися на інших сайтах More sharing options...
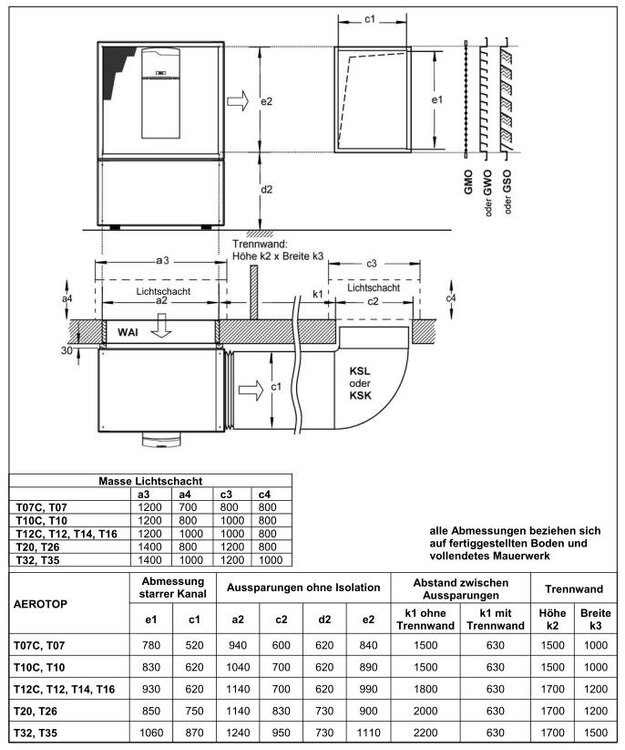
Анатолий62 Опубліковано: 3 листопада 2012 Автор Поділитись Опубліковано: 3 листопада 2012 согласен, при нашем климате и нашем электричестве моноблок может замерзнуть. Вот вам моноблоки до 35кВт для установки внутри помещения того же производителя: (ссылка устарела) На сайте есть технические данные и большие мануалы по инсталляции - полезно почитать. Вот. А говорили что тема не нужна)) ладн вернёмся к нашим овцам,т.е. ТН. Нассос LIH 26TE Пропускнaя способность источникa теплa (мин.) 8000 м3/ч! Александр подскажите какой должен быть диаметр воздуховода для подвода такого количества воздуха к теплообменнику? Посилання на коментар Поділитися на інших сайтах More sharing options...
a123 Опубліковано: 4 листопада 2012 Поділитись Опубліковано: 4 листопада 2012 По документации 725*725 мм, длина и количество поворотов должны быть минимальны. Чем больше проходит воздуха, тем легче из него извлекать тепло. Посилання на коментар Поділитися на інших сайтах More sharing options...
Анатолий62 Опубліковано: 5 листопада 2012 Автор Поділитись Опубліковано: 5 листопада 2012 По документации 725*725 мм, длина и количество поворотов должны быть минимальны. Чем больше проходит воздуха, тем легче из него извлекать тепло. ту поправлю: из меньшего количества воздуха, не возможно извлечь большее количество тепла. Кроме того, что подводящий ,что отводящий воздуховоды должны быть как можно более прямыми. Кроме того, 8000 м3 воздуха в час- это ничего -себе шум. Т.Е. помещение с воздуховодами должно быть очень хорошо звукоизолировано , или не для постоянного проживания ( а повороты будут создавать завихрения,т.е. дополнительный шум). И это для ТН мощностью 26 кВт который будет в доме 300-350 м2. Посилання на коментар Поділитися на інших сайтах More sharing options...
may3ep Опубліковано: 5 листопада 2012 Поділитись Опубліковано: 5 листопада 2012 По документации 725*725 мм что подразумевает круглый 725, или эквивалентный ему прямоугольный. 8000 м3 воздуха в час- это ничего -себе шум "ничего себе" это в каких единицах измерения? а если серъезно то с чего вы взяли что уровень шума будет повышенным? прежде чем высказывать импульсивные мысли попробуйте немного посчитать. и должен сказать что шум будет в пределах нормы Посилання на коментар Поділитися на інших сайтах More sharing options...
REYDER Опубліковано: 5 листопада 2012 Поділитись Опубліковано: 5 листопада 2012 должен сказать что шум будет в пределах нормы 100% и не от воздуха, а больше от компрессора и вентилятора испарителя. 1 Посилання на коментар Поділитися на інших сайтах More sharing options...
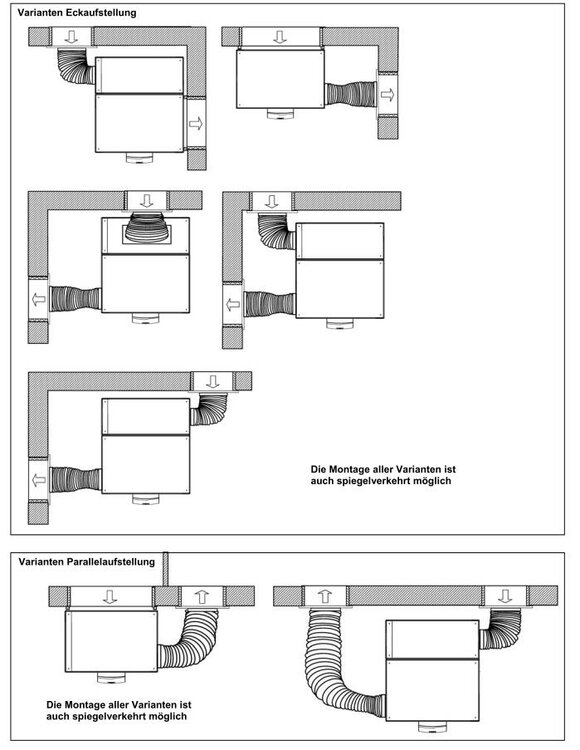
ekoteplo Опубліковано: 5 листопада 2012 Поділитись Опубліковано: 5 листопада 2012 Вот возможные варианты установки швейцарского агрегата при внутреннем монтаже. И, должен сказать, к уровню шума они относятся ну очень придирчиво, по факту тепловой насос практически не слышно (заявленные цифры на расстоянии 10м - 36дБ, на расстоянии 3м - 50дБ). 2 Посилання на коментар Поділитися на інших сайтах More sharing options...
beni Опубліковано: 10 листопада 2012 Поділитись Опубліковано: 10 листопада 2012 А почему именно не Zubadan? Посилання на коментар Поділитися на інших сайтах More sharing options...
REYDER Опубліковано: 10 листопада 2012 Поділитись Опубліковано: 10 листопада 2012 (заявленные цифры на расстоянии 10м - 36дБ, на расстоянии 3м - 50дБ вы не ошиблись в дБ? 50 дБ - это "трактор" его будет слышно на весь дом. Посилання на коментар Поділитися на інших сайтах More sharing options...
dneprstab Опубліковано: 10 листопада 2012 Поділитись Опубліковано: 10 листопада 2012 вы не ошиблись в дБ? 50 дБ - это "трактор" его будет слышно на весь дом. может там наушники-шумодавы в комлекте Посилання на коментар Поділитися на інших сайтах More sharing options...
Анатолий62 Опубліковано: 12 листопада 2012 Автор Поділитись Опубліковано: 12 листопада 2012 вы не ошиблись в дБ? 50 дБ - это "трактор" его будет слышно на весь дом. Да нет..50дБ " Общепринятый" показатель шумности. Посилання на коментар Поділитися на інших сайтах More sharing options...
REYDER Опубліковано: 12 листопада 2012 Поділитись Опубліковано: 12 листопада 2012 Да нет..50дБ " Общепринятый" показатель шумности. вы в понимании 50 дБ? может и у вас это "Общепринятый" но по нормам это БОЛЬШОЙ шум! Может вы перепутали наружное и вн. исполнение? Посилання на коментар Поділитися на інших сайтах More sharing options...
Владимир Климат Опубліковано: 12 листопада 2012 Поділитись Опубліковано: 12 листопада 2012 Да нет..50дБ " Общепринятый" показатель шумности. "Общепринятый" - не зря взяли в кавычки :D Посилання на коментар Поділитися на інших сайтах More sharing options...
Анатолий62 Опубліковано: 12 листопада 2012 Автор Поділитись Опубліковано: 12 листопада 2012 "Общепринятый" - не зря взяли в кавычки www.all-generator.ru/text/sound.shtml Укладываеться в европейские нормы в 55дБ для офиса класса "А". Добавлено через 13 минут вы в понимании 50 дБ? Да. В понимании. Большая часть газовых котлов шумит от 45 до 60дб. Их слышно" на весь дом"? И естественно исполнение данного типа ТН не можно сравнить с "внутряком" кондишена. Посилання на коментар Поділитися на інших сайтах More sharing options...
REYDER Опубліковано: 12 листопада 2012 Поділитись Опубліковано: 12 листопада 2012 Укладываеться в европейские нормы в 55дБ для офиса класса "А". ссылку на DIN пожалуйста, инфографика не катит. 55 дБ в помещении - это ОЧЕНЬ громко! Посилання на коментар Поділитися на інших сайтах More sharing options...
Анатолий62 Опубліковано: 12 листопада 2012 Автор Поділитись Опубліковано: 12 листопада 2012 ссылку на DIN пожалуйста, инфографика не катит. 55 дБ в помещении - это ОЧЕНЬ громко! Не вопрос. САНпин подойдёт? document.ua/sanitarnye-normy-dopustimogo-shuma-v-pomeshenijah-zhilyh-i-o-nor9937.html И что видим? 50дБ- максимально допустимый уровень шума в больничной палате в дневное время. 1 Посилання на коментар Поділитися на інших сайтах More sharing options...
Владимир Климат Опубліковано: 12 листопада 2012 Поділитись Опубліковано: 12 листопада 2012 Не вопрос. САНпин подойдёт? document.ua/sanitarnye-normy-dopustimogo-shuma-v-pomeshenijah-zhilyh-i-o-nor9937.html И что видим? 50дБ- максимально допустимый уровень шума в больничной палате в дневное время. Не хотел бы я быть в этой палате. Ну, днём ещё хрен с ним, много и других источников шума. А ночью? Ночью на насос нагрузка возрастает с понижением температуры. Да и наши люди не упустят шанс попользоваться "ночным тарифом"... Посилання на коментар Поділитися на інших сайтах More sharing options...
Рекомендовані повідомлення
Створіть акаунт або увійдіть у нього для коментування
Ви маєте бути користувачем, щоб залишити коментар
Створити акаунт
Зареєструйтеся для отримання акаунта. Це просто!
Зареєструвати акаунтУвійти
Вже зареєстровані? Увійдіть тут.
Увійти зараз