Natalita Опубліковано: 22 грудня 2013 Автор Поділитись Опубліковано: 22 грудня 2013 Несколько свежих фото 4 Посилання на коментар Поділитися на інших сайтах More sharing options...
Natalita Опубліковано: 27 грудня 2013 Автор Поділитись Опубліковано: 27 грудня 2013 Наконец-то нам закончили крышу,теперь могу выложить смету по крыше дерево на стропилку-15000гр гидробаръер стротекс110-960гр метал-280м.кв по 65гр=18200гр,+комплектующие 11000гр софит золотой дуб-6500гр водосточка Profil-5800гр аэраторы 2шт Wirplast-900гр колпаки на дымоходы-1650гр работа по крыше получилась(стропила,метал,коньки,водосточка,софит,аэраторы,дымоходы)-30000гр +мелкие расходы 2000гр итого 92000гр 4 Посилання на коментар Поділитися на інших сайтах More sharing options...
Natalita Опубліковано: 27 грудня 2013 Автор Поділитись Опубліковано: 27 грудня 2013 Покажу несколько фото заливки балкона Посилання на коментар Поділитися на інших сайтах More sharing options...
Sumchanka Опубліковано: 27 грудня 2013 Поділитись Опубліковано: 27 грудня 2013 итого 92000гр У нас примерно также получается, только подшива - металл + утеплитель и работа по нему. Добавлено через 1 минуту Ой, смотрю у Вас сейчас зелень... или это фото более ранее? Посилання на коментар Поділитися на інших сайтах More sharing options...
Natalita Опубліковано: 28 грудня 2013 Автор Поділитись Опубліковано: 28 грудня 2013 Ой, смотрю у Вас сейчас зелень... или это фото более ранее? Да нет это фото летом Добавлено через 6 минут У нас примерно также получается, только подшива - металл + утеплитель и работа по нему. честно сказать думала что все это мероприятие будет стоить дешевле,когда подсчитала была в легком шоке.Хорошо что выбрали метал а то если бы керамику выбрали то вообще выпала бы в осадок. 1 Посилання на коментар Поділитися на інших сайтах More sharing options...
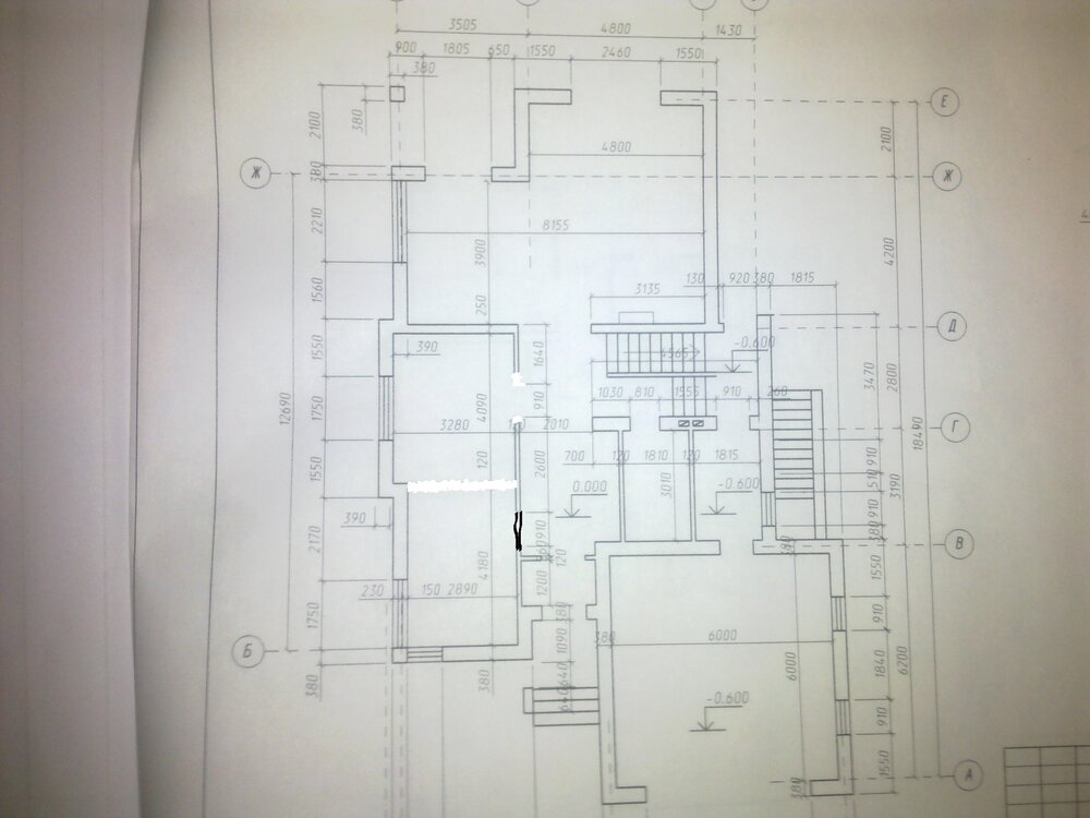
Natalita Опубліковано: 10 січня 2014 Автор Поділитись Опубліковано: 10 січня 2014 немного изменили планировку на первом этаже,решили отказаться от гостевой комнаты в пользу кухни Посилання на коментар Поділитися на інших сайтах More sharing options...
Sumchanka Опубліковано: 10 січня 2014 Поділитись Опубліковано: 10 січня 2014 То есть , там где у Вас было гостевая будет кухня? да? если так- там есть все для нее- каналы, и т.д...? Посилання на коментар Поділитися на інших сайтах More sharing options...
Natalita Опубліковано: 10 січня 2014 Автор Поділитись Опубліковано: 10 січня 2014 о поправила фото ,будет вот так,да вентканалы есть,решили сделать кухню и столовую вместе Посилання на коментар Поділитися на інших сайтах More sharing options...
Natalita Опубліковано: 10 січня 2014 Автор Поділитись Опубліковано: 10 січня 2014 на втором этаже тоже кое что изменили из 2 комнат сделали одну большую спальню,и там же замуровали маленькое окошко 1 Посилання на коментар Поділитися на інших сайтах More sharing options...
Linelka Опубліковано: 10 січня 2014 Поділитись Опубліковано: 10 січня 2014 Мы тоже стены двигали уже в процессе стройки...))) Посилання на коментар Поділитися на інших сайтах More sharing options...
Sumchanka Опубліковано: 11 січня 2014 Поділитись Опубліковано: 11 січня 2014 решили сделать кухню и столовую вместе у нас сразу делали кухню-столовую вместе, но будет зонирована скорее всего (потом) раздвижными дверями из дерева и стекла(задача-отсечь запахи при готовке и рабочую зону(ее хаос) при праздниствах) Посилання на коментар Поділитися на інших сайтах More sharing options...
Natalita Опубліковано: 11 січня 2014 Автор Поділитись Опубліковано: 11 січня 2014 теперь не могу определиться с кокой стороны делать кухню и с какой столовую,помогите пожалуйста советом Посилання на коментар Поділитися на інших сайтах More sharing options...
sergo77 Опубліковано: 13 січня 2014 Поділитись Опубліковано: 13 січня 2014 теперь не могу определиться с кокой стороны делать кухню и с какой столовую,помогите пожалуйста советом Я бы предложил оставить дверь, и в нижней комнате с угловым окном сделать кухню (ближе к входу в дом), а столовую соответственно выше и ближе к гостиной. Посилання на коментар Поділитися на інших сайтах More sharing options...
Sumchanka Опубліковано: 14 січня 2014 Поділитись Опубліковано: 14 січня 2014 Я бы предложил оставить дверь, и в нижней комнате с угловым окном сделать кухню (ближе к входу в дом), а столовую соответственно выше и ближе к гостиной. Поддерживаю. Так и у нас располагается кухня и столовая. Дверь,вернее проем, у нас тоже есть-он будет оставаться-дверь сплошная не планируется- в дальнейшем предполагается что-то типа салунной... Как для себя-удобней в кухню попадать сразу с коридора, а не с комнаты, пусть даже это столовая(представьте как Вы заходите с сумками, пакетами и попадаете на кухню...) Да и переход : столовая-гостинная - логичней и удобней. Но выбор за Вами! 1 Посилання на коментар Поділитися на інших сайтах More sharing options...
Natalita Опубліковано: 14 січня 2014 Автор Поділитись Опубліковано: 14 січня 2014 Sumchanka, скажите пожалуйста а Вы уже электро проводку делали,если да то какой кабель брали Посилання на коментар Поділитися на інших сайтах More sharing options...
Sumchanka Опубліковано: 14 січня 2014 Поділитись Опубліковано: 14 січня 2014 Вы уже электро проводку делали... Natalita, пока нет. 5-й месяц воюю с Облэнерго(хоть и люди знакомые есть,но там недавно смена власти была, каждый дорожит своим местом и особо пока не "наглеет"...)- мы не можем подключить свет- то у них нет столбов(а нам один нужен), то одного из автоматов, то натяжного тросса, а на предложение все это купить самим и включить в договор- ответ нельзя, намекала на доп.доход-не помогает... Да и делать такие работы нужно при закрытом периметре, а у меня еще три окна не установлены- доделывается часть узла крыши... Хочу окончательно крышников выпроводить, а потом заниматься с ребятами отдельно разводкой кабелей, подготовкой и разводкой коммуникаций, подключением газа По кабелю пока не определились, изучаю отзывы форумчан по данному вопросу, прислушиваюсь что наши предлагают. Посилання на коментар Поділитися на інших сайтах More sharing options...
Natalita Опубліковано: 29 січня 2014 Автор Поділитись Опубліковано: 29 січня 2014 Дорогие форумчане помогите какой пирог пола лучше сделать.От нулевой отметки углубились на 30см.Что делать дальше?Хотим теплый пол по всему первому этажу. Посилання на коментар Поділитися на інших сайтах More sharing options...
YuV Опубліковано: 14 лютого 2014 Поділитись Опубліковано: 14 лютого 2014 Natalita, Интересная темка, как я раньше не замечал... Земляков не так уж много на форуме... Кстати, где строитесь, а то фото не распознал? А вообще буду следить - продолжайте... 1 Посилання на коментар Поділитися на інших сайтах More sharing options...
Natalita Опубліковано: 14 лютого 2014 Автор Поділитись Опубліковано: 14 лютого 2014 Строимся по Западно окружной есть Костел,за ним котеджи Укрстандарта и за котеджами есть новый массив 1 Посилання на коментар Поділитися на інших сайтах More sharing options...
YuV Опубліковано: 14 лютого 2014 Поділитись Опубліковано: 14 лютого 2014 Строимся по Западно окружной есть Костел,за ним котеджи Укрстандарта и за котеджами есть новый массив По чем там участки? Посилання на коментар Поділитися на інших сайтах More sharing options...
Natalita Опубліковано: 14 лютого 2014 Автор Поділитись Опубліковано: 14 лютого 2014 От 10000$ до 20000$за 10 соток, есть и 5-7 тыс$ но там нет еще дороги далеко в поле Посилання на коментар Поділитися на інших сайтах More sharing options...
YuV Опубліковано: 15 лютого 2014 Поділитись Опубліковано: 15 лютого 2014 От 10000$ до 20000$за 10 соток, есть и 5-7 тыс$ но там нет еще дороги далеко в поле Дороговато как для такого места... ИМХО Посилання на коментар Поділитися на інших сайтах More sharing options...
Natalita Опубліковано: 15 лютого 2014 Автор Поділитись Опубліковано: 15 лютого 2014 Дороговато как для такого места... ИМХО __________________ ой зря Вы так,место у нас даже лучше чем на Катионе,и были у друзей в центре возле панського маетка так там вообще дороги нет а у нас почти к самому участку дорога,столбы с уличным осветлением,вид на город,тишина,приезжайте посмотрите,уверена влюбитесь в это место Посилання на коментар Поділитися на інших сайтах More sharing options...
kruchenik Опубліковано: 15 лютого 2014 Поділитись Опубліковано: 15 лютого 2014 (змінено) Наконец-то нам закончили крышу,теперь могу выложить смету по крыше аэраторы 2шт Wirplast-900гр по 450 грн. за штуку??? это в Польше такие клевые цены? или они неутепленные? утеплять будете? чем и кем? у вас работа по кровле вышла чуть больше 100 грн за 1 кв.м.? утеплять фасад будете? мне вот нагрузили, что поддашек подшивать лучше после пенопласта на фасад, так ли это? а окна те что высокие и тройные - они открывные или глухие? какая высота у них получилась? белые внутри - цветные снаружи, ламинация односторонняя? почему так решили? я конечно не местный, но Хмельницкий часто объезжал из Тернополя - Житомир или Винницу, у вас там на западе по объездной ничего так домики строят... сорри за допрос. Змінено 15 лютого 2014 користувачем kruchenik Посилання на коментар Поділитися на інших сайтах More sharing options...
Natalita Опубліковано: 15 лютого 2014 Автор Поділитись Опубліковано: 15 лютого 2014 по 450 грн. за штуку??? где такое можно купить по такой цене? утеплять будете? чем и кем? да 450гр за штуку привозили ребята с Польши,мы у них заказывали метал на крышу,водосточку и софит,они из Тернополя,а Вам надо?могу у них спросить или могут еще привезти Добавлено через 6 минут утеплять будете? чем и кем? Вы имеете ввиду или будем утеплять чердак?будем но не решили чем,у нас холодный чердак,утеплим панели и усё Добавлено через 56 минут работа по кровле 95гр это стропила,гидроизоляция,метал 35гр м.п поддашек 30гр м.п водосточка решили подбивать сейчас а какая разница когда,потом труднее кого то найти на эту работу, сделали все за 5 дней за леса заплатили 50гр день окна у нас открываются все,высота 1.9м да ламинация только с одной стороны,середина белая,так как на мой взгляд потом тяжело подобрать дизайн комнат если окна в ламинации Да домики у нас ничего,у нас же рынок один из самых больших в Украине торгующий оптом.Деньги у людей водятся Добавлено через 3 минуты аэраторы не утепленные,так у нас в магазинах такие по 800-900гр за шт,а утепленные вообще под 2000гр стоят Посилання на коментар Поділитися на інших сайтах More sharing options...
Рекомендовані повідомлення
Створіть акаунт або увійдіть у нього для коментування
Ви маєте бути користувачем, щоб залишити коментар
Створити акаунт
Зареєструйтеся для отримання акаунта. Це просто!
Зареєструвати акаунтУвійти
Вже зареєстровані? Увійдіть тут.
Увійти зараз