Александр с Донецка Опубліковано: 5 січня 2013 Поділитись Опубліковано: 5 січня 2013 т.е. Вы считаете что осадка здания произошла от перепада температуры?канадцы с их десятилетней строительной технологией - лохи Ну почему сразу лохи, у них и топоры знатные и бензопилы Факт в том что сыграла стена, по отношению к внутренним, перпендикулярно стоящим, кто там лохи разберется хозяин при вскрытии, а вскрывать придется, скорее всего наружную часть. Но то что не фундамент там виной, а оплошность в стене больше вериться. Добавлено через 6 минут Материалы разные и стык кирпич-каркас (в том виде, как на фото) треснул бы, ИМХО, по-любому. В корень зрите ;) Посилання на коментар Поділитися на інших сайтах More sharing options...
Stanitskii Опубліковано: 5 січня 2013 Поділитись Опубліковано: 5 січня 2013 Думаю осадки небыло, а Александр имел ввиду изменение размера дерева при изменении климата (влажности/температуры). Материалы разные и стык кирпич-каркас (в том виде, как на фото) треснул бы, ИМХО, по-любому. стык треснул бы однозначно,только из-за того,что профильной системы нет,гипс прикреплён тупо на каркас несущей стены,помним что каркасная усадка 8см в течении двух лет,а стыковка гипа со стеной отдельно живущей осуществлена только примыканием сыпучих материалов,оконный проём выполнен без соблюдения норм каркасного строения,здесь эффект моста холода и действительно промерзание каркаса,но прямое,которое можно было избежать,но не посредством игры с толщинами.....лично моё мнение. Посилання на коментар Поділитися на інших сайтах More sharing options...
sov1178 Опубліковано: 5 січня 2013 Поділитись Опубліковано: 5 січня 2013 стык треснул бы однозначно,только из-за того,что профильной системы нет,гипс прикреплён тупо на каркас несущей стены,помним что каркасная усадка 8см в течении двух лет 8см - кто Вам такое сказал ? Это же не сруб - нет такой усадки в каркаснике - усадка может быть только за счет обвязок. Если каркас из сухой доски (или уже высох), ИМХО, можно и по стойкам (за океанами делают и ничего у них не трещит, я вот у себя попробую - потом расскажу :D). а стыковка гипа со стеной отдельно живущей осуществлена только примыканием сыпучих материалов... Это да Посилання на коментар Поділитися на інших сайтах More sharing options...
Александр с Донецка Опубліковано: 5 січня 2013 Поділитись Опубліковано: 5 січня 2013 Гипсокартон у него сидит на своем мет.каркасе, если бы там был бок, трещало бы усе. А то что наружный каркас не имеет общего внутреннего конструктива, те простенки отдельные от наружных стен это видеться на тех же фото в 17 посте, если мне не изменяет зрение, там только наружный каркас. Где тонко там и рвется Добавлено через 13 минут Хотя на тех фото где внутренняя обшивка стен, если это тоже окно что и на фото с трещинами. То там скорее всего простенок сан узла с метпрофиля, который не играет как играет каркас. Потому что стена отдельная не завязанная на основном конструктиве тем же каркасом. Вот и трещит живя своей железной жизнью в деревянном окружении. И именно на стыке, дерева и металла и идет трещина. Посилання на коментар Поділитися на інших сайтах More sharing options...
Stanitskii Опубліковано: 5 січня 2013 Поділитись Опубліковано: 5 січня 2013 8см - кто Вам такое сказал ? Это же не сруб - нет такой усадки в каркаснике - усадка может быть только за счет обвязок. Если каркас из сухой доски (или уже высох), ИМХО, можно и по стойкам (за океанами делают и ничего у них не трещит, я вот у себя попробую - потом расскажу :D). Это да усадка сруба до 15см за три года......тема усадка зданий и деревянных конструкций.....каркасное строение до 8см Добавлено через 1 минуту Гипсокартон у него сидит на своем мет.каркасе, если бы там был бок, трещало бы усе. А то что наружный каркас не имеет общего внутреннего конструктива, те простенки отдельные от наружных стен это видеться на тех же фото в 17 посте, если мне не изменяет зрение, там только наружный каркас. Где тонко там и рвется Добавлено через 13 минут Хотя на тех фото где внутренняя обшивка стен, если это тоже окно что и на фото с трещинами. То там скорее всего простенок сан узла с метпрофиля, который не играет как играет каркас. Потому что стена отдельная не завязанная на основном конструктиве тем же каркасом. Вот и трещит живя своей железной жизнью в деревянном окружении. И именно на стыке, дерева и металла и идет трещина. да в том то и дело,что пост 17,гипсокартон и т.д Посилання на коментар Поділитися на інших сайтах More sharing options...
sov1178 Опубліковано: 5 січня 2013 Поділитись Опубліковано: 5 січня 2013 каркасное строение до 8см Где такой бред пишут? У меня каркасное строение. Высота этажа как была 2720 на первом и 2570 на втором, так и осталась. Объясните как дерево может усохнуть вдоль волокон на 8см (на длине 3м)? Или, если вдоль не усыхает, то как три доски по 45мм толщиной каждая могут усохнуть в сумме на 8см поперек волокон? 1 Посилання на коментар Поділитися на інших сайтах More sharing options...
Александр с Донецка Опубліковано: 5 січня 2013 Поділитись Опубліковано: 5 січня 2013 да в том то и дело,что пост 17,гипсокартон и т.д Ну, порой руки не ведают, что творят ;) Я читал, что там написано. А по фото ниже увидел, что топикстартер просто видно не в курсе, что и как, хотя не факт, что я прав и там действительно, под окном гипс закрепили на контррейку, а не так как на стене сан узла, где выходят с пола трубы сотка и пятидесятка и по стенам разложен под монтаж метпрофиль. Я говорю о посте 19. Хотя если присмотреться повнимательнее к конструктиву, то вопросов становиться больше чем ответов. И наводит на рассуждение вслух: На брус 150*50, в который уложено 150мм утеплителя, нашит гидробарьер, но почему то он нашит поперек брусов, стык гидробарьера не проклеен, те доступ влаги в утеплитель открыт. Так же контррейка нашита поперек бруса. А крепеж П пэшки крепятся к контррейке, и судя по всему еще и дырявят длиной шурупов гидробарьер, наврят они(шурупы) брались 1см или чуть меньше толщины самой контрейки. И вопрос какая жесткость может быть крепления гипсокартона, когда стена на таком крепеже контррейки будет играть. Те там метпрофиль должен был нашиваться поперек бруса, как пришита контррейка, а контррейка по самому брусу. И гидробарьер так же должен был нашиваться по брусу, а контррейка должна была быть замком для влаги и то после скотча. Те там боков в самом конструктиве так же может быть не мало. Конечно может я ошибаюсь и мои глаза не видят правильно ;) Посилання на коментар Поділитися на інших сайтах More sharing options...
Stanitskii Опубліковано: 5 січня 2013 Поділитись Опубліковано: 5 січня 2013 Где такой бред пишут? У меня каркасное строение. Высота этажа как была 2720 на первом и 2570 на втором, так и осталась. Объясните как дерево может усохнуть вдоль волокон на 8см (на длине 3м)? Или, если вдоль не усыхает, то как три доски по 45мм толщиной каждая могут усохнуть в сумме на 8см поперек волокон? я даже не хочу начинать спорить на эту тему.....только скажу одно,что Вы берёте отдельно стоящую стойку,а не учитываете каркас полностью....тю,та взять эту же тему дискуссии,трещина под окном пошла от чего,если каркасник по-вашему жесткое строение? Посилання на коментар Поділитися на інших сайтах More sharing options...
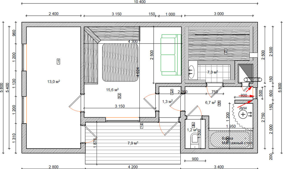
magicoctober Опубліковано: 5 січня 2013 Автор Поділитись Опубліковано: 5 січня 2013 На всех фото речь идет об одном и том же окне. Изображу на плане красными стрелками места трещин с фото в сообщении 1. На фото в сообщениях 17 и 19 простенка еще нет. Сам план не до конца актуален, так как в момент когда уже были вырыты канавы под фундамент сосед устроил истерику что одного метра от забора ему мало и я ему загораживаю солнце. Пришлось отступить еще на метр и пожертвовать ванной(со стороны входа я уже уприался в дерево которое не хотел рубить). Фактически простенок душкабины и дверь туалета находятся сейчас в одной плоскости Посилання на коментар Поділитися на інших сайтах More sharing options...
Александр с Донецка Опубліковано: 5 січня 2013 Поділитись Опубліковано: 5 січня 2013 magicoctober, а простенки с чего? Посилання на коментар Поділитися на інших сайтах More sharing options...
magicoctober Опубліковано: 5 січня 2013 Автор Поділитись Опубліковано: 5 січня 2013 Простенок из гипсокартона на профиле, обложен плиткой с двух сторон. Забавно, что не нашел у себя на компе фоток которые делал когдато давно, но нашел их в вашей теме про баню: 1 Посилання на коментар Поділитися на інших сайтах More sharing options...
Александр с Донецка Опубліковано: 5 січня 2013 Поділитись Опубліковано: 5 січня 2013 Да, вижу знакомый паровоз и парилка знакомая :D Добавлено через 8 минут Все таки видеться мне проблемка, что металлокаркас либо сыграл на контррейке и получился разрыв в стыке именно в углу,где санузел. А там где парилка, нужно делать типа стенового плинтуса, жестко крепить к каркасу и щели не будет видно. Тк каркас играет в отношении кирпичной стены и еще сама кирпичная стена нагревается и остывает, те имеет свое движение по отношению к каркасу, вот и происходит там разрыв. А средина под окном, может как раз была демпферном игр, металла с деревом и кирпича с деревом. Посилання на коментар Поділитися на інших сайтах More sharing options...
magicoctober Опубліковано: 5 січня 2013 Автор Поділитись Опубліковано: 5 січня 2013 на стене где установлено окно металоконструкции под гипсом нет вовсе до самого угла дома(ГКЛ прикручен прямо на рейку), это хорошо видно на фото в сообщении 19. Основная версия - повело брусы каракаса в разные стороны из-за чего сломалась плитка. Крипич и простенок санузла отъехали самостоятельно, так как особо не скреплены с каркасом. Сейчес заделаю угловые щели эластичным герметиком. Ту терщину, что под окном оставлю пока. С приходом тепла планирую разобрать внешнюю стену и укрепить брусы, возможно дополнительно теплоизолировать печь от стены. Посилання на коментар Поділитися на інших сайтах More sharing options...
rul.32 Опубліковано: 5 січня 2013 Поділитись Опубліковано: 5 січня 2013 Ну, порой руки не ведают, что творят ;) Я читал, что там написано. А по фото ниже увидел, что топикстартер просто видно не в курсе, что и как, хотя не факт, что я прав и там действительно, под окном гипс закрепили на контррейку, а не так как на стене сан узла, где выходят с пола трубы сотка и пятидесятка и по стенам разложен под монтаж метпрофиль. Я говорю о посте 19. Хотя если присмотреться повнимательнее к конструктиву, то вопросов становиться больше чем ответов. И наводит на рассуждение вслух: На брус 150*50, в который уложено 150мм утеплителя, нашит гидробарьер, но почему то он нашит поперек брусов, стык гидробарьера не проклеен, те доступ влаги в утеплитель открыт. Так же контррейка нашита поперек бруса. А крепеж П пэшки крепятся к контррейке, и судя по всему еще и дырявят длиной шурупов гидробарьер, наврят они(шурупы) брались 1см или чуть меньше толщины самой контрейки. И вопрос какая жесткость может быть крепления гипсокартона, когда стена на таком крепеже контррейки будет играть. Те там метпрофиль должен был нашиваться поперек бруса, как пришита контррейка, а контррейка по самому брусу. И гидробарьер так же должен был нашиваться по брусу, а контррейка должна была быть замком для влаги и то после скотча. Те там боков в самом конструктиве так же может быть не мало. Конечно может я ошибаюсь и мои глаза не видят правильно ;) На фото очень четко видно,что паробаръер проклелеян лентой к2,а с наружи ветрозащита, которую клеить не надо.Весь пирог сделан правильно.Чтоб полностью было понятно,делал его я.И сегодня был на объекте и пытался определить причину.Пока понял только,что повело 2-3 бруса в районе трещины.Почему повело пока не понял,но то что нужно усилить этот узел,это понятно всем.Существенную снеговую нагрузку то же не брал во внимание,потому как это фронтонная стена и на нее нагрузка минимальная.Укосины есть по всем 6-ти углам и по центральной несущей стене.Фундамент ленточного типа на столбах 300*300*1000 с пяткой 500*500*100.Под печь в 50-ти см. от трещины сделана тумба из бетона приблизительно 1000*1000*1000.Пока не сплю задавайте вопросы. Посилання на коментар Поділитися на інших сайтах More sharing options...
Александр с Донецка Опубліковано: 5 січня 2013 Поділитись Опубліковано: 5 січня 2013 Руслан, а чего так контрреку крепили? И почему так паробарьер крепили, без замков, тк на долгую жизнь липкости ленты расчивать не приходиться, или есть опыт что она(липкая лента) простояла долго и надежно? Так же вопрос по крепежу П пэшек ведь они шире 50го бруса те крепеж только на рейке, не страшно что хлипкий конструктив? Посилання на коментар Поділитися на інших сайтах More sharing options...
sov1178 Опубліковано: 5 січня 2013 Поділитись Опубліковано: 5 січня 2013 ...скажу одно,что Вы берёте отдельно стоящую стойку,а не учитываете каркас полностью... Скажу только одно - каркас Вы никогда не строили, поэтому он у Вас на 8см и усыхает. Спорить тоже не хочу. 1 Посилання на коментар Поділитися на інших сайтах More sharing options...
magicoctober Опубліковано: 5 січня 2013 Автор Поділитись Опубліковано: 5 січня 2013 А я,увидев это фото,все более склоняюсь к мысли,что это все-таки фундамент под топкой с дымоходом "безобразничает" -давление на грунт под ним в десятки раз больше,чем под каркасом... никак невозможно - вес печи с камнями 300-400 кг, простенок в пол кирпича пусть еще 400 кг, дымоход в сборе весит не более 50 кг. А теперь посмотрите на фото фундамента - ростверк 300х400 на столбах метровой глубины 300х300, пятка столбов 500х500. На полу грунт пролит и утрамбован несколько раз после чего на 12 араматуру залито 10-15 см раствора. Вся эта конструкция весит в разы больше печки не говоря уже о самом каркасе, обшивке и крыше. Посилання на коментар Поділитися на інших сайтах More sharing options...
rul.32 Опубліковано: 5 січня 2013 Поділитись Опубліковано: 5 січня 2013 Руслан, а чего так контрреку крепили? И почему так паробарьер крепили, без замков, тк на долгую жизнь липкости ленты расчивать не приходиться, или есть опыт что она(липкая лента) простояла долго и надежно? Так же вопрос по крепежу П пэшек ведь они шире 50го бруса те крепеж только на рейке, не страшно что хлипкий конструктив? П-эшки еще и в центральной части крепятся(по крайней мере я так делаю) По ленте у меня даже мыслей не было что она может отклеятся,думаю она прослужит долго.Да и нахлест там приличный,что немаловажно на СТЕНЕ. Посилання на коментар Поділитися на інших сайтах More sharing options...
magicoctober Опубліковано: 5 січня 2013 Автор Поділитись Опубліковано: 5 січня 2013 планировал Руслану позвонить попозже. Все равно сейчас делать ничего не хочу пока холодно и вода стоит в трубах, но он сам позвонил и приехал увидев тему.:D 1 Посилання на коментар Поділитися на інших сайтах More sharing options...
Александр с Донецка Опубліковано: 5 січня 2013 Поділитись Опубліковано: 5 січня 2013 П-эшки еще и в центральной части крепятся(по крайней мере я так делаю) На сколько помниться конструктив самой П пэшки там технологическая прорезь штамповка, те шуруп один с большой шляпкой или шайбой, длинный в брус и двумя коротышами в 1см по бокам, что бы не продырявить гидробарьер. Ну как то не совсем серьезно, как на мой извращенный вкус. По ленте у меня даже мыслей не было что она может отклеятся,думаю она прослужит долго.Да и нахлест там приличный,что немаловажно на СТЕНЕ. Когда разбирал существующие парилки, там скотчи просто приклееные висели больше для отчетности, что они там клеелись, те увы не держали ничего. Ну а про остальное, покажет наверное вскрытие, если конечно выложите, в чем соль была ;) Добавлено через 7 минут И еще вопрос к Руслану, на который он так и не ответил. Почему контррейки шьете поперек каркаса, в чем прикол такого крепления. Ведь рейка находиться во влажной среде и ее крепление пусть даже через 600мм точками, будет ее постоянно коробить, зачем она тогда нужна, не проще в таком случае подкладухи под П пэшки ставить или там от погоножа зависело, а как не важно? Посилання на коментар Поділитися на інших сайтах More sharing options...
rul.32 Опубліковано: 5 січня 2013 Поділитись Опубліковано: 5 січня 2013 На сколько помниться конструктив самой П пэшки там технологическая прорезь штамповка, те шуруп один с большой шляпкой или шайбой, длинный в брус и двумя коротышами в 1см по бокам, что бы не продырявить гидробарьер. Ну как то не совсем серьезно, как на мой извращенный вкус. Когда разбирал существующие парилки, там скотчи просто приклееные висели больше для отчетности, что они там клеелись, те увы не держали ничего. Ну а про остальное, покажет наверное вскрытие, если конечно выложите, в чем соль была ;) Я же писал не скотч а к2(это разные вещи)А по креплению скобы,вы попробуйте оторвать даже 10мм саморезы,не говоря уже о 50мм и 2 по 20мм Не я такую критику не принимаю Посилання на коментар Поділитися на інших сайтах More sharing options...
Александр с Донецка Опубліковано: 5 січня 2013 Поділитись Опубліковано: 5 січня 2013 Не я такую критику не принимаю Какая критика? Мне просто интересно, как это все работает Ели я правильно понял К2 это не имя пса из фильма про полицейского, а название двухсторонней липкой ленты или двухстороннего скотча или что то другое на строительном жаргоне, досели мне неизвестное? Посилання на коментар Поділитися на інших сайтах More sharing options...
rul.32 Опубліковано: 5 січня 2013 Поділитись Опубліковано: 5 січня 2013 На сколько помниться конструктив самой П пэшки там технологическая прорезь штамповка, те шуруп один с большой шляпкой или шайбой, длинный в брус и двумя коротышами в 1см по бокам, что бы не продырявить гидробарьер. Ну как то не совсем серьезно, как на мой извращенный вкус. Когда разбирал существующие парилки, там скотчи просто приклееные висели больше для отчетности, что они там клеелись, те увы не держали ничего. Ну а про остальное, покажет наверное вскрытие, если конечно выложите, в чем соль была ;) Добавлено через 7 минут И еще вопрос к Руслану, на который он так и не ответил. Почему контррейки шьете поперек каркаса, в чем прикол такого крепления. Ведь рейка находиться во влажной среде и ее крепление пусть даже через 600мм точками, будет ее постоянно коробить, зачем она тогда нужна, не проще в таком случае подкладухи под П пэшки ставить или там от погоножа зависело, а как не важно? Все мои проэкты практически индивидуальны(не ну конечно есть нормы,правила)и главное в них здравый смысл.Только я не пойму о чем Вы.Почему рейку должно крутить,если она через каждые 15см прикручена к гипсу.А если она между профилем и каркасом ,то ее тем более не покрутит.Понимаете,вся конструкция очень крепко связана между собой и напряжения в дереве такого сечения не способно конкурировать с прочностью системы(во навернул:D) Посилання на коментар Поділитися на інших сайтах More sharing options...
Александр с Донецка Опубліковано: 5 січня 2013 Поділитись Опубліковано: 5 січня 2013 (во навернул:D) Спасибо. Я понял, что это Ваш индивидуальный подход к делу, вопросов больше не имею. Разве что про К2 остался открытым ;) Посилання на коментар Поділитися на інших сайтах More sharing options...
rul.32 Опубліковано: 5 січня 2013 Поділитись Опубліковано: 5 січня 2013 Какая критика? Мне просто интересно, как это все работает Ели я правильно понял К2 это не имя пса из фильма про полицейского, а название двухсторонней липкой ленты или двухстороннего скотча или что то другое на строительном жаргоне, досели мне неизвестное? К2-это бутил-каучуковая двухсторонняя лента,предназначенная для склейки паро-гидробаръеров и еще всякой-разной х... при чем хоть к металлу. Посилання на коментар Поділитися на інших сайтах More sharing options...
Рекомендовані повідомлення
Створіть акаунт або увійдіть у нього для коментування
Ви маєте бути користувачем, щоб залишити коментар
Створити акаунт
Зареєструйтеся для отримання акаунта. Це просто!
Зареєструвати акаунтУвійти
Вже зареєстровані? Увійдіть тут.
Увійти зараз