Перейти до публікації
Пошук в
  • Додатково...
Шукати результати, які містять...
Шукати результати в...

Армпояс - как правильно сделать?

Зигзаг Удачи

Рекомендовані повідомлення

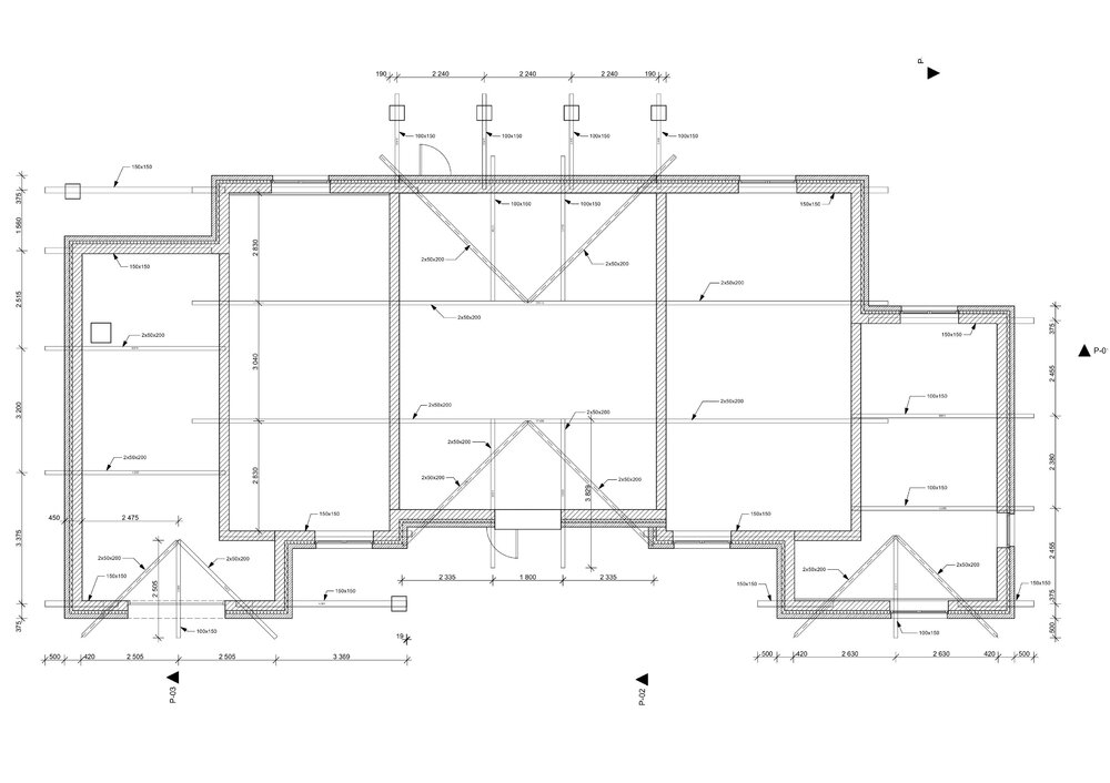
Есть вот такой вот проект одноэтажного дома.

 

Пирог наружных стен - керамический блок(или кирпич 2NF) 250 мм+перлит80 мм+клинкер 120 мм.

Все внутренние стены полнотелый кирпич М100.

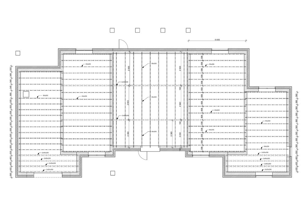
Кровля - керамическая черепица, чердачное перекрытие деревянное.

Фундамент - плита.

 

Зона гостиной выше уровня левой и правой части где-то на 600 мм.

Посоветуйте пожалуйста как правильно сделать армпояс?

Если его делать по уровню более низких помещений, то он попадает на окна в гостиной :(

 

Крутится в голове - сделать армпояс по левой и правой части отдельно, а по гостиной отдельно...

 

Ваше мнение?

1161479128__1.thumb.jpg.f4b745d0bb9cf7fdb50218eef582fb4c.jpg

40998466__1.thumb.jpg.8fb3baa9a752703fce3a30ee6225d395.jpg

1454208009__1.thumb.jpg.a8002db0a39a655555ecdc18b08c24bd.jpg

1485047442__1.thumb.jpg.51acd98778aa5af968d11d149b9b75a8.jpg

Посилання на коментар
Поділитися на інших сайтах

Крутится в голове - сделать армпояс

 

а для каких целей вы его делаете?

 

(или кирпич 2NF) 250 мм+перлит80 мм+клинкер 120 мм.

Все внутренние стены полнотелый кирпич М100.

 

интересно, плита рассчитана под эти материалы?

Посилання на коментар
Поділитися на інших сайтах

а для каких целей вы его делаете?

интересно, плита рассчитана под эти материалы?

Да, как мне кажется, от кровли будут значительные распирающие усилия.

Считаете, что тут армпояс лишний?

 

Плита мне попала вместе с участком :)

По проекту она, по идее должна, быть как в приложении.

А по факту - трудно судить. Уже видел, что она залита не в тех размерах и ровная, а не уступами, но пока что надеюсь, что внизу она сделана правильно :D

5-1.jpg.4f421b3f277b26992048ec94d965e6d7.jpg

5-2.jpg.9563c718e56971ff2247d8dcbf3925bd.jpg

2053684713_SDOC0104_.thumb.jpg.c13a182eda4c5adaf4f6c5d225bbd820.jpg

Посилання на коментар
Поділитися на інших сайтах

Створіть акаунт або увійдіть у нього для коментування

Ви маєте бути користувачем, щоб залишити коментар

Створити акаунт

Зареєструйтеся для отримання акаунта. Це просто!

Зареєструвати акаунт

Увійти

Вже зареєстровані? Увійдіть тут.

Увійти зараз
×
×
  • Створити...