Нестроитель Опубліковано: 10 лютого 2009 Поділитись Опубліковано: 10 лютого 2009 Летом собираюсь сделать септик своими руками. Грунтовых вод нет поблизости вообще. Где-то на глубине 1,5-2 м грунт переходит в глину. Вход в септик будет где-то на глубине 1м. Объем 12-20кубов. Задум такой: стоки попадая в первую камеру, по закону соединеных сосудов, просачиваясь через окна в простенке, которые засыпаны слоем щебня, попадают во вторую камеру. "Дермецо" же остается плавать в первой камере. Водичку со второй камеры можна использовать для полива тех же газонов?!(имхо). Посоветуйте, товарищи, насколько практична такая идея, для эконом варианта, поскольку денежных ресурсов не есть много... Посилання на коментар Поділитися на інших сайтах More sharing options...
alkul Опубліковано: 10 лютого 2009 Поділитись Опубліковано: 10 лютого 2009 Задум такой: стоки попадая в первую камеру, по закону соединеных сосудов, просачиваясь через окна в простенке, которые засыпаны слоем щебня, попадают во вторую камеру. "Дермецо" же остается плавать в первой камере. Оно не только плавает, но и тонет. Поэтому во вторую камеру отводят воду из толщи воды первой камеры, а не сверху или снизу. IMHO - снизу быстро заилится и перестанет поступать во вторую камеру. Посилання на коментар Поділитися на інших сайтах More sharing options...
Нестроитель Опубліковано: 10 лютого 2009 Автор Поділитись Опубліковано: 10 лютого 2009 Оно не только плавает, но и тонет. Поэтому во вторую камеру отводят воду из толщи воды первой камеры, а не сверху или снизу. IMHO - снизу быстро заилится и перестанет поступать во вторую камеру. Т.е отверстие делать только посредине, а фильтрацию ч/з щебень не делать вооюще(или паралельно то и другое? Посилання на коментар Поділитися на інших сайтах More sharing options...
alkul Опубліковано: 10 лютого 2009 Поділитись Опубліковано: 10 лютого 2009 Т.е отверстие делать только посредине, а фильтрацию ч/з щебень не делать вооюще(или паралельно то и другое? Ну да, поставить колено посередине, или чуть выше. А дно забетонировать, чтоб вода не уходила из первой камеры при малом расходе. Посилання на коментар Поділитися на інших сайтах More sharing options...
Нестроитель Опубліковано: 10 лютого 2009 Автор Поділитись Опубліковано: 10 лютого 2009 Ну да, поставить колено посередине, или чуть выше. А дно забетонировать, чтоб вода не уходила из первой камеры при малом расходе. 1.тогда получается, что пока вторая камера не наполнится выше соединительного отверстия , то плавучие "г...ки" будут перетекать из первой камеры во вторую? Или я неравильно понял роль "колена" 2.Если дно глина? то бетонировать обязательно? Посилання на коментар Поділитися на інших сайтах More sharing options...
alkul Опубліковано: 10 лютого 2009 Поділитись Опубліковано: 10 лютого 2009 1.тогда получается, что пока вторая камера не наполнится выше соединительного отверстия , то плавучие "г...ки" будут перетекать из первой камеры во вторую? Или я неравильно понял роль "колена" 2.Если дно глина? то бетонировать обязательно? Я не совсем корректно про колено посередине высказался, конечно чуть повыше - по верхнему уровню. Вода поступает естественно в нижнюю часть колена - из толши, а уровень ниже отверстия не упадет. Перед вводом в эксплуатацию заполнить первую камеру водой. Тут наглядно: septic.dacha-dom.ru/septic-plan.jpg Посилання на коментар Поділитися на інших сайтах More sharing options...
Нестроитель Опубліковано: 10 лютого 2009 Автор Поділитись Опубліковано: 10 лютого 2009 Большое человеческое спасибо, есть над чем подумать:drinks: Посилання на коментар Поділитися на інших сайтах More sharing options...
Kostja Опубліковано: 10 лютого 2009 Поділитись Опубліковано: 10 лютого 2009 Грунтовых вод нет поблизости вообще. Где-то на глубине 1,5-2 м грунт переходит в глину. Что-то одно точно не то: или то не глина а хотя-бы суглинок или грунтовые воды есть (как минимум "периодические"), причём на глубине 1.5-2м. Вход в септик будет где-то на глубине 1м. Нормально. Объем 12-20кубов. Исходя из объёма, септиком ежедневно будут пользоваться 25-35 человек. При этом ежедневно надо будет утилизировать 4-7 кубометров стоков... Если ...на глубине 1,5-2 м грунт переходит в глину... то для утилизации такого кол-ва стоков необходимы поля фильтрации значительных площадей. Например 1м2 песка может впитать 100литров, 1м2 супеси 50литров... По Вашим словам, у Вас глина, а она впитывает значительно меньше... Посилання на коментар Поділитися на інших сайтах More sharing options...
Нестроитель Опубліковано: 10 лютого 2009 Автор Поділитись Опубліковано: 10 лютого 2009 Ну воды, то точно нет(копал в подвале погреб). Дом на возвышености, до грутовых вод приблизительно 80м, глубина двух соседских артезианских сважин 145м. и 169м Септик планиую без дренажа, но с возможностью использовать воду с 2-й камеры на полив газонов. Ну и стенах второй камеры хочу сделать отвестия, для "ухода" воды в грунт на глубине где-то 1,5м. Посилання на коментар Поділитися на інших сайтах More sharing options...
Kostja Опубліковано: 10 лютого 2009 Поділитись Опубліковано: 10 лютого 2009 Септик планиую без дренажа, но с возможностью использовать воду с 2-й камеры на полив газонов. Ну и стенах второй камеры хочу сделать отвестия, для "ухода" воды в грунт на глубине где-то 1,5м. Сорри но с таким подходом очень вероятно получить вонючее болото вокруг септика. Советую почитать тематические книги (тут например есть (ссылка устарела)) или хотя-бы (ссылка устарела) точнее (ссылка устарела) (ссылка устарела) (ссылка устарела) (ссылка устарела) Посилання на коментар Поділитися на інших сайтах More sharing options...
Нестроитель Опубліковано: 12 лютого 2009 Автор Поділитись Опубліковано: 12 лютого 2009 Сорри но с таким подходом очень вероятно получить вонючее болото вокруг септика. Советую почитать тематические книги (тут например есть (ссылка устарела)) или хотя-бы (ссылка устарела) точнее (ссылка устарела) (ссылка устарела) (ссылка устарела) (ссылка устарела) Спасибо за советы, буду "пережовывать" Посилання на коментар Поділитися на інших сайтах More sharing options...
Slava Опубліковано: 14 лютого 2009 Поділитись Опубліковано: 14 лютого 2009 Поливать газон такой водой точно нельзя - убъете все растения. Самый дешевый вариант - первая камера с дном, вторая без дна и с дырками в стенках а вокруг щебень. И старайтесь регулярно использовать бактерии. Посилання на коментар Поділитися на інших сайтах More sharing options...
Нестроитель Опубліковано: 15 лютого 2009 Автор Поділитись Опубліковано: 15 лютого 2009 Поливать газон такой водой точно нельзя - убъете все растения. Самый дешевый вариант - первая камера с дном, вторая без дна и с дырками в стенках а вокруг щебень. И старайтесь регулярно использовать бактерии. Скажем так, мой сосед в своем старом доме(несколько лет назад) использовал летом воду для полива газонов.Септик(выгребная яма) у него был на 6 кубов. Правда поливал позно вечером, чтобы соседи не косились. Говорит, "не сильный запах" был только во время полива. Трава, кстати, росла прекрасно.Машину(бочку) заказывал раз в пол года, для тведого г... В новом доме ,он сделал аналогично, кубическая выгребная яма из камня, только объем на 30куб и с дырами в стенах, эксплуатирует год, еще ни разу не выкачивал, болота нет, вроде все нормально?! Думал если сделаю анологично, но с розбивкой на две камеры, с "переливом", то хуже небудет? Посилання на коментар Поділитися на інших сайтах More sharing options...
valera-kirik Опубліковано: 16 лютого 2009 Поділитись Опубліковано: 16 лютого 2009 Ну воды, то точно нет(копал в подвале погреб). Дом на возвышености, до грутовых вод приблизительно 80м, глубина двух соседских артезианских сважин 145м. и 169м Септик планиую без дренажа, но с возможностью использовать воду с 2-й камеры на полив газонов. Ну и стенах второй камеры хочу сделать отвестия, для "ухода" воды в грунт на глубине где-то 1,5м. Да нельзя будет поливать газон этой водой, особенно после очистки в самодельном септике, без биоактиватора и без станции обеззараживания, точно вам говорю, такая экономия только испортит вам и вашей семье здоровье (не дай бог). Посилання на коментар Поділитися на інших сайтах More sharing options...
Нестроитель Опубліковано: 16 лютого 2009 Автор Поділитись Опубліковано: 16 лютого 2009 Да нельзя будет поливать газон этой водой, особенно после очистки в самодельном септике, без биоактиватора и без станции обеззараживания, точно вам говорю, такая экономия только испортит вам и вашей семье здоровье (не дай бог). В принципе, с бактериямиможна будет поэксперементировать... Посилання на коментар Поділитися на інших сайтах More sharing options...
Kostja Опубліковано: 17 лютого 2009 Поділитись Опубліковано: 17 лютого 2009 Значит вкратце так. Делаете 2 камеры с дном. Первая раза в 2 больше второй - там будет основной осадок скапливаться. Перелив 1->2 должен быть сделан так чтобы обеспечить вентиляцию по верху и "водообмен" в средних слоях. Перепады высот отверстий "вход"->"перелив1->2"->"выход" по 5 см вниз - для 100% самотёка. Выход - в дренажный колодец. Рассчёт дренажного колодца делается так - берётся общая площадь стен засыпаной ямы и считается ежедневный объём слива "воды". Например для супесчаника 50литров в сутки на 1 м2 площади. Септик должен быть минимум в 3 раза больше суточного слива. Пример для рассчёта: По нормам 1 человек пользует 250 литров воды в сутки. Септик для постоянного проживания 5 человек должен иметь общий объём = 3 м3 и иметь площадь впитывающей "ямы" = 1000/50=20 м2. Как видно, тут везде зависимость линейная. Всё просто, нужны только чёткие начальные данные. Посилання на коментар Поділитися на інших сайтах More sharing options...
Pro100user Опубліковано: 18 лютого 2009 Поділитись Опубліковано: 18 лютого 2009 Kostja, я тут посчитал по вашей методике. Поправьте если в чем-то ошибся. Считаем: проживание 2-6 чел., принимаем 4 еловека. х 250литров=1000 л. проживание 3 дня в неделю. 3 дня х 1000л= 3000 л делим этот объем на 7 дней. (чтобы получить среднесуточный расход в неделю) = 428 л. Принимаем 500 л суточный обем отходов. Итого имеем объем септика 1500 л - берем с запасом 2000 л (2 м. куб.) полученые 2 куба это объем первой камеры? или суммарный объем двух камер? Посилання на коментар Поділитися на інших сайтах More sharing options...
Kostja Опубліковано: 19 лютого 2009 Поділитись Опубліковано: 19 лютого 2009 Kostja, я тут посчитал по вашей методике. Поправьте если в чем-то ошибся. Считаем: проживание 2-6 чел., принимаем 4 еловека. х 250литров=1000 л. Метода не моя, но пока всё правильно. Вот тут начинается "кроилово" проживание 3 дня в неделю. 3 дня х 1000л= 3000 л делим этот объем на 7 дней. (чтобы получить среднесуточный расход в неделю) = 428 л. Принимаем 500 л суточный обем отходов. Итого имеем объем септика 1500 л - берем с запасом 2000 л (2 м. куб.) Тут совсем запутались ... полученые 2 куба это объем первой камеры? или суммарный объем двух камер? Поясняю. Если живёте не постоянно, то нужен "накопитель" но лучше без него (зачем лишние траты). Потому рассчёт на максимально нормальный расход, т.е. 1000л/сутки. Т.е. _общий_ объём септика (всех его камер от "входа" до "выхода") минимум три м3. В противном лучае в те 3 дня септик не то что справиться не сможет, он просто пропустит часть отходов мимо - его "промоет" и толку от него будет ноль. Потому вариант такой: 1камера~2м3 + 2камера~1м3. Такой расклад объёмов необязателен: можно делать и 1+2 и 1,5+1,5 и 1+1+1... Просто вариант 2+1 или около него (например, 1,75+1,25) реже чистить надо будет. Септик лучше делать чуть больше, чем потом контролировать кол-во стоков, но и доводить до абсурда нет смысла. По поводу конструктива - желательно иметь рассчётную высоту "жижи" в септике хотя-бы от 1,3-1,5м особенно в 1й камере - так оно лучше расслаивается (сверху 20-30см пока ещё плавучего, внизу - ил-отработка и то что не плавает изначально, а посередине то, что идёт в следующую камеру). Посилання на коментар Поділитися на інших сайтах More sharing options...
Pro100user Опубліковано: 19 лютого 2009 Поділитись Опубліковано: 19 лютого 2009 Kostja, спасибо вам огромное! Вы двумя своими постами расставили все на места в моей голове и дали исчерпывающие ответы на все оставшиеся вопросы. Видно что вы человек не из тех, которые рассказывают как все кругом неправильно и тут же предлагают все сделать за денежку - вам не жалко делиться знаниями. Виртуально пожимаю вам руку и искренне благодарю. Посилання на коментар Поділитися на інших сайтах More sharing options...
Kostja Опубліковано: 20 лютого 2009 Поділитись Опубліковано: 20 лютого 2009 Рад, что помог. Посилання на коментар Поділитися на інших сайтах More sharing options...
Gitan Опубліковано: 22 лютого 2009 Поділитись Опубліковано: 22 лютого 2009 www.aquart-info.ru/index.php?option=com_autherarticle&task=view&ids=58&idc=88888915&Itemid=99999999 Посилання на коментар Поділитися на інших сайтах More sharing options...
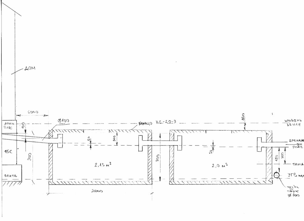
Gitan Опубліковано: 23 лютого 2009 Поділитись Опубліковано: 23 лютого 2009 Нарисовал себе план септика. Планирую сделать из двух колец диаметром 2м. Грунтовые воды высоко. Верхнюю крышку придется утеплять ЭППС. Все высоты впритык. Прошу оценить и покритиковать. Проживать будет трое взрослых и ребенок. Посилання на коментар Поділитися на інших сайтах More sharing options...
Pro100user Опубліковано: 23 лютого 2009 Поділитись Опубліковано: 23 лютого 2009 я терь тоже умный, вот и поумничаю. тут советовали - вторую камеру можно делать поменьше. Можно взять кольцо КС 15-9 (1,5 м. ширины и 0,9 м высоты) + если я правильно понял, то септик лучше "вытягивать" в высоту - так луше будет разделение содержимого в нем. Посилання на коментар Поділитися на інших сайтах More sharing options...
Gitan Опубліковано: 24 лютого 2009 Поділитись Опубліковано: 24 лютого 2009 я терь тоже умный, вот и поумничаю. тут советовали - вторую камеру можно делать поменьше. Можно взять кольцо КС 15-9 (1,5 м. ширины и 0,9 м высоты) + если я правильно понял, то септик лучше "вытягивать" в высоту - так луше будет разделение содержимого в нем. Верно, но два кольца я не могу поставить. Грунтовые воды высоко. Разве что поднять на камеру кирпичем на 20-30 см. Посилання на коментар Поділитися на інших сайтах More sharing options...
Gitan Опубліковано: 24 лютого 2009 Поділитись Опубліковано: 24 лютого 2009 Последний вариант Посилання на коментар Поділитися на інших сайтах More sharing options...
Рекомендовані повідомлення
Створіть акаунт або увійдіть у нього для коментування
Ви маєте бути користувачем, щоб залишити коментар
Створити акаунт
Зареєструйтеся для отримання акаунта. Це просто!
Зареєструвати акаунтУвійти
Вже зареєстровані? Увійдіть тут.
Увійти зараз