Ocean Опубліковано: 28 березня 2009 Поділитись Опубліковано: 28 березня 2009 ну, из одной спальни всегда можно сделать гардероб. и вообще, если какая-то комната лишняя на втором этаже - ее можно не делать. Посилання на коментар Поділитися на інших сайтах More sharing options...
PRIVATstroy Опубліковано: 29 березня 2009 Поділитись Опубліковано: 29 березня 2009 ну вот я оставил несущую конструкцию второго этажа (2 перегородки под перекрытие) приблизительно пока конечно ... синим выделил зону сан-узла а в остальном можно расставлять перегородки с большой долей фантазии (нарисуйте в Paint-e как бы вам хотелось ) ;) Посилання на коментар Поділитися на інших сайтах More sharing options...
Тася Опубліковано: 29 березня 2009 Автор Поділитись Опубліковано: 29 березня 2009 ну вот я оставил несущую конструкцию второго этажа (2 перегородки под перекрытие) приблизительно пока конечно ... синим выделил зону сан-узла а в остальном можно расставлять перегородки с большой долей фантазии (нарисуйте в Paint-e как бы вам хотелось ) ;) Даже не знаю. Вот проехались мы с мужем, посмотрели на уже отстроенные дома- скучно. Коробки.... Огромные коробки. Не хочу такой. Вот голову уже сутки ломаю, что бы это урезать и поинтересней, но с крышей по-проще. Гляньте этот. Можно на 1-м эт. 2 комнаты придумать, как думаете? Посилання на коментар Поділитися на інших сайтах More sharing options...
Тася Опубліковано: 29 березня 2009 Автор Поділитись Опубліковано: 29 березня 2009 Гляньте этот. Можно на 1-м эт. 2 комнаты придумать, как думаете? Может быть на месте кухни продлить в гостиную с эркером, а с другой стороны 2-комнаты без эркера и веранду в ту сторону;) Посилання на коментар Поділитися на інших сайтах More sharing options...
PRIVATstroy Опубліковано: 29 березня 2009 Поділитись Опубліковано: 29 березня 2009 ну терасса закроет солнечный свет ... и на кухне будет очень темно а кроме ещё одной спальни нужно ж ещё гардероб на первый этаж поместить и топочную я бы капитальную стену поставил правее на месте терассы (справа) Посилання на коментар Поділитися на інших сайтах More sharing options...
Тася Опубліковано: 29 березня 2009 Автор Поділитись Опубліковано: 29 березня 2009 ну терасса закроет солнечный свет ... и на кухне будет очень темно а кроме ещё одной спальни нужно ж ещё гардероб на первый этаж поместить и топочную я бы капитальную стену поставил правее на месте терассы (справа) а вообще как такой домик? а терассу можно сделать только там где балкон на 2-м этаже а что даст - стена правее? гардероб между комнатами ( если 2 сделать) а топочною может возле кухни-ванны Посилання на коментар Поділитися на інших сайтах More sharing options...
PRIVATstroy Опубліковано: 29 березня 2009 Поділитись Опубліковано: 29 березня 2009 а вообще как такой домик? а терассу можно сделать только там где балкон на 2-м этаже а что даст - стена правее? гардероб между комнатами ( если 2 сделать) а топочною может возле кухни-ванны вообще симпотичный уютный ... но площади мало (1этажа) для ваших потребностей стена правее даст площадь необходимую ... да и пятно застройки более рационально используется вот я и думаю где там 2 комнаты сделать да ещё и гардероб между ними в тиснуть Посилання на коментар Поділитися на інших сайтах More sharing options...
Тася Опубліковано: 29 березня 2009 Автор Поділитись Опубліковано: 29 березня 2009 вообще симпотичный уютный ... но площади мало (1этажа) для ваших потребностей стена правее даст площадь необходимую ... да и пятно застройки более рационально используется вот я и думаю где там 2 комнаты сделать да ещё и гардероб между ними в тиснуть а так? только я по метражу не знаю, что получается и где терассу ( или веранду) и тамбур возле эркера наверное некрасиво Посилання на коментар Поділитися на інших сайтах More sharing options...
PRIVATstroy Опубліковано: 29 березня 2009 Поділитись Опубліковано: 29 березня 2009 а так? только я по метражу не знаю, что получается и где терассу ( или веранду) и тамбур возле эркера наверное некрасиво а фасад ... а привязка к участку? а почему некрасиво? на фасаде выше крыльцо ж рядом с эркером Посилання на коментар Поділитися на інших сайтах More sharing options...
Тася Опубліковано: 29 березня 2009 Автор Поділитись Опубліковано: 29 березня 2009 а фасад ... а привязка к участку? а почему некрасиво? на фасаде выше крыльцо ж рядом с эркером так можно и в зеркальном сделать а что смущает? кухня на север или гостинная северо-восток? Посилання на коментар Поділитися на інших сайтах More sharing options...
PRIVATstroy Опубліковано: 29 березня 2009 Поділитись Опубліковано: 29 березня 2009 а такой вариант чем не устраивает? в таком варианте и фасад такой же получится ... только крыша выйдет дорогая ... Посилання на коментар Поділитися на інших сайтах More sharing options...
PRIVATstroy Опубліковано: 29 березня 2009 Поділитись Опубліковано: 29 березня 2009 так можно и в зеркальном сделать а что смущает? кухня на север или гостинная северо-восток? ну так тоже можно ... только лестница перекрывает доступ к последнему помещению Посилання на коментар Поділитися на інших сайтах More sharing options...
Тася Опубліковано: 29 березня 2009 Автор Поділитись Опубліковано: 29 березня 2009 а такой вариант чем не устраивает? в таком варианте и фасад такой же получится ... только крыша выйдет дорогая ... так 2-го этажа многовато, и вообще он побольше, последний вариант рассматриваю просто как меньший по квадратуре- а крышу может попроще- за счет чердака Посилання на коментар Поділитися на інших сайтах More sharing options...
PRIVATstroy Опубліковано: 29 березня 2009 Поділитись Опубліковано: 29 березня 2009 так 2-го этажа многовато, и вообще он побольше ну так подрезаем ;) Посилання на коментар Поділитися на інших сайтах More sharing options...
Тася Опубліковано: 30 березня 2009 Автор Поділитись Опубліковано: 30 березня 2009 ну так подрезаем ;) Вот я совсем все планировку смотрю, а ведь вход на участок северо-восток!!! Можно конечно в дом заходить сбоку, но тогда либо северо-запад, либо юго-восток Посилання на коментар Поділитися на інших сайтах More sharing options...
PRIVATstroy Опубліковано: 31 березня 2009 Поділитись Опубліковано: 31 березня 2009 ну так там не проблема перекинуть все хоз помещения зеркально Посилання на коментар Поділитися на інших сайтах More sharing options...
Тася Опубліковано: 31 березня 2009 Автор Поділитись Опубліковано: 31 березня 2009 ну так там не проблема перекинуть все хоз помещения зеркально тогда хорошо. А на 2-м поподрезать метраж, на 1-м этоже тоже должно отразиться А Вы можете мне написовать домик снаружи- как с крышей, тамбуром и верандой ( с террасой или без) и балкончиком? хоть схематично;) Посилання на коментар Поділитися на інших сайтах More sharing options...
PRIVATstroy Опубліковано: 31 березня 2009 Поділитись Опубліковано: 31 березня 2009 (змінено) тогда хорошо. А на 2-м поподрезать метраж, на 1-м этоже тоже должно отразиться А Вы можете мне написовать домик снаружи- как с крышей, тамбуром и верандой ( с террасой или без) и балкончиком? хоть схематично;) так я ж уже подрезал и первый и второй этажи получается по внутренним размерам этаж 9Х10м примерно та можно и весь конструктив в архикаде выстроить ну и покрутить со всех сторон ... но надо ж что б вы определились сначала ... с планировками переделывать не хочется Змінено 31 березня 2009 користувачем PRIVATstroy Посилання на коментар Поділитися на інших сайтах More sharing options...
PRIVATstroy Опубліковано: 31 березня 2009 Поділитись Опубліковано: 31 березня 2009 крыльцо перекинул и вход с тамбуром на противоположную сторону сравните с участком ... всё совпадает? а балкон я правильно понял, там где я красным нарисовал? с выходом из холла второго этажа? Посилання на коментар Поділитися на інших сайтах More sharing options...
Тася Опубліковано: 31 березня 2009 Автор Поділитись Опубліковано: 31 березня 2009 крыльцо перекинул и вход с тамбуром на противоположную сторону сравните с участком ... всё совпадает? а балкон я правильно понял, там где я красным нарисовал? с выходом из холла второго этажа? да-да, все так. Только вот с балконом- делать такой большой застелненным или все в ввиде террасы? ( если терраса , то под крышей?)Только вместо кабинета ( уменьшить) на 2-м сделать гардероб, и увеличить комнату Посилання на коментар Поділитися на інших сайтах More sharing options...
PRIVATstroy Опубліковано: 31 березня 2009 Поділитись Опубліковано: 31 березня 2009 ну я бы не делал остекление ... у остеклённого смысла маловато в часном доме ... кроме того застеклить его можно всегда успеть ну и конечно под крышей ... что б меньше снегом заметало и дождь не заливал а кабинет можно разделить перегодкой и получится две гардеробные Посилання на коментар Поділитися на інших сайтах More sharing options...
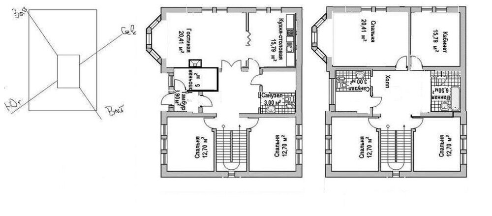
Тася Опубліковано: 1 квітня 2009 Автор Поділитись Опубліковано: 1 квітня 2009 ну я бы не делал остекление ... у остеклённого смысла маловато в часном доме ... кроме того застеклить его можно всегда успеть ну и конечно под крышей ... что б меньше снегом заметало и дождь не заливал а кабинет можно разделить перегодкой и получится две гардеробные балкон- согласна и по сторонам света все- класс в последнем варианте. только вопрос- там точно можно будет их холла выйти на балкон- вроде лестница и места нету а насчет 2-х гардеробных по-моему занадто, может еще один санузел в большой комнате муж хочет.... Посилання на коментар Поділитися на інших сайтах More sharing options...
PRIVATstroy Опубліковано: 1 квітня 2009 Поділитись Опубліковано: 1 квітня 2009 балкон- согласна и по сторонам света все- класс в последнем варианте. только вопрос- там точно можно будет их холла выйти на балкон- вроде лестница и места нету а насчет 2-х гардеробных по-моему занадто, может еще один санузел в большой комнате муж хочет.... точно можно будет выйти только лесница немного изменится ... первый пролёт получится чуть короче а второй чудь длиннее ... это на чертеже уточнится ... а санузел в большой спальне тот что слева ... сделать в него вход из спальни и всё ... а помещение лишнее ... ну не знаю ... по моему лишним не будет ... в любом случае несущие стены только те что ... разделяют хол с санузлами и спальни ... а остальные можно перестраивать по мере необходимости ... вы же собирались по началу жить на первом этаже ... вот на месте и определитесь какие вам перегородки важнее ;) в любом случае не обрезать же второй этаж на эти 3-4 "лишних" метра так что подумаете ещё. или уже определились? ;) или может от руки эскиз набросать в таком варианте как есть и ещё подумаете? вот я лестницу откорректировал ... красным выделил проём в перекрытии а синим ограждение проёма Посилання на коментар Поділитися на інших сайтах More sharing options...
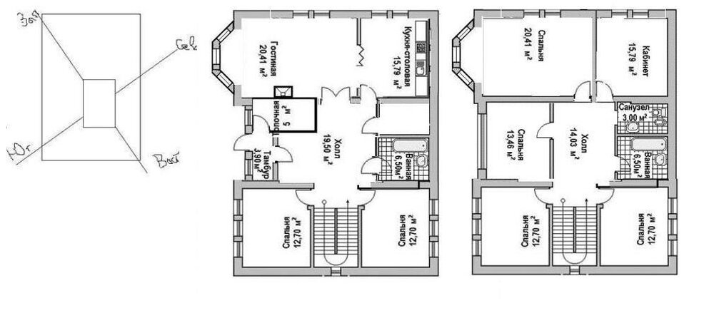
Тася Опубліковано: 1 квітня 2009 Автор Поділитись Опубліковано: 1 квітня 2009 так что подумаете ещё. или уже определились? ;) или может от руки эскиз набросать в таком варианте как есть и ещё подумаете? вот я лестницу откорректировал ... красным выделил проём в перекрытии а синим ограждение проёма По-моему все супер!!! И удобно, и вправду на 2-м этаже можно с комнатой по ходу решить Вообщем ничего уже не меняем, а Вы уж как удобней, так и нарисуйте, хоть какое-то представление будет Только еще ж чердак будет Посилання на коментар Поділитися на інших сайтах More sharing options...
PRIVATstroy Опубліковано: 1 квітня 2009 Поділитись Опубліковано: 1 квітня 2009 кстати а что с углом наклона крыши? наверное так как на рисунке? вы с кровлей наверное тоже ещё не решили ничего? Посилання на коментар Поділитися на інших сайтах More sharing options...
Рекомендовані повідомлення
Створіть акаунт або увійдіть у нього для коментування
Ви маєте бути користувачем, щоб залишити коментар
Створити акаунт
Зареєструйтеся для отримання акаунта. Це просто!
Зареєструвати акаунтУвійти
Вже зареєстровані? Увійдіть тут.
Увійти зараз