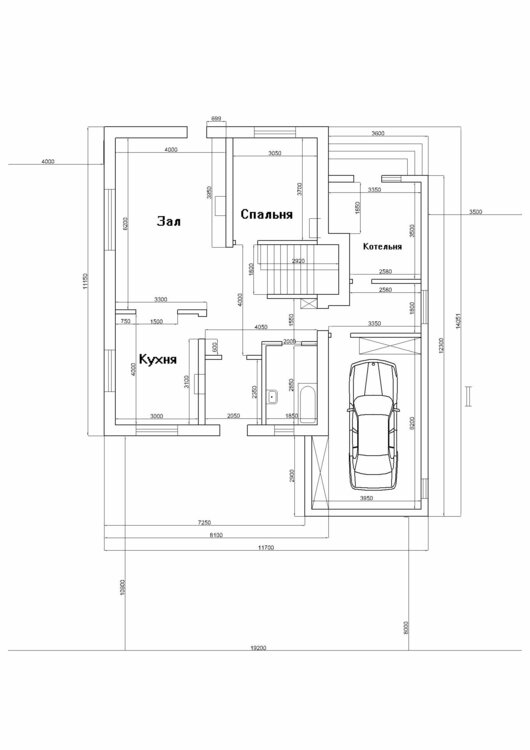
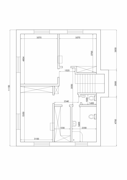
Karalex Опубліковано: 11 травня 2013 Поділитись Опубліковано: 11 травня 2013 Ось і нам настає час розбиратися з своїми бажаннями і можливостями. Ділянка майже рівна - 19 на 49м. Вхід в будинок - приблизно - схід. З боку кухні та залу - південь - південний захід. Плануємо мансардний будинок, до якого прибудований збоку гараж, котельня ну і посередині моє невелике робоче місце.;) Наверху три спальні, санвузол, гардероб. Розгляньте будь ласка, дайте свої поради. Архітектор щось багато малював нам, пару екземплярів, але якось воно не так, як хочеться. Ось ми вже й самі пробуємо порозбиратися в цьому.1пов.pdf2пов.pdf Посилання на коментар Поділитися на інших сайтах More sharing options...
Александр2008_111 Опубліковано: 12 травня 2013 Поділитись Опубліковано: 12 травня 2013 1. Я б змістив вхідні двері поближче до якоїсь із стін, тоді біля протилежної стіни можна облаштувати гардероб; 2. Котельню можна зменшити, хоча все залежить від того, що там буде стояти; 3. Можливо кухню поміняти зі спальнею? 4. Котельня, сходова і коридор між котельнею і гаражем заплановані нераціонально. 1 Посилання на коментар Поділитися на інших сайтах More sharing options...
ionico Опубліковано: 12 травня 2013 Поділитись Опубліковано: 12 травня 2013 В вашем варианте всё как-то не очень Особенно, конструкции. Вроде бы стена между залом и спальней - несущая. Но если её продлевать, то она красиво уходит в два проёма. Вроде бы стену между залом и кухней можно тоже сделать несущей. Но продлевая её, тоже приходим в проём. Посилання на коментар Поділитися на інших сайтах More sharing options...
Александр2008_111 Опубліковано: 12 травня 2013 Поділитись Опубліковано: 12 травня 2013 В вашем варианте всё как-то не очень Особенно, конструкции. Вроде бы стена между залом и спальней - несущая. Но если её продлевать, то она красиво уходит в два проёма. Вроде бы стену между залом и кухней можно тоже сделать несущей. Но продлевая её, тоже приходим в проём. У цьому випадку без монолітної плити перекриття не обійтись. Посилання на коментар Поділитися на інших сайтах More sharing options...
Karalex Опубліковано: 12 травня 2013 Автор Поділитись Опубліковано: 12 травня 2013 1. Дякую, переглянемо. 2. Котельню таку намалювали на всяк випадок більшу, бо можливо там на початку буде як типу розміщення всяких причандал. З часом може ТТ котел, теплоакумулятор,бойлер... Поки плануємо газ. 3. Кухню прикидали спереду, бо ж де жінки завжди в основному? Щоб добре дорогу і вхід до дому бачили.;) 4. Коридор такий між котельнею та гаражом - це в мене там біля вікна ще стіл з компом планується, щоб я міг собі потихеньку щось паяти, ваяти. Типу робочого місця. Сходи - ну специ сказали - 17 сходинок - 27см довжини, 17 висоти - ось і виходили з цього. Під сходами прикидали - щось типу кладовки. Прикидали з цього проекту - www.alfaplan.com.ua/catalog/item_449/ Але на жаль не все так оказується просто, щоб всі свої бажання в це всунути і поміститися в ширину будинку. Добавлено через 4 минуты У цьому випадку без монолітної плити перекриття не обійтись. Перекриття плануємо деревяне. А там по стіні - вертикальній поздовжній - ригель, типу арки, чи як? Посилання на коментар Поділитися на інших сайтах More sharing options...
Александр2008_111 Опубліковано: 12 травня 2013 Поділитись Опубліковано: 12 травня 2013 Сходи - ну специ сказали - 17 сходинок - 27см довжини, 17 висоти - ось і виходили з цього. За розміри сходів мови не було, я говорив про те, що ті три приміщення не правильно закомпоновані. Добавлено через 9 минут Перекриття плануємо деревяне. А там по стіні - вертикальній поздовжній - ригель, типу арки, чи як? Можна спробувати, але слід звернути особливу увагу на стіни на які буде опертий ригель. 1 Посилання на коментар Поділитися на інших сайтах More sharing options...
Karalex Опубліковано: 12 травня 2013 Автор Поділитись Опубліковано: 12 травня 2013 (змінено) Будувати плануємо з цегли. Внутрішні першого поверху також цегла. Зверху побачимо, бо ж димоходи і вент канали все одно цегла, то напевне центральна стіна вся буде також цегляна, ну а інші вже полегше. Та й камін в залі планується так, щоб обігрівав зал та спальню на 1 поверсі і дві кімнати на верху. Планується так, щоб технічні приміщення відвязати від хати - збоку. А як би ви порадили розміщення? Змінено 12 травня 2013 користувачем Karalex Посилання на коментар Поділитися на інших сайтах More sharing options...
Александр2008_111 Опубліковано: 12 травня 2013 Поділитись Опубліковано: 12 травня 2013 Та й камін в залі планується так, щоб обігрівав зал та спальню на 1 поверсі і дві кімнати на верху. Мені здається у Вас дуже амбітні плани на камін. Посилання на коментар Поділитися на інших сайтах More sharing options...
Karalex Опубліковано: 12 травня 2013 Автор Поділитись Опубліковано: 12 травня 2013 Мені здається у Вас дуже амбітні плани на камін. Був у товариша зимою. Бачив і відчував це все власне. Вже 4й рік у нього так працює.;) Чого б собі таке не забажать. Посилання на коментар Поділитися на інших сайтах More sharing options...
Александр2008_111 Опубліковано: 12 травня 2013 Поділитись Опубліковано: 12 травня 2013 Був у товариша зимою. Бачив і відчував це все власне. Вже 4й рік у нього так працює.;) Чого б собі таке не забажать. Багато хто на стадії проектування хоче камін і мають на нього великі плани, але після того як будинок вже готовий, то на другу зиму ним користуються 2 рази у місяць, а на третю 1 раз у 2 місяці. Посилання на коментар Поділитися на інших сайтах More sharing options...
Karalex Опубліковано: 12 травня 2013 Автор Поділитись Опубліковано: 12 травня 2013 Багато хто на стадії проектування хоче камін і мають на нього великі плани, але після того як будинок вже готовий, то на другу зиму ним користуються 2 рази у місяць, а на третю 1 раз у 2 місяці. Оце ж спеціально взимку в товариша все передивлявся, розпитував. Я в нього оце був в лютому. В місяць на дім - мансарда загальна 170м2 - 300 м3 газу. І за зиму спалили десь 9м3 дров. (100-120 грн\м3) Каміном опалюють зранку 2 год, ввечері також. Котел включають ввечері десь до 5 год. А може й навпаки - забув. В принципі ми приїхали було не жарко, але більш-менш. Як тільки запалив в каміні - майже відразу погнало тепло. Я спеціально пройшовся на обидва поверхи, пробував.;) Ну на другому поверсі й так тепло, навіть душно я б сказав було. Посилання на коментар Поділитися на інших сайтах More sharing options...
Александр2008_111 Опубліковано: 12 травня 2013 Поділитись Опубліковано: 12 травня 2013 В такому випадку питання з каміну знімаю Посилання на коментар Поділитися на інших сайтах More sharing options...
ionico Опубліковано: 13 травня 2013 Поділитись Опубліковано: 13 травня 2013 У цьому випадку без монолітної плити перекриття не обійтись. Ну монолит-то тоже не может висеть в воздухе, должна же быть какая-то логика в конструкциях Посилання на коментар Поділитися на інших сайтах More sharing options...
Александр2008_111 Опубліковано: 13 травня 2013 Поділитись Опубліковано: 13 травня 2013 Ну монолит-то тоже не может висеть в воздухе, должна же быть какая-то логика в конструкциях Якщо стіна біля кухні та залу будуть несівними,то цього цілком вистачить для монолітної плити. Посилання на коментар Поділитися на інших сайтах More sharing options...
Golos Опубліковано: 14 травня 2013 Поділитись Опубліковано: 14 травня 2013 Думаю, деревом Вам не перекрыть. Монолит поможет. 1 Посилання на коментар Поділитися на інших сайтах More sharing options...
Karalex Опубліковано: 14 травня 2013 Автор Поділитись Опубліковано: 14 травня 2013 Думаю, деревом Вам не перекрыть. Монолит поможет. Неужто все так серьезно? Монолит не проходит. Если так, будем двигать стены. Посилання на коментар Поділитися на інших сайтах More sharing options...
loader Опубліковано: 14 травня 2013 Поділитись Опубліковано: 14 травня 2013 Неужто все так серьезно? Монолит не проходит. Если так, будем двигать стены. мне не понятно - если архитектор с вами работал, так может с ним и доконсультируйтесь до конца или другого специалиста привлеките? может Jaspis из готовых проектов вам подойдет? иначе - включайте голову, изучайте и рисуйте конструкции начиная с крыши заканчивая фундаментом. что можна сказать по перекрытиям и внутренним несущим если у вас даже фасады и крыша не показаны. в чем проблема с монолитом? хотя имхо лучше заточить под панели максимально и домонолитить лишь остатки. вердикт: больше исходных данных, проект доработать. планировка чем-то похожа на ту с которой я игрался (вот тут почти последний вариант www.stroimdom.com.ua/forum/showthread.php?p=2117038#post2117038), только у меня спальня не запланирована на 1м этаже ну и ряд других отличий. 1 Посилання на коментар Поділитися на інших сайтах More sharing options...
Александр2008_111 Опубліковано: 14 травня 2013 Поділитись Опубліковано: 14 травня 2013 В принципі можна й деревом, якщо це будуть фермочки такого типу: www.fininstroy.ru/ru/service/construction/fermi/ , але я не знаю наскільки це буде дешевше за моноліт. Посилання на коментар Поділитися на інших сайтах More sharing options...
Karalex Опубліковано: 14 травня 2013 Автор Поділитись Опубліковано: 14 травня 2013 Мы же двигаемся. Говорят же семь раз меряй, вот и ... Все, будем думать. Спасибо. Добавлено через 1 минуту В принципі можна й деревом, якщо це будуть фермочки такого типу: www.fininstroy.ru/ru/service/construction/fermi/ , але я не знаю наскільки це буде дешевше за моноліт. Для 4х метров пролета - такие фермы? Да ну. Посилання на коментар Поділитися на інших сайтах More sharing options...
Александр2008_111 Опубліковано: 14 травня 2013 Поділитись Опубліковано: 14 травня 2013 Якби ж у Вас була можливість, без проблем, перекрити 4-х метрові прольоти, то питання, щодо перекриття ніхто не піднімав би. Посилання на коментар Поділитися на інших сайтах More sharing options...
Рекомендовані повідомлення
Створіть акаунт або увійдіть у нього для коментування
Ви маєте бути користувачем, щоб залишити коментар
Створити акаунт
Зареєструйтеся для отримання акаунта. Це просто!
Зареєструвати акаунтУвійти
Вже зареєстровані? Увійдіть тут.
Увійти зараз