Перейти до публікації
Пошук в
  • Додатково...
Шукати результати, які містять...
Шукати результати в...

Как же все-таки правильно делать вентканалы и дымоходы???

MarVic

Рекомендовані повідомлення

Вот, наконец,и на нашей строечке подошел этап возведения вентканалов и дымоходов.

Не читали бы мы Строидом,наверное,все прошло бы "гладко",так ,как прошло бы.Но мы ж "начитанные"...Но теперь это сыграло с нами злую шутку,т.к. свести воедино,на нашем примере,сложно оказалось.Особенно в таком "слабом",для нас,звене,как в/к и прочее:(.

Теперь к делу.

Имеем уже построенную коробку в 2 эт.,из газоблока.Перекрытия - ж/б плиты,между 2-м эт. и холодным чердаком - деревянное.Крыша - м/ч.Топочная в подвале,планируем газовый,либо в будущем и ТТ.

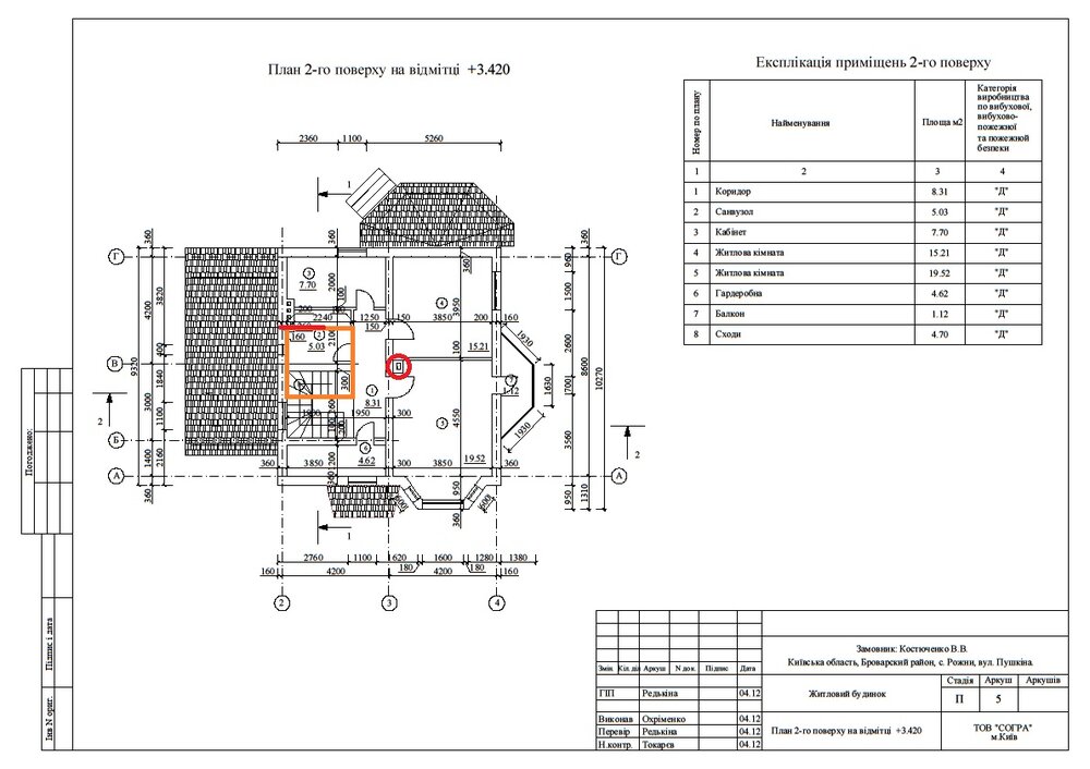
Изначально по проекту вентканалы проходили вдоль наружной стены,решили их проводить по внутреннему перестенку. Во вложениях красным выделено то,что планируется.

1.Делаем в/к и д/х из полнотелого М100.Правильно?

2.Из топочной идет в/к (сечение?) и д/х (сечение?), а если для газового,и ТТ,то сечение?

3.Так понимаем,что если в одной шахте проходят в/к и д/х,гильзовать в/к нельзя/не нужно (нужное подчеркнуть).Если и гильзовать-таки нужно (пусть не обязательно,но желательно) то,чем? Пластиком ведь нельзя,т.к. рядом д/х?

4.Ка правильно сделать проемы под шахту в пустотелых ж/б плитах,если шахта проходит почти рядом с продольной стороной плиты?

5.Можно ли совместить в/к из топочной+с/у на 1-м эт.+ с/у 2-го эт.?

6.На каком растворе (смеси) возводить шахту?

7.Предполагается также камин на 1-м эт.Как правильно сделать д/х для него?Материал,раствор...? И главное,на что обратить внимание?

 

П.С. Завтра-послезавтра строители будут приступать,нужно как можно быстрее определиться с поставленной задачей.

 

Спасибо всем откликнувшимся:)

1914744953_.thumb.jpg.e0a9559b1af06d1b84cf7d48bfc926f3.jpg

134014802_1-.thumb.jpg.f778688971347a3c8b49411f55fc31e4.jpg

1389943350_.thumb.jpg.860d3531aa25460e284c40293dda01da.jpg

1018700732_1-.thumb.jpg.9a48b282494b736746dec28a07a6cf86.jpg

1489516119_2-.thumb.jpg.075465e3b14ec90a0e948f3a91db27c8.jpg

Посилання на коментар
Поділитися на інших сайтах

1.Да

2.Из топочной идет в/к (160, отдельный в/к) и д/х (от 160 до 380 зависит от мощности), а если для газового,и ТТ, (125, отдельный в/к).

3.Так понимаем,что если в одной шахте проходят в/к и д/х,гильзовать в/к нельзя/не нужно (нужное подчеркнуть).Если и гильзовать-таки нужно (пусть не обязательно,но желательно) то,чем? Пластиком ведь нельзя,т.к. рядом д/х?

4. -

5.Нельзя.

6.Цементный раствор.

7. Кирпич, нержавейку.

  • Лайк 1
Посилання на коментар
Поділитися на інших сайтах

Вам надо было еще до строителей выполнить инженерные работы и на сегодня уже располагать поэтажными планировками и разрезами, а так, если очень кратко и укрупнено:

1. Каналы не обязательно выполнять из кирпича, чем так облегчить фундамент и последующее обслуживание. Сечения каналов зависят не от размеров кирпичей, а от проходящих там инженерных коммуникаций.

2. Сечения дымоходов зависят от запланированных патрубков теплогенераторов (котлов, каминов, печей), где следует учитывать теплоизоляцию дымоходов, ревизии и кондесатосборники. Сами дымоходы выполнять различного исполнения для твердотопливных агрегатов (котлов и каминов) и газовых котлов (колонок).

3. По нормативам: трубопроводы и воздуховоды в местах пересечения перекрытий, внутренних стен и перегородок прокладывать в гильзах из стальных труб диаметром на два сортамента больше диаметра проектируемого трубопровода или воздуховода, где края гильз должны быть на одном уровне с поверхностями стен и перегородок, и на 30мм выше пола этажа здания. Для прохождения вытяжных воздуховодов через кровлю предусмотривать узлы кровельных проходов. По нормам, если межэтажные коммуникации не обшиваются огнестокими строительными конструкциями (огнестойкие ГК или минвата, кирпич), то необходимо применять противопожарные типовые узлы проходов под сечение коммуникации. Такие огнезадерживающие клапаны существуют даже для ВК, но редко кто их применяет.

Соответственно у Вас должна быть по каждому этажу схема узлов прохода различных систем, которые расположены с учетом компоновки прохода через кровлю (дымоходы, вытяжная вентиляция, фановая ВК и т.д.) и распределением стояков (отопление, ВК с ХВС и ГВС, центральная вентиляция, кондиционирование, дренаж и т.д.).

4. Запланировать все коммуникации с гильзами или узлами проходов, которые затем залить бетоном. Гильзы проще всего применить из стальных водо-газопроводных труб или оцинкованной листовой стали.

5. Вытяжки с/у отдельные, топочной отдельная, где с/у можно совмещать между собой, но не рекомендую.

6. Рекомендую предусмотреть не шахту, а нишу для коммуникаций.

7. Ввиду необходимости при горении топлива в камине организовывать компенсацию удаляемого воздуха с продуктами сгорания через дымоход - требуется на замену приточный воздух, который зимой через форточку не подать, то рекомендую камин с закрытой топкой и патрубком притока наружного воздуха (30-60% притока не надо подогревать - регулирование дроссель-клапаном).

  • Лайк 1
Посилання на коментар
Поділитися на інших сайтах

подошел этап возведения вентканалов и дымоходов.

 

Такое как правило возводят вместе со стенами. :)

 

1.Делаем в/к и д/х из полнотелого М100.Правильно?

 

Правильно.

 

2.Из топочной идет в/к (сечение?) и д/х (сечение?), а если для газового,и ТТ,то сечение?

 

В/к - 140*140, для д/к нужна мощность котла.

 

 

3.Так понимаем,что если в одной шахте проходят в/к и д/х,гильзовать в/к нельзя/не нужно (нужное подчеркнуть).Если и гильзовать-таки нужно (пусть не обязательно,но желательно) то,чем? Пластиком ведь нельзя,т.к. рядом д/х?

 

Уже терли. :rolleyes:

www.stroimdom.com.ua/forum/showthread.php?t=97956

 

 

4.Ка правильно сделать проемы под шахту в пустотелых ж/б плитах,если шахта проходит почти рядом с продольной стороной плиты?

 

С этим лучше к конструктору или архитектору. Раскладка плит должна быть в проекте с учетом простенков и шахт.

 

5.Можно ли совместить в/к из топочной+с/у на 1-м эт.+ с/у 2-го эт.?

 

Нет. Можно только с/у.

 

6.На каком растворе (смеси) возводить шахту?

7.Предполагается также камин на 1-м эт.Как правильно сделать д/х для него?Материал,раствор...?

 

 

Шахта на ЦП-растворе, дымоход под камин, где высокие температуры - глина+песок.

 

И главное,на что обратить внимание?

 

На пожарные нормы при проходе дымоходом деревянных (сгораемых) перекрытий.

  • Лайк 2
Посилання на коментар
Поділитися на інших сайтах

Створіть акаунт або увійдіть у нього для коментування

Ви маєте бути користувачем, щоб залишити коментар

Створити акаунт

Зареєструйтеся для отримання акаунта. Це просто!

Зареєструвати акаунт

Увійти

Вже зареєстровані? Увійдіть тут.

Увійти зараз
×
×
  • Створити...