bader Опубліковано: 16 лютого 2009 Поділитись Опубліковано: 16 лютого 2009 Всех приветствую! проект придумывал сам, конечно с помощью архитекторов.Прошу оценить и покритиковать Посилання на коментар Поділитися на інших сайтах More sharing options...
Шульман Опубліковано: 16 лютого 2009 Поділитись Опубліковано: 16 лютого 2009 Мне нравитса, симпатичный проект! Только вот на втором этаже спальни маловаты Посилання на коментар Поділитися на інших сайтах More sharing options...
bader Опубліковано: 16 лютого 2009 Автор Поділитись Опубліковано: 16 лютого 2009 Мне нравитса, симпатичный проект! Только вот на втором этаже спальни маловаты по 20 метров в среднем,я хотел избавится от шкафов за счет гардеробных Посилання на коментар Поділитися на інших сайтах More sharing options...
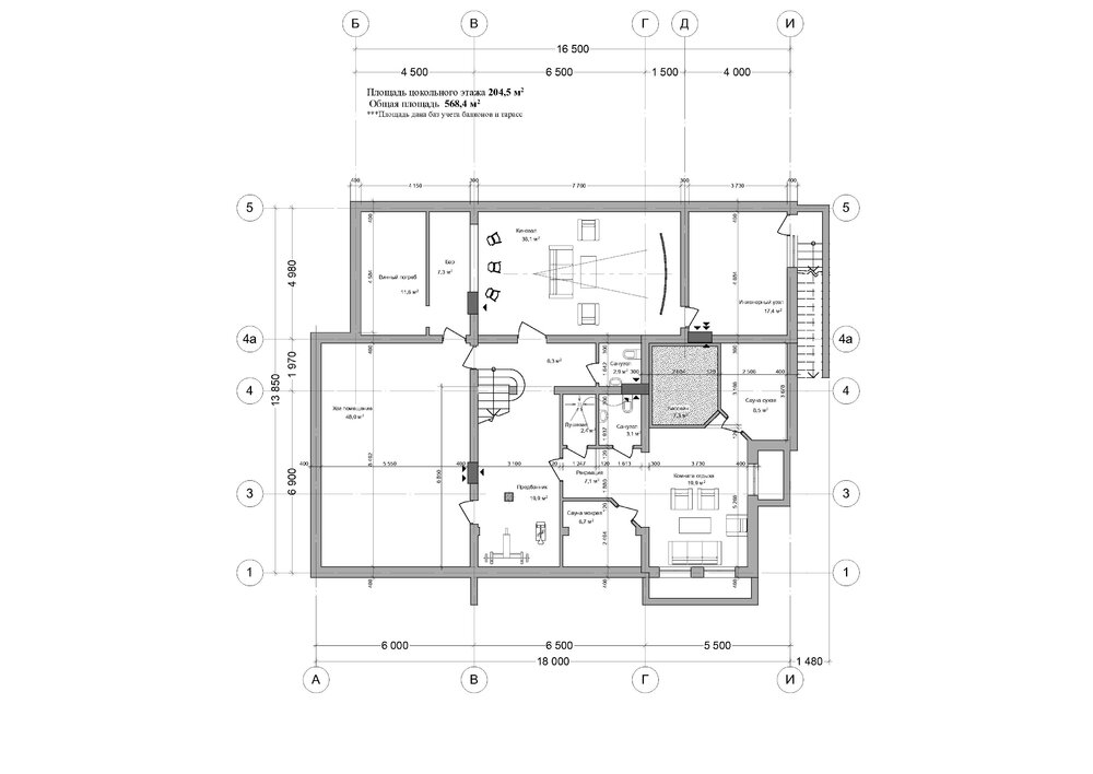
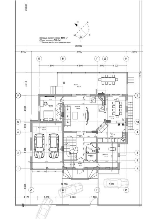
yri Опубліковано: 16 лютого 2009 Поділитись Опубліковано: 16 лютого 2009 Вход в подвал с улици совсем вам ненужен будет. Криша своеобразная можно поставить панели солнечние на ГВС. Кабинет на 1 етаже переделать в гардеробную. Санузел + гардероб 1 етажа продлить то стенки кухни до большой комнати = зделать норм санузел. кухня+столовая+гостиная поменьше стен между ними топтаться будете имено на етом петачке перегородки лишние только мешать будут и занимать место. И телек в центре гостиной ставить + перегородка сами режете себе квадратуру и функционал. второй етаж нечего сказать подвал непонятно где будет узел отопления електричества других дел аля центральний пилесос, ввод води ввод канализаци. внешний вид много квадратури криши гдето переиграть уменшить, на южную сторону побольше оконо на север поменьше. Посилання на коментар Поділитися на інших сайтах More sharing options...
Крышник Опубліковано: 16 лютого 2009 Поділитись Опубліковано: 16 лютого 2009 Всех приветствую! проект придумывал сам, конечно с помощью архитекторов.Прошу оценить и покритиковать Не знаю в каком регионе будете его воплощать,но он больше подходит Крыму.Как из опыта вижу недостатки(для крыши) для остальной Украины(кроме Южной):Малый уклон кровли(снеговая нагрузка),недостаточный карнизный свес над гаражом,входом;сложность (ломаная конфигурация крышы)--дороже стоит.Нет навеса над входом в подвал с улицы. Также,на мой взгляд плохо будет для эксплуатации(особенно при сильном дожде) вогнутая посередине,внутрь дома,крыша(если я правильно рассмотрел рисунок).Да и по "феншую" тоже. Посилання на коментар Поділитися на інших сайтах More sharing options...
Мария Кле Опубліковано: 17 лютого 2009 Поділитись Опубліковано: 17 лютого 2009 по фасадам очень симпатично а вот по крыше - согласна с Крышником.. если это не Крым - то вы сильно погорячились.. Посилання на коментар Поділитися на інших сайтах More sharing options...
Embongo Опубліковано: 17 лютого 2009 Поділитись Опубліковано: 17 лютого 2009 Лично мое мнение: 20 метров спальня - много даже для двоих, 15-16 метров для спальни с гардеробной в самый раз. Планировка в принципе неплохая, но дом очень большой даже для семьи из 5 человек. Ну и балкон в частном доме совершенно бесполезен, разве, что как дорогой, декоративный элемент фасада. Посилання на коментар Поділитися на інших сайтах More sharing options...
Мария Кле Опубліковано: 17 лютого 2009 Поділитись Опубліковано: 17 лютого 2009 Лично мое мнение: 20 метров спальня - много даже для двоих, 15-16 метров для спальни с гардеробной в самый раз. Планировка в принципе неплохая, но дом очень большой даже для семьи из 5 человек. Ну и балкон в частном доме совершенно бесполезен, разве, что как дорогой, декоративный элемент фасада. заметь, все кто предлагает обсуждать проекты, выдает не меньше 200 метров... у меня спальня 20,6 кажется.. вчера со шваброй пока по ней пробежалась - упахалась 15-16 квадратов бы вполне хватило.. Посилання на коментар Поділитися на інших сайтах More sharing options...
bader Опубліковано: 17 лютого 2009 Автор Поділитись Опубліковано: 17 лютого 2009 чую великоват, но очень хочется один раз на долго постороить чтоб всего хватало Посилання на коментар Поділитися на інших сайтах More sharing options...
Embongo Опубліковано: 17 лютого 2009 Поділитись Опубліковано: 17 лютого 2009 заметь, все кто предлагает обсуждать проекты, выдает не меньше 200 метров... Это наше желание вырваться из городских ульев перевешивает все разумные доводы отстроившихся форумчан Я вот за полтора года изучения матчасти сжалась с 340 до 230 с гаражом на 2 машины. bader, задумайтесь все-же нужен ли Вашей семье такой огромный дом? Летом, когда приезжает в гости много друзей - Вы не будете сидеть в доме: беседка, терасса, баня, лужайка - что угодно, но однозначно не гостинная. В плохую погоду время с семьей будет проводиться около камина, в спальню Вы будете попадать только для сна. Когда дети вырастут - то 99% того, что они захотят жить отдельно и будут в лучшем случае раз в неделю наезжать в гости... Зачем такие метражи, кто их будет убирать-отапливать? Ну и посчитайте стоимость внутренней отделки с хорошими, качественными материалами. Посилання на коментар Поділитися на інших сайтах More sharing options...
sashkaa Опубліковано: 17 лютого 2009 Поділитись Опубліковано: 17 лютого 2009 Отдельный вход в котельную с улицы как раз нужен по нормам. А вот между кинозалом и котельной я бы дверь убрал что бы вход был только с улицы Посилання на коментар Поділитися на інших сайтах More sharing options...
Alexander Pryakha Опубліковано: 17 лютого 2009 Поділитись Опубліковано: 17 лютого 2009 (змінено) Проект интересный. Есть несколько замечаний. 1. Справа я бы выполнил проезд более широкий - чтобы можно было заехать машиной на внутренний двор. Т.е. дом нужно несколько сместить вправо. 2. Лестничный марш в котельную с главного фасада (там где приямок, вместо сухой сауны). Часть марша будет в доме - и не надо делать большой козырек над входом. К тому же удобно загружать дрова в котельную. 3. Чашей бассейна нужно отступать от фундаментов несущих стен - однозначно. У чаши будет отдельный фундамент. 4. С колонами в подвале,на лестнице и террасе - надо разобратся. 5. Над гаражом (как вариант) можно сделать открытую террасу P.S. Очень порадовало в визуалке - расположение спутниковой антены и ручки на гаражных воротах Еще... кирпич для ограждения лоджии на главном фасаде - как-то некрасиво - там чегото типа метала и ковки интересно получится (то же самое для терасы заднего двора). Змінено 17 лютого 2009 користувачем Alexander Pryakha Посилання на коментар Поділитися на інших сайтах More sharing options...
snitsar Опубліковано: 17 лютого 2009 Поділитись Опубліковано: 17 лютого 2009 Также,на мой взгляд плохо будет для эксплуатации(особенно при сильном дожде) вогнутая посередине,внутрь дома,крыша(если я правильно рассмотрел рисунок). Поддерживаю. Да еще дымоход который стоит посредине этой ендовы, это жесть вообще. И регулярные забеги на ремонт крыши. Даже если Вы найдете человека который сможет сделать этот узел так что бы не текло, это снеговой мешок на всю зиму. А в таких условиях никакой материал долго не выдержит. Посилання на коментар Поділитися на інших сайтах More sharing options...
bader Опубліковано: 17 лютого 2009 Автор Поділитись Опубліковано: 17 лютого 2009 Поддерживаю. Да еще дымоход который стоит посредине этой ендовы, это жесть вообще. И регулярные забеги на ремонт крыши. Даже если Вы найдете человека который сможет сделать этот узел так что бы не текло, это снеговой мешок на всю зиму. А в таких условиях никакой материал долго не выдержит. Понял, крышу обязательно проверю!!!! Посилання на коментар Поділитися на інших сайтах More sharing options...
Рекомендовані повідомлення
Створіть акаунт або увійдіть у нього для коментування
Ви маєте бути користувачем, щоб залишити коментар
Створити акаунт
Зареєструйтеся для отримання акаунта. Це просто!
Зареєструвати акаунтУвійти
Вже зареєстровані? Увійдіть тут.
Увійти зараз