Перейти до публікації
Пошук в
  • Додатково...
Шукати результати, які містять...
Шукати результати в...

Кто сделает такие декоративные панели?

Alter_EG0

Рекомендовані повідомлення

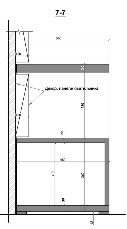
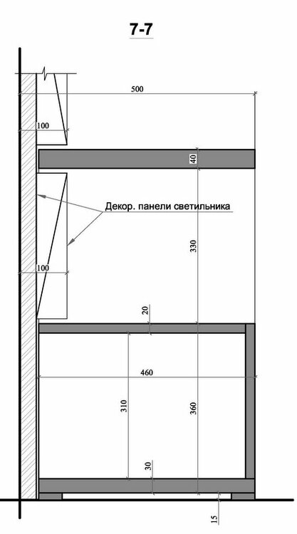
В целом две декоративные панели должны выглядеть примерно так:

attachment.php?attachmentid=277634&stc=1&d=1369034281

attachment.php?attachmentid=277631&stc=1&d=1369033192

attachment.php?attachmentid=277632&stc=1&d=1369033192

attachment.php?attachmentid=277633&stc=1&d=1369033192

 

Главная сложность, я так вижу, в изготовлении "кубиков", которые будут крепиться к дсп согласно раскладке на первых рисунках.

attachment.php?attachmentid=277627&stc=1&d=1369033192

attachment.php?attachmentid=277628&stc=1&d=1369033192

attachment.php?attachmentid=277629&stc=1&d=1369033192

"Кубик" с дыркой будет с подсветкой - обтянется тканью

attachment.php?attachmentid=277630&stc=1&d=1369033192

kube0.thumb.jpg.902c16ddaaca3c21a84d33f25f7a533d.jpg

kube1.thumb.jpg.05616743bf4c43a7957fe5c4bd070e32.jpg

kube2.thumb.jpg.919112a42b158d911638eaef68cd497f.jpg

kube_hole.thumb.jpg.8f04e4b381e537d166e7071930233f0c.jpg

AR_21-page-001.thumb.jpg.c1648e84d30c034b4d5bbc3763fe8089.jpg

AR_22-page-001.thumb.jpg.42058cc0694cca66f5fc17dff1163831.jpg

AR_23-page-001.thumb.jpg.ac2cfce29c77a8417959e7633ff3de2b.jpg

1.2.jpg.08fa5ee2be9e1657c86bce5cd688ce42.jpg

Посилання на коментар
Поділитися на інших сайтах

  • 2 тижні потому...
Вы хотите из дерева, или других материалов?

 

допускаю любой другой материал для "кубиков", главное чтобы финиш был "под дерево".

Основа для кубиков мне видится ламинорованая ДСП, боковые панели ДСП/МДФ. Все в цвете беленого дуба.

Посилання на коментар
Поділитися на інших сайтах

допускаю любой другой материал для "кубиков", главное чтобы финиш был "под дерево".

Основа для кубиков мне видится ламинорованая ДСП, боковые панели ДСП/МДФ. Все в цвете беленого дуба.

Можем сделать ,но не срочно. Натуральный дубовый шпон на мдф .

Ламинированная ДСП тоже может быть , но кубик , который квадратик , должен тогда состоять из двух сопряженных под определенным углом треугольников.

Давайте свой номер телефона в личку , обсудим.

Посилання на коментар
Поділитися на інших сайтах

Можем сделать ,но не срочно. Натуральный дубовый шпон на мдф .

Ламинированная ДСП тоже может быть , но кубик , который квадратик , должен тогда состоять из двух сопряженных под определенным углом треугольников.

Давайте свой номер телефона в личку , обсудим.

 

2 Spes

Пока нет срочности.

Отправляю тел. в личку.

 

2 All

Возможно ламерское предположение - не проще взять кубик из массива (360х360х40) и под углом сострогать две грани?

Посилання на коментар
Поділитися на інших сайтах

Если остановитесь на деревянном варианте, пишите - будем думать дальше. Сделать это возможно, я думаю, даже из выбеленного дуба (в оригинале как Вы хотели).
Посилання на коментар
Поділитися на інших сайтах

2 Spes

 

 

2 All

Возможно ламерское предположение - не проще взять кубик из массива (360х360х40) и под углом сострогать две грани?

 

Не проще .

Если под "массивом" подразумевается цельный кусок древесины,

то найти широкую 36 см доску тяжело .К тому же цельный кусок древесины с состроганной гранью может дать коробление.

Если же подразумевается щит , то есть клееная конструкция ,то рисунок граней тогда не будет однородным ,хотя и есть возможность подобрать неплохую однородность за счет радиальности клееных элементов.

Посилання на коментар
Поділитися на інших сайтах

Всё это дело делаться из МДФ со шпионом под покраску. В любой цвет по RAL хоть выбеленый дуб, хоть орех. Если сделать детали таким способом, то будет смотреться "монолитом", без всяких стыков. Но удовольствие не дешёвое...примерно 1600 грн/м2. Срок 1,5 мес.
Посилання на коментар
Поділитися на інших сайтах

Створіть акаунт або увійдіть у нього для коментування

Ви маєте бути користувачем, щоб залишити коментар

Створити акаунт

Зареєструйтеся для отримання акаунта. Це просто!

Зареєструвати акаунт

Увійти

Вже зареєстровані? Увійдіть тут.

Увійти зараз
×
×
  • Створити...