Dantust974 Опубліковано: 7 червня 2013 Поділитись Опубліковано: 7 червня 2013 (змінено) Весной 2012 году наступил важный момент жизни, когда решил воплотить свою мечту – Жить с семьей в своем доме. Первоначально хотел приобрести дом, но качество не соответствовало цене предложений, а то что нравилось, финансово не тянул. В результате приобрел участок со старым домом. Как у многих в Ирпене, дом принадлежит нескольким собственникам (в моем случае – моей семье и семье соседа). Работы начал с увеличения мощности подключения электричества, переподключения к дому газа (так как газопровод подходил к дому на моей территорию и потом по верхней части дома с двух сторон проходит к части дома соседа). Параллельно начал занимался поиском архитектора, строительной фирмы, а также получением разрешений на реконструкцию дома. Самый сложный и длительный процесс – это получение согласия соседа на реконструкцию и замены газопровода дома! У него все хорошо, ему ничего не надо!!!! В середине лета нашел по рекомендациям строительную фирму, которая строит много домов, церковь и другие объекты. Рекомендации были хорошие. Директор строительной фирмы, как всегда, сразу был готов быстро начать работать. Прислал бригаду, строители провели шурфовку фундамента (вместо 2 ям, которые сделал я, сделали 3) - глубина до 90 см. По результатам рекомендовали не пристраиваться к дому, а снести дом, учитывая что фундамент был с кирпича вперемешку с бетоном и существовало много трещин. С целью недопущения конфликта между строителями и архитектором, как часто бывает, заказал Архитектора, которого порекомендовал директор Строит. фирмы. Начали разбирать дом, но задержка с получением разрешения на строительство, а также переподключением газопровода приостановили роботу. До ноября 2012 года все разрешения получил, архитектор сделал проект, но разбирать в зиму не решился ( как оказалось потом, и правильно сделал!!! Змінено 7 червня 2013 користувачем Dantust974 Посилання на коментар Поділитися на інших сайтах More sharing options...
Игореха Опубліковано: 7 червня 2013 Поділитись Опубліковано: 7 червня 2013 Как у многих в Ирпене, дом принадлежит нескольким собственникам Немного промахнулись с веткой ;) Ну и с процитированным, вы явно погорячились :D Посилання на коментар Поділитися на інших сайтах More sharing options...
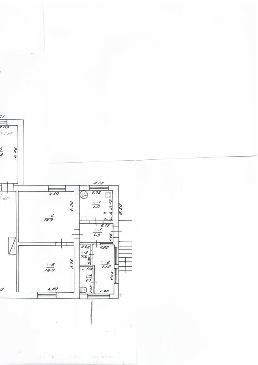
Dantust974 Опубліковано: 7 червня 2013 Автор Поділитись Опубліковано: 7 червня 2013 Дом планировался 220 – 240 м2. Так-как перепад высот на участке, в передней части дома больше чем в задней больше чем на 1 м, получился цокольный этаж + 2 этажа. В результате площадь получилась большей, хотя можна было меньше. Прилагаю Старый план части дома и Схему, предложенную Архитектором.Схема розташування фундаментів.doc Посилання на коментар Поділитися на інших сайтах More sharing options...
Dantust974 Опубліковано: 7 червня 2013 Автор Поділитись Опубліковано: 7 червня 2013 Немного промахнулись с веткой ;) Ну и с процитированным, вы явно погорячились :D 1. Может быть, посмотрим! 2. По крайней мере, когда я рассматривал варианты покупки, дома попадались, у которых несколько собственников.:D Посилання на коментар Поділитися на інших сайтах More sharing options...
Dantust974 Опубліковано: 7 червня 2013 Автор Поділитись Опубліковано: 7 червня 2013 Планировал в этом году начать роботы при потеплении, но зима затянулась. Сначала строители начали тянуть «резину», а потом сообщили, что у них очень много заказов. Хотя сами осенью предлагали начать работы при потеплении. Поэтому приступил к демонтажу старого дома в конце апреля. Разобрали, и вот что получилось. Посилання на коментар Поділитися на інших сайтах More sharing options...
Игореха Опубліковано: 7 червня 2013 Поділитись Опубліковано: 7 червня 2013 . По крайней мере, когда я рассматривал варианты покупки, дома попадались, у которых несколько собственников.:D То вы такую целевую аудиторию выбрали:D Добавлено через 1 минуту В каком районе строитесь? Не на Машторфе часом? ПС Попросите модераторов перенести в соответствующий раздел. ;) Посилання на коментар Поділитися на інших сайтах More sharing options...
Dantust974 Опубліковано: 7 червня 2013 Автор Поділитись Опубліковано: 7 червня 2013 (змінено) Вроде все правильно. Схема предложенная Архитектором была сложная, но возможная. Но при разборке дома оказалось, что сосед на втором этаже на 0,5 метра залез на мою территорию. Пригласил специалиста, который делает реконструкции фундаментов, он порекомендовал, что надо укреплять срочно Стену, но сначала надо сделать геологию и геодезию (при подготовке проекта, я от них отказался, так как участок находится на возвышенности, яму выкапывали 2,5 м и всюду песок), а предложенный им вариант установки 2 колон возле общей Стены мне показался не совсем убедительным. Но почитавши перед этим Форум, решил геологию и геодезию сделать. Встретился с независимым Великим Конструктором, который разные расчеты для больших проектов делает. Он предложил отступить от стены 0,5-1 метр, и вдоль стены зарыть дополнительные бетонные блоки на уровне глубины моего фундамента. Он предложил отступить от стены 0,5-1 метр, и вдоль стены зарыть дополнительно бетонные блоки на уровне глубины моего фундамента. А у меня в левой части стены надо выкапывать яму 1,5 м, а в правой - на 3 м. Я только копну, так соседний дом на мою территорию и съедет. Правда если потихоньку делать сначала скважины, потом их объединить и залить бетоном. При этом, решил проверить какой высоты фундамент Стены!! (тем более сосед раньше говорил, что фундамент всюду подливал). Я был в шоке , оказалось что Общая стена, которую Великие строители называли несущей, оказалась без фундамента и просто стоит на песке. Просто пипец!!!! Добавлено через 1 минуту :Bravo:Господа Форумчане! Не знаю что делать? Раньше не знал, как начать сооружать рядом с другим домом фундамент. Понимал, что работа должна была быть по проекту, ручной и деликатной.Хотя строительная фирма убеждала, что ничего сложного! А теперь и подавно. Прошу помощи! Подскажите что знаете! Змінено 7 червня 2013 користувачем Dantust974 Посилання на коментар Поділитися на інших сайтах More sharing options...
Dantust974 Опубліковано: 10 червня 2013 Автор Поділитись Опубліковано: 10 червня 2013 Отсутствие предложений и комментариев свидетельствует о том, что «Спецам» либо трудно что-то предложить, либо не знают, заняты или другое… !!!!!!!! В пятницу наконец получил эл. сообщение от Архитектора с новой схемой проекта (добавляю). Она сообщила, что уехала жить заграницу. На многие вопросы по новому предложению не получил. Так что архитектурный надзор и скорее всего корректировка проекта накрылась… С нетерпением жду, может «Спецы» и просто опытные Форумчане прокомментируют. Сам не все понимаю. Буду искать продвинутого конструктора с выездом на объект, а не «заочника». Схема фундаментів 070613 (правка).pdf111111111.doc Посилання на коментар Поділитися на інших сайтах More sharing options...
Drosselbeere Опубліковано: 10 червня 2013 Поділитись Опубліковано: 10 червня 2013 Dantust974, интересно что у вас за конструкции стен, лента давльно не маленькая, хотя не ная что за грунты, вроде писали песок. геология есть? Если расматривать подвал, то как то странно сделан переход, а так же коламбур с фунд. блоками. Вообще стран. Какой раздел проекта у вас разрабатывался. Вы пишите про архитектора а ссылка на КЗ. Посилання на коментар Поділитися на інших сайтах More sharing options...
Рекомендовані повідомлення
Створіть акаунт або увійдіть у нього для коментування
Ви маєте бути користувачем, щоб залишити коментар
Створити акаунт
Зареєструйтеся для отримання акаунта. Це просто!
Зареєструвати акаунтУвійти
Вже зареєстровані? Увійдіть тут.
Увійти зараз