Sergunchik45 Опубліковано: 14 червня 2013 Поділитись Опубліковано: 14 червня 2013 Уважаемые форумчане, Выскажите пожалуйста своё мнениие по лестнице.входной зоне и фасаду.Заранее спасибо. Посилання на коментар Поділитися на інших сайтах More sharing options...
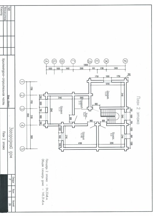
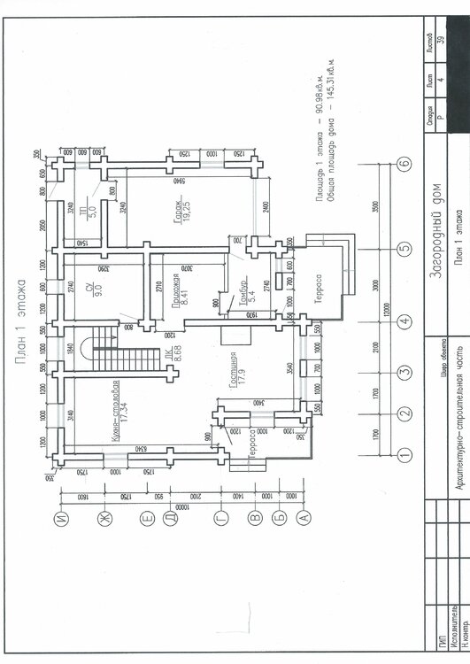
ArhiMau Опубліковано: 18 червня 2013 Поділитись Опубліковано: 18 червня 2013 Мне нравится. Я бы ничего не меняла - дело вкуса. А вот размеры смущают. Знаю, что бревна по 4м и 6м. Стоит внимательно разобраться как перекрывать этажи и получится ли сделать стены лестницы и зала без перевязки. А фасады где? Посилання на коментар Поділитися на інших сайтах More sharing options...
DraVVa Опубліковано: 18 червня 2013 Поділитись Опубліковано: 18 червня 2013 бревна по 4м и 6м. Стоит внимательно разобраться как перекрывать этажипо меньшему размеру все полы второго этажа меньше 4 м или вы о чем? Посилання на коментар Поділитися на інших сайтах More sharing options...
seyvalter Опубліковано: 18 червня 2013 Поділитись Опубліковано: 18 червня 2013 про брус з якого набирають стіни. Посилання на коментар Поділитися на інших сайтах More sharing options...
Sergunchik45 Опубліковано: 19 червня 2013 Автор Поділитись Опубліковано: 19 червня 2013 Что-то компютер не хочет выкладывать мой фасад....разбираюсь.... Поясните пожалуйста размеры чего не нравятся? не до поняла....Какие могут возникнуть проблемы? Спасибо. Посилання на коментар Поділитися на інших сайтах More sharing options...
Sergunchik45 Опубліковано: 19 червня 2013 Автор Поділитись Опубліковано: 19 червня 2013 А вот и фасад....Подскажите плюсы и минусы пожалуйста. так не нравится переруб посередине.....как бы делит дом на 2 части.....не смотрится едино, в комплексе ...... Спасибо. Посилання на коментар Поділитися на інших сайтах More sharing options...
Sergunchik45 Опубліковано: 19 червня 2013 Автор Поділитись Опубліковано: 19 червня 2013 ОООО......простите...получилось так.... учусь ещё...первый раз выкладываю в интернет... Посилання на коментар Поділитися на інших сайтах More sharing options...
ArhiMau Опубліковано: 19 червня 2013 Поділитись Опубліковано: 19 червня 2013 Что-то компютер не хочет выкладывать мой фасад....разбираюсь.... Поясните пожалуйста размеры чего не нравятся? не до поняла....Какие могут возникнуть проблемы? Спасибо. Получилось скачать и увеличить. С размерами все нормально, извините. И перевязки все получаются. С конструктивной стороны все хорошо, но фасад бы. 1 Посилання на коментар Поділитися на інших сайтах More sharing options...
Рекомендовані повідомлення
Створіть акаунт або увійдіть у нього для коментування
Ви маєте бути користувачем, щоб залишити коментар
Створити акаунт
Зареєструйтеся для отримання акаунта. Це просто!
Зареєструвати акаунтУвійти
Вже зареєстровані? Увійдіть тут.
Увійти зараз