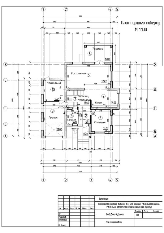
shodyveletyk Опубліковано: 17 червня 2013 Поділитись Опубліковано: 17 червня 2013 Добрый день, форумчане! Прошу покритиковать проект (внешний вид + планировку дома).Проект делал сам но с помощью архитектора . За основу был взят проект Cyprys. Проектировал дом с учетом что в нем постоянно будет проживать семья из 6-и человек . Цели проекта кратко таковы : 1) Наличие 4-х комнат на втором этаже и спальни на первом этаже 2) Наличие котельной с размещением твердотопливного котла (газ будет в перспективе) 3) наличие террасы на заднем дворе Это будет первый загородный дом в котором я собираюсь жить (до этого жили только в квартирах) Будет ли такая планировка удобна для жизни? Как спланировать кухню ? Хотелось бы в американском стиле. Важно также мнение по внешнему виду дома. Может нужно что-то улучшить. В общем буду очень благодарен за любую критику!501.pdf502.pdf503.pdf504.pdf Посилання на коментар Поділитися на інших сайтах More sharing options...
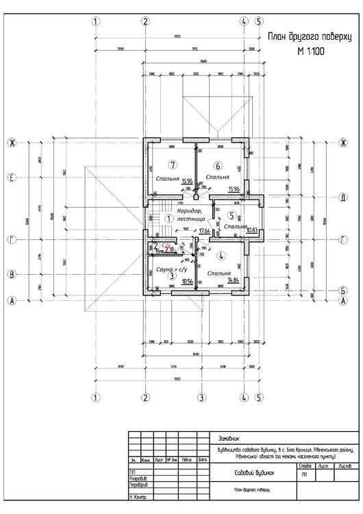
Александр2008_111 Опубліковано: 17 червня 2013 Поділитись Опубліковано: 17 червня 2013 В принципі ніби то все нормально, лише дещо сумніваюсь з приводу сауни на 2 поверсі. 1 Посилання на коментар Поділитися на інших сайтах More sharing options...
Andrei constructor Опубліковано: 18 червня 2013 Поділитись Опубліковано: 18 червня 2013 Что сразу бросается в глаза: - нет холодного тамбура (это плохо для дома в наших широтах); там где у вас входная терраса сделайте из ее части тамбур, а там где у вас тамбур это будет прихожая; - размеры окон; у вас очень большие окна, поэтому в зимних условиях в жилых помещениях будут избыточные теплопотери, а летом избыточная инсоляция (потребуется кондиционирование всего дома). 1 Посилання на коментар Поділитися на інших сайтах More sharing options...
shodyveletyk Опубліковано: 18 червня 2013 Автор Поділитись Опубліковано: 18 червня 2013 В принципі ніби то все нормально, лише дещо сумніваюсь з приводу сауни на 2 поверсі.Просто как для ванны , то очень много места , поетому и решил сделать для себя маленькую сауну. Добавлено через 6 минут Что сразу бросается в глаза: - нет холодного тамбура (это плохо для дома в наших широтах); там где у вас входная терраса сделайте из ее части тамбур, а там где у вас тамбур это будет прихожая; - размеры окон; у вас очень большие окна, поэтому в зимних условиях в жилых помещениях будут избыточные теплопотери, а летом избыточная инсоляция (потребуется кондиционирование всего дома).За предложение по прихожей спасибо. По окнам : просто если сделать окна 150х150 то для дома они будут смотреться как-то маловатыми, на 1-м этаже у меня идут окна размером 180 х 160см , а на 2-м 180 х 150см . Посилання на коментар Поділитися на інших сайтах More sharing options...
вторик Опубліковано: 18 червня 2013 Поділитись Опубліковано: 18 червня 2013 Просто как для ванны , то очень много места , поетому и решил сделать для себя маленькую сауну. в 10 квадратов с трудом но поместится инфракрасная кабина. поставте приборы. тамбур в таком решении как Ваше не есть необходимость. окна норм, можно и больше, вы же там жить собираетесь, а не экономить! 1 Посилання на коментар Поділитися на інших сайтах More sharing options...
shodyveletyk Опубліковано: 18 червня 2013 Автор Поділитись Опубліковано: 18 червня 2013 в 10 квадратов с трудом но поместится инфракрасная кабина. поставте приборы. тамбур в таком решении как Ваше не есть необходимость. окна норм, можно и больше, вы же там жить собираетесь, а не экономить! Сауну хочу чтоб была с каменкой , вечером виставлю план как я ее себе представляю. Тамбур скорей всего будет служить как прихожая а перед входдом в дом терасса как бы должна бить бо хочу чтоб был над домом навес. По окнам с вами солидарен. Посилання на коментар Поділитися на інших сайтах More sharing options...
Andrei constructor Опубліковано: 18 червня 2013 Поділитись Опубліковано: 18 червня 2013 По окнам : просто если сделать окна 150х150 то для дома они будут смотреться как-то маловатыми, на 1-м этаже у меня идут окна размером 180 х 160см , а на 2-м 180 х 150см Оставляйте большие только убирайте лишние окна. У вас в 3-х спальнях по 2 окна, а одного при таких площадях хватит с головой. На этом этапе вы можете только на окнах и на теплопотерях через них сэкономить несколько тыс. у.е. По поводу фасадов, обратитесь к опытному архитектору. Есть приемы, которые визуально увеличивают размеры окон на фасадах. Поэтому можно уменьшить и оставшиеся окна. Добавлено через 3 минуты Еще, водосточные трубы на фасаде расставлены небрежно. У вас есть участки, где эти трубу не будут пересекать или обходить декоративный карниз между этажами. 1 Посилання на коментар Поділитися на інших сайтах More sharing options...
shodyveletyk Опубліковано: 18 червня 2013 Автор Поділитись Опубліковано: 18 червня 2013 Оставляйте большие только убирайте лишние окна. У вас в 3-х спальнях по 2 окна, а одного при таких площадях хватит с головой. На этом этапе вы можете только на окнах и на теплопотерях через них сэкономить несколько тыс. у.е. По поводу фасадов, обратитесь к опытному архитектору. Есть приемы, которые визуально увеличивают размеры окон на фасадах. Поэтому можно уменьшить и оставшиеся окна. Добавлено через 3 минуты Еще, водосточные трубы на фасаде расставлены небрежно. У вас есть участки, где эти трубу не будут пересекать или обходить декоративный карниз между этажами. Спасибо за совет по окнам , посмотрю с какой стороны их можна будет убрать. По поводу фасада подумаю что можно сделать и кому обратиться. По поводу водостока не совсем понятно , если можна поконкретней пожалуйста, что и где куда убрать или поменять. Спасибо. Посилання на коментар Поділитися на інших сайтах More sharing options...
shodyveletyk Опубліковано: 18 червня 2013 Автор Поділитись Опубліковано: 18 червня 2013 Как и обещал выкладываю как я себе представляю сауну и с/у на 2-м этаже.Сауна 2-й этаж.pdf Посилання на коментар Поділитися на інших сайтах More sharing options...
Ольга В Опубліковано: 18 червня 2013 Поділитись Опубліковано: 18 червня 2013 Увеличьте террасу на всю длину гостиной - денег надо добавить немного, а удобства - в разы больше. Увеличьте гараж в длину за счет сдвига котельной к стене гостиной - можно хранить газоносилку, зимние колеса и т.п. Для 4-х спален на 2-м этаже санузлы мягко говоря не гармоничны. 1 Посилання на коментар Поділитися на інших сайтах More sharing options...
вторик Опубліковано: 19 червня 2013 Поділитись Опубліковано: 19 червня 2013 (змінено) достаточно большую ванную для этажа с тремя спальнями я делаю так. пользуйтесь мот поможет. www.stroimdom.com.ua/forum/showpost.php?p=2305928&postcount=36 Змінено 19 червня 2013 користувачем вторик 1 Посилання на коментар Поділитися на інших сайтах More sharing options...
Belladonna Опубліковано: 19 червня 2013 Поділитись Опубліковано: 19 червня 2013 Меня больше всего смущает дверь в спальню из прихожей - мало того, что грязь разносится по всей квартире, так ещё и психологически некомфортно спать рядом с входной дверью. И да - санузел на втором этаже совсем маленький и неудобный. 1 Посилання на коментар Поділитися на інших сайтах More sharing options...
shodyveletyk Опубліковано: 20 червня 2013 Автор Поділитись Опубліковано: 20 червня 2013 Меня больше всего смущает дверь в спальню из прихожей - мало того, что грязь разносится по всей квартире, так ещё и психологически некомфортно спать рядом с входной дверью. И да - санузел на втором этаже совсем маленький и неудобный. А по другому ее не как и не сделаешь , не через кухню ж в комнату заходить . А на втором этаже у меня два с/у . Посилання на коментар Поділитися на інших сайтах More sharing options...
Belladonna Опубліковано: 24 червня 2013 Поділитись Опубліковано: 24 червня 2013 shodyveletyk, в данном случае дверь в спальню действительно некуда переносить. 1 Посилання на коментар Поділитися на інших сайтах More sharing options...
Kysil Опубліковано: 6 жовтня 2013 Поділитись Опубліковано: 6 жовтня 2013 1. Про тамбур - вже говорили. Двері житлової кімнати відчиняються у холодний коридор. 2. Не бачу зони їдальні. У вас шестеро людей житиме, плюс гості (іноді). В кухні ближче до вікна теретично можна розмістити стіл на 8 персон, та чи не буде затісно? 3. Маю підозру, що черепиця під вікнами другого поверху влітку створюватиме термальний дискомфорт. Простіше кажучи, вікно вдень не відчиниш: пекло. 1 Посилання на коментар Поділитися на інших сайтах More sharing options...
Рекомендовані повідомлення
Створіть акаунт або увійдіть у нього для коментування
Ви маєте бути користувачем, щоб залишити коментар
Створити акаунт
Зареєструйтеся для отримання акаунта. Це просто!
Зареєструвати акаунтУвійти
Вже зареєстровані? Увійдіть тут.
Увійти зараз