VolchOk10 Опубліковано: 26 червня 2013 Поділитись Опубліковано: 26 червня 2013 Добрый день, Просветите, пжлст, строим погреб. Небольшой, внутри неотапливаемого сарая, 2 м глубиной. Бетон стенок льют в опалубку... Крыша -монолит с теплоизоляцией. Так вот собственно вопрос, нужен ли для таких стенок фундамент или достаточно того, что сами стенки погружены на около 20 см в почву. Почва песчаная, суглинок. Посилання на коментар Поділитися на інших сайтах More sharing options...
Дощ Опубліковано: 27 червня 2013 Поділитись Опубліковано: 27 червня 2013 нужен ли для таких стенок фундамент нє нужен __ Посилання на коментар Поділитися на інших сайтах More sharing options...
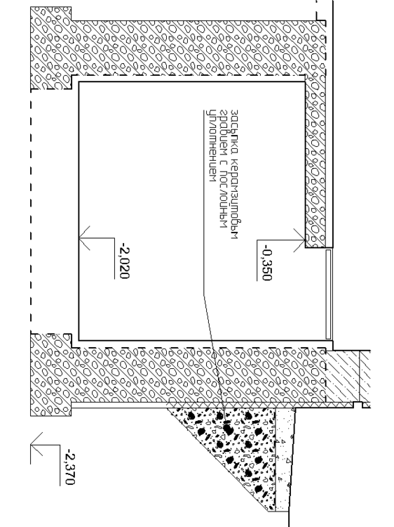
vladimir_arch Опубліковано: 30 червня 2013 Поділитись Опубліковано: 30 червня 2013 Для любых стен фундамент нужен. Просто он будет разным для стенок лёгких и для тяжёлых. Лёгкая стенка - это обшивка досками по дерев. каркасу (или саманная в дерев. каркасе). Кирпичная, бетонная стена - тяжелее, и потому со временем будет проседать в грунт. Ведь он чем глубже залегает - тем плотнее, а чем выше к поверхности - тем рыхлее. И через 2 сезона увлажнения грунта (дожди осенью и снеготаяние весной) он, грунт, полностью доуплотнится под весом стен сарая. Понятно, что заказывать геологию и расчёт фундаментов для этой геологии никто не станет, но сделать фундамент всё-таки надо. Делать ли его до глубины промерзания, и с какой шириной подошвы - мне трудно сказать, тут лучше бы попросить совета у конструктора - проектировщика (их есть на сайте). Ну, а я бы, будь у меня такая задача, сделал бы заглубление в 1 метр и ширину подошвы 600 мм. При толщине стенок сарая в 1 кирпич бетон сделал бы 250 - 300. Подошву фундаментов сделал бы на 400 - 500 мм ниже пола погреба. Вокруг стен погреба сделал бы засыпку керамзитовым гравием (как во вложенном чертеже). Посилання на коментар Поділитися на інших сайтах More sharing options...
Дощ Опубліковано: 30 червня 2013 Поділитись Опубліковано: 30 червня 2013 vladimir_arch, не ускладнюйте, мова про погріб всередині існуючого сараю. За таких вхідних даних це окремі конструкції по типу оглядової ями для авто - ваги там мізер Посилання на коментар Поділитися на інших сайтах More sharing options...
vladimir_arch Опубліковано: 1 липня 2013 Поділитись Опубліковано: 1 липня 2013 мова про погріб всередині існуючого сараю Ну, если так, то тогда совсем другое дело. Правда, не совсем понятно, как можно делать погреб ("льох" по украински) в середине сущ. здания. Если стенки погреба будут делаться вплотную к стенкам этого сарая, то это чревато. Вот поэтому такой вариант я в своих предположениях сразу же исключал, и подумал о новом строительстве - и сарай, и погреб одновременно. Посилання на коментар Поділитися на інших сайтах More sharing options...
Дощ Опубліковано: 1 липня 2013 Поділитись Опубліковано: 1 липня 2013 Погріб це не льох - льох із шиєю, погріб без неї Посилання на коментар Поділитися на інших сайтах More sharing options...
Рекомендовані повідомлення
Створіть акаунт або увійдіть у нього для коментування
Ви маєте бути користувачем, щоб залишити коментар
Створити акаунт
Зареєструйтеся для отримання акаунта. Це просто!
Зареєструвати акаунтУвійти
Вже зареєстровані? Увійдіть тут.
Увійти зараз