Перейти до публікації
Пошук в
  • Додатково...
Шукати результати, які містять...
Шукати результати в...

Покритикуйте планировку дома

ancistr

Рекомендовані повідомлення

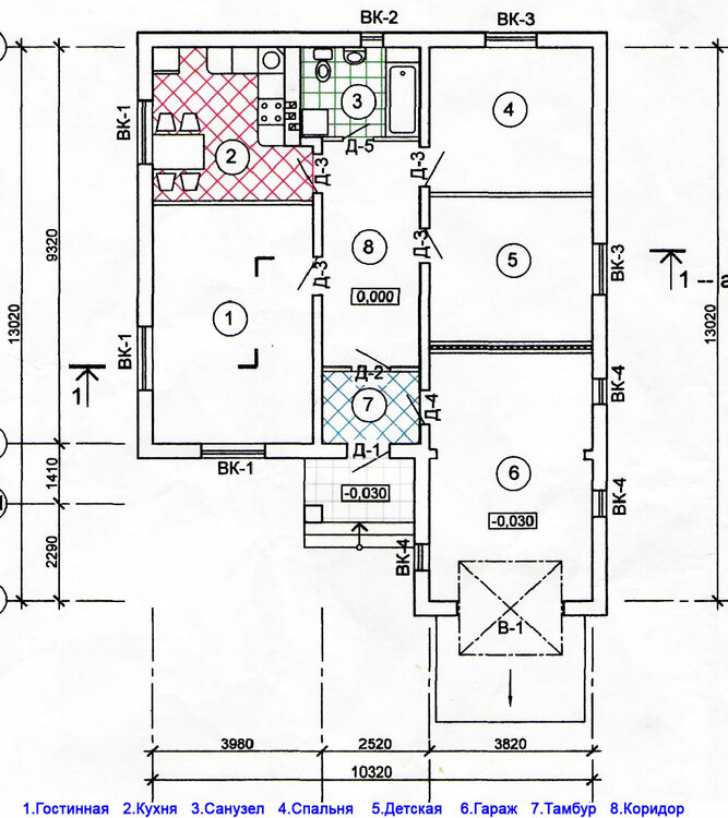
Покритикуйте планировку дома. Как он будет в плане энергосбережения? Планирую гараж разместить с северной стороны участка и не отапливать (этот проэкт можно сделать в зеркальном отображении, что видно на фото уже построенного дома)

 

Стены 1) кирпич (250мм)+базальт(100мм)+сайдинг либо

2)газобетон 375+короед

 

Крыша: металлочерепица либо шифер (дешевле)

 

Может что лучше посоветуете. Хочется, чтобы можно было попадать в гараж из дома. С другой стороны хочется, чтобы ворота гаража были максимально ближе к краю участка (зимой меньше снега откидать, летом больше места для малины ну и плитки тротуарной (или что то в этом роде меньше понадобиться)).

359_1.thumb.jpg.04eecdf2217318fa588fbdec7a3d2e7d.jpg

Photo.thumb.jpg.91daa8dbcf57eb24fb21cb53b147b70c.jpg

Посилання на коментар
Поділитися на інших сайтах

  • 3 місяці потому...
Покритикуйте планировку дома...

 

Що критикувати, трикімнатну квартиру з одним санвузлом? :(

 

Може бути хіба що так.

 

1. Зберегти загальну площу, але відмовитися від гаража.

2. Збільшити площу кухні-їдальні, пересунувши стіну вглиб вітальні приблизно на 1 м. Ще краще - відмовитися від стіни взагалі, або хоча б залишити вільний прохід ~1,5 м між вітальнею та їдальнею.

3. Пересунути стіну між спальнями на ~1,3 м. При цьому спальня 4 має стати майстер-спальнею.

4. Так само пересунути стіну і збільшити санвузлову площу. На цій площі зробити два санвузли: один загальний, інший приватний для майстер-спальні (з вікном).

5. Стіну між колишньою спальнею 5 та колишнім гаражем 6 розмістити на власний розсуд. Я б радив зробити кабінет 5 і дитячу 6, або ж залишити 5 як резервну гостьову кімнату. Відповідно, переробити фасад.

Посилання на коментар
Поділитися на інших сайтах

Вот делал одноэтажный дом с гаражом. Сравните варианты

gidproekt.com/zagorodnyj-dom-mechta-i-mechta-stanet-realnostyu.html

Посилання на коментар
Поділитися на інших сайтах

Створіть акаунт або увійдіть у нього для коментування

Ви маєте бути користувачем, щоб залишити коментар

Створити акаунт

Зареєструйтеся для отримання акаунта. Це просто!

Зареєструвати акаунт

Увійти

Вже зареєстровані? Увійдіть тут.

Увійти зараз
×
×
  • Створити...