Martiniqua Опубліковано: 9 липня 2013 Поділитись Опубліковано: 9 липня 2013 Решил построить дом. Архитектор посчитал проект и ориентировочно посчитал кол-во материала. На основании этого одним из прорабов был произведен расчет на возведение коробки. Вот у меня и возник вопрос, насколько адекватные цены? На фото первая цена в долларах, вторая в гривне. Посилання на коментар Поділитися на інших сайтах More sharing options...
Koskos Опубліковано: 9 липня 2013 Поділитись Опубліковано: 9 липня 2013 вам надо скорее перепроверить объемы а не цену работы за м2 или м3. для этого нужен проект 1 Посилання на коментар Поділитися на інших сайтах More sharing options...
Martiniqua Опубліковано: 9 липня 2013 Автор Поділитись Опубліковано: 9 липня 2013 вам надо скорее перепроверить объемы а не цену работы за м2 или м3. для этого нужен проект Сумма материалов Посилання на коментар Поділитися на інших сайтах More sharing options...
dogkiller Опубліковано: 9 липня 2013 Поділитись Опубліковано: 9 липня 2013 насколько адекватные цены? На фото первая цена в долларах, вторая в гривне. Бред полный написан...Даже обсуждать нечего.... 1 Посилання на коментар Поділитися на інших сайтах More sharing options...
Martiniqua Опубліковано: 9 липня 2013 Автор Поділитись Опубліковано: 9 липня 2013 Бред полный написан...Даже обсуждать нечего.... а где же их найти? я понимаю с таким вопросом сталкиваються все застройщики. Как найти порядочных или организовать балбесов? Посилання на коментар Поділитися на інших сайтах More sharing options...
dogkiller Опубліковано: 9 липня 2013 Поділитись Опубліковано: 9 липня 2013 Есть прописные правила. Строить надо ПОЭТАПНО. Разбейте стройку на этапы- фундамент, стены, крыша. Тем более при наличии проекта. Изучайте тонкости каждого этапа и в бой ;) Ищите узкопрофильных специалистов. НЕ СВЯЗЫВАЙТЕСЬ С СТРОИМВСЕ. И проще в финансовом плане будет. Не гонитесь за прорабами- у них 5- 15 объектов, между которыми он мечется. И времени вашему будет уделять 10 мин в неделю. Кадры на вашем обьекте будут - с вокзала,без квалификации набранные именно на ваш объект, иметь устоявшийся коллектив -невозможно. А Вам- хотите вы того или нет- придется там быть все время- если хотите , что-бы вас не вставляли. Все разговоры про гарантии, и прочие увещевания- БРЕД. Если нет возможности, желания, сил - купите уже готовое, там вы хоть по внешним признакам выберете то, что нравится... Пы.Сы. Все написанное- мой личный опыт и наблюдения. С людми, которые мне не нравятся даже при вербальном общении - пусть и с "хорошими" ценами- не работаю... На предмет "балбесов" - толпа вам не нужна. Подвал мне сделали 1.5 человека ( молодой парнишка и я с поломанной ногой), стены ( 40 000 кирпича) с сентября по декабрь- положил один каменщик с разнорабочим. крышу делали то 2 то 4 человека, по необходимости (узкопрофильные- только крыша и все ). 3 Посилання на коментар Поділитися на інших сайтах More sharing options...
Martiniqua Опубліковано: 9 липня 2013 Автор Поділитись Опубліковано: 9 липня 2013 Есть прописные правила. Строить надо ПОЭТАПНО. Разбейте стройку на этапы- фундамент, стены, крыша. Тем более при наличии проекта. Изучайте тонкости каждого этапа и в бой ;) Ищите узкопрофильных специалистов. НЕ СВЯЗЫВАЙТЕСЬ С СТРОИМВСЕ. И проще в финансовом плане будет. Не гонитесь за прорабами- у них 5- 15 объектов, между которыми он мечется. И времени вашему будет уделять 10 мин в неделю. Кадры на вашем обьекте будут - с вокзала,без квалификации набранные именно на ваш объект, иметь устоявшийся коллектив -невозможно. А Вам- хотите вы того или нет- придется там быть все время- если хотите , что-бы вас не вставляли. Все разговоры про гарантии, и прочие увещевания- БРЕД. Если нет возможности, желания, сил - купите уже готовое, там вы хоть по внешним признакам выберете то, что нравится... Пы.Сы. Все написанное- мой личный опыт и наблюдения. С людми, которые мне не нравятся даже при вербальном общении - пусть и с "хорошими" ценами- не работаю... На предмет "балбесов" - толпа вам не нужна. Подвал мне сделали 1.5 человека ( молодой парнишка и я с поломанной ногой), стены ( 40 000 кирпича) с сентября по декабрь- положил один каменщик с разнорабочим. крышу делали то 2 то 4 человека, по необходимости (узкопрофильные- только крыша и все ). Полностью согласен. Особенно насчет того, что если не нравиться, то лучше не связываться. Поэтапно планирую по ряду причин, первая конечно все сразу не осилю, а вторая, то что будет лучше все разбивать на отрезки. Как говориться, первый шаг сделан. Будем набивать шишки в процессе. Да и что можно сказать о человеке или его работе по тому, как он относиться к тому, что его просят. Например, в данной смете вообще не шел вопрос о доме. На вопрос, зачем все считали, когда просили только фундамент, то сказал я так думал лучше будет!!!:Bravo: Да и сами подсчеты заняли 3 недели, сколько интересно стройка будет идти? О состоянии бумаг я вообще молчу... Посилання на коментар Поділитися на інших сайтах More sharing options...
Прохожий Опубліковано: 9 липня 2013 Поділитись Опубліковано: 9 липня 2013 Решил построить дом. Архитектор посчитал проект и ориентировочно посчитал кол-во материала. На основании этого одним из прорабов был произведен расчет на возведение коробки. Вот у меня и возник вопрос, насколько адекватные цены? На фото первая цена в долларах, вторая в гривне. А Вы архитектору ориентировочно заплатили???? СМЕТА ЯВЛЯЕТСЯ НЕОТЪЕМЛЕМОЙ ЧАСТЬЮ ПРОЕКТНОЙ ДОКУМЕНТАЦИИ СОГЛАСНО ДБН. Далее... Когда на руках есть смета (в основном в АВК) РАЗБЕРИТЕСЬ с ней. Самостоятельно... Вы должны понимать куда какие материалы и работы идут. Разобрались? Теперь делаем копию чертежей и вручаем её претенденту на работы по вашей стройке... и ждем... Если смета составлена этим претендентом правильно, то в ней должны быть по каждому этапу (котлован, фундамент, стены, перекрытия, кровля, внутренняя отделка, наружная отделка, отопление, вода/канализация, электрика) быть отдельно указаны объёмы работ, расценки на единицу, стоимость каждого вида работ и ВСЕ материалы (вплоть до метизов) необходимые для выполнения этого объёма работ. Так же отдельно указываются машины и механизмы требуемые для этих работ. Материалы в штуках, литрах, метрах, килограммах( как они продаются) с ценой за единицу товара. В ГРИВНАХ!!!!!!! Получили смету? Теперь смотрим на то, что написано в Вашей смете... Совпадает? Если не совпадает в меньшую сторону то вероятней всего Вас пытаются взять на крючек и доить, доить, доить... Если в бОльшую, то хотят поиметь на материалах ( и работах). Не стесняемся и идем со сметой в строительный магазин и сравниваем цены на материалы... Потом берем газету с объявлениями и "пробиваем" цены на работы... Если в предложенной прорабом смете разница не превышает +/- 10% от проектной сметы по материалу и расценки на работы так же не летают от рыночных то составляйте договор с указанием сроков выполнения каждого этапа работ, сумму предоплаты (стоимость материалов 100%, механизмы 100% а по работам не более 30%) и дату сдачи каждого этапа. Так же оговорите штрафные санкции и премии за сдачу не в срок. Если это Ваше первое строительство то наймите человека, который будет осуществлять технический контроль (сколько и какого материала завезли, куда использовали, какие работы выполнялись в течении дня, фото по каждой из работ. За каждый выявленый недостаток /халтуру, воровство( задокументированый) небольшая, заранее оговоренная премия . Это не даст прорабу "договориться" с вашим надзирающим. Если работы выполняет строительная фирма с лицензией, уставом, счетом, печатью и директором то выявив халтуру через год-два-три вы сможете через суд заставить переделать или вернуть деньги. Если частный (не путать с чЕстный) прораб или залетные бригады то переделывать придется самостоятельно и за свои деньги. Удачи в строительстве. 4 Посилання на коментар Поділитися на інших сайтах More sharing options...
ЛНМ Опубліковано: 10 липня 2013 Поділитись Опубліковано: 10 липня 2013 Я бы так сказал всегда накидывайте к смете 20% и тогда будет более менее правдиво. Зная цены на материалы и цены на работы Вы сами можете составить смету. Когда делал фундамент то разница по смете составила 2тыс дол. Я тоже строю в Одессе поэтому если интересуют цены тогда спрашивайте,что знаю напишу. 1 Посилання на коментар Поділитися на інших сайтах More sharing options...
Шаркер Опубліковано: 10 липня 2013 Поділитись Опубліковано: 10 липня 2013 А Вы архитектору ориентировочно заплатили???? СМЕТА ЯВЛЯЕТСЯ НЕОТЪЕМЛЕМОЙ ЧАСТЬЮ ПРОЕКТНОЙ ДОКУМЕНТАЦИИ СОГЛАСНО ДБН. Далее... Когда на руках есть смета (в основном в АВК) РАЗБЕРИТЕСЬ с ней. Самостоятельно... Вы должны понимать куда какие материалы и работы идут. Разобрались? Теперь делаем копию чертежей и вручаем её претенденту на работы по вашей стройке... и ждем... Если смета составлена этим претендентом правильно, то в ней должны быть по каждому этапу (котлован, фундамент, стены, перекрытия, кровля, внутренняя отделка, наружная отделка, отопление, вода/канализация, электрика) быть отдельно указаны объёмы работ, расценки на единицу, стоимость каждого вида работ и ВСЕ материалы (вплоть до метизов) необходимые для выполнения этого объёма работ. Так же отдельно указываются машины и механизмы требуемые для этих работ. Материалы в штуках, литрах, метрах, килограммах( как они продаются) с ценой за единицу товара. В ГРИВНАХ!!!!!!! Получили смету? Теперь смотрим на то, что написано в Вашей смете... Совпадает? Если не совпадает в меньшую сторону то вероятней всего Вас пытаются взять на крючек и доить, доить, доить... Если в бОльшую, то хотят поиметь на материалах ( и работах). Не стесняемся и идем со сметой в строительный магазин и сравниваем цены на материалы... Потом берем газету с объявлениями и "пробиваем" цены на работы... Если в предложенной прорабом смете разница не превышает +/- 10% от проектной сметы по материалу и расценки на работы так же не летают от рыночных то составляйте договор с указанием сроков выполнения каждого этапа работ, сумму предоплаты (стоимость материалов 100%, механизмы 100% а по работам не более 30%) и дату сдачи каждого этапа. Так же оговорите штрафные санкции и премии за сдачу не в срок. Если это Ваше первое строительство то наймите человека, который будет осуществлять технический контроль (сколько и какого материала завезли, куда использовали, какие работы выполнялись в течении дня, фото по каждой из работ. За каждый выявленый недостаток /халтуру, воровство( задокументированый) небольшая, заранее оговоренная премия . Это не даст прорабу "договориться" с вашим надзирающим. Если работы выполняет строительная фирма с лицензией, уставом, счетом, печатью и директором то выявив халтуру через год-два-три вы сможете через суд заставить переделать или вернуть деньги. Если частный (не путать с чЕстный) прораб или залетные бригады то переделывать придется самостоятельно и за свои деньги. Удачи в строительстве. Доброго времени суток! На примере поднятых вопросов выскажу свое мнение и опыт на примере моего дома и строительства: 1. Не в каждом проекте Смета является неотъемлемой составляющий. 2. 100500 - надо раздробить строительство на этапы, это до начала стройки кажется - коробка и потом. 3. 100500 привести в единую систему измерений, здесь работаем на правилах из школы про СИ. ) Все просто - материалы в грн. , тогда работы должны быть в грн. и это ОБЯЗАТЕЛЬНО записать на бумаге и ознакомить две стороны - заказчик и Исполнитель. 4. Ни какой предоплаты на работы (это опыт, или не более 500 грн. предоплаты, просто вопрос - отсутствие вложений или декларация намерений). 5. ввести обязательно и проговорить вслух а не про себя и не задним числом, штрафные санкции - бухали и не вышли - косяк, понижающий коэффициент 0,95 и т.п. 6. С Договором - и ЧП или Физ.лицом - бесполезно, судится можно 10 лет после. 7. Прораба - "убить сразу" простите за фразу, но я не встречал ни дешевого ни дорогого порядочного прораба. Поэтому - смотри выше - читай и разбирайся сам. Я не на "ты", а я про "застройщика". Прораб зарабатывает от 10-20 % на стоимости работ и от 10 - 25 % на материалах. меньшие истории и про помощь или обучения - развод. 8. Самая большая рекомендация - Прежде чем тратить деньги разберитесь в этапах строительства и в технологии, и не спешите тратить, проверяйте, и проверяйте проверенную работу. Удачи! Добавлено через 1 минуту Я бы так сказал всегда накидывайте к смете 20% и тогда будет более менее правдиво. Зная цены на материалы и цены на работы Вы сами можете составить смету. Когда делал фундамент то разница по смете составила 2тыс дол. Я тоже строю в Одессе поэтому если интересуют цены тогда спрашивайте,что знаю напишу. не составит смету. нет умения, умения и знания придут уже только к перекрытию второго этажа. Мой опыт, мои сметы, мои конструкторы, мои прорабы (выгнанные) и мои потери из-за прорабов. Добавлено через 6 минут Мое личное мнение, и проверенные убытки, что Прораб - это: 1. Придуманная профессия - недоучки инженера-конструктора, инженера - строителя, магистра - разводящего. 2. Тип личности - высокая коммуникативная способность, знание азов - строительства, знание математики в свою сторону. 3. Врожденное отсутствие принятие и понимания "Ответственности" за процессы и последствия. 4. Короче - мое определение - гельминт, на теле застройщика. 5. Если застройщик ленивый или лох - то рядом природные вредители 2 Посилання на коментар Поділитися на інших сайтах More sharing options...
Прохожий Опубліковано: 10 липня 2013 Поділитись Опубліковано: 10 липня 2013 Доброго времени суток! На примере поднятых вопросов выскажу свое мнение и опыт на примере моего дома и строительства: 1. Не в каждом проекте Смета является неотъемлемой составляющий. 2. 100500 - надо раздробить строительство на этапы, это до начала стройки кажется - коробка и потом. 3. 100500 привести в единую систему измерений, здесь работаем на правилах из школы про СИ. ) Все просто - материалы в грн. , тогда работы должны быть в грн. и это ОБЯЗАТЕЛЬНО записать на бумаге и ознакомить две стороны - заказчик и Исполнитель. 4. Ни какой предоплаты на работы (это опыт, или не более 500 грн. предоплаты, просто вопрос - отсутствие вложений или декларация намерений). 5. ввести обязательно и проговорить вслух а не про себя и не задним числом, штрафные санкции - бухали и не вышли - косяк, понижающий коэффициент 0,95 и т.п. 6. С Договором - и ЧП или Физ.лицом - бесполезно, судится можно 10 лет после. 7. Прораба - "убить сразу" простите за фразу, но я не встречал ни дешевого ни дорогого порядочного прораба. Поэтому - смотри выше - читай и разбирайся сам. Я не на "ты", а я про "застройщика". Прораб зарабатывает от 10-20 % на стоимости работ и от 10 - 25 % на материалах. меньшие истории и про помощь или обучения - развод. 8. Самая большая рекомендация - Прежде чем тратить деньги разберитесь в этапах строительства и в технологии, и не спешите тратить, проверяйте, и проверяйте проверенную работу. Удачи! Добавлено через 1 минуту не составит смету. нет умения, умения и знания придут уже только к перекрытию второго этажа. Мой опыт, мои сметы, мои конструкторы, мои прорабы (выгнанные) и мои потери из-за прорабов. Добавлено через 6 минут Мое личное мнение, и проверенные убытки, что Прораб - это: 1. Придуманная профессия - недоучки инженера-конструктора, инженера - строителя, магистра - разводящего. 2. Тип личности - высокая коммуникативная способность, знание азов - строительства, знание математики в свою сторону. 3. Врожденное отсутствие принятие и понимания "Ответственности" за процессы и последствия. 4. Короче - мое определение - гельминт, на теле застройщика. 5. Если застройщик ленивый или лох - то рядом природные вредители По пунктам... 1. Не стоит на этом экономить 200-300 баксов. Потом это обернется значительно бОльшими потерями. 2. На этапы разбивать нужно так же разумно. К тому же есть "сетевые графики" где этапы могут пересекаться ( например внутренняя и внешняя отделка, утепление кровли и электрика....) 3. Нужно понимать ЧТО писать на бумаге и что подписывать. Не понимая технологии заказчик может сильно нарваться на деньги. 4. Те, кто мастера, а не мужики с вокзала без 30-50% предоплаты работать не начнут. Они знают свою цену и обычно "расписаны" на сезон. Чернорабочие - те готовы получать посменно... Их надо ганять чтобы они отрабатывали оговоренную сумму. 5. Я об этом говорил. Всё должно быть отражено в договоре. Смета является неотъемлемой частью договора. 6. И с фирмой не особо посудишься... Но фирма может потерять лицензию. Ей дешевле переделать чтобы не портить репутацию и не терять лицензию. 7. Ну убейте меня... Я на некоторых объектах выступаю как прораб. Если подписан договор и смета то я стараюсь организовать работу так, чтобы было выполнено качественно и в срок. 10-15% заложенных в смету это не мои деньги. Это и зарплата бухгалтера, и отдела снабжения и кладовщика, и сметчика, и покупка инструмента, связь... По материалам - иногда заказчик оговаривает в договоре что закупкой материала он занимается самостоятельно. Я обязан его предупредить за 3 дня о необходимых материалах, их количестве (согласно сметы). Но я оговариваю в том же договоре что подрядчик не несет ответственности за качество материала. Иногда заказчик находит дешевле миетной стоимости, привозит и оказывается что привез прошлогодний цемент, подгнившее дерево ( к тому же кривое и "гуляющее по толщине"), сырой кирпич.... Я это АКТИРУЮ и прошу заказчика подписать эти акты. Потом, когда возникают вопросы я заказчику предоставляю эти акты. 8. Совершенно нет необходимость бросать свою работу и идти учиться в строительный институт. Проще нанять человека, который будет осуществлять технический контроль. Но это должен быть человек заказчика а не подрядчика. 1.1 1.2 1.3 1.4 Хорошо же Вы о бо мне.... Я и вор и неуч, и безответственный - прилипала на теле бедного застройщика... А может у Вас такое мнение сложилось потому что Вы просто решили сэкономить на нормальных специалистах и с дураками потеряли потому что с умными не нашли??? 2 Посилання на коментар Поділитися на інших сайтах More sharing options...
Шаркер Опубліковано: 11 липня 2013 Поділитись Опубліковано: 11 липня 2013 Хорошо же Вы о бо мне.... Я и вор и неуч, и безответственный - прилипала на теле бедного застройщика... А может у Вас такое мнение сложилось потому что Вы просто решили сэкономить на нормальных специалистах и с дураками потеряли потому что с умными не нашли??? Ну в данном случае мы с Вами не знакомы поэтому точно не про Вас. Мои комментарии- понятно эмоциональны, исходя из моего практического опыта. Допускаю, что теоретически - есть люди-профессионалы в данной профессии, к моему сожалению, я таких не встречал - подчеркиваю, пишу во множественном числе. В отношении моей истории знакомства с представителями данной профессии - экономии не было. Более того, мое понятие организации процесса стройки было - Прораб, бригада строителей, с моей стороны архитектор, конструктор, и технолог. На практике получилось наоборот. Я для себя вынес свои уроки и могу сказать что своим "финансовым попаданиям" с прорабами, даже рад, я многому научился, т.е. купил опыт. Добавлено через 4 минуты Владельцу темы для выбора хорошо иметь разные точки зрения, мы думаю помогли. Правда, все равно - одна. И не у меня и не прорабов. Деньги и идея Ваши, поэтому, от того как Вы ими будете распоряжаться - такой и будет результат. 1 Посилання на коментар Поділитися на інших сайтах More sharing options...
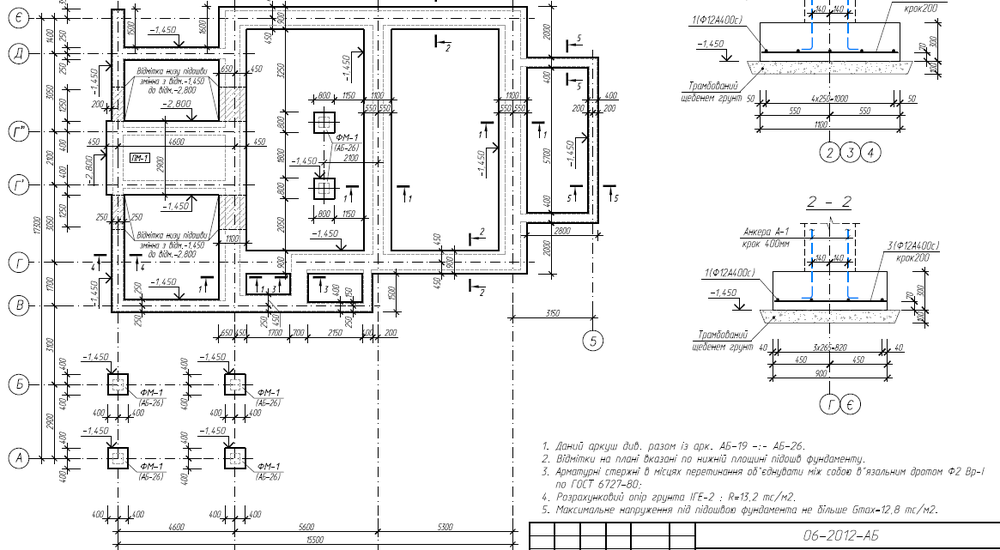
Martiniqua Опубліковано: 11 липня 2013 Автор Поділитись Опубліковано: 11 липня 2013 Предлагаю вашему вниманию план фундамнета. Посилання на коментар Поділитися на інших сайтах More sharing options...
tansss Опубліковано: 14 липня 2013 Поділитись Опубліковано: 14 липня 2013 Так на вскидку по работам на такой дом коробка до конька сумма +/- нормальная, да и по основным материалм тоже.... Но скажу по материалам... один раз взялись с ребятами просчитать количество наименований в доме "под ключ" 119м2 .... когда перешли за 1000 остановились.... 1 Посилання на коментар Поділитися на інших сайтах More sharing options...
karmen1 Опубліковано: 15 липня 2013 Поділитись Опубліковано: 15 липня 2013 600 штук за коробку из ракушки? Мож лучше чето поменьше но из кирпича? Посилання на коментар Поділитися на інших сайтах More sharing options...
Martiniqua Опубліковано: 17 липня 2013 Автор Поділитись Опубліковано: 17 липня 2013 Вот сегодня отозвался еще один прораб. Пару недель назад, были мысли в поиске прораба, теперь конечно дела обстоят иначе. Но вчера вечером отписался еще один "специалист". сказал, что будет стоить 70 000 долларов. Есть маленькое но это только за Фундамент!!!!!!!!!!! Неужели народ настолько озверел, что хочет хапнуть по максимуму. Ради приличия спросил, а если мои материалы, тогда 50/50. 35 000 за работу Посилання на коментар Поділитися на інших сайтах More sharing options...
karmen1 Опубліковано: 17 липня 2013 Поділитись Опубліковано: 17 липня 2013 70 000 долларов. Есть маленькое но это только за Фундамент!!!!!!!!!!! вообще пипец 1 Посилання на коментар Поділитися на інших сайтах More sharing options...
Прохожий Опубліковано: 17 липня 2013 Поділитись Опубліковано: 17 липня 2013 Ради приличия спросил, а если мои материалы, тогда 50/50. 35 000 за работу А если и самому всё сделать, то сколько прорабу надо? Посылайте таких "прорабов" по дальше. Точнее попросите сделать полную смету на эту сумму. Думаю что для него это будет равносильно что послали. 1 Посилання на коментар Поділитися на інших сайтах More sharing options...
Рекомендовані повідомлення
Створіть акаунт або увійдіть у нього для коментування
Ви маєте бути користувачем, щоб залишити коментар
Створити акаунт
Зареєструйтеся для отримання акаунта. Це просто!
Зареєструвати акаунтУвійти
Вже зареєстровані? Увійдіть тут.
Увійти зараз