Алекс777 000 Опубліковано: 20 липня 2013 Поділитись Опубліковано: 20 липня 2013 (змінено) Пока сохнет армопояс решили заняться ступенями в дом, возник вопрос - монолит или же выложить из к примеру имеющегося шлакоблока и облить бетоном. Что посоветуете? Змінено 20 липня 2013 користувачем Алекс777 000 Посилання на коментар Поділитися на інших сайтах More sharing options...
Бес Опубліковано: 21 липня 2013 Поділитись Опубліковано: 21 липня 2013 Только монолит. Отделку уже придумали? Радиусные они того, в отделке золотые выйдут. И советую от боковушек избавиться, просто ступени отлить. Посилання на коментар Поділитися на інших сайтах More sharing options...
Алекс777 000 Опубліковано: 22 липня 2013 Автор Поділитись Опубліковано: 22 липня 2013 Только монолит. Отделку уже придумали? Радиусные они того, в отделке золотые выйдут. И советую от боковушек избавиться, просто ступени отлить. Отделку ещё не думал, а почему радиусные выйдут золотые? И боковушки чем плохи? Посилання на коментар Поділитися на інших сайтах More sharing options...
sandrogor Опубліковано: 23 липня 2013 Поділитись Опубліковано: 23 липня 2013 Кстати, а как правильно монолитить ступени? В смысле, им фундамент какой-то нужен? Какой? Если все заливать бетоном, то реально такая болванка получится, под несколько кубов бетона. Может есть схэмка как делать каркас и т.д? Посилання на коментар Поділитися на інших сайтах More sharing options...
Алекс777 000 Опубліковано: 23 липня 2013 Автор Поділитись Опубліковано: 23 липня 2013 Присоединяюсь, и почему радиусные выйдут золотые? И боковушки чем плохи? Посилання на коментар Поділитися на інших сайтах More sharing options...
Бес Опубліковано: 23 липня 2013 Поділитись Опубліковано: 23 липня 2013 Отделку как делать будете? Все плиты - прямоугольные, на ваши ступеньки придется каждую плитку подрезать. Боковушки - их накрыть чем-то нужно? Чем? И сколько отделка в таком месте продержится? Вот это простояло аж 2 сезона :D 5 Посилання на коментар Поділитися на інших сайтах More sharing options...
Дощ Опубліковано: 23 липня 2013 Поділитись Опубліковано: 23 липня 2013 Отделку как делать будете? А можна залишити боковини просто з бетону? Ну там шліфанути, якимсь лаком для каміння обробити і все. І пігменту відразу додати щоб вигляд був Посилання на коментар Поділитися на інших сайтах More sharing options...
prazdnikof Опубліковано: 23 липня 2013 Поділитись Опубліковано: 23 липня 2013 Фото не показательное, по отделанному крыльцу трещина, а вот какой конструктив под отделкой не понять, может его просто по не знанию связали с фундаментом вот и "вылезло". Вообще с боковушками красивше, но мороки больше. 1 Посилання на коментар Поділитися на інших сайтах More sharing options...
LostEg Опубліковано: 23 липня 2013 Поділитись Опубліковано: 23 липня 2013 Фото не показательное, по отделанному крыльцу трещина, а вот какой конструктив под отделкой не понять, может его просто по не знанию связали с фундаментом вот и "вылезло". +1 Мне тоже как то кажется что там что-то не чисто ;) Судя по фото там даже сама площадка ступенек относительно боковушки как-то опустилась. Так что скорее всего сделано не совсем правильно. А полукругом. Ну так если с умом сделать один раз и на долго... Так вроде как не СССР что-бы делать как у всех можно и побаловать себя любимого :D П.С. а вот убирать со ступенек наверное было-бы проще без этих боковушек Посилання на коментар Поділитися на інших сайтах More sharing options...
Алекс777 000 Опубліковано: 23 липня 2013 Автор Поділитись Опубліковано: 23 липня 2013 Так что скорее всего сделано не совсем правильно. так как сделать что бы правильно? Посилання на коментар Поділитися на інших сайтах More sharing options...
Бес Опубліковано: 24 липня 2013 Поділитись Опубліковано: 24 липня 2013 Фото не показательное, по отделанному крыльцу трещина, а вот какой конструктив под отделкой не понять, может его просто по не знанию связали с фундаментом вот и "вылезло". Вообще с боковушками красивше, но мороки больше. Фото снималось в других целях - низзя из кирпича строить крыльцо Там не в трещине дело - вся отделка слетает. Посилання на коментар Поділитися на інших сайтах More sharing options...
sandrogor Опубліковано: 24 липня 2013 Поділитись Опубліковано: 24 липня 2013 Как низя - понятно. А как зя? Олег подскажи. 1 Посилання на коментар Поділитися на інших сайтах More sharing options...
prazdnikof Опубліковано: 24 липня 2013 Поділитись Опубліковано: 24 липня 2013 Глядя на вторую фото видно, что ошибок могло быть много и качество кирпича в т.ч. Там походу весь угол(образованный домом и крыльцом) проседает, явно не уплотнённое основание. 1 Посилання на коментар Поділитися на інших сайтах More sharing options...
Алекс777 000 Опубліковано: 24 липня 2013 Автор Поділитись Опубліковано: 24 липня 2013 да такое ощущение что стоит просто на асфальте. Посилання на коментар Поділитися на інших сайтах More sharing options...
Бес Опубліковано: 25 липня 2013 Поділитись Опубліковано: 25 липня 2013 Глядя на вторую фото видно, что ошибок могло быть много и качество кирпича в т.ч. Там походу весь угол(образованный домом и крыльцом) проседает, явно не уплотнённое основание. Качественно кирпича не бывает :D Любой разрушается, если по нему течет вода.В прошлом году крыльцо такое переделывали, после первой зимы. ;) Зато клинкером отделано было Добавлено через 6 минут Как низя - понятно. А как зя? Олег подскажи. Бетонировать, на нормальном фундаменте. Влагу отводить подальше от фундамента. На отделку нельзя керамогранит и грес, никакой. Есть керамогранит толщиной 20 мм - вот он держится, но цена там космос. Ну и все дуги - это дорого в отделке. Нужно нарезать сегменты и выкладывать по дуге. Посилання на коментар Поділитися на інших сайтах More sharing options...
Janzbr Опубліковано: 28 липня 2013 Поділитись Опубліковано: 28 липня 2013 может его просто по не знанию связали с фундаментом вот и "вылезло".. Тоесть фундамент дома отдельно, а фундамент крыльца отдельно? Интересно почему? Посилання на коментар Поділитися на інших сайтах More sharing options...
dafi Опубліковано: 28 липня 2013 Поділитись Опубліковано: 28 липня 2013 Тоесть фундамент дома отдельно, а фундамент крыльца отдельно? Интересно почему? Потому, что степень усадки дома и крыльца разные. Посилання на коментар Поділитися на інших сайтах More sharing options...
Рушан Опубліковано: 28 липня 2013 Поділитись Опубліковано: 28 липня 2013 Потому, что степень усадки дома и крыльца разные. Теперь понятно. Посилання на коментар Поділитися на інших сайтах More sharing options...
Janzbr Опубліковано: 28 липня 2013 Поділитись Опубліковано: 28 липня 2013 Потому, что степень усадки дома и крыльца разные.А если у меня над крыльцом мансарда (второй этаж) опираеться на крыльцо ,тогда тоже отдельно? Посилання на коментар Поділитися на інших сайтах More sharing options...
dafi Опубліковано: 28 липня 2013 Поділитись Опубліковано: 28 липня 2013 А если у меня над крыльцом мансарда (второй этаж) опираеться на крыльцо ,тогда тоже отдельно? Ну эт смотря, какой конструктив фундамента... Посилання на коментар Поділитися на інших сайтах More sharing options...
Janzbr Опубліковано: 28 липня 2013 Поділитись Опубліковано: 28 липня 2013 Планируется столбчатый фундамент с ростверком... Посилання на коментар Поділитися на інших сайтах More sharing options...
Алекс777 000 Опубліковано: 1 серпня 2013 Автор Поділитись Опубліковано: 1 серпня 2013 Бетонировать, на нормальном фундаменте. Поподробней можно, в смысле на сколько углублять, или может сразу вылить фундамент и ступени? Посилання на коментар Поділитися на інших сайтах More sharing options...
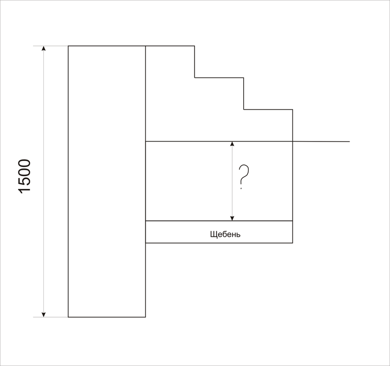
dvk Опубліковано: 8 серпня 2013 Поділитись Опубліковано: 8 серпня 2013 Поподробней можно, в смысле на сколько углублять, или может сразу вылить фундамент и ступени? Углублять сильно не надо, см 10 на щебень и см 30 на фундамент бетонный. Первую ступень удобно лить сразу с фундаментом, остальные - потом, по одной, переставляя круглую опалубку. Арматуру сразу связать на все цельным каркасом. Опалубку на ступень очень удобно сделать из металла мм 2, упирать в дюбеля, забитые в предыдущий слой. Обязательно лист ЭППС по всей высоте от щебня до верхней ступени между домом и крыльцом! Посилання на коментар Поділитися на інших сайтах More sharing options...
Александр 1 Опубліковано: 10 серпня 2013 Поділитись Опубліковано: 10 серпня 2013 Обязательно лист ЭППС по всей высоте от щебня до верхней ступени между домом и крыльцом! А для чего ЭППС? Посилання на коментар Поділитися на інших сайтах More sharing options...
dvk Опубліковано: 10 серпня 2013 Поділитись Опубліковано: 10 серпня 2013 А для чего ЭППС? Чтобы крыльцо не соприкасалось с домом ни фундаментом ни ступенями. И жило своей жизнью при пучениях зимних. ЭППС подходит для этого идеально, т.к. достаточно прочен, чтобы не рассыпаться на толщине мм 50 и достаточно мягок, чтобы скомпенсировать все подвижки. Посилання на коментар Поділитися на інших сайтах More sharing options...
Рекомендовані повідомлення
Створіть акаунт або увійдіть у нього для коментування
Ви маєте бути користувачем, щоб залишити коментар
Створити акаунт
Зареєструйтеся для отримання акаунта. Це просто!
Зареєструвати акаунтУвійти
Вже зареєстровані? Увійдіть тут.
Увійти зараз