faraon Опубліковано: 22 квітня 2014 Автор Поділитись Опубліковано: 22 квітня 2014 Был просчитан данный проект и с начала мая начнётся его строительство в Киевской области... коммерческое предложение только на каркас и фундамент, остальное просчитывается индивидуально.. P.S. а данный проект уже строиться в г.Донецке: www.stroimdom.com.ua/forum/showpost.php?p=2732910&postcount=1096план 1 эт - нов.pdfплан 2 эт - нов.pdfкоммерческое предложение-каркас -7.doc Цитата Посилання на коментар Поділитися на інших сайтах More sharing options...
k8neo Опубліковано: 19 травня 2014 Поділитись Опубліковано: 19 травня 2014 Был просчитан и такой проект: Приветствую, Григорий. Планирую постройку одноэтажного (без мансарды, веранды и отапливаемого жилого чердака) каркасного гостевого дома для круглогодичного проживания на юге Украины. Прошу Вас рассчитать коммерческое предложение по нижеприведённому эскизу, сделанному на основе проекта из сообщения 1092. Заранее спасибо! Цитата Посилання на коментар Поділитися на інших сайтах More sharing options...
faraon Опубліковано: 20 червня 2014 Автор Поділитись Опубліковано: 20 червня 2014 Данный проект (фундамент, каркас, кровля) уже строиться в Киевской обл, Барышевского р-на: www.stroimdom.com.ua/forum/showpost.php?p=2883837&postcount=1100 Цитата Посилання на коментар Поділитися на інших сайтах More sharing options...
Larisa Опубліковано: 20 червня 2014 Поділитись Опубліковано: 20 червня 2014 О! Приветствую вас, Григорий! Думала вы уж совсем пропали... Раз уж объявились, то позвольте задать вопрос: Когда вернете долг за предоплаченные материалы, которому уже скоро 2 года???? Цитата Посилання на коментар Поділитися на інших сайтах More sharing options...
Stopper Опубліковано: 20 червня 2014 Поділитись Опубліковано: 20 червня 2014 О! Приветствую вас, Григорий! Думала вы уж совсем пропали... Раз уж объявились, то позвольте задать вопрос: Когда вернете долг за предоплаченные материалы, которому уже скоро 2 года???? Лариса, Вы шутите! Григорий свои долги прощает! Цитата Посилання на коментар Поділитися на інших сайтах More sharing options...
Larisa Опубліковано: 20 червня 2014 Поділитись Опубліковано: 20 червня 2014 Спасибо, люблю вас (как собрата по не счастью). В отличие от Григория! А все же интересен ответ Фараона, или это слишком вечно! Цитата Посилання на коментар Поділитися на інших сайтах More sharing options...
faraon Опубліковано: 22 червня 2014 Автор Поділитись Опубліковано: 22 червня 2014 ...Думала вы уж совсем пропали... не дождётесь!!!! ...Раз уж объявились, то позвольте задать вопрос: Когда вернете долг за предоплаченные материалы, которому уже скоро 2 года???? позвольте ответить понятливо: во-первых - я и не пропадал, всё это время находился и нахожусь в Киеве...кто хотел меня видеть и слышать - телефоны не изменились - звонили и мы встречались и решали вопросы.... во-вторых - ОГРОМНОЕ спасибо Вам и Вашим "любимым собратьям"...., считающим, что везде ТАК плохо... - реально своими "советами" "помогали" оставаться на плаву..., но как написал в начале - НЕ ДОЖДЁТЕСЬ!!!! в третьих - ответ "любимому собрату" - свои долги прощаю только ИЗБРАННЫМ....., а остальным отдаю. и последнее - Larisa, я Вас к ИЗБРАННЫМ не приписываю, но неужели до Вас так и не дошло - почему именно ВАС я игнорирую и тяну с оплатой?.....а при последнем разговоре я Вам говорил, когда отдам....но Вы не удержались.....а ведь немножко осталось......неужели Вам хочется пролонгации?....Всё в Ваших руках!!! Цитата Посилання на коментар Поділитися на інших сайтах More sharing options...
S_Vladimir_79 Опубліковано: 22 червня 2014 Поділитись Опубліковано: 22 червня 2014 и последнее - Larisa, я Вас к ИЗБРАННЫМ не приписываю, но неужели до Вас так и не дошло - почему именно ВАС я игнорирую и тяну с оплатой?.....а при последнем разговоре я Вам говорил, когда отдам....но Вы не удержались.....а ведь немножко осталось......неужели Вам хочется пролонгации?....Всё в Ваших руках!!! Лично я не общался, но с Ларисой мои ребята даже не смогли нормально поговорить. В итоге, переплата по работе с другой компанией, а потом и возникшие проблемы. Поэтому, Гриша, я тебя понимаю... :D 1 Цитата Посилання на коментар Поділитися на інших сайтах More sharing options...
Larisa Опубліковано: 22 червня 2014 Поділитись Опубліковано: 22 червня 2014 Лично я не общался, но с Ларисой мои ребята даже не смогли нормально поговорить. В итоге, переплата по работе с другой компанией, а потом и возникшие проблемы. Поэтому, Гриша, я тебя понимаю... :D Ну, с другой компанией я работаю! Не смотря на переплату. Сделала уже заказ на второй объект (спустя пол года после завершения первого). Сожалею, что ваши люди не умеют общаться с клиентами. Вероятно, цена не главное! К чему вы здесь оставили свой комментарий? Мы с вами не договорились на начальном этапе. Проблем у нас вами не было! Не портьте свою репутацию глупыми высказываниями и поддержкой аферистов! Цитата Посилання на коментар Поділитися на інших сайтах More sharing options...
Larisa Опубліковано: 22 червня 2014 Поділитись Опубліковано: 22 червня 2014 не дождётесь!!!! позвольте ответить понятливо: во-первых - я и не пропадал, всё это время находился и нахожусь в Киеве...кто хотел меня видеть и слышать - телефоны не изменились - звонили и мы встречались и решали вопросы.... во-вторых - ОГРОМНОЕ спасибо Вам и Вашим "любимым собратьям"...., считающим, что везде ТАК плохо... - реально своими "советами" "помогали" оставаться на плаву..., но как написал в начале - НЕ ДОЖДЁТЕСЬ!!!! в третьих - ответ "любимому собрату" - свои долги прощаю только ИЗБРАННЫМ....., а остальным отдаю. и последнее - Larisa, я Вас к ИЗБРАННЫМ не приписываю, но неужели до Вас так и не дошло - почему именно ВАС я игнорирую и тяну с оплатой?.....а при последнем разговоре я Вам говорил, когда отдам....но Вы не удержались.....а ведь немножко осталось......неужели Вам хочется пролонгации?....Всё в Ваших руках!!! Вы давно уже не отвечаете на мои звонки! Но, даже если бы и отвечали! Поболтать с вами - не самоцель. Вы должны мне деньги. Будьте добры, верните долг! Не совсем поняла относительно последнего разговора ( уже как год с вами не разговаривала), так когда отдадите??? Ваша любовь или не любовь, ко мне, не имеет значения. У вас передо мной материальные обязательства! Цитата Посилання на коментар Поділитися на інших сайтах More sharing options...
S_Vladimir_79 Опубліковано: 22 червня 2014 Поділитись Опубліковано: 22 червня 2014 (змінено) Сожалею, что ваши люди не умеют общаться с клиентами. Странно, что со всеми сумели, а только с вами нет... А написал я, потому что этот форум читают многие, и чтобы люди не принимали ваши все слова на веру, не зная вас. А Гришу я не защищаю, а просто понимаю Змінено 22 червня 2014 користувачем S_Vladimir_79 1 Цитата Посилання на коментар Поділитися на інших сайтах More sharing options...
Larisa Опубліковано: 23 червня 2014 Поділитись Опубліковано: 23 червня 2014 Странно, что со всеми сумели, а только с вами нет... А написал я, потому что этот форум читают многие, и чтобы люди не принимали ваши все слова на веру, не зная вас. А Гришу я не защищаю, а просто понимаю То есть вы понимаете как можно взять у клиента деньги и не возвращать??? Побойтесь Бога! Ведь люди, читающие форум могут решить, что вы тоже так делаете. А относительно того, что я выбрала для работы не вас, а других, то разве это не мое право? Вы так яростно на меня на бросились. А мы ведь с вами даже по телефону не общались, поэтому вы меня тоже не знаете... А мои слова на веру принимать не нужно. У меня есть с Фараоном договор, есть банковские выписки и расписки о приеме денег. Цитата Посилання на коментар Поділитися на інших сайтах More sharing options...
Stopper Опубліковано: 25 червня 2014 Поділитись Опубліковано: 25 червня 2014 в третьих - ответ "любимому собрату" - свои долги прощаю только ИЗБРАННЫМ....., а остальным отдаю. Григорий, Вы бы строили так как пишите. Или мне специально накосячили где только могли? 1 Цитата Посилання на коментар Поділитися на інших сайтах More sharing options...
Larisa Опубліковано: 25 червня 2014 Поділитись Опубліковано: 25 червня 2014 Я закончила объект после Фараона, но переднлать пришлось практически все! Такого брака за все время стройки у меня не было! Цитата Посилання на коментар Поділитися на інших сайтах More sharing options...
YaOlejka Опубліковано: 25 червня 2014 Поділитись Опубліковано: 25 червня 2014 но переднлать пришлось практически все!что именно и зачем переделали? раз обвиняете человека то конкретизируте, ато получается как в известном анекдоте. ...........Эволюция, быстрее всего действует на наших отечественных сантехников. Как это ни странно, но каждый приходящий сантехник, умнее предыдущего....Практически всегда звучит фраза одна и та же фраза: "И шо за дятел Вам это делал" .............. Цитата Посилання на коментар Поділитися на інших сайтах More sharing options...
Larisa Опубліковано: 26 червня 2014 Поділитись Опубліковано: 26 червня 2014 Ну, например, переделывали крышу, которая текла нещадно. Потому как шифер был уложен с нахлестом в пол волны, а конек толком не закреплен. На течь крыши Фараону указывалось, он только фыркнул в ответ. Переделывали конструктивную часть каркаса, потому как потолочная балка оказалась на пути печной трубы. Хотя, когда делались замеры для каркаса, труба уже существовала и ее расположение было абсолютно точно известно. И на это я обращала внимания и просила учесть. Но, это не учли, ни на этапе проектирования каркаса, ни на этапе сборки. Переделывали разводку канализационных труб, потому, как оказалось, когда подняли ОСБ с пола (ОСБ уже был закреплен), что трубы даже толком не соединены между собой. А подполовое пространство уже было подготовлено под задувку утеплителя. Представляю, что было бы если бы так и задули. На все это недостатки указывалось в процессе работы. Но, Гриша очень не любит когда ему указывают. Он тогда обижается и бросает объект. А остальное они, к счастью, не успели сделать! Мой объект был прошен Фараоном даже с недозашитыми стенами. Поэтому, и дозашивали и утепляли другие. Думаю, что и перечисленного достаточно. Я его уже и не обвиняю! Деньги он все равно возвращать не собирается. Недочеты его работы, уже исправили другие. Я пишу все это в его рекламной ветке, чтоб другие былы внимательнее при выборе подрядчика и не на ступали на мои грабли. 3 Цитата Посилання на коментар Поділитися на інших сайтах More sharing options...
faraon Опубліковано: 26 червня 2014 Автор Поділитись Опубліковано: 26 червня 2014 Ну, например, переделывали крышу, которая текла нещадно. ...Потому как шифер был уложен с нахлестом в пол волны, а конек толком не закреплен. . . нет не текла. при моём визите, как Вы выразились, ВСЯ стропильная система, была суха, хотя на улице шел дождь по поводу шифера - что значит на пол волны? - большая волна на меньшую волну....хотя может кто-то и по другому ложит.....а от Вас слышать подобный бред - не удивлён. .... Переделывали конструктивную часть каркаса, потому как потолочная балка оказалась на пути печной трубы. Хотя, когда делались замеры для каркаса, труба уже существовала и ее расположение было абсолютно точно известно. И на это я обращала внимания и просила учесть. Но, это не учли, ни на этапе проектирования каркаса, ни на этапе сборки. . . изначально до монтажа крыши ВЫ УВЕРЯЛИ, что труба будет УЖЕ готова...потом на этапе стропилки - ЩАС ВОТ ТОЛЬКО КАК ТО ОН ЗАНЯТ...потому что МУДАК ОН .....толи трубку не берет ..толи ещё какая хрень.......и только потом - ПРОСИЛИ УЧЕСТЬ.... - ДА МЫ НЕ УЧЛИ, потому что уже было сделано. - так что не надо щебетать в ВАШЕМ СТИЛЕ.... Переделывали разводку канализационных труб, ..как оказалось, когда подняли ОСБ с пола (ОСБ уже был закреплен), что трубы даже толком не соединены между собой. . . тоже не правда - ВСЁ БЫЛО СОЕДИНЕНО и ПРОВЕРЕНО, а если ВЫ лазили туда ПОСЛЕ ТОГО КАК....по каким то своим тараканам - Ведь ОСБ снимали зачем-то.....а трубы в подполье на хомутах были раскреплены......так что не надо все беды к одному мести... а люди Вашу ветку пускай читают...и на текучку кадров обратят внимание...... до нас....а после нас сколько было? - 3-4-5-6 бригад или больше? - но это же Ваша правда....ВСЕ ЖЕ КОЗЛЫ и УРОДЫ........... Цитата Посилання на коментар Поділитися на інших сайтах More sharing options...
Larisa Опубліковано: 26 червня 2014 Поділитись Опубліковано: 26 червня 2014 нет не текла. при моём визите, как Вы выразились, ВСЯ стропильная система, была суха, хотя на улице шел дождь ВСЮ стропильную систему, вы даже и не думали осматривать. Дождя на улице не было. Я вам четко показала следы лужи на полу, которая образовалась после прошедшего дождя. Искать причину появления такой лужи вы даже не стали. по поводу шифера - что значит на пол волны? - большая волна на меньшую волну....хотя может кто-то и по другому ложит.....а от Вас слышать подобный бред - не удивлён. Шифер переложили с большим нахлестом, т.е. не на первую волну, а на вторую. Конек подняли и укрепили. Итог: луж больше нет. изначально до монтажа крыши ВЫ УВЕРЯЛИ, что труба будет УЖЕ готова...потом на этапе стропилки - ЩАС ВОТ ТОЛЬКО КАК ТО ОН ЗАНЯТ...потому что МУДАК ОН .....толи трубку не берет ..толи ещё какая хрень.......и только потом - ПРОСИЛИ УЧЕСТЬ.... - ДА МЫ НЕ УЧЛИ, потому что уже было сделано. - так что не надо щебетать в ВАШЕМ СТИЛЕ.... Каркасник вы ставили на уже перекрытом 1 этаже. Трубой перекрытие 1 этажа уже было пройдено. Местоположение трубы было четко видно. Мастера ждали, чтоб он прошел уже основную крышу каркасника. Но, его появление или не появление не имеет отношения к тому, что труба должна была четко упереться в смонтированное вами деревянное перекрытие. В разговоре о мастере слово "мудак" мною не употреблялось. тоже не правда - ВСЁ БЫЛО СОЕДИНЕНО и ПРОВЕРЕНО, а если ВЫ лазили туда ПОСЛЕ ТОГО КАК....по каким то своим тараканам - Ведь ОСБ снимали зачем-то.....а трубы в подполье на хомутах были раскреплены......так что не надо все беды к одному мести... Так соедененны или раскреплены? Вы хоть сами поняли, что написали? а люди Вашу ветку пускай читают...и на текучку кадров обратят внимание...... до нас....а после нас сколько было? - 3-4-5-6 бригад или больше? - но это же Ваша правда....ВСЕ ЖЕ КОЗЛЫ и УРОДЫ........... Пусть, конечно, мою ветку читают. Но, рукламируетесь, то вы! Предлагаете деньги нести вам! И деньги должны мне вы, а не наоборот. Поэтому, люди должны знать, чем это может быть чревато. А после вас было 3 бригады и 1 строитель, кот. работает у меня уже второй год. Первая бригада защивала деревом, вторая бригада - приехала задула утеплитель. Третья бригада делала внутрянку на 1 этаже. Нынешний строитель сейчас делает все по мелочи, в прошлом году с помощником утепляли 1 этаж и участвовал во внутрянке. Цитата Посилання на коментар Поділитися на інших сайтах More sharing options...
andrygoram Опубліковано: 1 листопада 2014 Поділитись Опубліковано: 1 листопада 2014 добрый день , посчитайте пожалуйста дом по этому проэкту в Чернигов profikarkas.com.ua/project/37-z66 Цитата Посилання на коментар Поділитися на інших сайтах More sharing options...
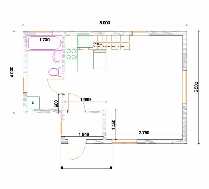
faraon Опубліковано: 27 лютого 2015 Автор Поділитись Опубліковано: 27 лютого 2015 Комплектация предложения: Фундамент – УШП (утеплённая «шведская плита») с увеличенной защитой фундаментной плиты по торцевой части. Наружные стены с увеличенной толщиной утепления (целлюлозный утеплитель Юнизол, толщиной 250мм) и дополнительной теплоизоляцией по фасаду (ПСБ-С, толщиной 100мм) – сопротивление теплопередачи ограждающей конструкции R=7.98м2•°С/Вт Внутренние перегородки с увеличенной толщиной утепления (целлюлозный утеплитель Юнизол, толщиной 150мм) Платформы перекрытия с увеличенной толщиной теплоизоляции (целлюлозный утеплитель Юнизол, толщиной 400мм) Кровля – угол наклона кровли 30°, покрытие: битумная черепица, подшивка: соффит-панели, водосточная система. Окна – 5-и камерный профиль, 2-х камерный стеклопакет с функцией энергосбережения + солнцезащита (Silverstar Selekt) Наружные двери – входная: с двойной герметизацией и теплозащитой + доп.дверь изнутри (м/п), террасная: металлопластик с функцией энергосбережения (Silverstar ENplus) Фасад – декоративная штукатурка Внутренняя поверхность под отделку – гипсокартон в 2 слоя без шпаклёвочных работ Электросети – проложены и сведены в электрощитовую Система вентиляции – полная система вентканалов с выводом в техническую комнату Система канализации – полностью разведена и выведена за пятно фундамента Цена предложения 30000,0$ дополнительно к данной комплектации: grfaraon.wix.com/derevokarkas#!-/cj1x Цитата Посилання на коментар Поділитися на інших сайтах More sharing options...
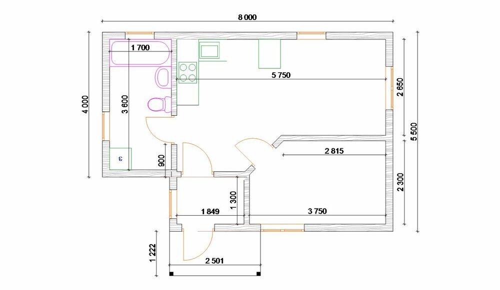
faraon Опубліковано: 2 березня 2015 Автор Поділитись Опубліковано: 2 березня 2015 Комплектация предложения: • Фундамент – свайный (столбчатый) • Общая площадь проекта – 53 кв.м (1 этаж – 41 кв.м., 2 этаж (антресоль) – 12 кв.м.) • Отделка: • Терраса - дерево • Пол – дерево (доска пола) • Внутренних стен – дерево (имитация под брус) • Потолок – дерево (вагонка) • Фасад – дерево (имитация под брус) • Утепление – целлюлозный утеплитель Юнизол: Пол – 200мм, Наружные стены – 150мм, Внутренние перегородки – 100мм, Потолок – 200мм) • Кровля – битумная черепица ТехноНИКОЛЬ (Шинглас) • Окна – металлопластик • Двери: Входная – металлопластик, Внутренние – дерево (массив) • Электросети: Провод ВВГ, Щитовая с дифавтоматами, Фурнитура (розетки, выключатель, светильники) • Вентиляция: Кухня, Санузел • Лестница – дерево Цена предложения 14 000,0 у.е.** (1 у.е. = 21,00 грн) Цитата Посилання на коментар Поділитися на інших сайтах More sharing options...
faraon Опубліковано: 10 березня 2015 Автор Поділитись Опубліковано: 10 березня 2015 Комплектация предложения: • Фундамент – свайный (столбчатый) • Общая площадь проекта – 41 кв.м • Отделка: • Терраса - дерево • Пол – дерево (доска пола) • Внутренних стен – дерево (имитация под брус) • Потолок – дерево (вагонка) • Фасад – дерево (имитация под брус) • Утепление – целлюлозный утеплитель Юнизол: • Пол – 200мм • Наружные стены – 150мм • Внутренние перегородки – 100мм • Потолок – 200мм • Кровля – битумная черепица ТехноНИКОЛЬ (Шинглас) • Окна – металлопластик • Двери: Входная – металл, Внутренние – дерево (массив) • Электросети: Провод ВВГ, Щитовая с дифавтоматами, Фурнитура (розетки, выключатель, светильники) • Вентиляция: Кухня, Санузел Цена предложения 13000,0 у.е.** (1 у.е. = 21,00 грн) Цитата Посилання на коментар Поділитися на інших сайтах More sharing options...
S_Vladimir_79 Опубліковано: 10 березня 2015 Поділитись Опубліковано: 10 березня 2015 Наружные стены с увеличенной толщиной утепления (целлюлозный утеплитель Юнизол, толщиной 250мм) и дополнительной теплоизоляцией по фасаду (ПСБ-С, толщиной 100мм) – сопротивление теплопередачи ограждающей конструкции R=7.98м2•°С/Вт Это уже не вентфасад будет? Цитата Посилання на коментар Поділитися на інших сайтах More sharing options...
faraon Опубліковано: 10 березня 2015 Автор Поділитись Опубліковано: 10 березня 2015 Это уже не вентфасад будет? да, в проектах, которые будут выходить под названием "тёплый дом" - это будет не вентфасад. пока данный проект "ПИЛОТНЫЙ". Я готовлю серию таких домиков, пока 1-о этажных, с такими характеристиками и сразу под них буду предлагать энергоэфективные системы отопления (солнце, тепловой насос.....), пока подбираем оборудование и считаем...сравниваем......всё таки задача стоит получить "бюджетный энергоэффективный тёплый дом" Варианты проектов буду выкладывать на www.derevokarkas.com.ua тут также буду стараться дублировать Цитата Посилання на коментар Поділитися на інших сайтах More sharing options...
S_Vladimir_79 Опубліковано: 10 березня 2015 Поділитись Опубліковано: 10 березня 2015 названием "тёплый дом" Добавить в УШП еще 100-150 мм ЭППС и почти "пассивным" можно называть. Цитата Посилання на коментар Поділитися на інших сайтах More sharing options...
Рекомендовані повідомлення