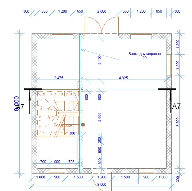
Taly Опубліковано: 31 липня 2013 Поділитись Опубліковано: 31 липня 2013 Ув.форумчане, специалисты! Помогите проверить сечение двутавровой балки на общую и местную устойчивость (п.п. 5.15. СНиП II-23-81*). Расчет балки и расположение ее на плане - в прикрепленных файлах. На 3D видно, как она устанавливается. Материал стен - ГБ 300мм D500 На балку будет опираться балки межэтажного перекрытия (дерево 150х200) и лестница, пол, перестенки и т.д. Распределенная нагрузка 2.5 тн/м.Расчет балки.pdf Посилання на коментар Поділитися на інших сайтах More sharing options...
salexa Опубліковано: 31 липня 2013 Поділитись Опубліковано: 31 липня 2013 Во первых, продумайте узел опирания, так чтоб не было эксинтриситета, например каждую деревянную балку через 2 уголка приваренных к металлической балке, и не нужно будет той устойчивости. Во вторых - это не подкрановая балка, не те нагрузки, не заморачивайтесь. В третьих, для того чтоб что-либо расчитать нужно понимать расчетную схему. Для того чтоб понимать расчетную схему, опять же нужен узел опирания. К примеру, с чего Вы взяли, что по бокам защемление? В четвертых, если все же очень хочется, помогут явно конструктора с программой ( вручную давно уже не считают ИМХО). Посилання на коментар Поділитися на інших сайтах More sharing options...
Taly Опубліковано: 31 липня 2013 Автор Поділитись Опубліковано: 31 липня 2013 ... чтоб не было эксинтриситета ... Не могу понять применение понятия "эксцентриситета" здесь... Поясните плз. каждую балку через 2 уголка приваренных к балке т.е. каждую балку? Балка (двутавр) всего одна, длина ее 7900... Речь идет о том, что бы балку разрезать /по пролетам/ и соединить уголками? В чем смысл? ... не заморачивайтесь... Особо не заморачиваюсь, хочется "подкрепления" в цифрах ... нужен узел опирания... ... с чего Вы взяли, что по бокам защемление... Опирание балки слудующее: Балка укладывается на ГБ (во всех точках опирания) и заливается вместе с монолитным поясом. А т.к. балка будет в монолитном поясе и с ним "завязана", а так же в точках опирания на стены, на нее будет действовать "нагрузки сверху", то и принято в расчетах балки "защемление". Ели ошибаюсь, плз, поправьте. ... помогут явно конструктора с программой... Собственно и хотелось бы услышать их мнение и расчет програмки Спасибо! Посилання на коментар Поділитися на інших сайтах More sharing options...
Drosselbeere Опубліковано: 31 липня 2013 Поділитись Опубліковано: 31 липня 2013 Taly,а по чему не делаете ЖБ балку???? почему метал??? Добавлено через 3 минуты 5.15. Расчет на устойчивость балок двутаврового сечения, изгибаемых в плоскости стенки и удовлетворяющих требованиям пп. 5.12 и 5.14*, следует выполнять по формуле , (34) где Wc - следует определять для сжатого пояса; φb - коэффициент, определяемый по прил. 7*. При определении значения φb за расчетную длину балки lef следует принимать расстояние между точками закреплений сжатого пояса от поперечных смещений (узлами продольных или поперечных связей, точками крепления жесткого настила); при отсутствии связей lef = l (где l - пролет балки) за расчетную длину консоли следует принимать lef = l при отсутствии закрепления сжатого пояса на конце консоли в горизонтальной плоскости (здесь l - длина консоли); расстояние между точками закреплений сжатого пояса в горизонтальной плоскости при закреплении пояса на конце и по длине консоли. Посилання на коментар Поділитися на інших сайтах More sharing options...
Taly Опубліковано: 31 липня 2013 Автор Поділитись Опубліковано: 31 липня 2013 Taly,а по чему не делаете ЖБ балку???? почему метал??? Значительно дороже. Это уже не ЖБ балка, а целый прогон... ЗЫ Как считать, т.е. формулу, видела... Вот только разобраться с ней ну ни как не получается Может кто-то поможет блондинке Посилання на коментар Поділитися на інших сайтах More sharing options...
Drosselbeere Опубліковано: 31 липня 2013 Поділитись Опубліковано: 31 липня 2013 что мне не травится или как бы делал я. 1.под сомнение нагрузка 2,5 т с/м.п от лестницы придет сосредоточенная нагрузка, но ни как не равномерно распределенная , так же тн что за сила не понятно 2.обеспечите ли вы жесткое защемлении как задаете в расчете. 3. если металлическая балка и перекрытие деревянное, то дер. балки лучше врезать в двутавр а не ставить сверху. если же хотите ставить сверху то лучше сделать два швеллера коробочкой и все вопросы по устойчивости пропадут сами собой ))) 1 Посилання на коментар Поділитися на інших сайтах More sharing options...
Taly Опубліковано: 31 липня 2013 Автор Поділитись Опубліковано: 31 липня 2013 ... что за сила не понятно ... Блондинка, опечаталась ... от лестницы придет сосредоточенная нагрузка... Сосредоточеную нагрузку не учла... Это так. Дело в том, что по предварительным "прикидкам" распределенной на самом деле будет не более тонны, т.к. сверху мансардный этаж с легкими перегородками, с/у и все это под крышей из МЧ... Но, завтра, обязательно добавлю и пересчитаю... ... обеспечети ли вы жесткое защимление как задаете в расчете... Не уверена... ... дер. балки лучше врезать в двутавр а не ставить сверху ... Сечение балки 150х200(h), т.е. Вы предлагаете сделать "зарез"в деревянной балке на высоту двутавра (~85мм), его "врезать" в двутавр, а оставшиеся 100мм пойдут по балке? Но обеспечит ли необходимую нагрузку такая балка? И не слишком ли это сложно (удорожание по работам)? ... если же хотите ставить сверху то лучше сделать два швелера коробочкой и все вопросы по устойчивости пропадут сами собой ... Дело в том, что двутавр такой уже лежит на участке .... Посилання на коментар Поділитися на інших сайтах More sharing options...
salexa Опубліковано: 1 серпня 2013 Поділитись Опубліковано: 1 серпня 2013 Не могу понять применение понятия "эксцентриситета" здесь... Поясните плз. Из плоскости стенка скорее потеряет устойчивость, чем в плоскости. Добавлено через 51 секунду т.е. каждую балку? Балка (двутавр) всего одна, длина ее 7900... Речь идет о том, что бы балку разрезать /по пролетам/ и соединить уголками? В чем смысл? Нет. Сверху на балку приварить два уголка и зажать в них деревянные балки. Добавлено через 1 минуту Цитата: Сообщение от salexa Посмотреть сообщение ... с чего Вы взяли, что по бокам защемление... Опирание балки слудующее: Балка укладывается на ГБ (во всех точках опирания) и заливается вместе с монолитным поясом. А т.к. балка будет в монолитном поясе и с ним "завязана", а так же в точках опирания на стены, на нее будет действовать "нагрузки сверху", то и принято в расчетах балки "защемление". Ели ошибаюсь, плз, поправьте. Не ошибаетесь. 1 Посилання на коментар Поділитися на інших сайтах More sharing options...
Taly Опубліковано: 1 серпня 2013 Автор Поділитись Опубліковано: 1 серпня 2013 ... Сверху на балку приварить два уголка и зажать в них деревянные балки... Спасибо, этот вариант мне нравится. Надо выразить его в деньгах Посилання на коментар Поділитися на інших сайтах More sharing options...
Рекомендовані повідомлення
Створіть акаунт або увійдіть у нього для коментування
Ви маєте бути користувачем, щоб залишити коментар
Створити акаунт
Зареєструйтеся для отримання акаунта. Це просто!
Зареєструвати акаунтУвійти
Вже зареєстровані? Увійдіть тут.
Увійти зараз