Перейти до публікації
Пошук в
  • Додатково...
Шукати результати, які містять...
Шукати результати в...

L-образная крыша, висячие стропила

Rezus

Рекомендовані повідомлення

В следующем году планирую строить каркасный дом. Сейчас занимаюсь изучением того, как лучше сделать крышу.

 

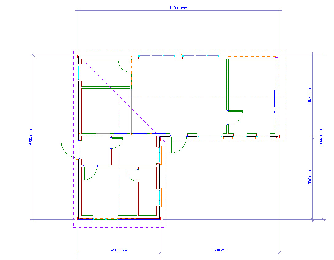
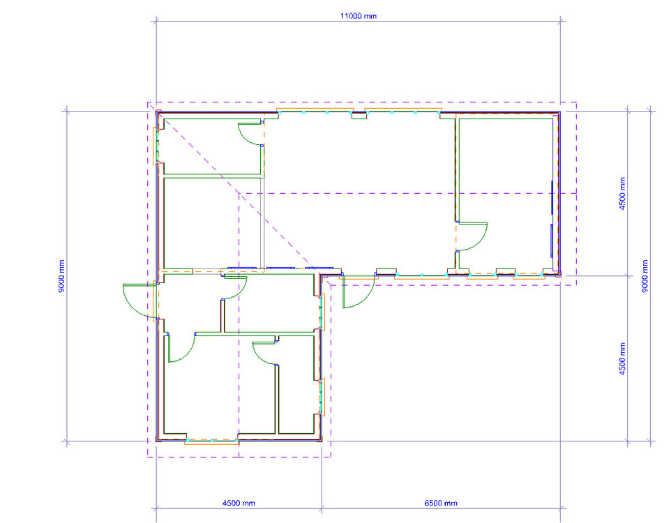
Исходные данные

1. L-образная форма крыши.

2. Схема дома с основными размерами:

attachment.php?attachmentid=298756&stc=1&d=1375877892

 

3. Угол наклона: 18 градусов.

4. Высота "главного" и "примыкающего" строений одинаковая.

5. Схема стыковки строений (тут на нижнем строении вальма; у меня ее не будет):

attachment.php?attachmentid=298757&stc=1&d=1375877984

 

6. Тип стропильной системы: висячие стропила с затяжками.

7. Одна из комнат (самая большая) будет иметь второй свет. Там затяжки будут приподняты на 25 см.

8. Шаг стропил: 0,6 м.

9. Размеры стропил: 200х50. Судя по калькулятору нагрузок можно было смело брать 150х50, но для утепления 200м в комнате со вторым светом решил использовать доску 200.

10. Затяжки: 150х50. Приподнятые на 25 см затяжки: 250х50. Расчеты на калькуляторе:

attachment.php?attachmentid=298759&stc=1&d=1375878079 attachment.php?attachmentid=298760&stc=1&d=1375878079 attachment.php?attachmentid=298762&stc=1&d=1375878079

11. Стропила буду крепить к неконструктивному коньковому прогону вверху:

attachment.php?attachmentid=298763&stc=1&d=1375878124

Низ буду крепить к верхней обвязке каркаса ползуном:

attachment.php?attachmentid=298764&stc=1&d=1375878130

 

На данный момент есть несколько моментов, которые мне не очень понятны.

1. Как расчитать накосные стропила? Предполагаю, что нужно представить, что ендова и вальма - это такая же арка, только развернутая под углом к дому. У этой арки больший пролет, меньший угол наклона стропил и большая длина стропил (по отношению к остальным стропилам дома). Дальше, считать параметры на калькуляторе. Правильно?

2. Как правильно крепить накосные стропила? Интересует схема узла в точке схода двух прогонов и двух накосных стропил. К мауэрлату планирую крепить накосные стропила также, как и основные - ползун. Это верно?

3. Нарожники предполагаю крепить вразбежку и враспор. При этом накосные стропила будут передавать распор на стены. Чтобы его компенсировать, нужно поставить диагональную растяжку от низа одного накосного стропила до низа другого. Это правильно?

4. Если пункт 3 верен, тогда не совсем понятно, как в этой части дома делать перекрытие. Балкам будет мешать эта диагональная затяжка.

 

Возможно, я кое-что усложняю. Буду рад любому совету или ссылке на правильный конструктив.

flourplan.thumb.jpg.4593e9cd2681344e000b2385bac92943.jpg

Lroof.jpg.24cfb32ef9afd545d6aec4b241cf7102.jpg

strop-calc.jpg.fe11a90497e5c1d8780667ce0b39c922.jpg

strop-calc02.jpg.121958b9595d3e5e122998a8ae3611da.jpg

strop-calc03.jpg.fecca41eb15cb57d5da104cba240460e.jpg

constr02.jpg.c8eea18cb72f25fc480de598d93c4ef1.jpg

constr01.jpg.293625f463fee11f759cc88438308d10.jpg

Посилання на коментар
Поділитися на інших сайтах

Уточнение по пункту 10. Не до конца разобрался с калькулятором. На самом деле это расчеты параметров стропил, а не затяжек. То есть для помещения со вторым светом (с приподнятой затяжкой) нужны стропила из 250 доски, а, там где будет перекрытие достаточно стропил из 150 доски. Сами же затяжки буду брать такого же сечения, как и стропила.
Посилання на коментар
Поділитися на інших сайтах

Классный подход -

планирую строить каркасный дом.

А заданные вопросы, говорят о полном непонимании самой сути каркасника. И не только...

Например:

крепить вразбежку и враспор. ... накосные будут передавать распор на стены.

4.не совсем понятно, как...делать перекрытие. Балкам будет мешать эта диагональная затяжка.

 

Не обижайтесь, но колличество вопросов для форума, явно с избытком. :o

 

P.S. Не самореклама, но если очевидны такие пробелы в знаниях, то обратитесь к специалистам. Вот, например Gothia. Хоть и "впереди планеты всей" поп..еть :), но для решения Вашего вопроса, кой чего из мозгов имеет.:beer: А может и вообще - из вашего региона...

Успехов!

Посилання на коментар
Поділитися на інших сайтах

Ну я и не завтра собираюсь этим заниматься. Время есть и вопросы задаю заблаговоременно. Как сделать обычную двухскатную крышу - по этой теме очень много информации. И она вопросов не вызывает. Не понятно, как сделать именно L-образная крышу. Отсюда и вопросы.

 

То, что вы выделили в мой цитате жирным, насколько я понимаю, вы считаете чем-то неграмотным. Но это то, что удалось почерпнуть здесь: ostroykevse.ru/Krisha/Krisha_page_20.html

 

Правило установки нарожников прежнее: они должны устанавливаться вразбежку, а не сходиться в одной точке накосного стропила.

 

Нарожники в ендовах, как все остальные стропила могут быть выполнены по безраспорному и распорному варианту. Распорные стропила соединенные между собой в коньковом узле, низом упираются в накосную стропилину ендовы и отдают на нее распор. Сама же накосная стропильная нога получает дополнительное сжимающее напряжение, которое при упирании ее низом в мауэрлат, а верхом в коньковый узел, дает на мауэрлат распор. Этот распор старается «распрямить» угол стыкования мауэрлатных балок. Распор можно снять схваткой расположенной по низу накосного стропила и стойки либо, в случае Г-образной крыши, по низу накосных стропилин ендовы и вальмы расположенной с другой стороны.

 

Основной мой вопрос касался именно вот этих узлов: накосные стропила и нарожники. Все остальное - это подробное изложение ситуации для тех, кто захотел бы помочь советом. И уточняющие вопросы "на всякий случай".

 

Так как раньше со строительством дела не имел, естественно у меня есть вопросы. Как, впрочем, и у любого начинающего самостройщика, которых на форуме много. Мне подробно разжевывать что и как делать - не нужно. Достаточно было ссылки на пример подобной крыши или краткое указание на ошибки.

 

Затяжками для обычных стропил я планировал сделать балки перекрытия. Поэтому, мне и было не совсем понятно, как делается схватка, описанная в цитате выше, и нужна ли она вообще. Только и всего.

Посилання на коментар
Поділитися на інших сайтах

Правило установки нарожников прежнее: они должны устанавливаться вразбежку, а не сходиться в одной точке накосного стропила.
Странное и необоснованное заявление г-на Савельева :unknown: И хотя возможны оба варианта, но мировая практика говорит об обратном.
Посилання на коментар
Поділитися на інших сайтах

Створіть акаунт або увійдіть у нього для коментування

Ви маєте бути користувачем, щоб залишити коментар

Створити акаунт

Зареєструйтеся для отримання акаунта. Це просто!

Зареєструвати акаунт

Увійти

Вже зареєстровані? Увійдіть тут.

Увійти зараз
×
×
  • Створити...