Перейти до публікації
Пошук в
  • Додатково...
Шукати результати, які містять...
Шукати результати в...

прошу совета по планировке квартиры - стиль прованс/кантри

lugres

Рекомендовані повідомлення

Доброго времени суток, уважаемые форумчане,

 

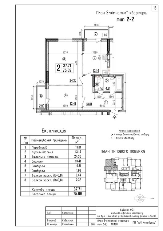
Задача – ремонт квартиры в новостройке.

Стиль – смесь французского прованса и английского кантри, в облегченном виде.

Ориентир для подражания/копирования – во вложении, и по ссылке ниже:

www.ivd.ru/document.xgi?id=7192

 

Свою кухню, гостиную и коридор практически полностью планирую повторить, спальню и санузлы возможно немного изменю.

 

Два варианта планировки в проработке (см. вложение). Также приведен изначальный вариант от строителей. Окна кухни и зала смотрят в парк (6 й этаж, чуть выше крон деревьев), спальня – на юг во внутренний двор и соседний высотный дом. Дом монолитно-каркасный, заполнение керамзитобетонными блоками, наружное утепление пенопластом и штукатурка. Нюанс по окнам – они идут сразу от монолитного потолка, нет привычных перемычек (видимо так строители решили сэкономить).

 

Собственно варианты планировки, с плюсами и минусами:

1. Кухня от гостиной разделена раздвижной перегородкой.

+ можно разделить помещения при необходимости и не мешать друг другу при готовке пищи (шум, запахи), особенно если гости отдыхают в гостиной.

+ также быстро можно объединить помещения, т.о. больше света и пространства. Большую часть времени так и будет.

- образуется узкий длинный коридор из прихожей в кухню, теряется полезная площадь.

2. Кухня и гостиная все время соединены

+ больше света и пространства

+- нет узкого длинного коридора из прихожей в кухню, хотя пространство с пользой по сути использовать нельзя

- нет возможности разделить зоны гостиной и кухни, могут мешать шум и запахи при готовке

 

Вопросы:

1. Что посоветуете, какой из двух вариант планировки выбрать? Возможно есть еще плюсы минусы, которых я не заметил. Лично я склоняюсь к 1-му из практических соображений.

2. Может быть есть стандартный прием как-то смягчить узкий коридор? Например, сделать роспись/фреску на стене коридора в светлых тонах (что-то типа средиземноморской улочки)? Или с одной стороны коридора поместить зеркало с подсветкой.

3. ЖЭК мне предварительно сообщил, что запрещено объединять балкон и кухню согласно ДБН. Я им объяснил что планирую заменить стеклопакеты на балконе на двухкамерные, сделать электрический теплый пол на балконе, но они категорически против, угрожают отключить электричество. Честно говоря не знаю как их убедить, что-то посоветуете? Есть ли официальный путь узаконить объединение?

4. Не уверен из чего делать декоративные балки – из полых собранных досок (относительно легкая конструкция но эффекта состаривания с топором не получиться), либо настоящих полнотелых балок (тяжелые будут)?

5. Стоит ли дополнительно утеплить минватой, звукоизолировать и обшить гипсокартоном стены кухни со стороны соседей, стены спальни и коридора со стороны пожарной лестницы и коридора? Хотелось бы поменьше полезной жилой площади «съесть», какой вариант может быть?

6. Думаю что есть смысл поручить дизайнеру доработать – точные замеры, подготовить чертежи, помочь с подбором мебели, плитки и пр. Сколько будет стоить комплекс работ, с учетом того что концепция понятна, и осталась в основном техническая часть?

 

Более подробное описание вариантов и расстановки мебели, согласно вариантов выше:

1. Кухня от гостиной разделена раздвижной перегородкой

a) Прихожая – справа от входа зеркало и шкаф, слева крючки вешалки и шкаф, вход в коридор ведущий в кухню начинается аркой, по периметру обклеенной плиткой под старый кирпич (см. фото подражания). Возможно между коридором кухней стоит предусмотреть выдвижную или обычную дверь, чтобы можно было изолировать помещения.

b) Санузел большой – справа высокий шкафчик для ванной, затем большая угловая ванная с душем (используется душ 90% времени), слева большая стиралка и большой керамический умывальник.

c) Санузел маленький – слева маленький угловой умывальник с гигиеническим душем, унитаз, над унитазом деревянный шкафчик, часть пространства которого занимает бойлер (или бойлер будет спрятан вверх шкафчика в ванной)

d) Спальня – при входе во всю высоту стены до потолка слева и справа шкаф, затем кровать, тумбы прикроватные и еще добавиться кресло.

e) Кухня – справа начинается холодильником, мойка посудомоечная машина, варочная поверхность с духовкой, навесные шкафчики (см/ объект подражания). Круглый обеденный стол. Арка на балкон (окна на балконе начинаются на уровне 50 см), справа на балконе сундук с мягкими подушками и лампой над ними для чтения, слева фикус или еще какая зелень в горшке, напротив сундука – роспись на стене/фреска, между балконом и кухней небольшая барная стойка - выпить чай/кофе, с табуретами с двух сторон.

f) Гостиная – справа от входа рабочее место с компьютером и полками для книг, затем лежанка/кресло для чтения с большой напольной лампой и еще полки для книг/шкаф. Слева от входа телевизор, угловой портал для искусственного камина с картиной над ним, большой диван (можно гостей положить), круглый невысокий стол и кресло.

g) Пол прихожая, коридор, санузлы, кухня, балкон кухни – плитка, остальное – паркетная доска. Стены – под покраску. Стены в спальне – частично обои. Потолок с балками. Потолок в спальне – фигура из гипсокартона.

2. Кухня и гостиная все время соединены

a) Меняется по сути только место для дивана, искусственного портала камина и телевизора в гостиной. Остальное повторяет вышеперечисленное.

 

Конструктивные изменения:

1. Замена текущих пластиковых окон в гостиной, кухне и на балконе кухни на дубовые темно-коричневого/палисандрового цвета (двойной стеклопакет). Чтобы не нарушать фасад дома, внешняя сторона будет покрашена в белый цвет.

2. Объединение балкона и кухни, организация электрического теплого пола на балконе, перенос существующего радиатора отопления на кухне с подоконного блока левее на монолитную колонну.

3. Замена всех текущих украинских радиаторов Термия на немецкие Керми.

4. Электрический теплый пол в ванной, установка полотенцесушителя Керми.

5. Установка электрического бойлера в санузле.

2137425977_7192_1_b.jpg.796598551e5adcb852f85fae7d2190d1.jpg

1061082620_7192_2_b.jpg.28a30a5d66d15a7f703c09a313eb6676.jpg

267910792_7192_3_b.jpg.924a5d9ffa4309b971e2976303934579.jpg

1837631991_7192_4_b.jpg.8336bd3070fed6842124c6a1a69b42a6.jpg

796695176_7192_5_b.jpg.4d887bfd49924b3ef94904ecff6bdf80.jpg

1909656089_7192_7_b.jpg.581ec60386e5e99d8257cd832455b3e7.jpg

469245201_7192_6_b.jpg.bfda5030ba17b5532235f7698fc4932f.jpg

1377115531_7192_8_b.jpg.4d143e8e5dcb4abe0fc91c0f782ae3a9.jpg

2049429515_7192_main_b.jpg.e0af1ae2369373d90099eced16aff4a5.jpg

243404101_1.thumb.png.833974b85bc9d3c6086d60061b5c069f.png

1614211890_2.thumb.png.0890268c6c9057382d862c468bb4dc74.png

709130250_.jpg.61796337c6a4994c59ea1a61b15718a5.jpg

866306564_.thumb.jpg.0b22107052e24e9f826aab0b23e240db.jpg

914657172_1.thumb.jpg.2763ac101afa76535ad95c0b553dffae.jpg

745030484_2.jpg.8d29de1a6ef65d1fef41c676f981bcd5.jpg

Посилання на коментар
Поділитися на інших сайтах

дам дружескую консультацию по цветам: цвета помещений всей квартиры, основные цвета внутри и цветовые пятна. Посоветую по проектированию кухни и гостинной, только мне надо увидеть обьект, по другому не умею.
Посилання на коментар
Поділитися на інших сайтах

дам дружескую консультацию по цветам: цвета помещений всей квартиры, основные цвета внутри и цветовые пятна. Посоветую по проектированию кухни и гостинной, только мне надо увидеть обьект, по другому не умею.

 

Рая вы дизайнер

Посилання на коментар
Поділитися на інших сайтах

дам дружескую консультацию по цветам: цвета помещений всей квартиры, основные цвета внутри и цветовые пятна. Посоветую по проектированию кухни и гостинной, только мне надо увидеть обьект, по другому не умею.

 

Спасибо за готовность помочь. Сейчас в квартире голые стены, нет даже штукатурки. Посещение объекта в таком состоянии действительно помогает цветовой гамме и проектированию лучше чем чертежи и предложенные фото? :confused:

Посилання на коментар
Поділитися на інших сайтах

Без перегородки, мне больше нравится, большое открытое пространство.

Минус в том, что действительно если принимать гостей с ночевкой, то шум и запах и все такое.

Мы в частном доме сделали подобную перегородку, матовое стекло, пользуемся только при гостях. Образовался небольшой коридор, думали, будет неудобно, но со временем привыкли. Сейчас даже внимания никто не обращает.

 

Очень нравится такой дизайн, особенно на первых трех картинках.

Чем меньше открытого пространства, тем осторожней нужно подойти к выбору цвета и предметов в интерьере, дабы не переборщить, в смысле не перегрузить.

 

Потолочные фальш-балки, раньше видела в Эпицентре, совсем тонкие и легкие.

 

А в общем должно получится интересно. Удачи!

  • Лайк 1
Посилання на коментар
Поділитися на інших сайтах

для людей с воображением - да... вас же не интересует, чтоб было все правильно и красиво на чертеже? вы же хотите чтоб все сошлось на конкретном помещении... так там и работайте... по моему опыту в большинстве случаев визуализация не идеальна, ее нужно прорабатывать, ставить под сомнение или подтверждать на непосредственно на месте, лучше когда готовы стены, рисовать, что где стоит, в общем прорабатывать, не доверять и проверять, чтоб потом наслаждаться комфортом правильных и продуманных решений. что касается цвета, самое важное понять предпочтения человека, адаптировать под стиль, свести между собой по параметрам и функционалу и тд и конечно посмотреть... я вам написала, у меня по другому не работает - пришел, увидел, посоветовал...
Посилання на коментар
Поділитися на інших сайтах

для людей с воображением - да...

 

ОК, спасибо. Построим стены - постараюсь учесть и реализовать Ваши предложения :)

Посилання на коментар
Поділитися на інших сайтах

lugres, Добрый день!

Если Вам нужна будет паркетная доска в стиле кантри - обращайтесь.

Есть паркетная доска с искусственно состаренного дуба, что придаёт дополнительную прочность и твердость дереву.

099 743 08 60

Посилання на коментар
Поділитися на інших сайтах

Рассмотрите еще такой вариант. Для классического интерьера важно правильное построение пространства. По поводу законности присоединения балкона не могу ничего сказать, т.к. сама этим не занималась, но знаю массу случаев, когда это было сделано и узаконено. Чтоб не беспокоили запахи из кухни вытяжной купол над плитой нужно вывести прямо на улицу через стену.

107013452_1.thumb.jpg.ae5ce371e2542ae0d93975477f5c9f29.jpg

Посилання на коментар
Поділитися на інших сайтах

Рассмотрите еще такой вариант. Для классического интерьера важно правильное построение пространства. По поводу законности присоединения балкона не могу ничего сказать, т.к. сама этим не занималась, но знаю массу случаев, когда это было сделано и узаконено. Чтоб не беспокоили запахи из кухни вытяжной купол над плитой нужно вывести прямо на улицу через стену.

 

Спасибо, вариант интересный. Подумаю над ним, но честно говоря мне пока ближе первоначальная идея :)

Посилання на коментар
Поділитися на інших сайтах

Створіть акаунт або увійдіть у нього для коментування

Ви маєте бути користувачем, щоб залишити коментар

Створити акаунт

Зареєструйтеся для отримання акаунта. Це просто!

Зареєструвати акаунт

Увійти

Вже зареєстровані? Увійдіть тут.

Увійти зараз
×
×
  • Створити...