Ant_ua Опубліковано: 22 серпня 2013 Поділитись Опубліковано: 22 серпня 2013 Господа помогите советом по стропилке двускатной крыши,пока не наделал ошибок.Дом одноэтажный размером 9.3 х 11.2м.Чердак не утепленный(не жилой) Угол наклона кровли 30град. Покрытие- битумная черепица 13кг/м2. OSB-9.5мм.Обрешетка 25х100 с шагом около 30см(4шт на лист OSB) Вынос крыши 60см,планировал делать кобылками. Высота в коньке от мауэрлата 2.7м.Длина страпильной ноги 5.3м Шаг планировал делать 600мм На данном этапе есть готовая коробка из ракушечника (37 см).Есть внутренняя несущая стена -армированный бетон (25см),которая стоит не симметрично и делит дом на комнаты 3.5м и 4.8м.Внутренние перегородки уже выложены в пол кирпича силикатного. Балки перекрытия 200х50 с шагом 59см уже лежат и заложены в ракушняк.Поверх балок проложен еще ряд ракушки и сделан по периметру всего дома армопояс 37х20 (в 4 нитки 12мм арматуры) Шпильки для крепления мауэрлата 12мм с крючком уже вмонтированы в армопояс. По совету местных кровельшиков купил в прошлом году такие материалы: Мауэрлат 100х150,страпило 150х50, OSB -9.5мм (Канада) Какую в моем случае выбрать систему? Распорную или нераспорную? Какую вообще оптимально собрать?Выдержит ли армопояс распор? Проэкт рисовал сам.Крышу буду тоже собирать сам. Фото и план дома смогу только завтра выложить. Помогите пожалуйста не наделать ошибок Посилання на коментар Поділитися на інших сайтах More sharing options...
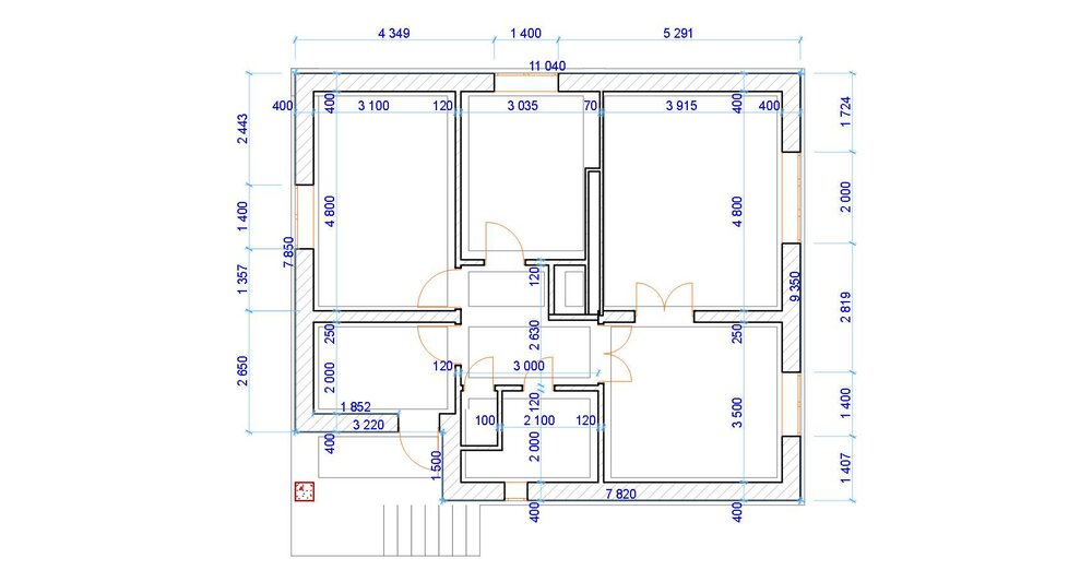
Ant_ua Опубліковано: 24 серпня 2013 Автор Поділитись Опубліковано: 24 серпня 2013 План дома и фото для наглядного примера.Местные строители говорят что достаточно будет затяжки между стропильными ногами на высоте 1.8-2м и крепление к мауэрлату без врубки зубом. Посилання на коментар Поділитися на інших сайтах More sharing options...
Ant_ua Опубліковано: 24 серпня 2013 Автор Поділитись Опубліковано: 24 серпня 2013 Вот сижу и думаю -что правильнее наверно будет сделать как на картинке. Центральная стена смещена на 0.7м у меня.Если делать так как на рисунке нужен ли лежень на стену? Или можно обойтись 4 мя стойками 100х150.Две крайние будут опиратся на армопояс, а две внутренние упрутся в двутавр на концах стены. Посилання на коментар Поділитися на інших сайтах More sharing options...
OlegArh Опубліковано: 24 серпня 2013 Поділитись Опубліковано: 24 серпня 2013 При таком "дурном" армопоясе можно делать и распорную систему. К лежню проще крепить стойки, но можно крепить стойки уголки, а уголки анкерами в стену. 1 Посилання на коментар Поділитися на інших сайтах More sharing options...
Ant_ua Опубліковано: 24 серпня 2013 Автор Поділитись Опубліковано: 24 серпня 2013 Если не ложить лежень(потому как это сложно- армопояс и двутавр со стеной находятся на разных уровнях), а просто упереть стойки в стену (будет4 шт ) как поступить с подкосами? Тоже делать 4 штуки и ложить прогон под стропилу? Посилання на коментар Поділитися на інших сайтах More sharing options...
OlegArh Опубліковано: 25 серпня 2013 Поділитись Опубліковано: 25 серпня 2013 Если не ложить лежень(потому как это сложно- армопояс и двутавр со стеной находятся на разных уровнях), а просто упереть стойки в стену (будет4 шт ) как поступить с подкосами? Тоже делать 4 штуки и ложить прогон под стропилу? Про стойки я написал - ставить на стену и крепить к стене уголками. То же и с двутавром. Висячая система "не канает" . А вот с подкосами - засада! Для стропил 150х50, подкосы требуются под каждое стропило, но как это сделать в вашем случае? Нужно дум-дум... Возможно, что проще сделать ферму с параллельными поясами, в качестве прогона, с правой строны - там где нет стены. 2 Посилання на коментар Поділитися на інших сайтах More sharing options...
Ant_ua Опубліковано: 25 серпня 2013 Автор Поділитись Опубліковано: 25 серпня 2013 Для стропил 150х50, подкосы требуются под каждое стропило, но как это сделать в вашем случае? Нужно дум-дум... Возможно, что проще сделать ферму с параллельными поясами, в качестве прогона, с правой строны - там где нет стены. А если все таки выложить тумбочки на центральную стену и положить лежень.А на него уже установить 4 стойки (через 3м) и подкосы делать к каждой стропилине?Или будет перерасход материала? Про ферму не совсем понял...Приходила на ум такая мысль: собрать ферму как бы до половины(всмысле сверху) высота конька 2.7м так вот затяжку поставить на всю длину лесины тоесть 6м.Затяжка получится от конька на высоте 1.6м .Сейчас попробую изобразить от руки.. Посилання на коментар Поділитися на інших сайтах More sharing options...
OlegArh Опубліковано: 25 серпня 2013 Поділитись Опубліковано: 25 серпня 2013 А если все таки выложить тумбочки на центральную стену и положить лежень.А на него уже установить 4 стойки (через 3м) и подкосы делать к каждой стропилине?Или будет перерасход материала? Про ферму не совсем понял...Приходила на ум такая мысль: собрать ферму как бы до половины(всмысле сверху) высота конька 2.7м так вот затяжку поставить на всю длину лесины тоесть 6м.Затяжка получится от конька на высоте 1.6м .Сейчас попробую изобразить от руки..А зачем еще и тумбочки городить? есть ведь стена...И как вы подкосы от 4-стоек растащите на все стропила.? Посилання на коментар Поділитися на інших сайтах More sharing options...
Ant_ua Опубліковано: 25 серпня 2013 Автор Поділитись Опубліковано: 25 серпня 2013 А зачем еще и тумбочки городить? есть ведь стена...И как вы подкосы от 4-стоек растащите на все стропила.? Я думал их можно и в лежень упереть... Для этого и тумбочки чтоб положить лежень в ровень с двутавром.Или я ошибаюсь? Строю первый раз просто.Поэтому не ругайте сильно Посилання на коментар Поділитися на інших сайтах More sharing options...
OlegArh Опубліковано: 25 серпня 2013 Поділитись Опубліковано: 25 серпня 2013 Я думал их можно и в лежень упереть... Для этого и тумбочки чтоб положить лежень в ровень с двутавром.Или я ошибаюсь? Строю первый раз просто.Поэтому не ругайте сильноЗачем лежень????? Ну, будут разные по длине стойки, что с того? Хотя, если есть желание поизголяться над собой - то не вопрос... Посилання на коментар Поділитися на інших сайтах More sharing options...
Ant_ua Опубліковано: 25 серпня 2013 Автор Поділитись Опубліковано: 25 серпня 2013 Щас картинку намалюю ...Лежень планировал не для того чтоб стойки были одинаковые, а для того чтоб в него подкосы упереть .Всмысле в лежень а не в стойки .И крепеж сделать с приставным бруском как страпило в мауэрлат Посилання на коментар Поділитися на інших сайтах More sharing options...
Ant_ua Опубліковано: 25 серпня 2013 Автор Поділитись Опубліковано: 25 серпня 2013 Если со схемой которая в посте №3 проблемка может лучше сделать так..Узел страпило-мауэрлат сделать с приставным бруском (типа зуб) Можно еще и сами фермы опереть на стену будет правда немного не по центру Посилання на коментар Поділитися на інших сайтах More sharing options...
OlegArh Опубліковано: 25 серпня 2013 Поділитись Опубліковано: 25 серпня 2013 Если со схемой которая в посте №3 проблемка может лучше сделать так..Узел страпило-мауэрлат сделать с приставным бруском (типа зуб) Можно еще и сами фермы опереть на стену будет правда немного не по центруТакая крыша завалится при первом снеге - я же писал, что висячая система "не канает". Возможен вариант: если стропила расположить точно над балками перекрытия, то подкосы опереть на стену, но закрепить их с разных сторон от балок перекрытия - и то же самое будет сос тропилами - подкосы будут наложены на стропило. И вообще уйти от стоек и прогонов! Посилання на коментар Поділитися на інших сайтах More sharing options...
Ant_ua Опубліковано: 25 серпня 2013 Автор Поділитись Опубліковано: 25 серпня 2013 подкосы опереть на стену, но закрепить их с разных сторон от балок перекрытия - и то же самое будет сос тропилами - подкосы будут наложены на стропило. И вообще уйти от стоек и прогонов! так что ли Посилання на коментар Поділитися на інших сайтах More sharing options...
OlegArh Опубліковано: 25 серпня 2013 Поділитись Опубліковано: 25 серпня 2013 так что личто то типа того, но кажется, что можно и без затяжки Посилання на коментар Поділитися на інших сайтах More sharing options...
Ant_ua Опубліковано: 5 вересня 2013 Автор Поділитись Опубліковано: 5 вересня 2013 что то типа того, но кажется, что можно и без затяжки Это получится что то типа фермы чтоли?...Заканчиваю ложить мауэрлат. Завтра послезавтра буду ставить стропила.Нужно точно определится нужен ли прогон как в класической схеме (что выше указывал ) или нет.. Посилання на коментар Поділитися на інших сайтах More sharing options...
Gothia Опубліковано: 6 вересня 2013 Поділитись Опубліковано: 6 вересня 2013 Беда вашей темы что вы задали кучу вопросов обо всём. Задайте один вопрос - получите один ответ. Переходите к следующему. Посилання на коментар Поділитися на інших сайтах More sharing options...
Ant_ua Опубліковано: 11 вересня 2013 Автор Поділитись Опубліковано: 11 вересня 2013 Вот последние фото. Закрепил мауэрлат.Остановился на схеме стропилки как в 3 посте.Можно ли действительно уйти от стоек с прогоном? При этом подпорку под каждую стропильную ногу и затяжку оставить. Растояние между мауэрлатами 8.85м Может кто то точно сказать (посчитать) Посилання на коментар Поділитися на інших сайтах More sharing options...
Ant_ua Опубліковано: 11 вересня 2013 Автор Поділитись Опубліковано: 11 вересня 2013 Тему можно закрывать. Всем кто помог одельное спасибо! Посилання на коментар Поділитися на інших сайтах More sharing options...
VeNick Опубліковано: 11 вересня 2013 Поділитись Опубліковано: 11 вересня 2013 Так на каком варианте остановились? Посилання на коментар Поділитися на інших сайтах More sharing options...
Ant_ua Опубліковано: 12 вересня 2013 Автор Поділитись Опубліковано: 12 вересня 2013 Думаю что вот такой вариант только без прогона и вертикальных стоек. Отказался по простой причине- прогон у меня это брус 150*100.Я его еле еле заволок на крышу.Тяжелый зараза.Если соединить его в 12м, я его ну просто никак не подниму один.А помогать некому.Подсобить могут толко на часик -два не более Поэтому оставлю на потом эту затею.В крайнем случае на готовой кровле попозжее поставлю стойки меньшего сечения под каждое стропило. Посилання на коментар Поділитися на інших сайтах More sharing options...
filip_71 Опубліковано: 13 лютого 2014 Поділитись Опубліковано: 13 лютого 2014 Доброго дня ! Для засыпки перлитом с чердака,нужно просверлить вертикально бревно-обвязку-прогон(наверное так называется) 50мм сверлом,диаметр бревна 150мм,чтоб добраться до пустотки. Вопрос к кровельщикам:насколько ослабится обвязка после сверления,стоит ли ,? Посилання на коментар Поділитися на інших сайтах More sharing options...
filip_71 Опубліковано: 15 лютого 2014 Поділитись Опубліковано: 15 лютого 2014 Доброго дня ! Для засыпки перлитом с чердака,нужно просверлить вертикально бревно-обвязку-прогон(наверное так называется) 50мм сверлом,диаметр бревна 150мм,чтоб добраться до пустотки. Вопрос к кровельщикам:насколько ослабится обвязка после сверления,стоит ли ,? вот фотки этого бревна(может мауэрлат?) Посилання на коментар Поділитися на інших сайтах More sharing options...
Рекомендовані повідомлення
Створіть акаунт або увійдіть у нього для коментування
Ви маєте бути користувачем, щоб залишити коментар
Створити акаунт
Зареєструйтеся для отримання акаунта. Це просто!
Зареєструвати акаунтУвійти
Вже зареєстровані? Увійдіть тут.
Увійти зараз