jursens Опубліковано: 4 лютого 2016 Поділитись Опубліковано: 4 лютого 2016 Стас, в очередной раз спасибо! Рад сотрудничеству рекомендую 1 Посилання на коментар Поділитися на інших сайтах More sharing options...
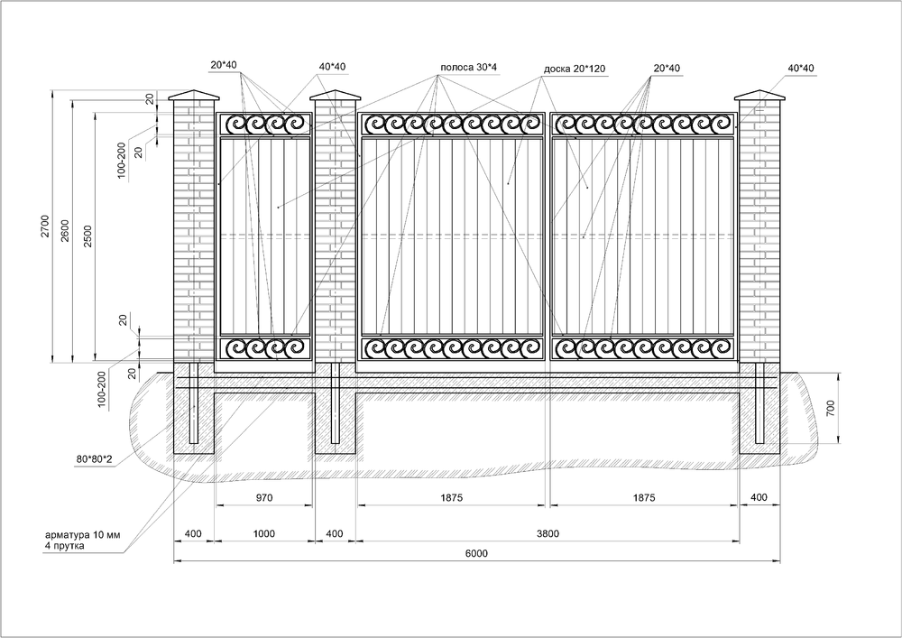
silver8848 Опубліковано: 11 лютого 2016 Поділитись Опубліковано: 11 лютого 2016 Добрый день! Очень понравились Ваши работы. Спрошу совета, так как у Вас есть большой опыт. Хочу сварить и установить ворота и калитку. Нарисовал чертеж, но терзают сомнения все ли правильно. Калитка 1*2,5 м Ворота 3,8*2,5 м Коротко - периметр рамок из трубы 20*40 мм, только со стороны петель труба 40*40. Вверху и внизу с отступом 100-200 мм будет еще труба 20*40 с зашивкой разными "гнутыми" элементами. По середине еще одна труба 20*40. Зашивка ворот и калитки доской 20*120*2000 мм. Доски крепятся к приваренной изнутри полосе 30*4 мм. Петли по 2 шт, диаметр 30 мм. Столбы - труба 80*80*2, обложенные фасадным кирпичем и внутрь трубы залит бетон. Глубина заделки в землю 700-800 мм. Между столбами в земле Ж/Б пояс 200*400 с 4-мя нитками арматуры 10 мм. Какое Ваше мнение о данной конструкции? Спасибо Посилання на коментар Поділитися на інших сайтах More sharing options...
Piontkovskiy Опубліковано: 11 лютого 2016 Автор Поділитись Опубліковано: 11 лютого 2016 Добрый день! Очень понравились Ваши работы. Спрошу совета, так как у Вас есть большой опыт. Хочу сварить и установить ворота и калитку. Нарисовал чертеж, но терзают сомнения все ли правильно. Калитка 1*2,5 м Ворота 3,8*2,5 м Коротко - периметр рамок из трубы 20*40 мм, только со стороны петель труба 40*40. Вверху и внизу с отступом 100-200 мм будет еще труба 20*40 с зашивкой разными "гнутыми" элементами. По середине еще одна труба 20*40. Зашивка ворот и калитки доской 20*120*2000 мм. Доски крепятся к приваренной изнутри полосе 30*4 мм. Петли по 2 шт, диаметр 30 мм. Столбы - труба 80*80*2, обложенные фасадным кирпичем и внутрь трубы залит бетон. Глубина заделки в землю 700-800 мм. Между столбами в земле Ж/Б пояс 200*400 с 4-мя нитками арматуры 10 мм. Какое Ваше мнение о данной конструкции? Спасибо Добрый день! Столбы слабенькие. Минимум 80Х80Х3, а лучше 100Х100Х3/4 Каркас ворот (обрамление) - 40Х40Х2. 40Х20 с таким весом створки будет мало. Чем Вы собираетсь крепить доски к полосе? Если заклепками, то ладно, если саморезами, то они будут торчать внутрь? Петли можно и 28мм 1 Посилання на коментар Поділитися на інших сайтах More sharing options...
silver8848 Опубліковано: 11 лютого 2016 Поділитись Опубліковано: 11 лютого 2016 Добрый день! Столбы слабенькие. Минимум 80Х80Х3, а лучше 100Х100Х3/4 Каркас ворот (обрамление) - 40Х40Х2. 40Х20 с таким весом створки будет мало. Чем Вы собираетсь крепить доски к полосе? Если заклепками, то ладно, если саморезами, то они будут торчать внутрь? Петли можно и 28мм А разве кирпич не несет основную нагрузку? Труба 80*80*2 это просто армировка вместо арматуры. Трубу можно было бы заменить 4-мя прутками арматуры, а внутрь кирпичной кладки залить бетон. Вес дерева на створку максимум 50 кг + сам каркас. Каркас из трубы 20*40 можно усилить в верхнем и нижнем прогоне перемычками. Схематично выглядит так. Получится ферма + усиление кованными элементами. Всего горизонтальных труб 20*40 будет 5 шт. В каком месте будет слабо? Рассматриваю вариант с гнутыми трубами вверху. Возможно доски будут прикладываться к полосе снаружи, крепить изнутри через полосу саморезами не насквозь или мебельными болтами М4-М5 с гладкой шляпкой. Крепление досок меня волнует меньше всего. Вы ничего не сказали про "фундамент" столбов. Посилання на коментар Поділитися на інших сайтах More sharing options...
Piontkovskiy Опубліковано: 11 лютого 2016 Автор Поділитись Опубліковано: 11 лютого 2016 А разве кирпич не несет основную нагрузку? Труба 80*80*2 это просто армировка вместо арматуры. Трубу можно было бы заменить 4-мя прутками арматуры, а внутрь кирпичной кладки залить бетон. Вес дерева на створку максимум 50 кг + сам каркас. Каркас из трубы 20*40 можно усилить в верхнем и нижнем прогоне перемычками. -------------------------------------------------------- I I I I -------------------------------------------------------- Схематично выглядит так. Получится ферма + усиление кованными элементами. Всего горизонтальных труб 20*40 будет 5 шт. В каком месте будет слабо? Доски будут снаружи, крепить изнутри через полосу саморезами не насквозь или мебельными болтами М4-М5 с гладкой шляпкой. Прошу прощения, не всё прочитал Что смущает в столбах - это толщина. Вы же к столбам будете приварить петлю через полосу. усильте это место. Можно сварить и из 20Х20:lol: Это же ферма Рекомендую не экономить, и по всему периметру сделать 40Х40. По полосе всё ок А что Вас смущает в фундаменте? С ним всё хорошо 1 Посилання на коментар Поділитися на інших сайтах More sharing options...
Piontkovskiy Опубліковано: 6 березня 2016 Автор Поділитись Опубліковано: 6 березня 2016 Два каркаса лестниц: 1 Посилання на коментар Поділитися на інших сайтах More sharing options...
Piontkovskiy Опубліковано: 5 квітня 2016 Автор Поділитись Опубліковано: 5 квітня 2016 Решетки для нашего форумчанина Буду рад продолжить сотрудничество 1 Посилання на коментар Поділитися на інших сайтах More sharing options...
Андрей_D Опубліковано: 8 квітня 2016 Поділитись Опубліковано: 8 квітня 2016 Да, это мои решетки! Спасибо Станиславу, качество на высоте, рекомендую! 1 Посилання на коментар Поділитися на інших сайтах More sharing options...
Piontkovskiy Опубліковано: 18 червня 2016 Автор Поділитись Опубліковано: 18 червня 2016 Ограждение на участке Посилання на коментар Поділитися на інших сайтах More sharing options...
yava74 Опубліковано: 2 серпня 2016 Поділитись Опубліковано: 2 серпня 2016 Добрый день! Подскажите, интересует несколько вопросов: 1. Делаете ли Вы навесы под машину. Есть ли примеры? 2. Если у нас металлические ворота (в каменном заборе из бута), в которых просели створки, занимаетесь ли ремонтом? Переварить створки, покраска и т.д. Я создавал тему на форуме, www.stroimdom.com.ua/forum/showthread.php?t=125872&page=2 Посилання на коментар Поділитися на інших сайтах More sharing options...
Piontkovskiy Опубліковано: 2 серпня 2016 Автор Поділитись Опубліковано: 2 серпня 2016 Добрый день! Подскажите, интересует несколько вопросов: 1. Делаете ли Вы навесы под машину. Есть ли примеры? 2. Если у нас металлические ворота (в каменном заборе из бута), в которых просели створки, занимаетесь ли ремонтом? Переварить створки, покраска и т.д. Я создавал тему на форуме, www.stroimdom.com.ua/forum/showthread.php?t=125872&page=2 Добрый день! Да, занимаемся навесами. Какой размер навеса? Чем накрывать? Пожелания по форме? Месторасположения? Фотографий автонавесов нет. Не думаю, что это проблема (вас же что-то сподвигло написать в моей теме?) По ремонту ворот нужно смотреть в чем причина, и тогда понимать что делать оптимальнее всего. Может быть: прогнулись створки, порвало швы, износились петли, завалились столбы и ещё куча разных мелких нюансов. Напишите мне на почту: fullinua@gmail.com Посилання на коментар Поділитися на інших сайтах More sharing options...
Piontkovskiy Опубліковано: 28 серпня 2016 Автор Поділитись Опубліковано: 28 серпня 2016 Домик для генератора Посилання на коментар Поділитися на інших сайтах More sharing options...
Piontkovskiy Опубліковано: 4 вересня 2016 Автор Поділитись Опубліковано: 4 вересня 2016 Подставка для 3-х стабилизаторов: Посилання на коментар Поділитися на інших сайтах More sharing options...
Andrey-Bucha Опубліковано: 26 грудня 2016 Поділитись Опубліковано: 26 грудня 2016 Итого есть дом в Буче. Есть наклонная рампа-заезд. Ширина около 5 метров, длинной 7 метров Хочу накрыть данный заезд козырьком полукруглым. Передний край должен крепиться строго на середины столбиков анкерами через накладку столбика, по 2 столбика-опоры по бокам и задний край должен как то прицепиться к козырьку крыши. не нашел фотки под рукой пока Есть ли образцы работ козырьков и сколько примерно стоить будет? Посилання на коментар Поділитися на інших сайтах More sharing options...
Piontkovskiy Опубліковано: 26 грудня 2016 Автор Поділитись Опубліковано: 26 грудня 2016 Итого есть дом в Буче. Есть наклонная рампа-заезд. Ширина около 5 метров, длинной 7 метров Хочу накрыть данный заезд козырьком полукруглым. Передний край должен крепиться строго на середины столбиков анкерами через накладку столбика, по 2 столбика-опоры по бокам и задний край должен как то прицепиться к козырьку крыши. не нашел фотки под рукой пока Есть ли образцы работ козырьков и сколько примерно стоить будет? Здравствуйте, Андрей! Буду Вам ООООЧЕНЬ благодарен, если продублируете на почту: fullinua(собака)gmail.com Спасибо за понимание! Посилання на коментар Поділитися на інших сайтах More sharing options...
Birzhametalla Опубліковано: 21 січня 2017 Поділитись Опубліковано: 21 січня 2017 Ограждение на участке Подскажите, что за золотое чудо-наполнение? Посилання на коментар Поділитися на інших сайтах More sharing options...
Piontkovskiy Опубліковано: 21 січня 2017 Автор Поділитись Опубліковано: 21 січня 2017 Подскажите, что за золотое чудо-наполнение? Деревянные решетки 1 Посилання на коментар Поділитися на інших сайтах More sharing options...
Vadusla Опубліковано: 6 лютого 2017 Поділитись Опубліковано: 6 лютого 2017 Решетки для нашего форумчанина Буду рад продолжить сотрудничество здравствуйте, Станислав. понравился такой вариант решеток на окна. могли бы посчитать 15 конструкций (отправил на мыло размеры). спасибо. Посилання на коментар Поділитися на інших сайтах More sharing options...
Piontkovskiy Опубліковано: 29 березня 2017 Автор Поділитись Опубліковано: 29 березня 2017 Доступные и стильные решетки. Как всегда в порошке 1 Посилання на коментар Поділитися на інших сайтах More sharing options...
Дядя Воллодя Опубліковано: 26 квітня 2017 Поділитись Опубліковано: 26 квітня 2017 (змінено) Добрый день! Нужны металлические перила для П-образной бетонной лестницы, бюджетный вариант, Длина общая 5,5 метров. Подскажите стоимость. Змінено 26 квітня 2017 користувачем Дядя Воллодя Посилання на коментар Поділитися на інших сайтах More sharing options...
Piontkovskiy Опубліковано: 26 квітня 2017 Автор Поділитись Опубліковано: 26 квітня 2017 Добрый день! Нужны металлические перила для П-образной бетонной лестницы, бюджетный вариант, Длина общая 5,5 метров. Подскажите стоимость. Здравствуйте! Бюджетные варианты могут быть разными. Нужен рисунок/эскиз для просчета. От 1200грн/м.п. С Уважением, Станислав! 1 Посилання на коментар Поділитися на інших сайтах More sharing options...
Cossack Опубліковано: 3 травня 2017 Поділитись Опубліковано: 3 травня 2017 Добрый день! подскажите пожалуйста порядок цен по изготовлению каркаса на калитку (1000х2000) и откатные ворота (4000х2000) под зашивку профнастилом? Нужен только каркас, чтобы можно было самому зашить его профнастилом (уже куплен) и повесить на столбы (уже забетонированны). Если делаете, конечно, такое. Отец уже третий год сам все варит и похоже, что так и не доварит. А закрываться поддонами уже надоело. :sad: Хорошего дня! Посилання на коментар Поділитися на інших сайтах More sharing options...
Piontkovskiy Опубліковано: 11 травня 2017 Автор Поділитись Опубліковано: 11 травня 2017 Добрый день! подскажите пожалуйста порядок цен по изготовлению каркаса на калитку (1000х2000) и откатные ворота (4000х2000) под зашивку профнастилом? Нужен только каркас, чтобы можно было самому зашить его профнастилом (уже куплен) и повесить на столбы (уже забетонированны). Если делаете, конечно, такое. Отец уже третий год сам все варит и похоже, что так и не доварит. А закрываться поддонами уже надоело. :sad: Хорошего дня! Здравствуйте! Каркас под откатные ворота лучше изготавливать в цеху/мастерской. Попадаете на доставку. На выезде такую работу лично я делать не буду. Спасибо за понимание! Посилання на коментар Поділитися на інших сайтах More sharing options...
Piontkovskiy Опубліковано: 12 травня 2017 Автор Поділитись Опубліковано: 12 травня 2017 Наш бункер для пеллет: 3000мм высотой, разборной, 5-и секционный, с двумя крышками сверху и приставной лестницей. Как обычно, в порошке Посилання на коментар Поділитися на інших сайтах More sharing options...
zlsergey Опубліковано: 25 травня 2017 Поділитись Опубліковано: 25 травня 2017 Наш бункер для пеллет: 3000мм высотой, разборной, 5-и секционный, с двумя крышками сверху и приставной лестницей. Как обычно, в порошке мой бункер сделано на совесть, все как было оговорено. испытание полной загрузкой прошел. 1 Посилання на коментар Поділитися на інших сайтах More sharing options...
Рекомендовані повідомлення
Створіть акаунт або увійдіть у нього для коментування
Ви маєте бути користувачем, щоб залишити коментар
Створити акаунт
Зареєструйтеся для отримання акаунта. Це просто!
Зареєструвати акаунтУвійти
Вже зареєстровані? Увійдіть тут.
Увійти зараз