Oleksandr Protsev Опубліковано: 29 вересня 2013 Поділитись Опубліковано: 29 вересня 2013 К сожалению, не смог найти тему где бы описывалась как правильно построить забор. При всем богатстве выбора, нигде не встречал, на сколько нужно закапывать столбики, высота перемычек и т.д? Может я плохо искал? В проекте, есть варианты забора, но, они на бутовой основе и нам не совсем подходят. Надеюсь пригодится всем. Исходные данные. Высота забора 1800-2000. Низ бетон, кирпичные столбы, заполнение (зависит от бюджета, дерево или профнастил). В проекте, пролет между колонами 3 метра. Это фасад. Остальная часть будет без кирпичных столбов, просто дерево, профнастил или рабица. Под ворота и калитку нужно заливать бетона побольше, понимаю, что зависит от типа ворот. К сожалению, пришлось увидеть у товарища, шатающиеся заборные столбы, калитку, поэтому хотелось бы уяснить для себя исходя из разумной достаточности. Посилання на коментар Поділитися на інших сайтах More sharing options...
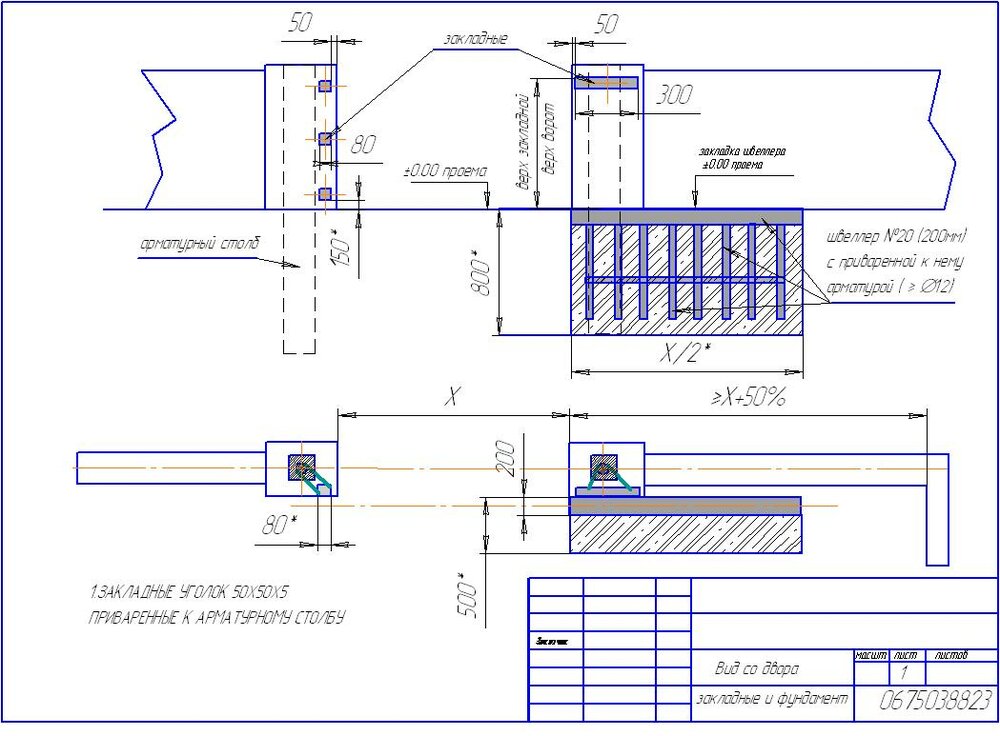
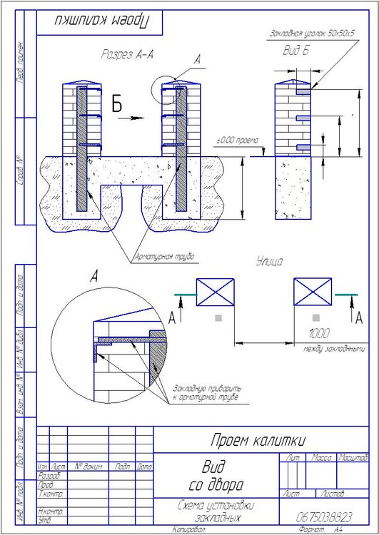
Вратарь Опубліковано: 29 вересня 2013 Поділитись Опубліковано: 29 вересня 2013 Под ворота и калитку нужно заливать бетона побольше, понимаю, что зависит от типа ворот. К сожалению, пришлось увидеть у товарища, шатающиеся заборные столбы, калитку, поэтому хотелось бы уяснить для себя исходя из разумной достаточности. Не нужно побольше бетона. В каждый столб нужно заложить профильную трубу 60х60х3 мм. или 80х80х3 мм. (зависит от высоты столба), в фундамент минимум 1000 мм., грунт у Вас скорее всего песок, этого достаточно, в проеме калитки между столбами должна быть залита бетонная балка. С такой подготовкой столбы шататься не будут. Схемы прилагаю. 3 Посилання на коментар Поділитися на інших сайтах More sharing options...
Oleksandr Protsev Опубліковано: 30 вересня 2013 Автор Поділитись Опубліковано: 30 вересня 2013 Спасибо большое. Если бы песок. А то суглинки, да еще просадочные. Так что, придется глубоко копать. Еще погода продолжает удивлять. Вменяемые ребята застряли на других объектах из-за дождей. Нужно еще под свет и автоматику заложить провода Посилання на коментар Поділитися на інших сайтах More sharing options...
Вратарь Опубліковано: 30 вересня 2013 Поділитись Опубліковано: 30 вересня 2013 Спасибо большое. Если бы песок. А то суглинки, да еще просадочные. Так что, придется глубоко копать. Еще погода продолжает удивлять. Вменяемые ребята застряли на других объектах из-за дождей. Нужно еще под свет и автоматику заложить провода С проводкой нет проблем. Провода ПВС можно (нужно) заменить на подходящие для прокладки под землей. 3 Посилання на коментар Поділитися на інших сайтах More sharing options...
Oleksandr Protsev Опубліковано: 8 жовтня 2013 Автор Поділитись Опубліковано: 8 жовтня 2013 Так кто-то может сказать какая должна быть глубина бетона под кирпичными и железными столбами для забора? Встречаются два варианта 80см и 1м20см. И на какую глубину лить бетон между столбиками? Спасибо. Посилання на коментар Поділитися на інших сайтах More sharing options...
Рекомендовані повідомлення
Створіть акаунт або увійдіть у нього для коментування
Ви маєте бути користувачем, щоб залишити коментар
Створити акаунт
Зареєструйтеся для отримання акаунта. Це просто!
Зареєструвати акаунтУвійти
Вже зареєстровані? Увійдіть тут.
Увійти зараз