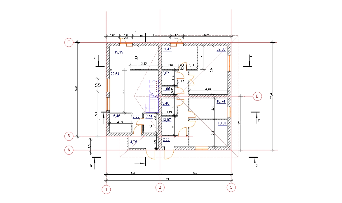
maks1008 Опубліковано: 19 жовтня 2013 Поділитись Опубліковано: 19 жовтня 2013 Пытаюсь рассчитать крышу, так как сейчас нужно закупить дерево, лес рубят недалеко от стройки и пилорама также под боком. Но не особо силён, прошу помощи. Дом на двоих хозяев, левый имеет размер 10,9х6 крыша мансарда,а правый 12,5х8 метров чердак возможно будет жилой (в перспективе). Да, и прошу критики..... Посилання на коментар Поділитися на інших сайтах More sharing options...
OlegArh Опубліковано: 21 жовтня 2013 Поділитись Опубліковано: 21 жовтня 2013 Как это не банально звучит, но здесь требуется проект... P.S. Не обязательно, что мой. Посилання на коментар Поділитися на інших сайтах More sharing options...
maks1008 Опубліковано: 21 жовтня 2013 Автор Поділитись Опубліковано: 21 жовтня 2013 Спасибо что откликнулись, а то я уже разочаровался. Лесник спешит с деревом, а я ещё ничего не надумал. Прошу мне хотя бы помочь с размерами по дереву (сечение), а количество я сам посчитаю. Проект заказать увы не могу, в связи с нехваткой денег, сейчас заливаю фундамент вместе с отцом, стараюсь экономить. Посилання на коментар Поділитися на інших сайтах More sharing options...
_tapac Опубліковано: 21 жовтня 2013 Поділитись Опубліковано: 21 жовтня 2013 Укажите регион строительства, угол крыши, ширину свеса и планируемый материал кровли. Посилання на коментар Поділитися на інших сайтах More sharing options...
OlegArh Опубліковано: 22 жовтня 2013 Поділитись Опубліковано: 22 жовтня 2013 Прошу мне хотя бы помочь с размерами по дереву (сечение), а количество я сам посчитаю. Проект заказать увы не могу, в связи с нехваткой денегТо понятно, шо денег у простых не осталось, но и к вопросу нужно подходить разумно, т.к. вкладывая 70-100 штук в стройку, "экономить" 300-500 доляров на проекте крыши..... А еще меня удивляет, когда беруться "проектировать" кровлю, даже не имея разрезов и как минимум, материалов стен. По лесу скажу и без расчетов: - правая часть дома - стропило 250*70, или спаренные ч/з проставки 200*50 (лучше) - левая часть дома - 200*50 (с запасом). Сечение стропил, меньше 200 - смысла нет, т.к. крышу нужно утеплить... Ну, и длина стропил правой части - больше 8 м. Напилят? Или прийдется сращивать? 3 Посилання на коментар Поділитися на інших сайтах More sharing options...
maks1008 Опубліковано: 22 жовтня 2013 Автор Поділитись Опубліковано: 22 жовтня 2013 Регион- Полтава, угол крыши 30" я так думаю), ширина свеса 80 см, накрывать металлочерепицей. У простых деньги ещё под матрасом остались, но так хочется чтоб они не обесценились))) поэтому всё что есть вкладуем в материалы. Материал стен ракушняк в камень, поверх армопояс. Длинна правой части стропил самая большая 9,5 м, конечно будем сращивать тири штуки гдето по 4м. Мне говорят местные и водят по своим чердакам что достаточно стропилы 150х50мм только в нужных местах ставить опоры, стоит ли прислушиватся? Ведь куда тогда утеплитель? а его хотелось бы 30см впихнуть. А обрешётка и контр обрешётка, какие размеры предпочтительнее? А размер опоры под сращенные стропила такие как и стропила брать то есть 200х50? Добавлено через 10 минут Лесник 8м не на пиляет кругляка, максимум 6м, а так он режит 5-5,5м так как у него самый основной заказчик - гробоклепательник. С одной 5м доски в раз получается на два гроба))) Посилання на коментар Поділитися на інших сайтах More sharing options...
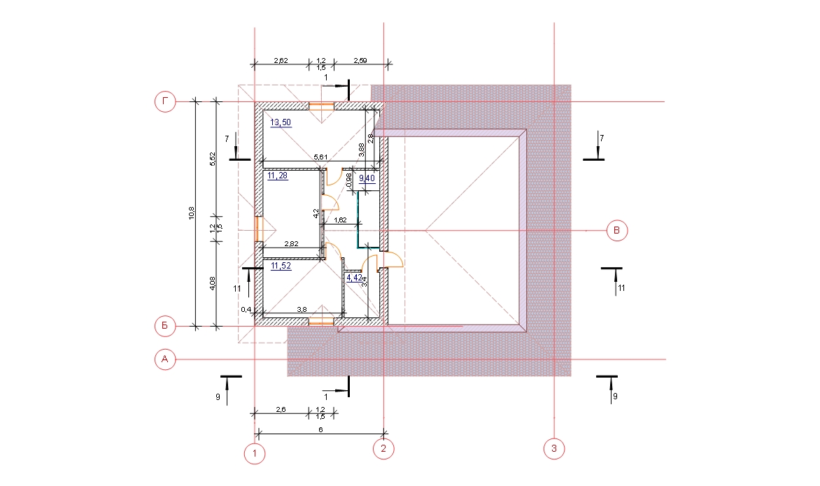
maks1008 Опубліковано: 22 жовтня 2013 Автор Поділитись Опубліковано: 22 жовтня 2013 стоит ли воспринимать такую стропильную систему, конечно ещё нужно в правой части опоры поставить. Посилання на коментар Поділитися на інших сайтах More sharing options...
Gothia Опубліковано: 23 жовтня 2013 Поділитись Опубліковано: 23 жовтня 2013 стоит ли воспринимать такую стропильную систему, конечно ещё нужно в правой части опоры поставить. а слуховые окна как будут держаться? Посилання на коментар Поділитися на інших сайтах More sharing options...
maks1008 Опубліковано: 25 жовтня 2013 Автор Поділитись Опубліковано: 25 жовтня 2013 Форум видать для того чтоб найти подрядчика.............. Посилання на коментар Поділитися на інших сайтах More sharing options...
Dandik Опубліковано: 25 жовтня 2013 Поділитись Опубліковано: 25 жовтня 2013 Здраствуйте, по предоставленной информации сложно элементарно размеры элементов узнать, не то что просчитать сечение. Но не вдаваясь в подробности, диагональные стропила у Вас не то что 150х50, а и 200х50 не пройдут. Я про те что в оси В сходятся. Их длина больше 6м, как один из вариантов сращивать в пол дерева+накладки с обеих сторон. сечение 200х100 это минимум, если сделать корректный расчет нагрузок, может и больше, так как максимальное усилие на диагональ на 1/3 её длины, там будет нагрузка больше 800 кг, а то и больше, в таких местах обычно ставят стойку, если это невозможно, то увеличивают сечение. Идем дальше у вас распорная система стропил соответственно стены воспринимают распор. Надо залить армопояс по кирпичной кладке. Под коньковые прогоны надо стойки если это возможно конечно, тогда можно было б передать усилие на прогоны и снять распор с стен. У вас отсутствует подстропильная часть, она вообще не планировалась или просто не отображена? Критиковать можно и дальше, но мы тут чтоб помочь. А крыша не обычная двухскатка которую можно построить методом "да не упадет, так дед строил еще". Закажите проект у проектировщика, чтоб зимой спать спокойнее, а не делать усиление или реконструкцию весной и это в лучшем случае. Посилання на коментар Поділитися на інших сайтах More sharing options...
maks1008 Опубліковано: 26 жовтня 2013 Автор Поділитись Опубліковано: 26 жовтня 2013 Огромное спасибо за внимание. Диогональные стропилы которые сходятся в оси В имеют длину 11м, я её планирую операть на две опоры при этом как вы и писали сращивать и лепить накладки с обеих сторон. Под стропильная часть не отображена, но она планируется, под коньковые прогоны стойки поставить не могу, а вот организовать "конверт" возможно. Армопояс по кладке будет залит. Посилання на коментар Поділитися на інших сайтах More sharing options...
Dandik Опубліковано: 27 жовтня 2013 Поділитись Опубліковано: 27 жовтня 2013 Если у Вас эскиз в архикаде сделан, можете мне скинуть в свободное время посмотрю. Ну и планировку желательно, чтоб знать где можно опоры поставить. Посилання на коментар Поділитися на інших сайтах More sharing options...
OlegArh Опубліковано: 27 жовтня 2013 Поділитись Опубліковано: 27 жовтня 2013 Если у Вас эскиз в архикаде сделан, можете мне скинуть в свободное время посмотрю. Ну и планировку желательно, чтоб знать где можно опоры поставить.А слабо прочесть сообщение целиком? под коньковые прогоны стойки поставить не могу :D Посилання на коментар Поділитися на інших сайтах More sharing options...
Dandik Опубліковано: 27 жовтня 2013 Поділитись Опубліковано: 27 жовтня 2013 Прочесть не слабо, но если есть 3д модель по которой можно корректно оценить объект, то почему бы и нет?) Безвозмездно собирать по кусочкам информацию я не заинтересован, а в свободное время поразмышлять над очередной задачной поданой в полном объеме я не против Посилання на коментар Поділитися на інших сайтах More sharing options...
maks1008 Опубліковано: 28 жовтня 2013 Автор Поділитись Опубліковано: 28 жовтня 2013 Буду очень благодарен за помощь. www.ex.ua/467589559550 эскиз в архикад. Посилання на коментар Поділитися на інших сайтах More sharing options...
fort[x] Опубліковано: 8 листопада 2013 Поділитись Опубліковано: 8 листопада 2013 maks1008, проэкт хороший, в кровле, не вижу уязвимых мест, так же как и дымоходов с вентиляцией!)) расчитать очень просто стропила, обрешетку, и т.д. ... 90% всех кровель расчитываю именно так, ахитекторам лень делать свою работу... если актуально, мргу помочь в этом вопросе!? Посилання на коментар Поділитися на інших сайтах More sharing options...
Рекомендовані повідомлення
Створіть акаунт або увійдіть у нього для коментування
Ви маєте бути користувачем, щоб залишити коментар
Створити акаунт
Зареєструйтеся для отримання акаунта. Це просто!
Зареєструвати акаунтУвійти
Вже зареєстровані? Увійдіть тут.
Увійти зараз