Luko Опубліковано: 1 листопада 2013 Поділитись Опубліковано: 1 листопада 2013 Я очень хотела топочную, но приговор архитектора был суров - в таком маленьком доме ей места нет. Котел планируем ставить на кухне. хм... у меня дом с точно такой же площадью, даже десятые совпадают... и топочная есть... и дом немаленький... ну, архитектору виднее... 1 Посилання на коментар Поділитися на інших сайтах More sharing options...
qipru Опубліковано: 1 листопада 2013 Автор Поділитись Опубліковано: 1 листопада 2013 А Совет директоров утвердил не самые экономные решения по конструктиву? Совет директоров лелеял сланец и поротерм Посилання на коментар Поділитися на інших сайтах More sharing options...
Olenevod Опубліковано: 1 листопада 2013 Поділитись Опубліковано: 1 листопада 2013 А мастер по подчерку очень похож на Докса Не? 2 Посилання на коментар Поділитися на інших сайтах More sharing options...
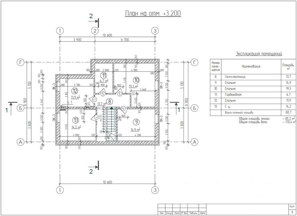
vadimv Опубліковано: 1 листопада 2013 Поділитись Опубліковано: 1 листопада 2013 Ну и немного технических подробностей.На 2-м этаже два "С.у." (санузла?) площадями 19,3 (10) и 14,2 (13)? Фигасе... Посилання на коментар Поділитися на інших сайтах More sharing options...
AНДРЮША Опубліковано: 1 листопада 2013 Поділитись Опубліковано: 1 листопада 2013 Второй этаж ради санузлов строится? Посилання на коментар Поділитися на інших сайтах More sharing options...
qipru Опубліковано: 1 листопада 2013 Автор Поділитись Опубліковано: 1 листопада 2013 На 2-м этаже два "С.у." (санузла?) площадями 19,3 (10) и 14,2 (13)? Фигасе... Прошу прощения за опечатку, 10 - это комната. Добавлено через 16 минут В очередной раз, собрав совет директоров, на повестку дня был вынесен вопрос: кто поведет наш корабль в бурное плаванье по штормящему морю индивидуального строительства, кишащему недобросовестными акулами и безрукими приливами? Из активов в наличии имелся собственноручно криво установленный забор, залихватски уложенная плитка на балконе квартиры и пример друзей, умудрившихся за 7 лет и одну зарплату таки cамолично построить себе дом. Из пассивов – опять же некоторая кривизна исполнения и нежелание тратить 7 лет на стройку. Так как архитектору мы уже безгранично доверяли, и что–то из школьного курса подсказывало про восполнимые и невосполнимые ресурсы, было решено встретиться с СамымЛучшимВМире Капитаном (в миру прорабом) на поглядеть. Капитан обладал обаятельной улыбкой, кристально честным взглядом небесно-голубых глаз и ноутбуком с фотографиями предыдущих объектов. Встреча прошла немного сумбурно, мы задавали вопросы о договорах, гарантиях, и сроках проекта, а Капитан показывал красочные картинки. «Вот довольные заказчики приехали пофотографироваться» гордо сообщил Капитан и показал нам фото розовощеких херувимов, на фоне трезвоработающих строителей, с сияющими глазами и улыбками. «Неужели такое возможно?» подумала я и растаяла сердцем. 3 Посилання на коментар Поділитися на інших сайтах More sharing options...
MACTEP JIOMACTEP Опубліковано: 1 листопада 2013 Поділитись Опубліковано: 1 листопада 2013 Ну и немного технических подробностей. Что-то? На втором этаже 2 с.у.? Там и каждый по отдельности великоват. А два? P.S. Уже вижу... Это в проекте архитектора, которому безгранично доверились, ошибки? Посилання на коментар Поділитися на інших сайтах More sharing options...
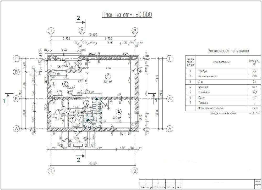
ДОКС Опубліковано: 1 листопада 2013 Поділитись Опубліковано: 1 листопада 2013 С позволения ТС выкладываю Планы... 2 Посилання на коментар Поділитися на інших сайтах More sharing options...
MACTEP JIOMACTEP Опубліковано: 1 листопада 2013 Поділитись Опубліковано: 1 листопада 2013 С позволения ТС выкладываю Планы... А почему терраса такая маленькая? Там только лавочка и влезет. И окна такие узкие. А с какой стороны юг? Посилання на коментар Поділитися на інших сайтах More sharing options...
Татьяна5 Опубліковано: 2 листопада 2013 Поділитись Опубліковано: 2 листопада 2013 Капитан обладал обаятельной улыбкой, кристально честным взглядом небесно-голубых глаз и ноутбуком с фотографиями предыдущих объектов. По ходу, имя капитана тоже уже понятно :D:rolleyes: 1 Посилання на коментар Поділитися на інших сайтах More sharing options...
Елочка Опубліковано: 2 листопада 2013 Поділитись Опубліковано: 2 листопада 2013 По ходу, имя капитана тоже уже понятно Я тоже о нем сразу подумала.:D Посилання на коментар Поділитися на інших сайтах More sharing options...
qipru Опубліковано: 2 листопада 2013 Автор Поділитись Опубліковано: 2 листопада 2013 Я тоже о нем сразу подумала.:D Забыла предупредить. All characters and events depicted are fictional, and any resemblance to persons living, dead, or fictional or situations past, present, or fictional is purely and completely coincidental 2 Посилання на коментар Поділитися на інших сайтах More sharing options...
Игореха Опубліковано: 2 листопада 2013 Поділитись Опубліковано: 2 листопада 2013 Забыла предупредить. All characters and events depicted are fictional, and any resemblance to persons living, dead, or fictional or situations past, present, or fictional is purely and completely coincidental От жеж. А я думал дом строите..... А литературный слог - тоже вымысел?:D На самом деле вы так не умеете? ;) 1 Посилання на коментар Поділитися на інших сайтах More sharing options...
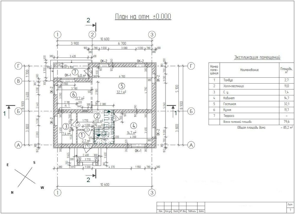
qipru Опубліковано: 2 листопада 2013 Автор Поділитись Опубліковано: 2 листопада 2013 А почему терраса такая маленькая? Там только лавочка и влезет. И окна такие узкие. А с какой стороны юг? Это все мой Совет директоров Говорю - хочу балкон, он - зачем тебе балкон, когда у тебя целый участок земли есть. Так и с террасой. Хотя все-таки в раздумьях - может продлить ее немного при заливке, пусть выступает за границы дома? План первого этажа со схематичным изображением сторон света прикладываю. Посилання на коментар Поділитися на інших сайтах More sharing options...
Luko Опубліковано: 2 листопада 2013 Поділитись Опубліковано: 2 листопада 2013 По ходу, имя капитана тоже уже понятно :D:rolleyes: Попкорн готовить? 1 Посилання на коментар Поділитися на інших сайтах More sharing options...
Татьяна5 Опубліковано: 2 листопада 2013 Поділитись Опубліковано: 2 листопада 2013 Попкорн готовить? нееее, этот капитан - умничка ;) 1 Посилання на коментар Поділитися на інших сайтах More sharing options...
qipru Опубліковано: 2 листопада 2013 Автор Поділитись Опубліковано: 2 листопада 2013 От жеж. А я думал дом строите..... Дом строим! Посилання на коментар Поділитися на інших сайтах More sharing options...
Большой Котяра Опубліковано: 2 листопада 2013 Поділитись Опубліковано: 2 листопада 2013 а из крупноформатных блоков строить не прикидывали? Посилання на коментар Поділитися на інших сайтах More sharing options...
ДОКС Опубліковано: 2 листопада 2013 Поділитись Опубліковано: 2 листопада 2013 Дом строим! фото бы.... :rolleyes: Посилання на коментар Поділитися на інших сайтах More sharing options...
qipru Опубліковано: 2 листопада 2013 Автор Поділитись Опубліковано: 2 листопада 2013 фото бы.... :rolleyes: В раздумьях . Отчет задумывался, как иносказательная повесть из серии "счас мы тут быстренько расскажем, как я провел лето" с картинками, и плавным переходом в текущую суровую действительность Или лучше сразу текущую действительность? Добавлено через 2 минуты а из крупноформатных блоков строить не прикидывали? Думали. Но решили, что они более хрупкие, чем 2НФ. Посилання на коментар Поділитися на інших сайтах More sharing options...
ДОКС Опубліковано: 2 листопада 2013 Поділитись Опубліковано: 2 листопада 2013 В раздумьях . Отчет задумывался, как иносказательная повесть из серии "счас мы тут быстренько расскажем, как я провел лето" с картинками, и плавным переходом в текущую суровую действительность Или лучше сразу текущую действительность? как Вам удобно... думаю "повесть с картинками" таки предпочтительней... 1 Посилання на коментар Поділитися на інших сайтах More sharing options...
Елочка Опубліковано: 2 листопада 2013 Поділитись Опубліковано: 2 листопада 2013 All characters and events depicted are fictional, and any resemblance to persons living, dead, or fictional or situations past, present, or fictional is purely and completely coincidental Стройка реальная и это самое главное!!!;) Хотя архитектора уже рассекретили, и я вам больше скажу, я тоже строюсь по его проекту, так что скоро будем создавать раздел - стройки по проектам от ДОКСА. А если еще и тот капитан;), так Вам вдвойне повезло и надеемся на интересное повествование! Посилання на коментар Поділитися на інших сайтах More sharing options...
MACTEP JIOMACTEP Опубліковано: 2 листопада 2013 Поділитись Опубліковано: 2 листопада 2013 ...Хотя все-таки в раздумьях - может продлить ее немного при заливке, пусть выступает за границы дома?... Внешний вид домика цельный, чувствуется набитая рука. Выступающая терраса будет, как бельмо. Однако то что у вас - это не терраса. Так, навесик, чтоб оправдать архитектурную находку с уступом в доме. На втором этаже, на месте этого уступа, должен быть, по логике коттеджного строительства, балкон. Только нафига он? А терраса с южной стороны - это аут. Пока деревья не вырастут, вы там летом не посидите. Никакие маркизы не помогут. 2 Посилання на коментар Поділитися на інших сайтах More sharing options...
qipru Опубліковано: 3 листопада 2013 Автор Поділитись Опубліковано: 3 листопада 2013 Хотя архитектора уже рассекретили, и я вам больше скажу, я тоже строюсь по его проекту Что ж, с карьерой писателя детективного жанра пришлось распрощаться, даже не начав Спасибо за пожелания, я Вашу веточку уже давно читаю , ветку Ykochubey даже не читаю - просто любуюсь ;). Выступающая терраса будет, как бельмо...А терраса с южной стороны - это аут. Эх, значит оставим, как есть. Не зря говорят, не меняйте проект во время стройки! Насчет южной стороны - терраса смотрит больше на юго-восток, и как раз рядом взрослые сосны. 2 Посилання на коментар Поділитися на інших сайтах More sharing options...
qipru Опубліковано: 3 листопада 2013 Автор Поділитись Опубліковано: 3 листопада 2013 ...Май прошел в повышении юридической грамотности отдельно взятого населения и взрослых развивающих играх «Пойди попробуй получи стройпаспорт бесплатно» и «Заполни-ка правильно с первого раза уведомление». Кстати, выйти из первой победителем нам помог заказанный проект, часть из которого успешно перекочевала в стройпаспорт. Во второй мы сперва потерпели поражение, но мобилизовавшись, сумели отыграться и получить – таки заветный номерок. Параллельно нужно было найти бытовку и тут у нас случился первый когнитивный диссонанс. Новые бытовки предлагались по цене, с нашей точки зрения ух-ты как дорого слегка завышенной, а вторичный рынок предлагал такое, что я не представляла, как в «этом» можно предложить поселиться людям. Совет директоров уже опустился до форменного безобразия, начав предлагать в качестве жилища найденный где-то на просторах Житомира огромный разборной деревянный дом с аргументами «это же настоящий дуб» и «потом попалим на дрова». От долгого стояния в порту командный дух начал падать и все чаще возникали мятежные настроения «может не будем начинать в этом году», «может до осени уже не успеем, и лучше подождать и начать в следующем». Зарождавшийся было бунт был жестоко подавлен Капитаном. «Через неделю отплываем», безапелляционным тоном сообщил он по телефону и повесил трубку. Совет директоров пытался еще поиграть в демократию и провести внутренний соц. опрос, но всем было ясно – мы начинаем. Завезли дерево и пенопластовый утеплитель на домик для строителей. 2 Посилання на коментар Поділитися на інших сайтах More sharing options...
Рекомендовані повідомлення
Створіть акаунт або увійдіть у нього для коментування
Ви маєте бути користувачем, щоб залишити коментар
Створити акаунт
Зареєструйтеся для отримання акаунта. Це просто!
Зареєструвати акаунтУвійти
Вже зареєстровані? Увійдіть тут.
Увійти зараз