pilot_s Опубліковано: 18 листопада 2013 Автор Поділитись Опубліковано: 18 листопада 2013 мне такой гараж нравится. ну а по планировке, чет не выходит у архитектора выкрутить все так, чтоб, было как хочу, и так посоветовали тут на форуме. Кругом свои камни преткновения. Посилання на коментар Поділитися на інших сайтах More sharing options...
Priborb Опубліковано: 21 листопада 2013 Поділитись Опубліковано: 21 листопада 2013 Посмотрите в интернете хорошие проекты домов и Вы найдете для себя наилучший вариант. Посилання на коментар Поділитися на інших сайтах More sharing options...
ДОКС Опубліковано: 21 листопада 2013 Поділитись Опубліковано: 21 листопада 2013 Посмотрите в интернете хорошие проекты домов и Вы найдете для себя наилучший вариант. а где именно? можете уточнить? 2 Посилання на коментар Поділитися на інших сайтах More sharing options...
pilot_s Опубліковано: 22 листопада 2013 Автор Поділитись Опубліковано: 22 листопада 2013 перелистал тону информации в нете, ничего толкового( и подходящего. Посилання на коментар Поділитися на інших сайтах More sharing options...
Andrei constructor Опубліковано: 22 листопада 2013 Поділитись Опубліковано: 22 листопада 2013 перелистал тону информации в нете, ничего толкового( и подходящего. Значит нужен индивидуальный проект, что бы удовлетворял всем пожеланиям. Посилання на коментар Поділитися на інших сайтах More sharing options...
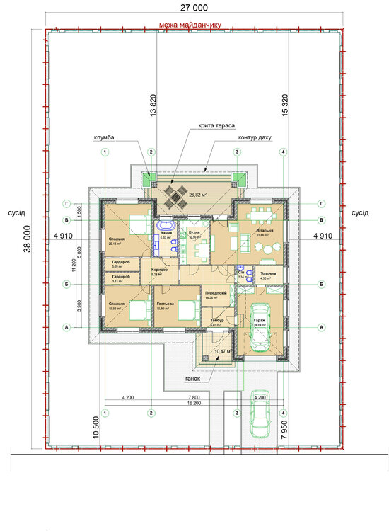
pilot_s Опубліковано: 25 листопада 2013 Автор Поділитись Опубліковано: 25 листопада 2013 немного изменилась планировка выкладываю на суд общественности. Посилання на коментар Поділитися на інших сайтах More sharing options...
Andrei constructor Опубліковано: 25 листопада 2013 Поділитись Опубліковано: 25 листопада 2013 немного изменилась планировка выкладываю на суд общественности. 1. Лестница из гаража в тамбур не имеет площадки. 2. Имхо убрал бы полуторную дверь из гостиной в прихожую (оставил бы только проем). 3. Между кухней и гостиной стоит рассмотреть организацию дверного проема (рядом с выходом на террасу). Проще подать кофе на террасу и накрывать обеденный стол в гостиной. 1 Посилання на коментар Поділитися на інших сайтах More sharing options...
Kysil Опубліковано: 25 листопада 2013 Поділитись Опубліковано: 25 листопада 2013 немного изменилась планировка выкладываю на суд общественности. 1. В санвузлі нема душу. А в будинку 4 кімнати, між іншим. 2. В коридорі нема денного світла. 3. Стіл у вітальні для чого, для гри в покер? Чи обідній?.. Простіше кажучи, поміняйте місцями стіл і м'який куточок з TV. І зробіть прохід з кухні у їдальню, як правильно зауважив Andrei constructor. Їдальня ще може бути прохідним двором, а от вітальня має бути затишною. Посилання на коментар Поділитися на інших сайтах More sharing options...
pilot_s Опубліковано: 27 листопада 2013 Автор Поділитись Опубліковано: 27 листопада 2013 В гостевом с/у и не должно быть душа, как по мне. В одноэтажном доме нехватка света в коридорах, это минус, но не проблема) А по дизайну комнат я думаю вопрос еще будет поднят. С гаража в тамбур на 2 ступеньки подъем не значительный и в реалии площадка не нужна. по поводу дверей я еще думаю. Посилання на коментар Поділитися на інших сайтах More sharing options...
Kysil Опубліковано: 27 листопада 2013 Поділитись Опубліковано: 27 листопада 2013 В гостевом с/у и не должно быть душа, как по мне. Це в рожевому ідеалі. На практиці гостьовим користуватиметься ваша родина. Вийшла людина з вітальні/їдальні - куди вона піде? Туди, куди ближче. Так само і ввечері, і вранці. Якщо в будинку три спальні і в кожній хтось живе - одного місця для омовіння в "години пік" може бути недостатньо. В одноэтажном доме нехватка света в коридорах, это минус, но не проблема) Я вам казав, як можна висвітлити цей куток. Ви не послухали. ;) Посилання на коментар Поділитися на інших сайтах More sharing options...
Andrei constructor Опубліковано: 27 листопада 2013 Поділитись Опубліковано: 27 листопада 2013 С гаража в тамбур на 2 ступеньки подъем не значительный и в реалии площадка не нужна. Скорее всего там две ступеньки, но 3 подъема. Посилання на коментар Поділитися на інших сайтах More sharing options...
FFFuntik Опубліковано: 27 листопада 2013 Поділитись Опубліковано: 27 листопада 2013 Рука архитектора явно видна в последней вариации плана. Устранены явные промахи. Всех беспокоящие темные закоулки коридора, можно осветить при сильном желании туннелями дневного света. Конечно подобного рода решения – компромисс, кои желательно не допускать на этапе проектирования. Второй вопрос – что компромиссов достаточно много. Кроме проходной зоны перед ТВ в гостиной и обще-сомнительной организации пространства в этой комнате рекомендовал бы подумать: - ванная под окном которое выходит на террасу. Если идея была сделать окно в уровень с ванной, то при его направленности в общественную зону много раз подумал бы перед тем как согласится, если это будет мини форточка, которую не открыть не закрыть из-за ванной, она не обеспечит достаточного освещения – тоже пища для размышлений. - окна из спален. В каждой из спален западной части по 2 окна (которые почему то разно удалены как от центра так и от окончаний стены внося дисгармонию в общий вид фасада). Следовательно, размещение «домашнего улюбленьця - TV» - опять компромис требующий боковых кронштейнов и пр.; - камин. Подумайте о целесообразности камина. Если он для «души» главы семейства то как по мне, решение достаточно эгоистичное. и прочие мелки недочеты (открытая дверца холодильника – перекрывающая вход в кухню, стиральная машина в кухне – куда необходимо приносить грязное белье из места его хранения, полуторные двери в пол из гостиной – непременный источник прохлады). Рекомендовал бы попробовать виртуально прожить в этой архитектуре свой день, с учетом хотелок. Так например не забыть достать кота из золы камина и вымыть, при перемещении из комнаты в комнату – включать свет, рассказать теще что когда идет футбол перед телевизором не то что ходить а в радиусе 10 метров не дышать и т.п. Посилання на коментар Поділитися на інших сайтах More sharing options...
Рекомендовані повідомлення
Створіть акаунт або увійдіть у нього для коментування
Ви маєте бути користувачем, щоб залишити коментар
Створити акаунт
Зареєструйтеся для отримання акаунта. Це просто!
Зареєструвати акаунтУвійти
Вже зареєстровані? Увійдіть тут.
Увійти зараз