Перейти до публікації
Пошук в
  • Додатково...
Шукати результати, які містять...
Шукати результати в...

Естественная вентиляция подвала и комнаты по одному каналу

LKoS

Рекомендовані повідомлення

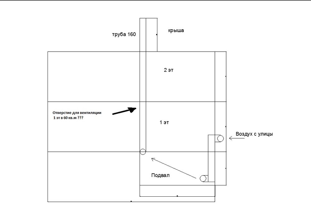
Доброе время суток.

Частный дом 10х8 и подвал 4х3

В подвале сделана естественная вентиляция на рисунке видно, все нормально работает, на первом этаже находиться кухня студия 60 кв.м если сделать отверстие в канале как это повлияет на работу вентиляции.

1782097851_.thumb.jpg.2f8d6075430a334ab524568788cecfc7.jpg

Посилання на коментар
Поділитися на інших сайтах

как это повлияет на работу вентиляции.

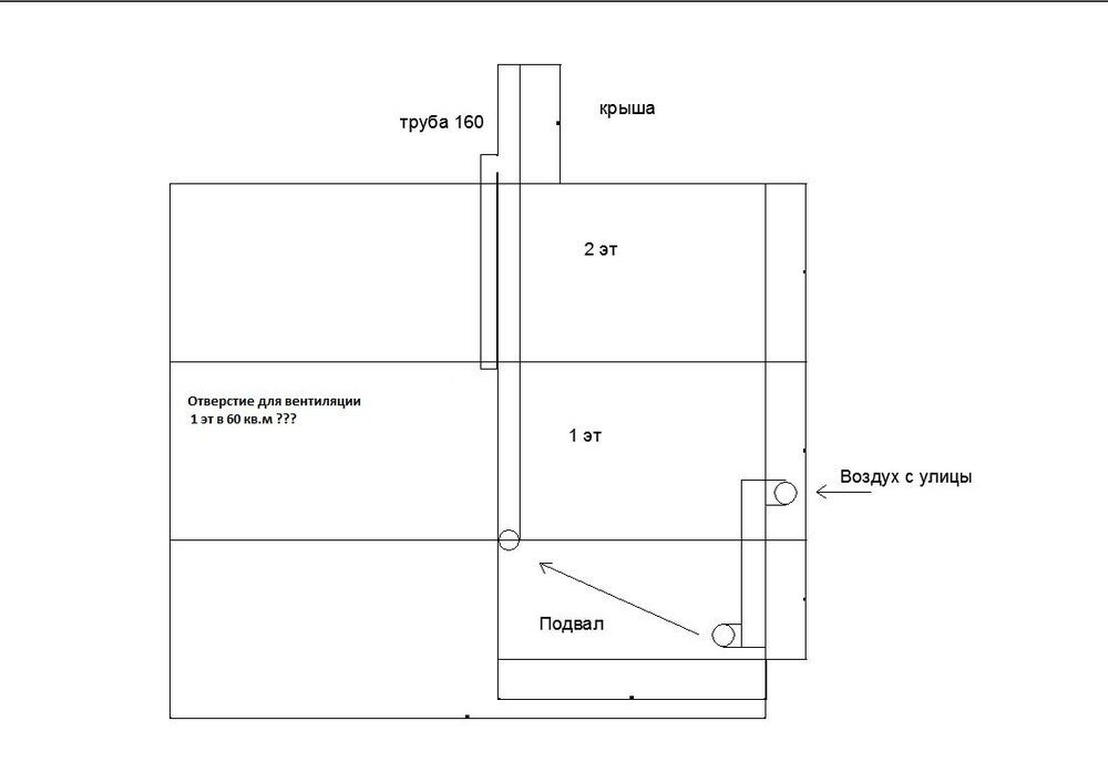
Можете получить запахи подвала в кухне. В одноэтажном возможно кое-как и прокатило бы. Если есть возможность то лучше так, но лучше отдельный канал.

283934184_.thumb.jpg.a4bf03f8c9d8c75f6c29d2aac4befff1.jpg

Посилання на коментар
Поділитися на інших сайтах

Можете получить запахи подвала в кухне.

 

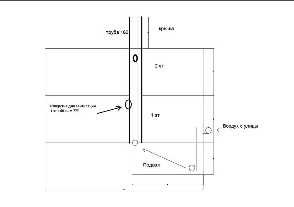
А вот если у меня труба диаметр 160 находиться внутри квадратного канала и по 3-5 см зазор. Я сделаю отверстие на первом этаже 30х30 см в квадратном канале а на втором этаже сделаю в трубе 30см. в таком случаи вытяжка должна работать :)

1413916130_.thumb.jpg.744501bb4af697d8627613bb6ff1f192.jpg

Посилання на коментар
Поділитися на інших сайтах

Я сделаю отверстие на первом этаже 30х30 см в квадратном канале а на втором этаже сделаю в трубе 30см. в таком случаи вытяжка должна работать :)

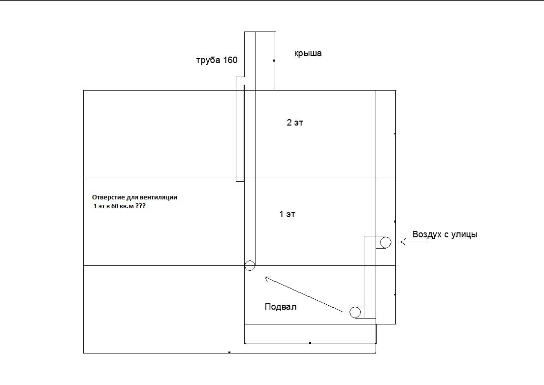
Вы готовы разбивать стенку не 2 этаже? :D

Чтоб такая затея работала эти две дырки нужно соединить между собой куском трубы, при зазоре даж в 5 см. про это и не стоит говорить.

А вот если у меня труба диаметр 160 находиться внутри квадратного канала и по 3-5 см зазор.

Вариант 1.

16+3+3=22Х22см. Вроде правильно понял. Хотя для кирпичной кладки размер немного странный. :) В такой канал можно запросто всунуть 2 трубы Ф100-110 мм, ессно вытащив 160-ю и получить 2 раздельных полноценных вентканала, для кухни и подвала.

Вариант2.

Просто пробить дырку в канал на кухне, но при условии, что на выходе (на крыше) между 160 трубой и самим каналом имеется такой же зазор.

Т.е. использовать пространство между трубой и каналом в качестве вентканала.

Посилання на коментар
Поділитися на інших сайтах

Створіть акаунт або увійдіть у нього для коментування

Ви маєте бути користувачем, щоб залишити коментар

Створити акаунт

Зареєструйтеся для отримання акаунта. Це просто!

Зареєструвати акаунт

Увійти

Вже зареєстровані? Увійдіть тут.

Увійти зараз
×
×
  • Створити...