Рыжая Рыжая Опубліковано: 16 січня 2014 Поділитись Опубліковано: 16 січня 2014 Да простит меня моя замечательная девочка, которая рисовала мне кухню, она не в восторге от обсуждения всем селом , но все-таки я решила выставить кухню на обсуждение форумчан. Сразу напишу, что навесных шкафчиков по углам не будет-это не красиво и не удобно. Просто не переделали эскиз еще. Слева возможен один, только нижний открытый навесной шкафчик в углу, так как до верхнего со своим ростом 1,62м я не достану. С правой стороны этот навесной угловой шкафчик-это вопрос, так как обычный не откроется из-за вытяжки. Может сделать открытые полки для специй? Открытые полки не очень нравятся-люблю я везде порядок и чистоту, ничего на виду стоять, кроме мульти и чайника, не будет. Кухня будет белого цвета, глянцевая, крашеное МДФ. Кухонный фартук скинали, еще не придумала цвет и принт. Столешница, скорее всего черная или серая, не знаю, потому как у меня задвиг на белом конкретный ! :D Но все белым быть не может-сольется.Нужен контраст. Жду ваших советов. Посилання на коментар Поділитися на інших сайтах More sharing options...
irina1969 Опубліковано: 16 січня 2014 Поділитись Опубліковано: 16 січня 2014 а где кухня ?:D 1 Посилання на коментар Поділитися на інших сайтах More sharing options...
Zeland Опубліковано: 16 січня 2014 Поділитись Опубліковано: 16 січня 2014 Да простит меня моя замечательная девочка, которая рисовала мне кухню, она не в восторге от обсуждения всем селом , но все-таки я решила выставить кухню на обсуждение форумчан. Сразу напишу, что навесных шкафчиков по углам не будет-это не красиво и не удобно. Просто не переделали эскиз еще. Слева возможен один, только нижний открытый навесной шкафчик в углу, так как до верхнего со своим ростом 1,62м я не достану. С правой стороны этот навесной угловой шкафчик-это вопрос, так как обычный не откроется из-за вытяжки. Может сделать открытые полки для специй? Открытые полки не очень нравятся-люблю я везде порядок и чистоту, ничего на виду стоять, кроме мульти и чайника, не будет. Кухня будет белого цвета, глянцевая, крашеное МДФ. Кухонный фартук скинали, еще не придумала цвет и принт. Столешница, скорее всего черная или серая, не знаю, потому как у меня задвиг на белом конкретный ! :D Но все белым быть не может-сольется.Нужен контраст. Жду ваших советов. По одному описанию пожалуй трудно дать совет))..фото давайте! Посилання на коментар Поділитися на інших сайтах More sharing options...
Рыжая Рыжая Опубліковано: 16 січня 2014 Автор Поділитись Опубліковано: 16 січня 2014 а где кухня ?:D Да пытаюсь с эл почты загрузить, не получается, каюсь, я чайник, непродвинутый пользователь Добавлено через 6 минут Стыдно -то как... Муж придет , поможет Добавлено через 8 минут Посилання на коментар Поділитися на інших сайтах More sharing options...
Borisg Опубліковано: 16 січня 2014 Поділитись Опубліковано: 16 січня 2014 Где кухня-то ? 1 Посилання на коментар Поділитися на інших сайтах More sharing options...
Zeland Опубліковано: 16 січня 2014 Поділитись Опубліковано: 16 січня 2014 Да пытаюсь с эл почты загрузить, не получается, каюсь, я чайник, непродвинутый пользователь Добавлено через 6 минут Стыдно -то как... Муж придет , поможет Добавлено через 8 минут можно вот так: откройте вот piccy.info/ выберите файл..нажмите загрузить..когда загрузится скопируйте все что в второй строке "для форумов" и вставьте это все здесь в поле сообщений )) Посилання на коментар Поділитися на інших сайтах More sharing options...
Дачница Лена Опубліковано: 16 січня 2014 Поділитись Опубліковано: 16 січня 2014 Стыдно -то как... Муж придет , поможет Че там стыдно, нормально , научимся 1 Посилання на коментар Поділитися на інших сайтах More sharing options...
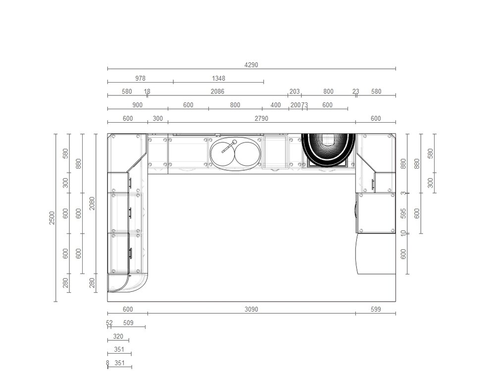
irina1969 Опубліковано: 16 січня 2014 Поділитись Опубліковано: 16 січня 2014 вот и кухня Рыжей Рыжей Посилання на коментар Поділитися на інших сайтах More sharing options...
Zeland Опубліковано: 16 січня 2014 Поділитись Опубліковано: 16 січня 2014 Как-то не гармонирует верхняя часть кухни..особенно со стороны окна..с одной стороны тумбы с другой вытяжка...как-по мне то надо что-то менять Посилання на коментар Поділитися на інших сайтах More sharing options...
Рыжая Рыжая Опубліковано: 16 січня 2014 Автор Поділитись Опубліковано: 16 січня 2014 Как-то не гармонирует верхняя часть кухни..особенно со стороны окна..с одной стороны тумбы с другой вытяжка...как-по мне то надо что-то менять На стене, которая у окна ничего, кроме окна и вытяжки не будет-окно большое, верхние шкафчики там не пляшут. Добавлено через 2 минуты Угловые навесные шкафчики и слева и справа громоздкие и неудобные, я думаю, они будут заменены на обычные. Посилання на коментар Поділитися на інших сайтах More sharing options...
irina1969 Опубліковано: 16 січня 2014 Поділитись Опубліковано: 16 січня 2014 На стене, которая у окна ничего, кроме окна и вытяжки не будет-окно большое, верхние шкафчики там не пляшут. Добавлено через 2 минуты Угловые навесные шкафчики и слева и справа громоздкие и неудобные, я думаю, они будут заменены на обычные. ИМХО там и вытяжка не пляшет 1 Посилання на коментар Поділитися на інших сайтах More sharing options...
Рыжая Рыжая Опубліковано: 16 січня 2014 Автор Поділитись Опубліковано: 16 січня 2014 ИМХО там и вытяжка не пляшет А там в гипсокартонном потолке уже выведено отверстие для вентиляции(на расстоянии 1 м от правой стены). Да и газ подведен к этому месту-так что там газ.плите и вытяжке быть. Поезд ушел, везде чистовая отделка- декоративная штукатурка. Посилання на коментар Поділитися на інших сайтах More sharing options...
Zeland Опубліковано: 16 січня 2014 Поділитись Опубліковано: 16 січня 2014 ИМХО там и вытяжка не пляшет и я того-же мнения))..если-бы было два окна и между ними вытяжка то тогда было бы хорошо..а так не очень.. Добавлено через 5 минут А там в гипсокартонном потолке уже выведено отверстие для вентиляции(на расстоянии 1 м от правой стены). Да и газ подведен к этому месту-так что там газ.плите и вытяжке быть. Поезд ушел, везде чистовая отделка- декоративная штукатурка. ну если уже так то тогда может с лева сделайте стойку крцглую для бокалов..ну чтоб хоть как-то гармонировало)) Посилання на коментар Поділитися на інших сайтах More sharing options...
allanek Опубліковано: 16 січня 2014 Поділитись Опубліковано: 16 січня 2014 Таня, можно я , осторожненько:D, выскажусь по крайним шкафам с закруглениями. просьба , никому не принимать на свой счёт, это, исключительно, моё предпочтение. Всё, с реверансами и политесом закончила:D, теперь начну и начну с крайних шкафов- полусфер. наблюдаю эту любовь к закруглённым углам на кухне у достаточного числа своих знакомых. Но как!!! это упрощает кухню и как!!! от этих закруглений веет позавчерашним днём. Ещё раз, просьба никому не обижаться, ну можно ещё указать мне на дверь в этой теме:D. если эти закругления на шкафах- не мечта всей жизни, то избавляйтесь от них. Угловые навесные шкафы до жути тяжеловесны, избавляйтесь и от этого элемента. Про вытяжку Вам уже говорили. Чтобы уравновесить этот диссонанс, просится открытая полка. которая будет идти через всю стену. Девочку-дизайнера поставить в угол и желательно дать хорошего ремня. кухня смотрится хаотичной и разболтанной. А какой стиль Вы выбрали, судя по рисунку, то , что-то лаконично-современное? Таня, моё вИдение - это всего лишь мнение такой же хозяйки на кухне, как и Вы, не более того Посилання на коментар Поділитися на інших сайтах More sharing options...
max_13 Опубліковано: 16 січня 2014 Поділитись Опубліковано: 16 січня 2014 Может какая идея заинтересует , навеяно с этой кухни (ссылка на изображение устарела) 2 Посилання на коментар Поділитися на інших сайтах More sharing options...
max_13 Опубліковано: 16 січня 2014 Поділитись Опубліковано: 16 січня 2014 Левая часть Открытые полки хит, фасады в модерн кухнях нужны большие 60 и 90 см Не судите строго, я не дизайнер! ))) 1 Посилання на коментар Поділитися на інших сайтах More sharing options...
max_13 Опубліковано: 16 січня 2014 Поділитись Опубліковано: 16 січня 2014 И еще, зачем вам эти разрисованные стекла на стене? Мне кажетсся это наляписто, надоест и дорого. Смотрите как прекрасно гармонирует столешница и стеновая панель цена которой 800-900 грн за 4,2метра! (ссылка на изображение устарела) Посилання на коментар Поділитися на інших сайтах More sharing options...
Рыжая Рыжая Опубліковано: 16 січня 2014 Автор Поділитись Опубліковано: 16 січня 2014 если эти закругления на шкафах- не мечта всей жизни, то избавляйтесь от них.Нет, не мечта! Я к закругленным фасадом любви не испытывю совершенно-мало того, кухня строгая , лаконичная, современная. Весь первый этаж-прстранство открытое в этом же стиле. Чтобы уравновесить этот диссонанс, просится открытая полка. которая будет идти через всю стену.Она может идти только справа , до окна и шторы, слева там совсем мало места. Я благодарю вас, Алла, за ваше мнение и советы. И понимаю, что что-то надо переделать, только не пойму пока что и как! Добавлено через 5 минут И еще, зачем вам эти разрисованные стекла на стене? Мне кажетсся это наляписто, надоест и дорого. Смотрите как прекрасно гармонирует столешница и стеновая панель цена которой 800-900 грн за 4,2метра! Так Баба -Яга не против! Если будет скинали, то строгий какой-то рисунок. А стеновые панели мне очень нравятся, только у меня такое впечатление, что возле газ плиты достаточно потереть каким-то моющим средством от жира и панель эта облезет. Я никогда не пользовалась, но вот такое ощущение у меня. Может есть у кого-то опыт использования? Кафель на стенку не хочется совсем-швы мне не нравятся-темнеют. Посилання на коментар Поділитися на інших сайтах More sharing options...
max_13 Опубліковано: 16 січня 2014 Поділитись Опубліковано: 16 січня 2014 А стеновые панели мне очень нравятся, только у меня такое впечатление, что возле газ плиты достаточно потереть каким-то моющим средством от жира и панель эта облезет. Я никогда не пользовалась, но вот такое ощущение у меня. Может есть у кого-то опыт использования? Кафель на стенку не хочется совсем-швы мне не нравятся-темнеют. Стеновая панель -это та же столешница, на которой вы режете, трете, моете, ставите горячее, только столешница это дсп38мм и пластик, а стеновая панель это мдф8мм и пластик, и пластик на горизон и вертик поверхности один и тот же Посилання на коментар Поділитися на інших сайтах More sharing options...
Lana_CK Опубліковано: 16 січня 2014 Поділитись Опубліковано: 16 січня 2014 Цитата: если эти закругления на шкафах- не мечта всей жизни, то избавляйтесь от них. Нет, не мечта! Я к закругленным фасадом любви не испытывю совершенно-мало того, кухня строгая , лаконичная, современная.о! и я согласна! мне оч оч не нравятся закругленные фасады! Стеновая панель -это та же столешница,а где такое приобресть? загуглить? варианты интересны ... пысы: но столешница у меня акриловая будет Посилання на коментар Поділитися на інших сайтах More sharing options...
Рыжая Рыжая Опубліковано: 16 січня 2014 Автор Поділитись Опубліковано: 16 січня 2014 Стеновая панель -это та же столешница, на которой вы режете, трете, моете, ставите горячее, только столешница это дсп38мм и пластик, а стеновая панель это мдф8мм и пластик, и пластик на горизон и вертик поверхности один и тот же Возможно вы и правы, скинали дорого и трудно определиться с рисунком строгим, да еще , чтобы через пару лет не захотелось это надоевшее стеклышко побить Посилання на коментар Поділитися на інших сайтах More sharing options...
Julla Опубліковано: 16 січня 2014 Поділитись Опубліковано: 16 січня 2014 У меня примерно такая же планировка кухни Только два окна. Места и шкафов на кухне мало не будет. Особенно, если хочется всё спрятать. Поэтому от навесного шкафа в углу я отказываться не собираюсь. Но дверцу там хочу сделать не распашную и не на подъёмнике, а книжку - две узкие дверцы складываются на одну стену (в Вашем случае - стенки слева от окна. Вытяжку можно сделать встроенную, выдвижную ИМХО фасады по 900 не очень удобные Это кухня моей подруги. Сейчас жалеет, что сделала большие ящики и фасады. А ведь это городская квартира. В частном доме всяких ёмкостей "для спрятать" должно быть больше . Глянцевые фасады - это вообще отдельная песня! Посилання на коментар Поділитися на інших сайтах More sharing options...
max_13 Опубліковано: 16 січня 2014 Поділитись Опубліковано: 16 січня 2014 о! и я согласна! мне оч оч не нравятся закругленные фасады! а где такое приобресть? загуглить? варианты интересны ... пысы: но столешница у меня акриловая будет Акриловая столешница -к ней делают акриловую панель Если нужна стеновая панель с пластиком, как самые распространенные столешницы -пишите в личку А вообще они (панели) обычно продаются там же где и столешница 1 Посилання на коментар Поділитися на інших сайтах More sharing options...
Рыжая Рыжая Опубліковано: 16 січня 2014 Автор Поділитись Опубліковано: 16 січня 2014 а где такое приобресть? загуглить? варианты интересны ..Я видела их в Эпике, по-моему они под заказ, очень есть симпатичные но столешница у меня акриловая будетЯ позаморачивалась эти вопросом, хотела даже заказывать в Китае гранитную столешню, там порядка 100 у.е. за м кв, если не ошибаюсь, это раза в 3-4 дешевле, чем здесь. А потом прислушалась к мнению своей подруги, которая может себе позволить купить эту столешню здесь. Так она убедила меня в том, что при моей любви к частой смене интерьера, гораздо разумнее через время поменять столешницу на новую, другого цвета- и вот мне счастье-совсем другая картинка! А за эти деньги их можно поменять хоть с десяток, да хоть каждый год ! Посилання на коментар Поділитися на інших сайтах More sharing options...
Julla Опубліковано: 16 січня 2014 Поділитись Опубліковано: 16 січня 2014 Да! Все пальцы видны Посилання на коментар Поділитися на інших сайтах More sharing options...
Рекомендовані повідомлення
Створіть акаунт або увійдіть у нього для коментування
Ви маєте бути користувачем, щоб залишити коментар
Створити акаунт
Зареєструйтеся для отримання акаунта. Це просто!
Зареєструвати акаунтУвійти
Вже зареєстровані? Увійдіть тут.
Увійти зараз