igorek30 Опубліковано: 20 січня 2014 Поділитись Опубліковано: 20 січня 2014 Доброго дня. Така виникла ситуація. На відмітці 2,660 повинна була покластися балка № 5 розміром 140х220мм. Для подальшого обпирання на неї балок № 6. Але вийшло так що майстри про це забули і на відмітці 2600-2800 було залити армопояс (окрім середньої несучої стіни). Питання як зараз вийти із ситуації ? 1- Розбивати перфоратором армопояс під балку і її туди вкладати ? 2- Використати якісь кріплення і зафіксувати балку на необхідній висоті до армопосу та цегляної стіни ? Посилання на коментар Поділитися на інших сайтах More sharing options...
igorek30 Опубліковано: 21 січня 2014 Автор Поділитись Опубліковано: 21 січня 2014 Що ніхто не підскаже в даному питанні ? Можливо хтось стикався з даною ситуацією ? Посилання на коментар Поділитися на інших сайтах More sharing options...
Игореха Опубліковано: 21 січня 2014 Поділитись Опубліковано: 21 січня 2014 Ну вы бы хоть указали, из чего планировалась балка, какая на нее нагрузка, и т.п. ;) Посилання на коментар Поділитися на інших сайтах More sharing options...
DEMOKPAT Опубліковано: 21 січня 2014 Поділитись Опубліковано: 21 січня 2014 Естественно бить - резать армопояс под ложе для балки. Других вариантов и быть не может. Хотя есть и второй вариант - построить опору под балкой, но не думаю что оно вам нать ;) 1 Посилання на коментар Поділитися на інших сайтах More sharing options...
igorek30 Опубліковано: 21 січня 2014 Автор Поділитись Опубліковано: 21 січня 2014 Ну вы бы хоть указали, из чего планировалась балка, какая на нее нагрузка, и т.п. ;) Балка № 5 планувалась дерев"яна 140х220 мм., навантаження не скажу але на мансардному поверху планується ванна кімната. Посилання на коментар Поділитися на інших сайтах More sharing options...
Игореха Опубліковано: 21 січня 2014 Поділитись Опубліковано: 21 січня 2014 Странноватый конструктив, даже не смотря на наличие вентканалов в центральной стене. Но то такое. Стена из ГБ 375мм? Армопояс залит в несьемную опалубку из ГБ? Какова толщина внутреннего блока опалубки? Ванная комната именно на эту балку приходится? Добавлено через 6 минут Я бы смонтировал двутавр на АП и завел в него балки. Если знать нагрузки, то двутавр можно посчитать. Да и это будет надежнее, чем опирать несколько балок перекрытия на одну деревянную балку такого сечения. Учитывая шаг балок 750мм при их небольшой длине, сечение балки №5, как минимум подозрительно. Ведь нагрузка на это перекрытие предполагается не самая маленькая. Деталь 10 и 11 - это что? 1 Посилання на коментар Поділитися на інших сайтах More sharing options...
igorek30 Опубліковано: 21 січня 2014 Автор Поділитись Опубліковано: 21 січня 2014 Странноватый конструктив, даже не смотря на наличие вентканалов в центральной стене. Но то такое. Стена из ГБ 375мм? Армопояс залит в несьемную опалубку из ГБ? Какова толщина внутреннего блока опалубки? Ванная комната именно на эту балку приходится? Добавлено через 6 минут Я бы смонтировал двутавр на АП и завел в него балки. Если знать нагрузки, то двутавр можно посчитать. Да и это будет надежнее, чем опирать несколько балок перекрытия на одну деревянную балку такого сечения. Учитывая шаг балок 750мм при их небольшой длине, сечение балки №5, как минимум подозрительно. Ведь нагрузка на это перекрытие предполагается не самая маленькая. Деталь 10 и 11 - это что? Стіна із ГБ товщиною 300мм. АП виконанний : 100ммГБ+140мм.бетон+60мм.ГБ (60мм це внутрішній). Ванна кімната буде тамде коротки балки № 6. Я зараз просто на роботі і не можу викласти план мансардного поверху. Деталі 10 і 11 це планувався швелер 16 для сходової клітки. Ну по ньому ще буду думати чи ставити 10, чи залишити тільки 11. Я дуже вдячний що Ви відгукнулись на моє питання, світ не без добрих людей. :beer: Посилання на коментар Поділитися на інших сайтах More sharing options...
Игореха Опубліковано: 21 січня 2014 Поділитись Опубліковано: 21 січня 2014 Стіна із ГБ товщиною 300мм. АП виконанний : 100ммГБ+140мм.бетон+60мм.ГБ (60мм це внутрішній). Ванна кімната буде тамде коротки балки № 6. Я зараз просто на роботі і не можу викласти план мансардного поверху. Деталі 10 і 11 це планувався швелер 16 для сходової клітки. Ну по ньому ще буду думати чи ставити 10, чи залишити тільки 11. Я дуже вдячний що Ви відгукнулись на моє питання, світ не без добрих людей. :beer: Без 10 не на чем будет держаться 11 ;) Замените швелер 10 на двутавр, и вам не нужна будет балка 5 Но его нужно просчитать. Надо бы видеть план помещений и перегородок мансарды. И где будет находиться ванна, и сколько литров? Может вы хотите джакузю на 500... ;):D 1 Посилання на коментар Поділитися на інших сайтах More sharing options...
igorek30 Опубліковано: 21 січня 2014 Автор Поділитись Опубліковано: 21 січня 2014 Без 10 не на чем будет держаться 11 Замените швелер 10 на двутавр, и вам не нужна будет балка 5 Но его нужно просчитать. Надо бы видеть план помещений и перегородок мансарды. И где будет находиться ванна, и сколько литров? Может вы хотите джакузю на 500... За джакузі приємно звичайно але його там точно не буде . Дякую за консультацію. Я завтра викладу план мансарди і тоді Ви мені порадите як зробити краще. А по двутавру: балки № 6 повинні в нього заходити виходить чи лягати на нього ? Посилання на коментар Поділитися на інших сайтах More sharing options...
Игореха Опубліковано: 21 січня 2014 Поділитись Опубліковано: 21 січня 2014 З А по двутавру: балки № 6 повинні в нього заходити виходить чи лягати на нього ? В принципе - без разницы. Но судя по плану перекрытия, они будут заходить в двутавр. Можно доварить опорные площадки. В этом не вижу проблемы. 1 Посилання на коментар Поділитися на інших сайтах More sharing options...
PRO100_MASTER Опубліковано: 21 січня 2014 Поділитись Опубліковано: 21 січня 2014 Полностью согласен с Игореха, думаю что балки в двутавр лучше вставлять, так вы избежите долбления уже готовой стены. Скажите пожалуйста сечение балок№1,2и3? Что такое деталь №8? Посилання на коментар Поділитися на інших сайтах More sharing options...
igorek30 Опубліковано: 22 січня 2014 Автор Поділитись Опубліковано: 22 січня 2014 Полностью согласен с Игореха, думаю что балки в двутавр лучше вставлять, так вы избежите долбления уже готовой стены. Скажите пожалуйста сечение балок№1,2и3? Что такое деталь №8? балки 1,2,3 - 140х220мм. А деталь № 8 це балка для стелі 80х160мм. над залом і кухнею. Посилання на коментар Поділитися на інших сайтах More sharing options...
igorek30 Опубліковано: 22 січня 2014 Автор Поділитись Опубліковано: 22 січня 2014 Без 10 не на чем будет держаться 11 ;) Замените швелер 10 на двутавр, и вам не нужна будет балка 5 Но его нужно просчитать. Надо бы видеть план помещений и перегородок мансарды. И где будет находиться ванна, и сколько литров? Может вы хотите джакузю на 500... ;):D Викладаю план приміщень будинку. На мансардному поверсі у ванній кімнаті скоріше всього ванна ставитися не буде але в проекті є. Посилання на коментар Поділитися на інших сайтах More sharing options...
Игореха Опубліковано: 23 січня 2014 Поділитись Опубліковано: 23 січня 2014 Пока не знаю из чего у вас перегородки на мансарде, но полагаю, что или ГБ, или общитій каркас. Лестница? Пока взял "худший" случай - монолит. Нагрузку на перекрытие взял "классическую" - 400кг/м2. Итого, проходит 18-й двутавр с относительным прогибом 1/330. Балки №6 по проекту какого сечения? 1 Посилання на коментар Поділитися на інших сайтах More sharing options...
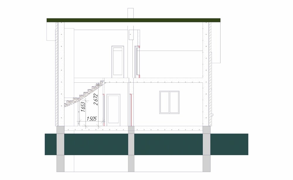
igorek30 Опубліковано: 23 січня 2014 Автор Поділитись Опубліковано: 23 січня 2014 Пока не знаю из чего у вас перегородки на мансарде, но полагаю, что или ГБ, или общитій каркас. Лестница? Пока взял "худший" случай - монолит. Нагрузку на перекрытие взял "классическую" - 400кг/м2. Итого, проходит 18-й двутавр с относительным прогибом 1/330. Балки №6 по проекту какого сечения? Доброго дня дякую, що Ви контроюєте моє запитання. Тепер відповідь та пропозиція. Перегородки на мансарді дійсно ГБ. Сходова клітка металевий каркас обшитий деревом. Балка № 6 120х200мм. А тепер пропозиція. Балку № 5 виконати як і планувалось з дерева і покласти її на перестінок на першому поверсі. В армопоїсі вибити місце під балку і опустити на відповідну висоту 2660 ? Посилання на коментар Поділитися на інших сайтах More sharing options...
Игореха Опубліковано: 23 січня 2014 Поділитись Опубліковано: 23 січня 2014 Доброго дня дякую, що Ви контроюєте моє запитання. Тепер відповідь та пропозиція. Перегородки на мансарді дійсно ГБ. Сходова клітка металевий каркас обшитий деревом. Балка № 6 120х200мм. А тепер пропозиція. Балку № 5 виконати як і планувалось з дерева і покласти її на перестінок на першому поверсі. В армопоїсі вибити місце під балку і опустити на відповідну висоту 2660 ? Как вы собираетесь выбирать в АП место под балку, не задев рабочую арматуру, и не лишив АП смысла? ;) А как изначально планировалось монтировать балку? В одном уровне с армопоясом? Как конструктивно предполагалось выполнить этот узел? Он есть в проекте? И есть-ли у вас в проекте разрез коробки вместе с балкой и АП? ПС Балки крутые :D Можно тонну на квадрат грузить, и то прогиб будет 3мм. Проблема только в несущей способности балки №5. А вы не хотите вообще монолит сделать в этом месте? Для ванной - то что нужно! Армирование не сложное. Толщина плиты не большая. И не нужно будет долбать. 1 Посилання на коментар Поділитися на інших сайтах More sharing options...
igorek30 Опубліковано: 23 січня 2014 Автор Поділитись Опубліковано: 23 січня 2014 Ви мені скажіть ці це можливо як я пропонував у минулому пості ? В армопоясі я "видовбу" місце під балку не порушивщи АР і арматуру, це точно. Детально даний випадок у проекті не зображений. Проект у мене "не супер-пупер" зі всі всіма деталями будівлі. Він робився на основні елементи будівництва. Є чорнові зображення ось такі. Посилання на коментар Поділитися на інших сайтах More sharing options...
Игореха Опубліковано: 23 січня 2014 Поділитись Опубліковано: 23 січня 2014 Ви мені скажіть ці це можливо як я пропонував у минулому пості ? В армопоясі я "видовбу" місце під балку не порушивщи АР і арматуру, це точно. Да я бы ответил что-либо разумное, но я пока не могу себе представить, как можно вырезать место под балку, не нарушив армопояс. Т.к. в армопоясе со стороны балки должна быть армртара, которая закрыта защитным слоем порядка 20мм. Начав долбать АП, в первую очередь нарушается тонкий защитный слой. Дальше идет арматура. Или вы имеете ввиду что-то другое? 1 Посилання на коментар Поділитися на інших сайтах More sharing options...
igorek30 Опубліковано: 24 січня 2014 Автор Поділитись Опубліковано: 24 січня 2014 Доброго дня !! Так виходить, що прийдеться задіти арматуру нижню. Так як в АП арматура лежить "трикутником". Якби майстри не прогавили то залиши б місце під балку (ну це вже не важливо). Зараз думаю як вийти з ситуації. А всеж таки, чи можливо балку № 5 покласти на перестінок на І-му поверсі. для більш надійного опирання. І напевно прийдеться все ж видовбати місце під балку. Посилання на коментар Поділитися на інших сайтах More sharing options...
PRO100_MASTER Опубліковано: 25 січня 2014 Поділитись Опубліковано: 25 січня 2014 не советую вообще трогать ап так как вибрацией по арматуре вы целый метр ап просто ослабите е. у вас выйдет не пояс и лента Посилання на коментар Поділитися на інших сайтах More sharing options...
igorek30 Опубліковано: 27 січня 2014 Автор Поділитись Опубліковано: 27 січня 2014 Добре якщо я виріжу бензорізом (по бетону) рівно місце під балку № 5 ? Просто є на роботі даний "інструмент" можна використати. Посилання на коментар Поділитися на інших сайтах More sharing options...
igorek30 Опубліковано: 28 січня 2014 Автор Поділитись Опубліковано: 28 січня 2014 Що більше ніхто не порадить як вийти із даної ситуації ? Тим більше там АП короткий, невже він "не буде працювати" коли зробити заріз ? Багато хто напевно напише що порушеться цілісність АП і він вже буде "не такий". Я напевно з цим буду не згідний.:D Посилання на коментар Поділитися на інших сайтах More sharing options...
Игореха Опубліковано: 28 січня 2014 Поділитись Опубліковано: 28 січня 2014 Дык я вам предложил уже один из рабочих вариантов ;) Но вы упорно хотите резать АП. При чем, убеждены в том, что все будет хорошо. Ну так режьте Каких советов вы еще хотите? )) Посилання на коментар Поділитися на інших сайтах More sharing options...
igorek30 Опубліковано: 28 січня 2014 Автор Поділитись Опубліковано: 28 січня 2014 "Итого, проходит 18-й двутавр с относительным прогибом 1/330." Дякую за відповідь. Ви, як я так зрозумів порпонуєте замінити балку № 5 замінити двутавром поклавши його на АП? Но тоді він мені буде на необхідній висоті потрібно 2660 мм., а АП це 2800 мм. Посилання на коментар Поділитися на інших сайтах More sharing options...
Игореха Опубліковано: 28 січня 2014 Поділитись Опубліковано: 28 січня 2014 "Итого, проходит 18-й двутавр с относительным прогибом 1/330." Дякую за відповідь. Ви, як я так зрозумів порпонуєте замінити балку № 5 замінити двутавром поклавши його на АП? Но тоді він мені буде на необхідній висоті потрібно 2660 мм., а АП це 2800 мм. Если бы кто-то видел разрезы с конструктивом перекрытия, то можно было бы говорить предметно. ;) Но на сколько я понимаю, балки перекрытия будут лежать выше АП. Так что мешает в одной плоскости с балками перекрытия кинуть еще и двутавр? Кому он там мешать будет? ПС. Отвечая на вопрос, я где-то выше писал, что балки можно опереть на нижнюю полку двутавра. 1 Посилання на коментар Поділитися на інших сайтах More sharing options...
Рекомендовані повідомлення
Створіть акаунт або увійдіть у нього для коментування
Ви маєте бути користувачем, щоб залишити коментар
Створити акаунт
Зареєструйтеся для отримання акаунта. Це просто!
Зареєструвати акаунтУвійти
Вже зареєстровані? Увійдіть тут.
Увійти зараз