Дмытрык1 Опубліковано: 24 січня 2014 Поділитись Опубліковано: 24 січня 2014 Добрый день! Ищу подрядчика для строительства забора с кирпичными столбами, с установкой откатных ворот. Пример: Броварской р-н, с. Тарасовка, 40 км от КП. Забор из профнастила с кирпичными столбами и фундаментом общая длинна 27м. - высота забора 2 метра - ворота откатные с автоматикой 3м - калитка 1м Предложения с указанием цены, сроков и доп.инф. высылать на e-mail Заранее благодарен. Посилання на коментар Поділитися на інших сайтах More sharing options...
Вратарь Опубліковано: 25 січня 2014 Поділитись Опубліковано: 25 січня 2014 Забор и ворота должен выполнить один подрядчик? Посилання на коментар Поділитися на інших сайтах More sharing options...
Дмытрык1 Опубліковано: 25 січня 2014 Автор Поділитись Опубліковано: 25 січня 2014 Думаю что лучше один, потом как совмещать двух подрядчиков. Одни по своему поставят столбы, другие скажут что неправильно. При заливке фундамента нужно и опорную балку сразу заливать или она потом может заливаться???? Пока не могу конкретно ответить на этот вопрос так как не знаю всех нюансов строительства. Посилання на коментар Поділитися на інших сайтах More sharing options...
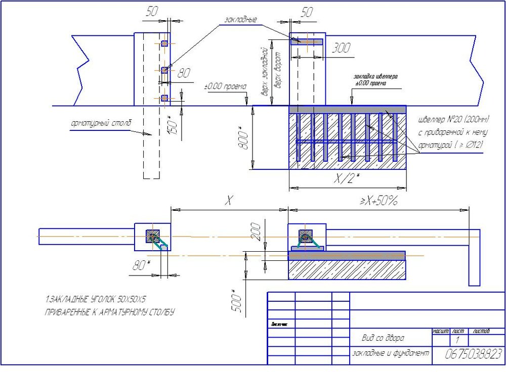
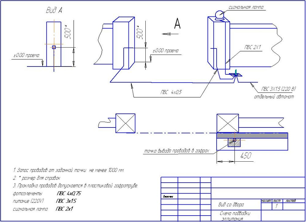
Вратарь Опубліковано: 25 січня 2014 Поділитись Опубліковано: 25 січня 2014 В похожей теме уже писал, что у Вас будет хороший забор и так себе ворота или хорошие ворота с нормальным сервисом и плохой забор. С трудом представляю себе бригаду, которая делает заборы и ездит на ремонты ворот и автоматики. Обычно каменщики и электрик получают техническое задание на заливку фундамента, закладные и прокладку проводов и все делают по схеме. Фундамент для ворот рекомендую заливать после заливки фундамента для забора, разметки столбов относительно этого фундамента. Посилання на коментар Поділитися на інших сайтах More sharing options...
Дмытрык1 Опубліковано: 25 січня 2014 Автор Поділитись Опубліковано: 25 січня 2014 Значит разные подрядчики. Соответственно при заливке фундамента для забора нужно также консультироваться по поводу фундамента для ворот. если я правильно понял нужно свести двух подрядчиков. Посилання на коментар Поділитися на інших сайтах More sharing options...
Вратарь Опубліковано: 25 січня 2014 Поділитись Опубліковано: 25 січня 2014 Дайте будущему подрядчику на забор эти схемы. Подумайте над шириной проема, 3-х метров может быть мало для въезда грузового автомобиля на участок, да и для легкового 3,5-4 м. будет приятней. Посилання на коментар Поділитися на інших сайтах More sharing options...
Дмытрык1 Опубліковано: 25 січня 2014 Автор Поділитись Опубліковано: 25 січня 2014 Спасибо огромное за схемы. По поводу ширины проема согласен стоит подумать. Посилання на коментар Поділитися на інших сайтах More sharing options...
Вратарь Опубліковано: 25 січня 2014 Поділитись Опубліковано: 25 січня 2014 Спасибо огромное за схемы. По поводу ширины проема согласен стоит подумать. Пожалуйста. Для отката ворот необходимо расстояние в полтора раза большее, чем проем. Посилання на коментар Поділитися на інших сайтах More sharing options...
Piontkovskiy Опубліковано: 25 січня 2014 Поділитись Опубліковано: 25 січня 2014 Я-бы делал пролеты кратными листам профнастила. Тогда ворота смело получатся 4м. Стоимость забора "под ключ" - от950грн/м.п. (зависит от Вашего грунта, кирпича, профлиста).Калитка - 1000грн. Ворота лучше отдайте воротчикам можем сварить, но нету выходов на фурнитуру Пишите в лс пожелания, примерное описание грунтов, просчитаю конкретнее. Начать можем с среднесуточной температуры +3 Посилання на коментар Поділитися на інших сайтах More sharing options...
Дмытрык1 Опубліковано: 25 січня 2014 Автор Поділитись Опубліковано: 25 січня 2014 Пожалуйста. Для отката ворот необходимо расстояние в полтора раза большее, чем проем. Это да, сама створка ворот будет около 6 метров. Я-бы делал пролеты кратными листам профнастила. Тогда ворота смело получатся 4м. Стоимость забора "под ключ" - от950грн/м.п. (зависит от Вашего грунта, кирпича, профлиста).Калитка - 1000грн. Ворота лучше отдайте воротчикам можем сварить, но нету выходов на фурнитуру Пишите в лс пожелания, примерное описание грунтов, просчитаю конкретнее. Начать можем с среднесуточной температуры +3 Спасибо. Посилання на коментар Поділитися на інших сайтах More sharing options...
Рекомендовані повідомлення
Створіть акаунт або увійдіть у нього для коментування
Ви маєте бути користувачем, щоб залишити коментар
Створити акаунт
Зареєструйтеся для отримання акаунта. Це просто!
Зареєструвати акаунтУвійти
Вже зареєстровані? Увійдіть тут.
Увійти зараз