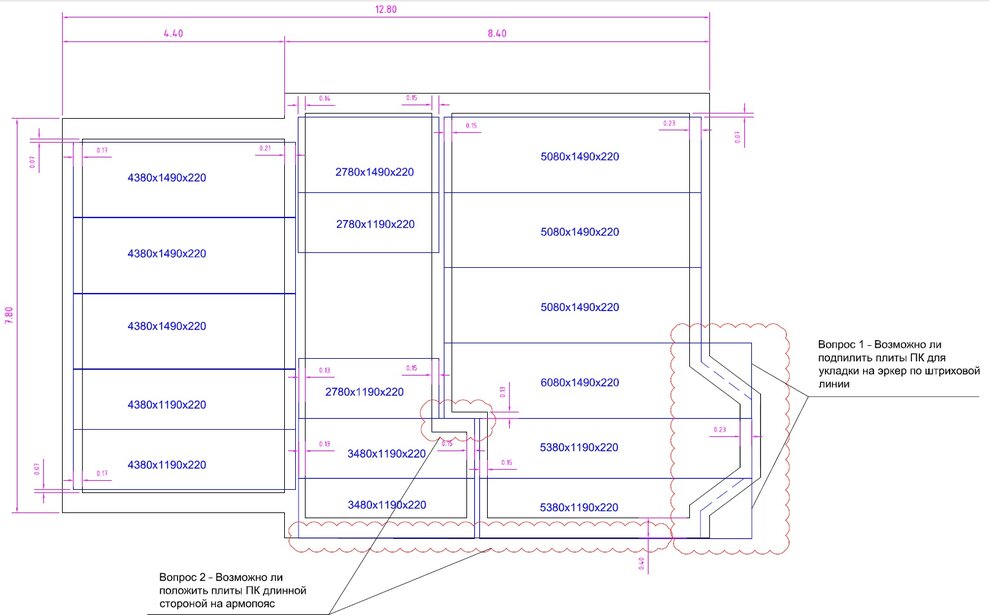
Zinder Опубліковано: 12 березня 2014 Поділитись Опубліковано: 12 березня 2014 Добрый день, Скоро начну строить стены, фундамент и цоколь готовы. Подскажите пожалуйста по варианту раскладки плит перекрытия ПК пустотных Информация о стенах: Фундамент, цоколь - лента, монолит, бетон М200, ширина 0,4м, высота 1,5м. Глубина заложения 1,1 м. Стены - ракушняк М25 в камень, ширина 0,4м. Высота до армопояса - 2,7 м. Армопояс - армировка 4 продольных арматуры А14 (низ) и А12 (верх), поперечены А10 По краям армопояса в качестве опалубки стоят кирпичи М100 на ребро с каждой стороны в два ряда. Итого выходит если смотреть сверху на армопояс - кирпич 65 мм плюс армопояс 250 мм плсю 65 мм кирпич. Размеры армопояса - 250 на 250 мм. Я придерживался рекомендации по опирании торцевой части плит ПК на несущую стену 140-150 мм Расстояние между длинной частью плит и несущей стеной 70-100 мм. Вплотную не получилось На рисунке я выдели места, которые меня беспокоят, и соответственно хотелось бы услышать мнение форумчан о такой раскладке плит. Вопрос 1 - Возможно ли подпилить плиты ПК для укладки на эркер по штриховой линии Вопрос 2 - Возможно ли положить плиты ПК длинной стороной на армопояс на всю длинну либо частично? Плюс если есть замечание по остальной раскладки плит то с удовольствием выслушаю. Посилання на коментар Поділитися на інших сайтах More sharing options...
Drosselbeere Опубліковано: 12 березня 2014 Поділитись Опубліковано: 12 березня 2014 Вопрос 1 - Возможно ли подпилить плиты ПК для укладки на эркер по штриховой линии возможно без особых сложностей если используете плиты ПБ Вопрос 2 - Возможно ли положить плиты ПК длинной стороной на армопояс на всю длинну либо частично? для ПК плит по серии допускается опирание не более 70-100 мм длинной стороной на стену На рисунке я выдели места, которые меня беспокоят, и соответственно хотелось бы услышать мнение форумчан о такой раскладке плит. выложите план дома с внутренними размерами я предложу свой вариант Посилання на коментар Поділитися на інших сайтах More sharing options...
Zinder Опубліковано: 13 березня 2014 Автор Поділитись Опубліковано: 13 березня 2014 выложите план дома с внутренними размерами я предложу свой вариант Добрый день, В файле - план стены первого этажа там где армопояс. Армопояс - армировка 2 продольных арматуры А14 (низ) и 2 А12 (верх), поперечены А10 По краям армопояса в качестве опалубки стоят кирпичи М100 на ребро с каждой стороны в два ряда. Итого выходит если смотреть сверху на армопояс - кирпич 65 мм плюс армопояс 250 мм плюс 65 мм кирпич. Размеры самого бетона армопояса - 250 на 250 мм. Общая ширина бетонного армопояс и кирпича 400 мм. Это и есть ширина стены. Стены повторюсь ракушняк М25 в камень, 380 мм - 400 мм. И вот тут возник очень большой вопрос у меня. на боковой стене, где эркер будет стена фронтон в пол камня ракушняка 200 мм. Выходит, что фронтон будет лежать на плите, которая лежит на эркере в одном метра от торца плиты. Что скажете по нагрузке от стены, которая будет давить не на край плиты а в 1 метр от края примерно? Вот еще рисунок того, что будет над эркеромПланы армопоясов.pdf Посилання на коментар Поділитися на інших сайтах More sharing options...
Drosselbeere Опубліковано: 13 березня 2014 Поділитись Опубліковано: 13 березня 2014 В файле - план стены первого этажа там где армопояс. а где же лестница и проем под нее???? Вот еще рисунок того, что будет над эркером а нужен ли там балкон??? как планируете организовать утепление, гидроизоляцию и тд ?? Посилання на коментар Поділитися на інших сайтах More sharing options...
Zinder Опубліковано: 13 березня 2014 Автор Поділитись Опубліковано: 13 березня 2014 а где же лестница и проем под нее???? Вот проем под лестницу, штриховкой только заливать монолит прийдется...плиты1.pdf Посилання на коментар Поділитися на інших сайтах More sharing options...
Zinder Опубліковано: 14 березня 2014 Автор Поділитись Опубліковано: 14 березня 2014 Обновленный план раскладки плит, спасибо Drosselbeere за консультацию 1. На линии эркера сделаю перемычку, либо там будет проходить армопояс. Плита торцом будет лежать на этой перемычке. Над эркером будет либо монолитный участок под балкон либо как вариант балконная плита. Что скажете? 2. Убрал опирание плит на длинную часть, оставил небольшрй зазор между стеной 3. Зазоры между соседними плитами 2 -4 см заделаю раствором. 4. Участок над лестнецей залью монолитом. Как вариант для усилении конструкции кинуть по швеллеру (паралельно плите) и сделать металический каркас.плиты2.pdf Посилання на коментар Поділитися на інших сайтах More sharing options...
Drosselbeere Опубліковано: 14 березня 2014 Поділитись Опубліковано: 14 березня 2014 мое виденье схемы раскладки плит перекрытия 1 Посилання на коментар Поділитися на інших сайтах More sharing options...
Рекомендовані повідомлення
Створіть акаунт або увійдіть у нього для коментування
Ви маєте бути користувачем, щоб залишити коментар
Створити акаунт
Зареєструйтеся для отримання акаунта. Це просто!
Зареєструвати акаунтУвійти
Вже зареєстровані? Увійдіть тут.
Увійти зараз