bisoffice Опубліковано: 28 березня 2014 Поділитись Опубліковано: 28 березня 2014 Друзья! Уже настал у меня черед лестницы на второй этаж! В проекте только план лестницы (см. приложение). По затратам понимаю, что на данный момент не тяну деревянную лестницу, поэтому рассматриваю вариант либо бетонной ли каркас из металла с последующей (после внутрянки) обшивкой деревом. Подскажите, плз, расценки и на ту и на ту позицию, чтоб выбрать для себя более экономичный, но не менее практичный, вариант. И вообще удобна ли лестница, обозначенная на плане. Заранее спасибо! С уважением, Игорь! Посилання на коментар Поділитися на інших сайтах More sharing options...
shodyveletyk Опубліковано: 29 березня 2014 Поділитись Опубліковано: 29 березня 2014 Можем предложить вам на даном етапе металокаркас , а уже после внутренных работ его обшивку деревом. Предложение отправил в ЛС. Посилання на коментар Поділитися на інших сайтах More sharing options...
SergiykoS Опубліковано: 30 березня 2014 Поділитись Опубліковано: 30 березня 2014 Если ТС не против - подмажусь к теме, чтоб не создавать новую - также нужно сделать металлический каркас лестницы. ширина марша 1 м, ровная площадка, 22 ступени. Спасибо Посилання на коментар Поділитися на інших сайтах More sharing options...
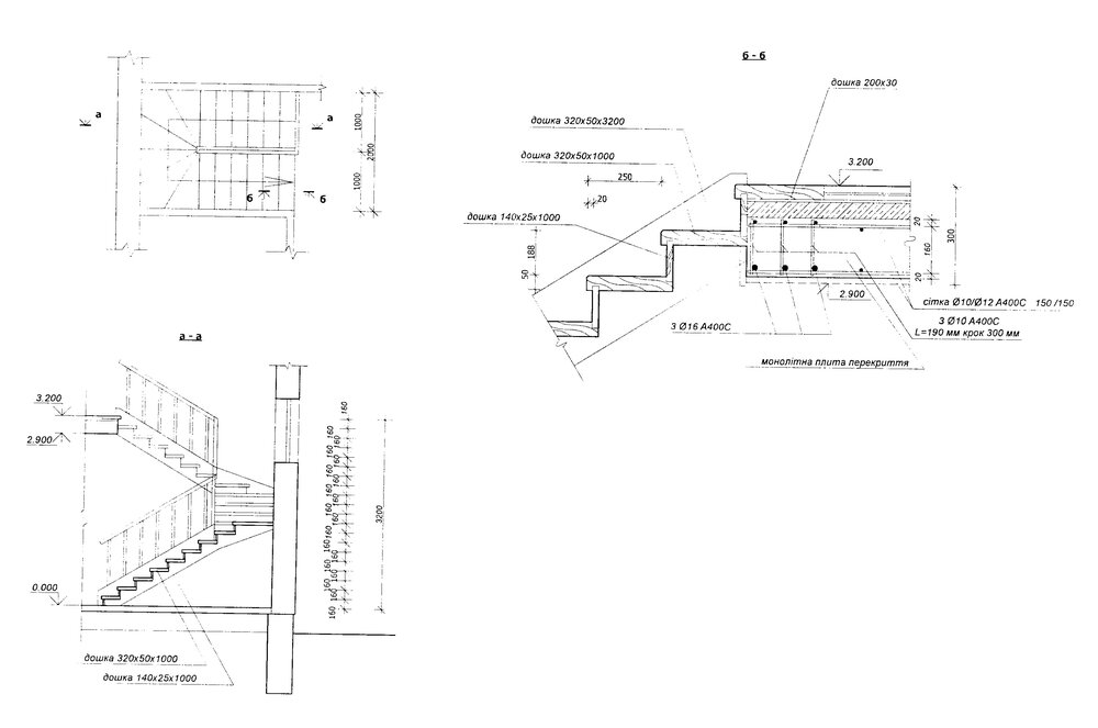
shodyveletyk Опубліковано: 10 квітня 2014 Поділитись Опубліковано: 10 квітня 2014 Друзья! Уже настал у меня черед лестницы на второй этаж! В проекте только план лестницы (см. приложение). По затратам понимаю, что на данный момент не тяну деревянную лестницу, поэтому рассматриваю вариант либо бетонной ли каркас из металла с последующей (после внутрянки) обшивкой деревом. Подскажите, плз, расценки и на ту и на ту позицию, чтоб выбрать для себя более экономичный, но не менее практичный, вариант. И вообще удобна ли лестница, обозначенная на плане. Заранее спасибо! С уважением, Игорь! Здравствуйте Игорь ! Посмотрите оба варианта и скажите какой вам лучше . Также на чертеже красным проставлены размеры , скажите соответсвуют ли они реальним размерам у вас на стройке. По цене ответил вам в ЛС.Игорь Строимдом1-1.pdfИгорь Строимдом1-2.pdfИгорь Строимдом2-1.pdfИгорь Строимдом2-2.pdf Посилання на коментар Поділитися на інших сайтах More sharing options...
bisoffice Опубліковано: 11 квітня 2014 Автор Поділитись Опубліковано: 11 квітня 2014 Добрый день! Всем большое спасибо за предложения и подсказки! Хочу доложить: вчера стал обладателем шикарной металлокаркасной лестницы. Воспользовался советами одной очень уважаемой форумчанки: нашел хорошего сварщика (не легкое это дело ), закупил 33 м. профильной трубы 100*50 и за один день я получил качественную, мощную, красивую и не дорогую лестницу. Если бы не тормозил с покупкой трубы, то вышло бы еще дешевле. В начале апреля метр стоил 47 грн., через неделю уже я купил за 64 грн. Получилось переплатил 17 грн. * 33 м. = 561 грн. Отдельно хочу выделить профессионализм сварщика. Просто мастер своего дела. 4 Посилання на коментар Поділитися на інших сайтах More sharing options...
mamavera Опубліковано: 11 квітня 2014 Поділитись Опубліковано: 11 квітня 2014 вчера стал обладателем шикарной металлокаркасной лестницы. :good: А можете огласить "итого" и контакты сварщика в личку?:roll: Посилання на коментар Поділитися на інших сайтах More sharing options...
bisoffice Опубліковано: 11 квітня 2014 Автор Поділитись Опубліковано: 11 квітня 2014 :good: А можете огласить "итого" и контакты сварщика в личку?:roll: Скрывать нечего: За материалы я заплатил 2300 грн (2100 труба + 200 грн. расходники) За работу - 2 000 грн. (с учетом что сварщик сам привез мне материал, тоесть сэкономил 400 грн. на доставке) Итого: 4 300 грн. + обязательно хочу позже выставить ему могарыч за отличную работу 3 Посилання на коментар Поділитися на інших сайтах More sharing options...
Jurik Опубліковано: 11 квітня 2014 Поділитись Опубліковано: 11 квітня 2014 А можно контакты сварщика?Добрый день! Всем большое спасибо за предложения и подсказки! Хочу доложить: вчера стал обладателем шикарной металлокаркасной лестницы. Воспользовался советами одной очень уважаемой форумчанки: нашел хорошего сварщика (не легкое это дело ), закупил 33 м. профильной трубы 100*50 и за один день я получил качественную, мощную, красивую и не дорогую лестницу. Если бы не тормозил с покупкой трубы, то вышло бы еще дешевле. В начале апреля метр стоил 47 грн., через неделю уже я купил за 64 грн. Получилось переплатил 17 грн. * 33 м. = 561 грн. Отдельно хочу выделить профессионализм сварщика. Просто мастер своего дела. Посилання на коментар Поділитися на інших сайтах More sharing options...
valerazaz Опубліковано: 11 квітня 2014 Поділитись Опубліковано: 11 квітня 2014 если лестница будет откритого типа,то вариант выбора конструктива верный а если в плане полная зашывка деревом ,то лестница стала ищё дороже но каркас акуратный получился Посилання на коментар Поділитися на інших сайтах More sharing options...
Дашуля Опубліковано: 11 квітня 2014 Поділитись Опубліковано: 11 квітня 2014 И мне контакты можно? Буду оч благодарна Посилання на коментар Поділитися на інших сайтах More sharing options...
shodyveletyk Опубліковано: 13 квітня 2014 Поділитись Опубліковано: 13 квітня 2014 И мне контакты можно? Буду оч благодарнаПредложение и ескиз лестницы отправил вам на емейл. Посилання на коментар Поділитися на інших сайтах More sharing options...
Дашуля Опубліковано: 13 квітня 2014 Поділитись Опубліковано: 13 квітня 2014 [shodyveletyk;2866469]Предложение и ескиз лестницы отправил вам на емейл. письмо не пришло,попробуйте еще раз.спасибо Посилання на коментар Поділитися на інших сайтах More sharing options...
sterx Опубліковано: 14 квітня 2014 Поділитись Опубліковано: 14 квітня 2014 bisoffice, с можно и мне контакты сварщика? спасибо. Посилання на коментар Поділитися на інших сайтах More sharing options...
Дашуля Опубліковано: 14 квітня 2014 Поділитись Опубліковано: 14 квітня 2014 Нужна лестница на 2 этаж,радиусная бетонная или мет каркас. предложения в личку.Высота от пола до потолка 2.80, перекрытие 160,ширина лестницы 100.Лестница без подступенка. Посилання на коментар Поділитися на інших сайтах More sharing options...
chao11 Опубліковано: 22 квітня 2014 Поділитись Опубліковано: 22 квітня 2014 Подскажите .нужна лесница винтовая из метала высота-2.5 метра а ширина- 90 см.Где купить или сколько будет стоить работа если сварить??? Посилання на коментар Поділитися на інших сайтах More sharing options...
Jurik Опубліковано: 25 квітня 2014 Поділитись Опубліковано: 25 квітня 2014 Добрый день! Всем большое спасибо за предложения и подсказки! Хочу доложить: вчера стал обладателем шикарной металлокаркасной лестницы. Воспользовался советами одной очень уважаемой форумчанки: нашел хорошего сварщика (не легкое это дело ), закупил 33 м. профильной трубы 100*50 и за один день я получил качественную, мощную, красивую и не дорогую лестницу. Если бы не тормозил с покупкой трубы, то вышло бы еще дешевле. В начале апреля метр стоил 47 грн., через неделю уже я купил за 64 грн. Получилось переплатил 17 грн. * 33 м. = 561 грн. Отдельно хочу выделить профессионализм сварщика. Просто мастер своего дела. bisoffice, спасибо за контакт сварщика. Благодаря ему вчера и я стал обладателем шикарной лестницы. Профессионализм сварщика Андрея подтверждается. Человек реально занимается своим делом. За три дня сварил две "П" образных лестницы (две площадки и четыре марша). 3 Посилання на коментар Поділитися на інших сайтах More sharing options...
Hopira Опубліковано: 25 квітня 2014 Поділитись Опубліковано: 25 квітня 2014 И мне, и мне контакт нужен Заранее благодарю!!! Посилання на коментар Поділитися на інших сайтах More sharing options...
bisoffice Опубліковано: 25 квітня 2014 Автор Поділитись Опубліковано: 25 квітня 2014 bisoffice, спасибо за контакт сварщика. Благодаря ему вчера и я стал обладателем шикарной лестницы. Профессионализм сварщика Андрея подтверждается. Человек реально занимается своим делом. За три дня сварил две "П" образных лестницы (две площадки и четыре марша). фото в студию Посилання на коментар Поділитися на інших сайтах More sharing options...
Piontkovskiy Опубліковано: 27 квітня 2014 Поділитись Опубліковано: 27 квітня 2014 Есть хороший сварщик Если только сварка каркаса(как в случае у топикстартера), то от 1600грн. Готовый каркас под ключ, у нас бы стоил - около 7000грн. (Монтаж опор каркаса, сварка, покраска, материалы) О93 142 2о 61 Посилання на коментар Поділитися на інших сайтах More sharing options...
Kicunya Опубліковано: 12 травня 2014 Поділитись Опубліковано: 12 травня 2014 bisoffice, спасибо Вам за контакты, в субботу Андрей нам сварил лестницу. Очень понравилась работа и его скурпулезный подход к делу. Т.к. лестница планировалась в срубе, Андрей максимально все сварил у себя, а у нас уже соединял марши. Пытались сфотографировать не получилось, вышло темно, т.к. у нас еще нет електричества. Если не забуду фотик, сделаю на следующей неделе. 1 Посилання на коментар Поділитися на інших сайтах More sharing options...
Piontkovskiy Опубліковано: 12 травня 2014 Поділитись Опубліковано: 12 травня 2014 Подскажите .нужна лесница винтовая из метала высота-2.5 метра а ширина- 90 см.Где купить или сколько будет стоить работа если сварить??? Можем сделать Какой конструктив в плане? (Начало и конец в вертикальной плоскости?) есть закладные? Материал перекрытия, основания? Пишите в ЛС Посилання на коментар Поділитися на інших сайтах More sharing options...
krestnyi Опубліковано: 12 травня 2014 Поділитись Опубліковано: 12 травня 2014 есть ли смысл изготавливать деревянную лестницу под заказ? или легче уже в эпицентре купить? Посилання на коментар Поділитися на інших сайтах More sharing options...
shodyveletyk Опубліковано: 13 травня 2014 Поділитись Опубліковано: 13 травня 2014 есть ли смысл изготавливать деревянную лестницу под заказ? или легче уже в эпицентре купить? Смотря какая вам нужна лестница. Готовые идут маршевые и винтовые. Если же нужна лестница с индивидуальным подходом - тогда нужно заказывать. Посилання на коментар Поділитися на інших сайтах More sharing options...
Pumohka Опубліковано: 14 травня 2014 Поділитись Опубліковано: 14 травня 2014 bisoffice, можно и мне контакт сварщика? спасибо Посилання на коментар Поділитися на інших сайтах More sharing options...
bisoffice Опубліковано: 14 травня 2014 Автор Поділитись Опубліковано: 14 травня 2014 bisoffice, можно и мне контакт сварщика? спасибо отправил в пм 1 Посилання на коментар Поділитися на інших сайтах More sharing options...
Рекомендовані повідомлення
Створіть акаунт або увійдіть у нього для коментування
Ви маєте бути користувачем, щоб залишити коментар
Створити акаунт
Зареєструйтеся для отримання акаунта. Це просто!
Зареєструвати акаунтУвійти
Вже зареєстровані? Увійдіть тут.
Увійти зараз