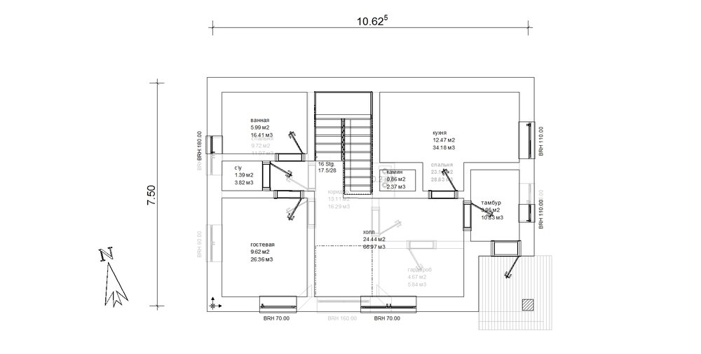
Lyoha.pol Опубліковано: 1 квітня 2014 Поділитись Опубліковано: 1 квітня 2014 (змінено) Интересует ваше мнение по проекту. в частности планировка, размеры и расположения комнат. Змінено 1 квітня 2014 користувачем Lyoha.pol Посилання на коментар Поділитися на інших сайтах More sharing options...
vadimv Опубліковано: 2 квітня 2014 Поділитись Опубліковано: 2 квітня 2014 1. Входную дверь бы переделал на открывание влево, к стене. 2. Дверь между тамбуром и холлом тоже перевесил бы на другую сторону или заменил на сдвижную, чтобы она не маячила посреди тамбура. 3. Лестница неудобная - высота ступенек порядка 20 см. 4. Могут возникнуть трудности с заносом мебели в гостевую (и ванны в ванную). 5. Я себе в таком же санузле тоже сделал маленькое окошко. 6. Спальни на втором этаже маловаты по размеру. 7. Я бы ради упрощения крыши заменил "скворечник" на мансардное окно. А в целом мне лично нравится. 1 Посилання на коментар Поділитися на інших сайтах More sharing options...
Lyoha.pol Опубліковано: 2 квітня 2014 Автор Поділитись Опубліковано: 2 квітня 2014 1 . дверь, уже исправил 2. в тамбуре за дверью планировался шкаф купе, поэтому так открывается 3.по поводу лестницы шаг 17.5 проступь 28 там кажется даже написано 4. тут согласен буду подумать 5. окно в санузле не планировал по причине теплопотерь (дом планируется энергоэффективный) 6.может быть... подумаю над этим, хотя планировал их придерживаясь рекомендованных размеров. 7. а вот скворечник головная боль.( нужно освещать лестничный марш и при этом как то защитить второй этаж летом от перегрева(в моем случае свесом кровли) мансардное окно тут наверное не справится. Большое спасибо за замечания , буду думать. Посилання на коментар Поділитися на інших сайтах More sharing options...
vadimv Опубліковано: 2 квітня 2014 Поділитись Опубліковано: 2 квітня 2014 5. окно в санузле не планировал по причине теплопотерь (дом планируется энергоэффективный)У меня в туалете стоит окошко 50х50, под ним маленькая батарея половинной толщины между стеной и бачком унитаза. Я бы не сказал, что зимой вообще было заметно хоть какой-то холод от окна. Зато есть дневной свет и проветривание летом. Хотя, в принципе, вам решать, я просто в качестве совета.7. а вот скворечник головная боль.( нужно освещать лестничный марш и при этом как то защитить второй этаж летом от перегрева(в моем случае свесом кровли) мансардное окно тут наверное не справится.Тканевые роллеты со светоотражающим покрытием, как вариант. Посилання на коментар Поділитися на інших сайтах More sharing options...
Lyoha.pol Опубліковано: 2 квітня 2014 Автор Поділитись Опубліковано: 2 квітня 2014 У меня в туалете стоит окошко 50х50, под ним маленькая батарея половинной толщины между стеной и бачком унитаза. Я бы не сказал, что зимой вообще было заметно хоть какой-то холод от окна. Зато есть дневной свет и проветривание летом. Хотя, в принципе, вам решать, я просто в качестве совета.Тканевые роллеты со светоотражающим покрытием, как вариант. насчет окна все равно не убедили (воюю буквально за каждые 100вт.), а вот вариант с роллетами я рассмотрю внимательнее. Посилання на коментар Поділитися на інших сайтах More sharing options...
Andrei constructor Опубліковано: 2 квітня 2014 Поділитись Опубліковано: 2 квітня 2014 Гостиная расположена неудобно. Проходное помещение 1 Посилання на коментар Поділитися на інших сайтах More sharing options...
Lyoha.pol Опубліковано: 2 квітня 2014 Автор Поділитись Опубліковано: 2 квітня 2014 Гостиная расположена неудобно. Проходное помещение согласен..., но с минимальными жертвами обойти это я не смог еще смущает то что проходить будут в зоне камина Посилання на коментар Поділитися на інших сайтах More sharing options...
Ansambl Опубліковано: 2 квітня 2014 Поділитись Опубліковано: 2 квітня 2014 А почему дом энергоэффективный? Посилання на коментар Поділитися на інших сайтах More sharing options...
Lyoha.pol Опубліковано: 3 квітня 2014 Автор Поділитись Опубліковано: 3 квітня 2014 А почему дом энергоэффективный? он проектируется с минимальными потерями тепла (фундамент УШП, теплые герметичные стены, принудительная вентиляция и т.д.) Посилання на коментар Поділитися на інших сайтах More sharing options...
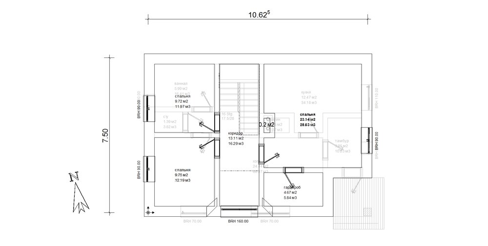
ionico Опубліковано: 3 квітня 2014 Поділитись Опубліковано: 3 квітня 2014 Привет, всегда с большим энтузиазмом читаю про всё "энергоэффективное" и т. д. Ведь это подразумевает использование новейших взглядов на архитектуру, проектирование, технологии. Но почему-то у нас, на пост-советском пространстве вся энергоэффективность сводится чисто к маленьким окнам, хорошо утеплённым стенам. Просто посмотрите ссылки: www.magazindomov.ru/2011/03/25/passivnyj-dom-pod-nyu-jorkom/ www.magazindomov.ru/2010/10/11/passivnyj-dom-v-shvejcarii/ www.magazindomov.ru/2010/07/22/passivnyj-dom-pod-parizhem/ Даже планировки у этих домов выглядят как-то более "продвинутыми"... У Вас же как-то больше похоже на просто квартиру в панельном доме, только у неё есть свой участок. Не обижайтесь... Если у нас энергоэффективность, то почему на 2 этаже большая спальня 23,14 кв. м. имеет такую невыгодную ориентацию по сторонам света? Почему её гардеробная занимает южную сторону? Согласен с предыдущим высказыванием насчёт маленьких спален - они действительно маленькие. Можно их увеличить за счёт большого коридора. Как раз, ориентация будет лучше. Лестница на север - ок. Нет с/у на 2 этаже. Дело вкуса, но как-то не удобно. Кстати, куда потянутся вентканалы из с/у на 1 этаже? А, кстати, холл на 1 этаже мне нравится. 1 Посилання на коментар Поділитися на інших сайтах More sharing options...
Михаил 455 Опубліковано: 3 квітня 2014 Поділитись Опубліковано: 3 квітня 2014 То же не понимаю, зачем жертвовать комфортом ради мнимой экономии. Во первых уже морозы не такие суровые как раньще, а во вторых в с современными технологиями достаточно много способов сделать дом более экономным 1 Посилання на коментар Поділитися на інших сайтах More sharing options...
Lyoha.pol Опубліковано: 3 квітня 2014 Автор Поділитись Опубліковано: 3 квітня 2014 Привет, всегда с большим энтузиазмом читаю про всё "энергоэффективное" и т. д. Ведь это подразумевает использование новейших взглядов на архитектуру, проектирование, технологии. Но почему-то у нас, на пост-советском пространстве вся энергоэффективность сводится чисто к маленьким окнам, хорошо утеплённым стенам. Просто посмотрите ссылки: www.magazindomov.ru/2011/03/25/passivnyj-dom-pod-nyu-jorkom/ www.magazindomov.ru/2010/10/11/passivnyj-dom-v-shvejcarii/ www.magazindomov.ru/2010/07/22/passivnyj-dom-pod-parizhem/ Даже планировки у этих домов выглядят как-то более "продвинутыми"... У Вас же как-то больше похоже на просто квартиру в панельном доме, только у неё есть свой участок. Не обижайтесь... Если у нас энергоэффективность, то почему на 2 этаже большая спальня 23,14 кв. м. имеет такую невыгодную ориентацию по сторонам света? Почему её гардеробная занимает южную сторону? Согласен с предыдущим высказыванием насчёт маленьких спален - они действительно маленькие. Можно их увеличить за счёт большого коридора. Как раз, ориентация будет лучше. Лестница на север - ок. Нет с/у на 2 этаже. Дело вкуса, но как-то не удобно. Кстати, куда потянутся вентканалы из с/у на 1 этаже? А, кстати, холл на 1 этаже мне нравится. о спальней признаю, изначально она была меньше и занимала юго восток, после расчетов и перепланировки первого этажа вышло вот так ( почему кстати и обратился к вам за помощью так сказать) размер окон к моменту постройки тоже подкорректирую, но почему то кажется не сильно,(соотношение цена качество у нас и в европе не в нашу пользу) маленькие комнаты на западе , последствия последней перепланировки на первом этаже.(с их размером тоже наверное нужно что то делать) вент. каналы из с\у ванны и кухни пойдут под лестничный марш( к коллекторам и болеру с горячей водой), с\у на втором тоже полезно, но не принципиально(может в последующих корректировках и ему найдется место. может кто и подскажет как не меняя(или не сильно) планировку первого этажа добится рациональной планировки на втором. да кстати насчет окон в европе климат мягче у нас же наоборот и соответственно соотношение нагрев ( от солнца) и теплопотери не в нашу пользу. Добавлено через 8 минут То же не понимаю, зачем жертвовать комфортом ради мнимой экономии. Во первых уже морозы не такие суровые как раньще, а во вторых в с современными технологиями достаточно много способов сделать дом более экономным жертвовать комфортом не хочу, почему собственно я здесь и интересуюсь вашим мнением, а дополнительные затраты должны о окупится лет за семь за восемь, а дальше экономия "а во вторых в с современными технологиями достаточно много способов сделать дом более экономным" хотелось бы с примерами... . Добавлено через 36 минут Привет, всегда с большим энтузиазмом читаю про всё "энергоэффективное" и т. д. Ведь это подразумевает использование новейших взглядов на архитектуру, проектирование, технологии. Но почему-то у нас, на пост-советском пространстве вся энергоэффективность сводится чисто к маленьким окнам, хорошо утеплённым стенам. Просто посмотрите ссылки: www.magazindomov.ru/2011/03/25/passivnyj-dom-pod-nyu-jorkom/ www.magazindomov.ru/2010/10/11/passivnyj-dom-v-shvejcarii/ www.magazindomov.ru/2010/07/22/passivnyj-dom-pod-parizhem/ Даже планировки у этих домов выглядят как-то более "продвинутыми"... У Вас же как-то больше похоже на просто квартиру в панельном доме, только у неё есть свой участок. Не обижайтесь... Если у нас энергоэффективность, то почему на 2 этаже большая спальня 23,14 кв. м. имеет такую невыгодную ориентацию по сторонам света? Почему её гардеробная занимает южную сторону? Согласен с предыдущим высказыванием насчёт маленьких спален - они действительно маленькие. Можно их увеличить за счёт большого коридора. Как раз, ориентация будет лучше. Лестница на север - ок. Нет с/у на 2 этаже. Дело вкуса, но как-то не удобно. Кстати, куда потянутся вентканалы из с/у на 1 этаже? А, кстати, холл на 1 этаже мне нравится. ionico спасибо большое за ссылки, но я не преследую цель сделать именно пассивный( у нас в россии пока это неоправдано дорого, по комплектующим и некоторым материалам) да и инженеры наши по моему мнению пока не могут грамотно и экономно его сбалансировать, и сам я естественно тоже до такого уровня не дотягиваю, а вот дом с довольно низким потреблением энергии( тем более что в России энергоресурсы дешевле чем в европе) почему бы и нет. я планирую что дополнительные затраты окупятся низкой стоимостью эксплуатации . а вот проекты по ссылкам по моему личному мнению больше походят а концепты. мне бы хотелось дом комфортный для семьи . Посилання на коментар Поділитися на інших сайтах More sharing options...
ionico Опубліковано: 3 квітня 2014 Поділитись Опубліковано: 3 квітня 2014 спасибо большое за ссылки, но я не преследую цель сделать именно пассивный( у нас в россии пока это неоправдано дорого, по комплектующим и некоторым материалам) да и инженеры наши по моему мнению пока не могут грамотно и экономно его сбалансировать, и сам я естественно тоже до такого уровня не дотягиваю, а вот дом с довольно низким потреблением энергии( тем более что в России энергоресурсы дешевле чем в европе) почему бы и нет. я планирую что дополнительные затраты окупятся низкой стоимостью эксплуатации . а вот проекты по ссылкам по моему личному мнению больше походят а концепты. мне бы хотелось дом комфортный для семьи . это не концепты, а реальные, построенные после расчетов интересно знать, что за расчёты? Вы считаете теплопотери? Посилання на коментар Поділитися на інших сайтах More sharing options...
Lyoha.pol Опубліковано: 3 квітня 2014 Автор Поділитись Опубліковано: 3 квітня 2014 это не концепты, а реальные, построенные интересно знать, что за расчёты? Вы считаете теплопотери? педполагаемые теплопотери и окупаемость затрат на эти мероприятия, а вот с практичностью этих "реальных построенных" стоит призадуматься Добавлено через 19 минут ionico. у меня к вам встречный вопрос . вы интересуетесь подобными строениями из любопытства, планируете подобную стройку или у вас какие то свои причины? Посилання на коментар Поділитися на інших сайтах More sharing options...
ЧП Ненашев А Б Опубліковано: 3 квітня 2014 Поділитись Опубліковано: 3 квітня 2014 Я бы на первом этаже передвинула (углубила) дверь в кухню на уровень другой стены камина и открывание поменяла бы - чтобы дверь открывалась на каминную стену. В таком виде камин будет более заметен. Посилання на коментар Поділитися на інших сайтах More sharing options...
ionico Опубліковано: 3 квітня 2014 Поділитись Опубліковано: 3 квітня 2014 ionico. у меня к вам встречный вопрос . вы интересуетесь подобными строениями из любопытства, планируете подобную стройку или у вас какие то свои причины? Я - архитектор, люблю лаконичные стили современной архитектуры, очень интересуюсь темами энергопассивности зданий и энергосбережений. К архитектуре других направлений отношусь с большим уважением, но всё же это не моё... работой, конечно, перебирать особо не приходится, но с особым трепетом отношусь к тем работам, где клиенты изначально разделяют мои взгляды на архитектуру. Таких работ, конечно, мало у меня, но они самые ценные И да, если я когда-нибудь буду строить, то только так Добавлено через 2 минуты практичностью этих "реальных построенных" стоит призадуматься что именно непрактично, большие окна? да, но, согласитесь, здание, которые "ухты вау" не обязательно с большими окнами Посилання на коментар Поділитися на інших сайтах More sharing options...
Lyoha.pol Опубліковано: 3 квітня 2014 Автор Поділитись Опубліковано: 3 квітня 2014 Я бы на первом этаже передвинула (углубила) дверь в кухню на уровень другой стены камина и открывание поменяла бы - чтобы дверь открывалась на каминную стену. В таком виде камин будет более заметен. наличие этой стены под вопросом, возможно даже ее в конечном варианте не будет.( может даже с камином, вернее каминопечью). Добавлено через 15 минут Я - архитектор, люблю лаконичные стили современной архитектуры, очень интересуюсь темами энергопассивности зданий и энергосбережений. К архитектуре других направлений отношусь с большим уважением, но всё же это не моё... работой, конечно, перебирать особо не приходится, но с особым трепетом отношусь к тем работам, где клиенты изначально разделяют мои взгляды на архитектуру. Таких работ, конечно, мало у меня, но они самые ценные И да, если я когда-нибудь буду строить, то только так Добавлено через 2 минуты что именно непрактично, большие окна? да, но, согласитесь, здание, которые "ухты вау" не обязательно с большими окнами под практичностью я подразумевал некоторые решения представленные там которые в быту будут не совсем удобные(хотя я признаю что многие из них принесены в жертву энергонезависимости и общей стилистике здания). насчет дизайна и архитектуры я полностью капитулирую, куда там простому монтажнику инженерных систем тягаться со спецами в их стихии хотелось бы увидеть ваш подход к этому вопросу( в общих чертах).а насчет окон ничего против не имею( даже скорее за) только цена окон такого уровня исполнения меня смущает(а к концу стройки будет пугать) Посилання на коментар Поділитися на інших сайтах More sharing options...
Рекомендовані повідомлення
Створіть акаунт або увійдіть у нього для коментування
Ви маєте бути користувачем, щоб залишити коментар
Створити акаунт
Зареєструйтеся для отримання акаунта. Це просто!
Зареєструвати акаунтУвійти
Вже зареєстровані? Увійдіть тут.
Увійти зараз