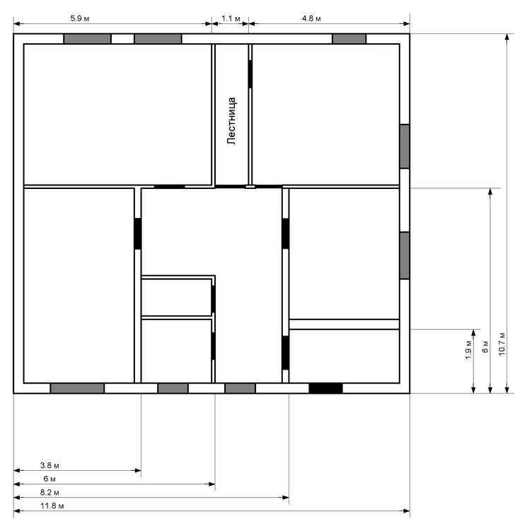
zhenia1983 Опубліковано: 8 квітня 2014 Поділитись Опубліковано: 8 квітня 2014 Долго у меня стоял недостроенный дом в этом году решился накрыть крышей. Нанял строителей и сих помощью привел коробку в порядок. Сейчас ломаю голову как правильно сделать деревянное перекрытие и крышу что-бы получить мансардный этаж. Прикрепил чертежик. Стены у меня высотой 3 метра, под ними фундамент из бута, цоколь примерно 80см. Внешние стены строились из самодельного керамзитного блока, верхние ряды долаживали газоблоком шириной 30 см. Внутри стены и в пол кирпича и в кирпич, на чертеже должно быть видно, масштаб сохранен. Сейчас собираюсь заливать армопояс причем не только по периметру но и внутри здания. Крышу хочу сделать или двухскатную или двухскатную ломаную. Причем фронтоны мне нужно сделать по более широкой стороне, а коробка не маленькая 11.8 на 10.7 В тоже время несущих стен внутри помещения мало. По материалу крыши тоже пока определяюсь между металочерепицей, битумной черепицей и профилем, живу в Ирпене под киевом, снеговая нагрузка 120 кг на метр, ветровая 45 кг на метр. Хто что может подсказать? Не пинайте строюсь впервые. Посилання на коментар Поділитися на інших сайтах More sharing options...
kroem.com.ua Опубліковано: 8 квітня 2014 Поділитись Опубліковано: 8 квітня 2014 Хто что может подсказать? Не пинайте строюсь впервые. Можем подсказать вам то что задача не из простых, если внутренние перегородки ненесущие. Но все реально. Правда бюджет тогда будет.... А если внутри есть опоры, то нихт проблеммен! Сначала нужно отрисовать эскиз крыши, а потом выполнить расчет несущей способности и смету. Посилання на коментар Поділитися на інших сайтах More sharing options...
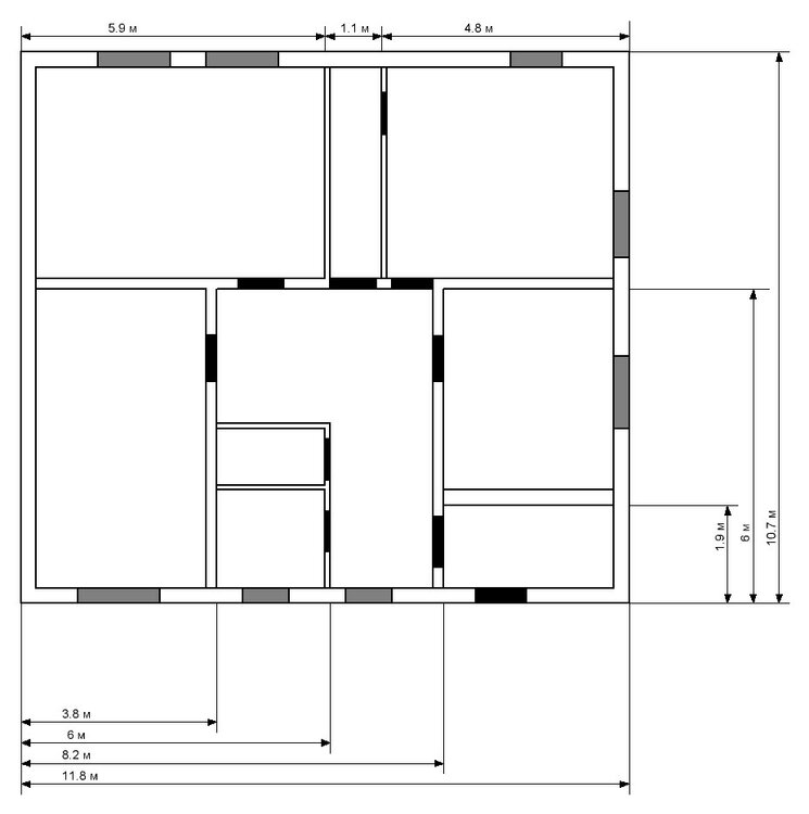
zhenia1983 Опубліковано: 12 квітня 2014 Автор Поділитись Опубліковано: 12 квітня 2014 Сделал одну стены шире, что-бы она была несущей. Теперь план выглядит так. Также определился с формой крыши, она будет двухскатная. Посоветуйте конструкцию стропил. Посилання на коментар Поділитися на інших сайтах More sharing options...
Игореха Опубліковано: 12 квітня 2014 Поділитись Опубліковано: 12 квітня 2014 Только хотел поприветствовать соседа... но по снеговой нагрузке понял, что речь не про тот Ирпень В том Ирпене, в котором живу я, снеговая по нынешним нормам - 180. Добавлено через 3 минуты Сделал одну стены шире, что-бы она была несущей. Теперь план выглядит так. Вы ее на бумаге сделали шире, или за два дня увеличили толщину реальной стены? Посилання на коментар Поділитися на інших сайтах More sharing options...
zhenia1983 Опубліковано: 16 квітня 2014 Автор Поділитись Опубліковано: 16 квітня 2014 Да нет Ирпень под Киевом один. Данные я брал в интернете, возможно там ошибка. Стены увеличили реально не на бумаге. На днях буду делать армопояс. Посилання на коментар Поділитися на інших сайтах More sharing options...
oookbr Опубліковано: 26 квітня 2014 Поділитись Опубліковано: 26 квітня 2014 Если вы хотите деревянную мансарду делать, то кладите бревна перекрытия на несущие стены. Затем делаете их "обвязку", ставите стойки (кругляк). Далее устанавливаете стропильную систему, и кроете крышу. Это я схематично изложил. "Пример" такой мансарды стоит уже двадцать лет. Сначала под мягкой кровлей, а сейчас под профнастилом. Посилання на коментар Поділитися на інших сайтах More sharing options...
Рекомендовані повідомлення
Створіть акаунт або увійдіть у нього для коментування
Ви маєте бути користувачем, щоб залишити коментар
Створити акаунт
Зареєструйтеся для отримання акаунта. Це просто!
Зареєструвати акаунтУвійти
Вже зареєстровані? Увійдіть тут.
Увійти зараз