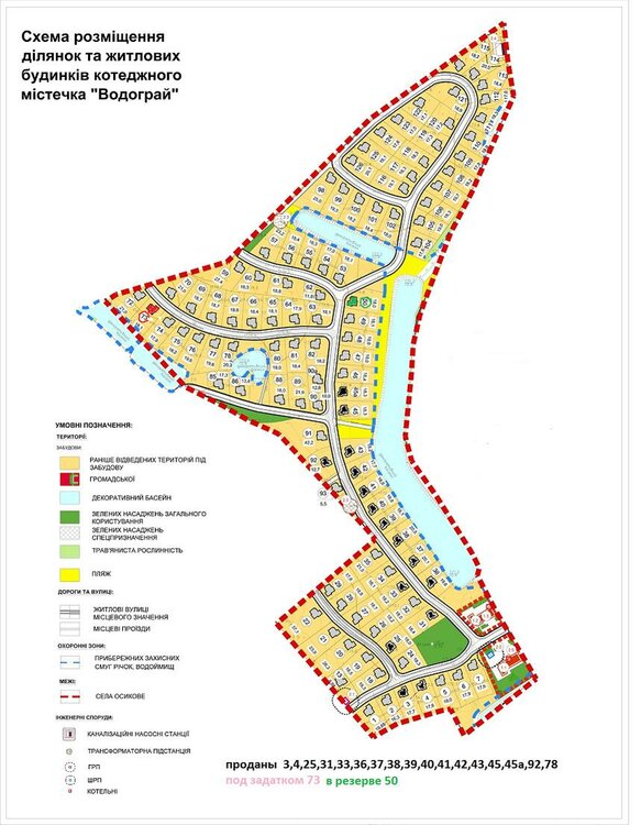
Надежда Опубліковано: 25 травня 2015 Автор Поділитись Опубліковано: 25 травня 2015 Участок № 73 возле верхнего озера ушёл под задаток. Схема участков Посилання на коментар Поділитися на інших сайтах More sharing options...
Надежда Опубліковано: 25 травня 2015 Автор Поділитись Опубліковано: 25 травня 2015 На 25 участке спокойно установили кольца под септик и дренажный колодец. Грунтовых вод не обнаружили. Сухо 1 Посилання на коментар Поділитися на інших сайтах More sharing options...
Надежда Опубліковано: 26 травня 2015 Автор Поділитись Опубліковано: 26 травня 2015 В резерв поставлен участок №50 Посилання на коментар Поділитися на інших сайтах More sharing options...
Надежда Опубліковано: 28 травня 2015 Автор Поділитись Опубліковано: 28 травня 2015 В Осыково большие участки дороги перестелили новым асфальтом, а на пути к Осыково делают "ямковий" ремонт Посилання на коментар Поділитися на інших сайтах More sharing options...
Надежда Опубліковано: 28 травня 2015 Автор Поділитись Опубліковано: 28 травня 2015 Домик маленький, а народу строительного - много Посилання на коментар Поділитися на інших сайтах More sharing options...
Надежда Опубліковано: 29 травня 2015 Автор Поділитись Опубліковано: 29 травня 2015 Буду завтра показывать участки с 13.00 до 15.00. Посилання на коментар Поділитися на інших сайтах More sharing options...
Надежда Опубліковано: 30 травня 2015 Автор Поділитись Опубліковано: 30 травня 2015 Профессиональный подход покупателей - перед покупкой заказали геодезию и вынос участка в натуру. Молодцы 1 Посилання на коментар Поділитися на інших сайтах More sharing options...
Надежда Опубліковано: 3 червня 2015 Автор Поділитись Опубліковано: 3 червня 2015 Сегодня оформили продажу 73 участка. Поздравляю новых владельцев с приобретением участка у озера на самой высокой точке Нижнего Водограя и с отличным краевидом Из положительных изменений в плане реформ: - вытяг из земкадастра выдают в Макарове в Центре админпослуг сразу же, как приходишь за 53 грн. по квитанции. - экспертная оценка занимает два дня (регистрируют в Фонде майна) и стоит 500 грн; - нотариус в этом году берёт за оформление денег меньше, чем в прошлом 1 Посилання на коментар Поділитися на інших сайтах More sharing options...
handsome stranger Опубліковано: 4 червня 2015 Поділитись Опубліковано: 4 червня 2015 После долгих поисков мы с женой решились и все же обзавелись своим кусочком земли. Просмотрели много участков, готовых и только строящихся домов в пределах 5-40 км от Киева, но по-настоящему уютно почувствовали себя в Осыково: понравилось и расположение «Водограя», и природа, и отношение продавца к покупателям, ну и, конечно, немаловажный аспект – приемлемая цена, а также возможность начинать стройку чуть ли не с момента подписания договора купли-продажи (на массив заведено электричество, дороги отсыпаны и подняты). Приезжали на массив несколько раз, смотрели различные варианты, облазили все с дозиметром, заказали геологию и геодезию и выбрали свой, неповторимый . С 1 января 2013 оформление покупки значительно упростилось, продавец побеспокоилась о всех необходимых для сделки справках, мы только должны были подвезти оригиналы своих документов к нотариусу и через 1,5 часа, после внимательного изучения текста договора с нашей стороны и проверки всех указанных в нем данных, тщательного «допроса» нотариуса, изучения статей Земельного и Семейного кодексов, указанных в договоре, мы официально стали счастливыми владельцами участка с выходом к озеру по ул. Краевидной села Осыково, что и запечатлели незамедлительно на фото. Сразу после покупки информация о вашей сделке фиксируется в Государственном реестре вещественных прав, и Вы можете самостоятельно через сайт kap.minjust.gov.ua/services?usertype= (после регистрации на сайте) в любое удобное время, в случае необходимости, получить информационную справку из Гос. реестра о вашем участке (информационная справка будет повторять «витяг», который Вы получили у нотариуса вместе с договором купли-продажи), услуга стоит 20 грн и оплачивается банковской картой. Присоединяйтесь! Будем рады хорошим соседям, готовым развивать массив, сейчас в «Водограе» еще есть из чего выбирать. 3 Посилання на коментар Поділитися на інших сайтах More sharing options...
Надежда Опубліковано: 4 червня 2015 Автор Поділитись Опубліковано: 4 червня 2015 по-настоящему уютно почувствовали себя в Осыково: понравилось и расположение «Водограя», и природа, и отношение продавца к покупателям, ну и, конечно, немаловажный аспект – приемлемая цена, а также возможность начинать стройку чуть ли не с момента подписания договора купли-продажи (на массив заведено электричество, дороги отсыпаны и подняты). Спасибо за покупку. Приезжайте делать примерку дома на участке, а я поделюсь колышками для примерочки . 1 Посилання на коментар Поділитися на інших сайтах More sharing options...
handsome stranger Опубліковано: 5 червня 2015 Поділитись Опубліковано: 5 червня 2015 (змінено) Спасибо за покупку. Приезжайте делать примерку дома на участке, а я поделюсь колышками для примерочки . Спасибо, сейчас обдумываем проект дома и детально изучаем коммерческие предложения которые нам сделали подрядчики. Мы видели как Вы разметили на местности свой будущий домик, будем делать так же))), даже строительную ленту для лучшей визуализации приобрели, будем бродить виртуальными комнатами. Кстати, забыл написать, что в отличие от большинства участков которые мы смотрели, участки в "Водограе" имеют назначение под жилое строительство. Возможно в нашем законодательстве, как уверяют продавцы и нет сейчас различия между землями под садоводство и жилое строительство, но нам как то спокойнее без этих нюансов. В соседней Польше, например, на землях с назначением под садоводство не разрешают строить капитальные дома, в таких домах не разрешается круглогодичное проживание и власти эа этим следят, участочки выделяются совсем маленькие. Змінено 5 червня 2015 користувачем handsome stranger 2 Посилання на коментар Поділитися на інших сайтах More sharing options...
Надежда Опубліковано: 5 червня 2015 Автор Поділитись Опубліковано: 5 червня 2015 (змінено) как уверяют продавцы и нет сейчас различия между землями под садоводство и жилое строительство, но нам как то спокойнее без этих нюансов. В соседней Польше, например, на землях с назначением под садоводство не разрешают строить капитальные дома, в таких домах не разрешается круглогодичное проживание и власти эа этим следят, участочки выделяются совсем маленькие. Сейчас в нашем законодательстве всё довольно обтекаемо. Вроде как на земле "под садоводство" строить можно дом для летнего проживания, но никаких санкций за построенный дом для круглогодичного проживания. Змінено 5 червня 2015 користувачем Надежда Посилання на коментар Поділитися на інших сайтах More sharing options...
FLUR Опубліковано: 7 червня 2015 Поділитись Опубліковано: 7 червня 2015 handsome stranger Поздравляю с приобретением, желаю терпения и неугасаимого оптимизма в строительстве! 1 Посилання на коментар Поділитися на інших сайтах More sharing options...
handsome stranger Опубліковано: 8 червня 2015 Поділитись Опубліковано: 8 червня 2015 handsome stranger Поздравляю с приобретением, желаю терпения и неугасимого оптимизма в строительстве! Спасибо, оптимизма пока навалом, будем потихоньку продвигаться. И Вам хороших покупателей. 1 Посилання на коментар Поділитися на інших сайтах More sharing options...
Надежда Опубліковано: 9 червня 2015 Автор Поділитись Опубліковано: 9 червня 2015 Три недели танцевала танцы с бубном вокруг печника на объекте в Ясногородке, привезла на Водограй, разместила с проживанием, строителям любить и жаловать его наказала. Печечка за три дня работы уже вырисовывается Посилання на коментар Поділитися на інших сайтах More sharing options...
Надежда Опубліковано: 12 червня 2015 Автор Поділитись Опубліковано: 12 червня 2015 Завтра 13.06.2015 в первой половине для буду в Осыково. Желающим посмотреть участки просьба позвонить 067 466 86 71 Буду рада общению. Посилання на коментар Поділитися на інших сайтах More sharing options...
Надежда Опубліковано: 19 червня 2015 Автор Поділитись Опубліковано: 19 червня 2015 В субботу 20.05.15 буду на Водограе с 10.00 до 12.00 Приглашаю всех желающих на просмотр участков. Посилання на коментар Поділитися на інших сайтах More sharing options...
Надежда Опубліковано: 29 червня 2015 Автор Поділитись Опубліковано: 29 червня 2015 Начинаю процесс электрификации улицы трёх озёр. Краевиды с улицы Краевидной : 1 Посилання на коментар Поділитися на інших сайтах More sharing options...
Надежда Опубліковано: 3 липня 2015 Автор Поділитись Опубліковано: 3 липня 2015 В субботу 4 июля буду на Водограе возле строящегося домика и в районе верхних озёр и с 11.00 до 14.00 Приезжайте просто так или присмотреть участок для загородного проживания Посилання на коментар Поділитися на інших сайтах More sharing options...
Надежда Опубліковано: 1 жовтня 2015 Автор Поділитись Опубліковано: 1 жовтня 2015 В субботу 3 октября с 12.00 до 14.00 буду показывать участки. Кто хочет посмотреть, приезжайте. Посилання на коментар Поділитися на інших сайтах More sharing options...
ant_99 Опубліковано: 20 січня 2016 Поділитись Опубліковано: 20 січня 2016 В субботу 3 октября с 12.00 до 14.00 буду показывать участки. Кто хочет посмотреть, приезжайте. Надежда, а где можно посмотреть актуальную карту? какие участки сейчас свободны и можно ли поехать посмотреть в эти выходные? (23-24 января) Посилання на коментар Поділитися на інших сайтах More sharing options...
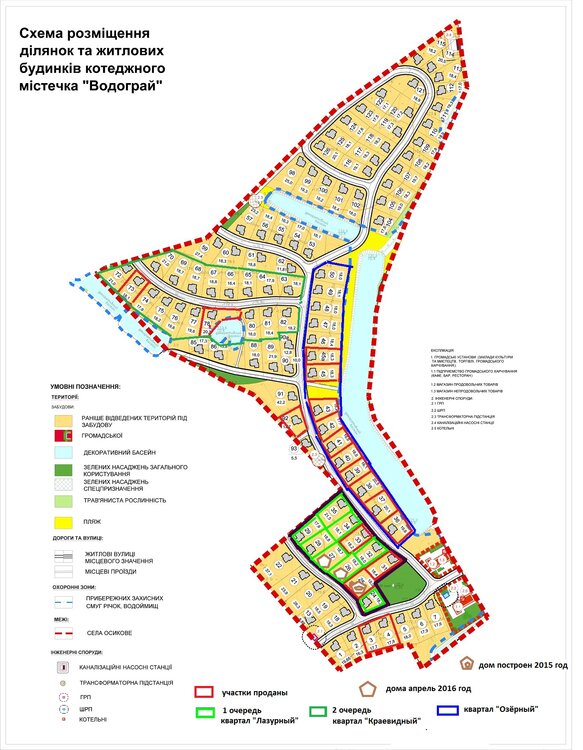
Надежда Опубліковано: 20 січня 2016 Автор Поділитись Опубліковано: 20 січня 2016 (змінено) Надежда, а где можно посмотреть актуальную карту? какие участки сейчас свободны и можно ли поехать посмотреть в эти выходные? (23-24 января) Нанесла на детальный план Водограя проданные участки (выделила красными прямоугольниками) и план развития массива на 2016 год: - вокруг участков 24-25-26-27-28-29-31-32-33-34-35 ранней весной будет построен забор, который закроет по периметру квартал "Лазурный", состоящий из 11 участкрв. Электричество в этом квартале подведено к каждому участку, в любой момент можно начинать строительство домов; - в квартале "Лазурный" на участках 26 и 27 владельцами массива в апреле - мае 2016 года будет построено два одноэтажных дома для постоянного проживания площадью по 100 м.кв. Дома будут проданы по себестоимости строительства; - на участке 25 уже построен и заселён для постоянного проживания небольшой домик, в нём будет организован пункт охраны квартала "Лазурный"; - цена на участки 24, 28, 29, 32, 34, 35 в квартале "Лазурный" будет сформирована до конца января с учетом стоимости забора вокруг квартала; - вторая очередь продаж - квартал "Краевидный", вокруг которого тоже будет построен забор, подведено электричество к каждому участку (столбы уже установлены, кабель куплен) и организована охрана. Квартал включает в себя 18 участков: 72-73-74-75-76-77-78-80-81-82-63-64-65-66-67-68-69-70. Сроки постройки забора и организация охраны квартала будут зависеть от спроса на участки в этом квартале. Пункт размещения охраны для квартала "Краевидный" запланирован на участке 90а; - владельцам участков 36-37-38-39-40-41-42-43-45-45а- (46-47-48-49-50) предоставляется возможность организовать квартал "Озёрный" путем постройки забора по периметру квартала и присоединиться к охране, которая будет расположена на участке 90а. Электричество для каждого участка в этом квартале подведено, можно в любой момент начинать строительство домов. Змінено 20 січня 2016 користувачем Надежда 2 Посилання на коментар Поділитися на інших сайтах More sharing options...
Надежда Опубліковано: 20 січня 2016 Автор Поділитись Опубліковано: 20 січня 2016 Домик на 25 участке зимует вот так Кот Марсик вышел погулять по крыше бытовки: 1 Посилання на коментар Поділитися на інших сайтах More sharing options...
Надежда Опубліковано: 20 січня 2016 Автор Поділитись Опубліковано: 20 січня 2016 (змінено) Посмотреть участки 23-24 января не только можно, но и нужно Всё покажу и расскажу. Документы на строительство дома оформляю быстро, выглядят они вот так : Змінено 20 січня 2016 користувачем Надежда 1 Посилання на коментар Поділитися на інших сайтах More sharing options...
Надежда Опубліковано: 2 лютого 2016 Автор Поділитись Опубліковано: 2 лютого 2016 Посчитали для квартала "Лазурный" стоимость вот такого забора - деревянные двухсторонние штакеты орехового цвета, деревянный столб с шляпкой и бетонный цоколь. Квартал "Озёрный", присоединяйтесь, пиломатериалы во второй половине февраля подорожают на 300-400 грн. на кубе. Кто планирует в этом году строить каркасный дом - заказывайте пиломатериала зимнего пила по ценам сезона 2015 года - ОСТАЛОСЬ примерно ДВЕ НЕДЕЛИ до подорожания пиломатериалов. Посилання на коментар Поділитися на інших сайтах More sharing options...
Рекомендовані повідомлення
Створіть акаунт або увійдіть у нього для коментування
Ви маєте бути користувачем, щоб залишити коментар
Створити акаунт
Зареєструйтеся для отримання акаунта. Це просто!
Зареєструвати акаунтУвійти
Вже зареєстровані? Увійдіть тут.
Увійти зараз