Foxtsoy Опубліковано: 26 травня 2014 Поділитись Опубліковано: 26 травня 2014 Уважаемые форумчане. Прощу вашей помощи в поиске проекта. Вернее сказать, вашего совета. Есть определенные требования к дому. Каким он должен быть. Но уместить все хотелки вместе - не получается Участок - 25 метров в ширину. (длинна 100 метров) Дом- обязательно 2 - полных этажа (у меня фобия скошенных мансардных потолков ) Форма дома - квадрат. крыша - 2 скат. Все максимально просто. Гараж - является частью дома. Над гаражом - большая комната второго этажа Жилой этаж - исключительно первый. На нем должны быть Спальня с гардеробной и санузлом 2 детских Гостинная с выходом на кухню Кухня с выходом на терассу и наличием кладовки С/У раздельный - поближе к двери Тамбур (достаточно большой) Топочная - совмещенная с постирочной комнатой Лестница на второй этаж. Под лестницей - кладовка для пылесоса и всякой ерунды. Я уже пересмотрел больше 300 проектов. Ничего схожего не нашел. По предварительным раскладам - все это уместить на одном этаже - нереально. Либо же комнаты будут по 7-10 кв/м Может, кто то сталкивался с такой проблемой? Посилання на коментар Поділитися на інших сайтах More sharing options...
ДОКС Опубліковано: 26 травня 2014 Поділитись Опубліковано: 26 травня 2014 Может, кто то сталкивался с такой проблемой? Сталкивался! Ваши проблемы решит индивидуальная работа с архитектором, буду нужен - обращайтесь. Посилання на коментар Поділитися на інших сайтах More sharing options...
Foxtsoy Опубліковано: 27 травня 2014 Автор Поділитись Опубліковано: 27 травня 2014 После более вдумчивого чтения форума и оценки своих фин возможностей - решил немного поменять концепцию Предлагаю к просмотру - планировку Дом - одноэтажный. Крыша - плоская. Эксплуатируемая. С заходом на нее с улицы По планировке - кажись все учел Направо - дневная зона Налево - ночная Размеры не идеальны - так как делал сам, и для меня это первый опыт Но смысл - я думаю - понятен. Будут какие-то замечания? С удовольствием выслушаю критику Посилання на коментар Поділитися на інших сайтах More sharing options...
ДОКС Опубліковано: 27 травня 2014 Поділитись Опубліковано: 27 травня 2014 Будут какие-то замечания? С удовольствием выслушаю критику Будут... при такой планировке желательно осозновать количество затрат в денежных знаках... Вы отдаёте себе отчёт в том, сколько это может стоить? 2 Посилання на коментар Поділитися на інших сайтах More sharing options...
loader Опубліковано: 27 травня 2014 Поділитись Опубліковано: 27 травня 2014 Дом- обязательно 2 - полных этажа (у меня фобия скошенных мансардных потолков ) шото не вкурю как это стыкуется с приведеным планом одноэтажника. Посилання на коментар Поділитися на інших сайтах More sharing options...
Foxtsoy Опубліковано: 27 травня 2014 Автор Поділитись Опубліковано: 27 травня 2014 Будут... при такой планировке желательно осозновать количество затрат в денежных знаках... Вы отдаёте себе отчёт в том, сколько это может стоить? По предварительным расчетам у меня вышло около 65 000 на коробку Внешне - газобетон Внутри - кирпич Когда буду определюсь с архитектором и с ним проработаю подробно проект - выложу более точную сумму. Посилання на коментар Поділитися на інших сайтах More sharing options...
ДОКС Опубліковано: 27 травня 2014 Поділитись Опубліковано: 27 травня 2014 По предварительным расчетам у меня вышло около 65 000 на коробку Внешне - газобетон Внутри - кирпич Когда буду определюсь с архитектором и с ним проработаю подробно проект - выложу более точную сумму. чем помочь? Посилання на коментар Поділитися на інших сайтах More sharing options...
Foxtsoy Опубліковано: 27 травня 2014 Автор Поділитись Опубліковано: 27 травня 2014 шото не вкурю как это стыкуется с приведеным планом одноэтажника. Чуть выше - я написал что, благодаря форуму, изменил концепцию. Удалось убедить жену в ненадобности второго этажа. А как подправить первое сообщение - я не в курсе Посилання на коментар Поділитися на інших сайтах More sharing options...
ДОКС Опубліковано: 27 травня 2014 Поділитись Опубліковано: 27 травня 2014 Чуть выше - я написал что, благодаря форуму, изменил концепцию. Удалось убедить жену в ненадобности второго этажа. А как подправить первое сообщение - я не в курсе чем помочь можем? Посилання на коментар Поділитися на інших сайтах More sharing options...
Foxtsoy Опубліковано: 27 травня 2014 Автор Поділитись Опубліковано: 27 травня 2014 чем помочь можем? Есть ли недочеты в такой планировке? По неопытности мог и пропустить какие то нюансы. И во сколько мне обойдётся проект под такую планировку? А также - приблизительная смета на коробку. Посилання на коментар Поділитися на інших сайтах More sharing options...
ДОКС Опубліковано: 27 травня 2014 Поділитись Опубліковано: 27 травня 2014 Есть ли недочеты в такой планировке? По неопытности мог и пропустить какие то нюансы. И во сколько мне обойдётся проект под такую планировку? А также - приблизительная смета на коробку. 1. Недочёты есть, связанные именно с отсутствием опытности... Опытность является неотъемлемой частью процесса обучения архитектора... Вы архитектор? 2. Стоимость проекта считывается индивидуально. Это связано с особенностями индивидуального проектирования. От цены за 1кв.м. не работаю в принципе... 3. Смету "на коробку" считает ПРОизводитель РАБот или его сотрудник с соответствующими полномочиями на основании Рабочего Проекта. Посилання на коментар Поділитися на інших сайтах More sharing options...
Foxtsoy Опубліковано: 27 травня 2014 Автор Поділитись Опубліковано: 27 травня 2014 1. Недочёты есть, связанные именно с отсутствием опытности... Опытность является неотъемлемой частью процесса обучения архитектора... Вы архитектор? 2. Стоимость проекта считывается индивидуально. Это связано с особенностями индивидуального проектирования. От цены за 1кв.м. не работаю в принципе... 3. Смету "на коробку" считает ПРОизводитель РАБот или его сотрудник с соответствующими полномочиями на основании Рабочего Проекта. В двух словах - без покупки проекта никто недочёты не скажет? Вообще, немного не понятна схема. Без проекта - не подсчитать затраты. Если я не потяну проект - то придется покупать новый? Очертите стоимость Вашей работы над проектом. Можно в личку Посилання на коментар Поділитися на інших сайтах More sharing options...
Татьяна5 Опубліковано: 27 травня 2014 Поділитись Опубліковано: 27 травня 2014 В двух словах - без покупки проекта никто недочёты не скажет? бррр на редкость бестолковая планировка, увы может все таки посмотрите проекты типа z500? нормальные, выверенные, тем более, такой набор помещений там почти в каждом проекте Посилання на коментар Поділитися на інших сайтах More sharing options...
loader Опубліковано: 27 травня 2014 Поділитись Опубліковано: 27 травня 2014 В двух словах - без покупки проекта никто недочёты не скажет? Вообще, немного не понятна схема. Без проекта - не подсчитать затраты. Если я не потяну проект - то придется покупать новый? Очертите стоимость Вашей работы над проектом. Можно в личку недочеты нужно внимательно анализировать, начинать нужно с планировки всего участка, видеть окружение, далее оптимально посадить дом, далее учесть все хотелки и образ жизни. имхо. т.е. начните с участка, далее прорисуйте все учитывая реальную толщину стен, думаю поймете что помещения будут неудобны, в тамбуре негде шкаф поставить, терасса минимум 3м шириной. просчитать можно зная конструктив, вычисляете обьемы, изучаете технологию, калькулируете стоимость по материалам и по работам. для неспециалиста освоить это для этапа коробка гдето месяц два нужно, на фоне к основной работе. можно подойти проще, взять общую площадь и умножить баксов на 350, будет ориентир по коробке, если без особых понтов, умножить на 900, будет ориентир по дому. это без учета подведения комуникаций к участку. минус такого подхода в том что вы не будете представлять сколько должен стоить каждый этап и компонент, соотв. больше риск быть нахлобученым на обьемах, цене материалов или работы, качестве оных, но для прикидки хотелок можно использовать и такой подход. 1 Посилання на коментар Поділитися на інших сайтах More sharing options...
Foxtsoy Опубліковано: 28 травня 2014 Автор Поділитись Опубліковано: 28 травня 2014 бррр на редкость бестолковая планировка, увы может все таки посмотрите проекты типа z500? нормальные, выверенные, тем более, такой набор помещений там почти в каждом проекте в чем проявляется бестолковость планировки? Добавлено через 2 минуты недочеты нужно внимательно анализировать, начинать нужно с планировки всего участка, видеть окружение, далее оптимально посадить дом, далее учесть все хотелки и образ жизни. имхо. т.е. начните с участка, далее прорисуйте все учитывая реальную толщину стен, думаю поймете что помещения будут неудобны, в тамбуре негде шкаф поставить, терасса минимум 3м шириной. просчитать можно зная конструктив, вычисляете обьемы, изучаете технологию, калькулируете стоимость по материалам и по работам. для неспециалиста освоить это для этапа коробка гдето месяц два нужно, на фоне к основной работе. можно подойти проще, взять общую площадь и умножить баксов на 350, будет ориентир по коробке, если без особых понтов, умножить на 900, будет ориентир по дому. это без учета подведения комуникаций к участку. минус такого подхода в том что вы не будете представлять сколько должен стоить каждый этап и компонент, соотв. больше риск быть нахлобученым на обьемах, цене материалов или работы, качестве оных, но для прикидки хотелок можно использовать и такой подход. Спасибо за замечания Терассу расширить - не проблема. Дверь в кладовку - если перенести в гараж - то в тамбуре спокойно станет шкаф По схеме просчета - спасибо Я себе где то так и представлял. Правда весь дом умножал на 550 Посилання на коментар Поділитися на інших сайтах More sharing options...
Татьяна5 Опубліковано: 28 травня 2014 Поділитись Опубліковано: 28 травня 2014 в чем проявляется бестолковость планировки? в каждой детали и в каждом размере из простейших (все не опишу, писать долго) 1) ширина террасы, пролет над террасой 2) ширина кухни 3) ширина всех спален 4) бесполезный размер тамбура в котором даже вешалку повесить негде и еще много-много Посилання на коментар Поділитися на інших сайтах More sharing options...
Foxtsoy Опубліковано: 28 травня 2014 Автор Поділитись Опубліковано: 28 травня 2014 в каждой детали и в каждом размере из простейших (все не опишу, писать долго) 1) ширина террасы, пролет над террасой 2) ширина кухни 3) ширина всех спален 4) бесполезный размер тамбура в котором даже вешалку повесить негде и еще много-много Вот ради этого много - много я и создал темку. Дабы более опытные форумчане - указали на недочеты. Как по мне - планировка - это самое главное в доме. Посилання на коментар Поділитися на інших сайтах More sharing options...
Татьяна5 Опубліковано: 28 травня 2014 Поділитись Опубліковано: 28 травня 2014 Вот ради этого много - много я и создал темку. Дабы более опытные форумчане - указали на недочеты. Как по мне - планировка - это самое главное в доме. смотрите проекты от z500, например z10 и z241 дорабатывайте. Увы, но Ваш нужно просто полностью поломать Посилання на коментар Поділитися на інших сайтах More sharing options...
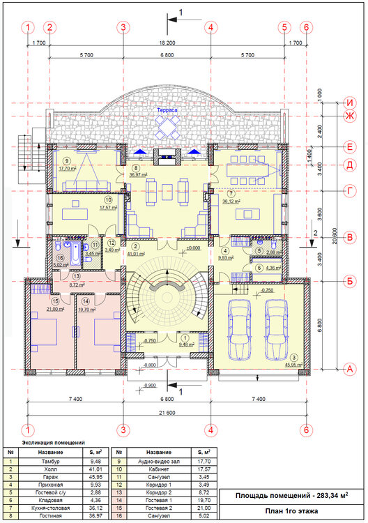
Foxtsoy Опубліковано: 28 травня 2014 Автор Поділитись Опубліковано: 28 травня 2014 смотрите проекты от z500, например z10 и z241 дорабатывайте. Увы, но Ваш нужно просто полностью поломать Увы - эти проекты подразумевают собой скатную кровлю И в них отсутствует гардеробная в родительской спальне. Не говоря уже о сан узле. Также, там три комнаты. А нам нужно четыре. Так как с детьми, нам жить еще лет 20-25 Возможно, кто то встречал проект с 1 этажом. 4 комнатами и гардеробной+с/У в родительской спальне. Желательно - что бы этот проект сделать с плоской крышей. Посилання на коментар Поділитися на інших сайтах More sharing options...
Goga-ds Опубліковано: 29 травня 2014 Поділитись Опубліковано: 29 травня 2014 в з10 все комнаты граничат с санузлами, сделайте ту что 18.5 квадратов родительской спальней и перенесите дверь санузла проблема решена. настолько ли часто у вас бывают гости чтоб держать под них отдельную комнату? хоть я и не конструктор, но подозреваю что кровлю на одноэжтажник можно хоть в форме не выпуклого октаэдра поставить - были бы деньги и желание заниматься такой ерундой я не встретил ни одного каталожного проекта с 4-мя комнатами и вменяемой планировкой - все бестолковые и с квадратурой больше 150 метров. если вы все таки хотите один этаж в четыре комнаты, обращайтесь к архитектору, и за свои деньги требуйте выполнение своих же хотелок, хотя имхо вам надо 2 этажа - на второй загоняйте детей и гостей Посилання на коментар Поділитися на інших сайтах More sharing options...
MaryAr Опубліковано: 29 травня 2014 Поділитись Опубліковано: 29 травня 2014 Ну, не хотят люди заказывать проекты архитекторам, хоть плачь! Хотят сами испытать творческие муки. ...А сходите по ссылочке сюда www.stroimdom.com.ua/forum/showthread.php?t=20463&highlight=%E4%EE%EC+%EF%EE%E4+%EE%E4%E5%F1%F1%EE%E9 Не буду комментировать проект, но там одноэтажник небольшой, а количество комнат - как Вы хотите. Имеется внятная конструктивная схема и проект легко адаптировать под ваши "хотелки": - Гараж можно пристроить со стороны котельной (вход в дом через подсобное помещение (6); - Комнаты 2+3 объединить в спальню с гардеробной. Большой санузел устроить на месте существующей гардеробной (14) - Санузел при детских оставить, но сделать меньше. - Пристроить террасу с выходом из гостиной. - Сделать плоскую эксплуатируемую кровлю. Только вопрос: зачем Вам плоская кровля в нашем климате? Замучаетесь снег убирать и ремонтировать покрытие. Посилання на коментар Поділитися на інших сайтах More sharing options...
Foxtsoy Опубліковано: 30 травня 2014 Автор Поділитись Опубліковано: 30 травня 2014 в з10 все комнаты граничат с санузлами, сделайте ту что 18.5 квадратов родительской спальней и перенесите дверь санузла проблема решена. настолько ли часто у вас бывают гости чтоб держать под них отдельную комнату? хоть я и не конструктор, но подозреваю что кровлю на одноэжтажник можно хоть в форме не выпуклого октаэдра поставить - были бы деньги и желание заниматься такой ерундой я не встретил ни одного каталожного проекта с 4-мя комнатами и вменяемой планировкой - все бестолковые и с квадратурой больше 150 метров. если вы все таки хотите один этаж в четыре комнаты, обращайтесь к архитектору, и за свои деньги требуйте выполнение своих же хотелок, хотя имхо вам надо 2 этажа - на второй загоняйте детей и гостей Дети маленькие - потому второй этаж - отпадает. И маленькими они будут еще лет 10. Потому, и ищу вариант 1 этажа. Если делать 2 - то все равно нужно кухню, гостинную, спальню, и 2 детских комнаты на 1-ом этаже. А на втором, тогда делать кабинет. Слишком жирно для одного кабинета отдавать целый этаж Отдельная комната - это не гостевая, а что то типа кабинета. Производственная необходимость. Не будешь ведь сидеть в спальне работать. Или в шумной гостинной. Квадратуру в 150 метров, считаю нормальной для четырех человек. Сан узел в спальной хочу сделать с входом через гардероб. Это отсечет ненужные шумы Добавлено через 9 минут Ну, не хотят люди заказывать проекты архитекторам, хоть плачь! Хотят сами испытать творческие муки. ...А сходите по ссылочке сюда www.stroimdom.com.ua/forum/showthread.php?t=20463&highlight=%E4%EE%EC+%EF%EE%E4+%EE%E4%E5%F1%F1%EE%E9 Не буду комментировать проект, но там одноэтажник небольшой, а количество комнат - как Вы хотите. Имеется внятная конструктивная схема и проект легко адаптировать под ваши "хотелки": - Гараж можно пристроить со стороны котельной (вход в дом через подсобное помещение (6); - Комнаты 2+3 объединить в спальню с гардеробной. Большой санузел устроить на месте существующей гардеробной (14) - Санузел при детских оставить, но сделать меньше. - Пристроить террасу с выходом из гостиной. - Сделать плоскую эксплуатируемую кровлю. Только вопрос: зачем Вам плоская кровля в нашем климате? Замучаетесь снег убирать и ремонтировать покрытие. Проект будем заказывать у архитектора. Но перед тем как сформировать ему свои "хотелки" хотелось бы послушать их критику от форумчан. Предложенный вариант - мне очень понравился. Отсутствие кабинета - немного смущает. С сан узлом и гардеробной в родительской спальне - вопрос решаем, как я вижу. Спасибо. Я думаю, с архитектором вопрос решен По поводу - плоской крыши. Это как с материалом для стен. Каждый делает то что хочет. Есть проекты с плоской крышей, которые успешно стоят и люди в них живут. Течет не больше чем в скатной. Основным плюсом для меня в плоской крыше - возможность разместить там теплицу + сделать ее зеленой. Это даст дополнительную тепло/шумо изоляцию. Уменьшит риск протечки. А снег - это такое. Пока он лежит - он не течет. А весной - пару раз, можно и лопатой помахать. Хотя, при правильной работе ливневок - такой проблемы быть не должно. Посилання на коментар Поділитися на інших сайтах More sharing options...
MaryAr Опубліковано: 30 травня 2014 Поділитись Опубліковано: 30 травня 2014 Вот ещё вспомнила, что делала проект ну-о-о-очень крутому клиенту. У него было 2 полноценных этажа огромных площадей. Но! количество помещений на первом этаже достаточное, чтобы Вы могли использовать общую идею формирования внутреннего пространства. Можно "обжать" проект по периметру и выйти на нужные Вам площади - схема очень гибкая. 1 Посилання на коментар Поділитися на інших сайтах More sharing options...
MaryAr Опубліковано: 30 травня 2014 Поділитись Опубліковано: 30 травня 2014 По поводу эксплуатируемой кровли: если это сознательный шаг, то я желаю Вам удачи. У Вас может получиться очень интересный, нестандартный дом. Только я посоветовала бы Вам вход на такую кролю сделать всё-таки из дома. Устроить над частью дома антресоль небольшого объёма. Там расположить кабинет, обязательно комнату садового инвентаря (чтоб не носить вверх-вниз по лестнице) и выход на кровлю-лужайку. Может получиться такой домик, как на картинке. Только с теплицей Посилання на коментар Поділитися на інших сайтах More sharing options...
Goga-ds Опубліковано: 30 травня 2014 Поділитись Опубліковано: 30 травня 2014 может вопрос у меня глупый, но зачем при участке 25 соток делать теплицу на крыше? Если как МэриАр говорит - антресоль с кабинетом и отуда выход на кровлю с теплицей и газоном то понятно, решение имеет право на жизнь но одну теплицу без ничего - не понимаю... 1 Посилання на коментар Поділитися на інших сайтах More sharing options...
Рекомендовані повідомлення
Створіть акаунт або увійдіть у нього для коментування
Ви маєте бути користувачем, щоб залишити коментар
Створити акаунт
Зареєструйтеся для отримання акаунта. Це просто!
Зареєструвати акаунтУвійти
Вже зареєстровані? Увійдіть тут.
Увійти зараз