Mad Опубліковано: 27 травня 2007 Поділитись Опубліковано: 27 травня 2007 Идея жить в своем доме преследовала меня давно, но не была подкреплена материально. Тем не менее, 3 года назад был удачно куплен участок 12,8 соток в с. Хотов и перспектива построить дом, посадить вишню, да напустить джмелей стала приобретать четкие очертания. Пошел процесс выбора проекта будущего дома. Кажется чего проще, выбрал понравившийся, а то и сам нарисовал как хош, фасад подобрал и вперед, только деньги готовь. В результате поиска оптимального варианта мы задалбали кучу народа, рисовали уйму вариантов, сорились и мирились, а о количестве прочитанной - просмотренной литературы я и говорить боюсь, думаю уважаемые форумчани понимают трудности и специфики данного этапа. Попутно шел поиск прораба, технологии строительства и прочего, прочего, прочего. И так, в апреле 2007 года стройка стартовала. Посилання на коментар Поділитися на інших сайтах More sharing options...
Mad Опубліковано: 27 травня 2007 Автор Поділитись Опубліковано: 27 травня 2007 После всех замеров и разметок... Посилання на коментар Поділитися на інших сайтах More sharing options...
Mad Опубліковано: 27 травня 2007 Автор Поділитись Опубліковано: 27 травня 2007 Продолжаем Посилання на коментар Поділитися на інших сайтах More sharing options...
mayevski Опубліковано: 27 травня 2007 Поділитись Опубліковано: 27 травня 2007 а яка площа фундаменту? Посилання на коментар Поділитися на інших сайтах More sharing options...
Homer Опубліковано: 28 травня 2007 Поділитись Опубліковано: 28 травня 2007 Знакомая тактика обустройства фундамента. Один в один как у меня. Только сверху плиту не лил. И в "заклад" 50-ят коп. ложил - но в разных местах - по углам в основном :-D Удачи в Святом Деле, Посилання на коментар Поділитися на інших сайтах More sharing options...
Mad Опубліковано: 28 травня 2007 Автор Поділитись Опубліковано: 28 травня 2007 Площадь фундамента 120 м. Внутри утеплен пенопластом. Посилання на коментар Поділитися на інших сайтах More sharing options...
Mad Опубліковано: 28 травня 2007 Автор Поділитись Опубліковано: 28 травня 2007 Монеток мы запрятали достаточно , по углам и так, от каждого члена семьи. 1 Посилання на коментар Поділитися на інших сайтах More sharing options...
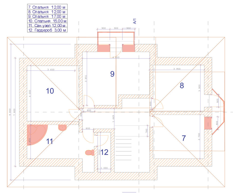
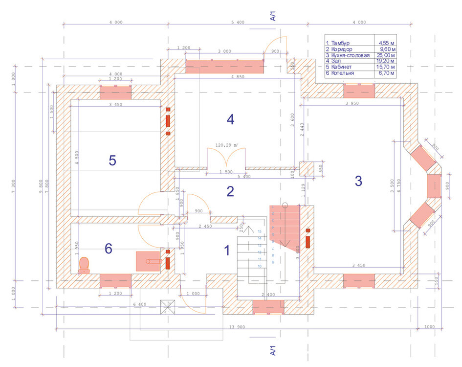
Mad Опубліковано: 28 травня 2007 Автор Поділитись Опубліковано: 28 травня 2007 Планы 1 и 2 этажа Посилання на коментар Поділитися на інших сайтах More sharing options...
System Опубліковано: 28 травня 2007 Поділитись Опубліковано: 28 травня 2007 .... Посилання на коментар Поділитися на інших сайтах More sharing options...
Mad Опубліковано: 28 травня 2007 Автор Поділитись Опубліковано: 28 травня 2007 Пол по слоям: земля из траншеи, песок, щебень. Обязательно утрамбовать. Посилання на коментар Поділитися на інших сайтах More sharing options...
Ostap Опубліковано: 28 травня 2007 Поділитись Опубліковано: 28 травня 2007 Какое сечение фундамента ? глубина? какая использовалась арматура ? Посилання на коментар Поділитися на інших сайтах More sharing options...
Mad Опубліковано: 28 травня 2007 Автор Поділитись Опубліковано: 28 травня 2007 Сечение напоминает колпак повара вверх ногами. В самом низу, где утолщение, засыпан щебень. Арматура 12, А-III. У меня перепад около метра, поэтому глубина разная, сейчас боюсь ошибиться, но в самой нижней точке выкопали по нашим допускам, а там где по выше вышло поглубже Посилання на коментар Поділитися на інших сайтах More sharing options...
Alex Shestakov Опубліковано: 29 травня 2007 Поділитись Опубліковано: 29 травня 2007 А пенопласт 50 мм. не маловато будет? Рекомендуют 100 мм. при кирпичной кладке. Посилання на коментар Поділитися на інших сайтах More sharing options...
Chiara Опубліковано: 29 травня 2007 Поділитись Опубліковано: 29 травня 2007 Пол по слоям: земля из траншеи, песок, щебень. Обязательно утрамбовать. А чем трамбуете? Посилання на коментар Поділитися на інших сайтах More sharing options...
Mad Опубліковано: 2 червня 2007 Автор Поділитись Опубліковано: 2 червня 2007 Стройка продолжается. Скоро будем накрывать первый этаж. Посилання на коментар Поділитися на інших сайтах More sharing options...
Homer Опубліковано: 2 червня 2007 Поділитись Опубліковано: 2 червня 2007 МуЖчина!!! Молодец! Сколько работа стоит, по расшивке, я имею ввиду... всетаки кирпич есть кирпич :-D Посилання на коментар Поділитися на інших сайтах More sharing options...
Dron Опубліковано: 2 червня 2007 Поділитись Опубліковано: 2 червня 2007 А что, капитальной стены в доме нет? Неужели ширина дома 6 м? Посилання на коментар Поділитися на інших сайтах More sharing options...
Mad Опубліковано: 2 червня 2007 Автор Поділитись Опубліковано: 2 червня 2007 есть несущая, смотри проект. закончу кладку, выложу смету, пока смету могу сказать только по фундаменту. Посилання на коментар Поділитися на інших сайтах More sharing options...
Dron Опубліковано: 2 червня 2007 Поділитись Опубліковано: 2 червня 2007 есть несущая, смотри проект. закончу кладку, выложу смету, пока смету могу сказать только по фундаменту. Всё, увидел. Просто меня сбила столку заливная плита одним пластом. Посилання на коментар Поділитися на інших сайтах More sharing options...
Nik Опубліковано: 4 червня 2007 Поділитись Опубліковано: 4 червня 2007 А какой кирпич на облицовку? Посилання на коментар Поділитися на інших сайтах More sharing options...
Mad Опубліковано: 4 червня 2007 Автор Поділитись Опубліковано: 4 червня 2007 Данный кирпич очень рекомендовал мой прораб. Куплен по цене 2100 грн за 1000 шт. Цена была актуальна на начало апреля. Посилання на коментар Поділитися на інших сайтах More sharing options...
trik Опубліковано: 13 червня 2007 Поділитись Опубліковано: 13 червня 2007 поверх фундамента вы вылили бетонную плиту? А под внутренние не несущие стенки делали какой нибудь фундамент? Или они у Вас совсем легкие будут? Посилання на коментар Поділитися на інших сайтах More sharing options...
Mad Опубліковано: 6 липня 2007 Автор Поділитись Опубліковано: 6 липня 2007 За 1 месяц удалось накрыть первый этаж и потратить куеву тучу денег, стройка продолжается. Заплатил за воду. Посилання на коментар Поділитися на інших сайтах More sharing options...
Mad Опубліковано: 6 липня 2007 Автор Поділитись Опубліковано: 6 липня 2007 работа кипит. Посилання на коментар Поділитися на інших сайтах More sharing options...
Mad Опубліковано: 6 липня 2007 Автор Поділитись Опубліковано: 6 липня 2007 осталось накрыть Посилання на коментар Поділитися на інших сайтах More sharing options...
Рекомендовані повідомлення
Створіть акаунт або увійдіть у нього для коментування
Ви маєте бути користувачем, щоб залишити коментар
Створити акаунт
Зареєструйтеся для отримання акаунта. Це просто!
Зареєструвати акаунтУвійти
Вже зареєстровані? Увійдіть тут.
Увійти зараз