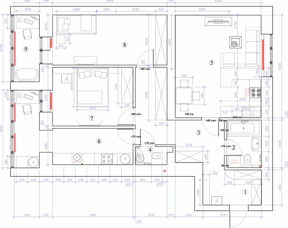
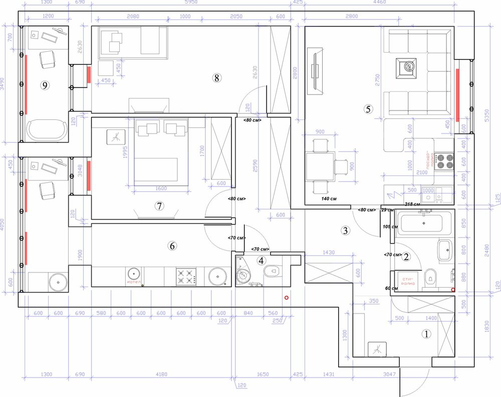
Livesms Опубліковано: 2 липня 2014 Поділитись Опубліковано: 2 липня 2014 Обдумываем варианты размещения мебели и прочих элементов в 3ком. квартире. С основной массой вещей определились - остаются проблемными гостиная (точнее область собственно гостиной с диваном и ТВ) - на плане помещение № 5 и детская. Комната имеет размеры 5,35 * 4,46 м. Под кухонную-столовую отведено примерно половина - 2,6 * 4,46 м. На гостиную остается примерно 2,75 * 4,46 м. До последнего времени основным считался вариант установки ТВ в углу - таким образом, что бы он был виден и с столовой зоны и с зоны отдыха. Но вопрос будет ли удобно смотреть его с дивана - под углом к основной части дивана. Есть вариант диван поставить под окно, а ТВ на стенку напротив. Есть вариант ТВ поместить на большую свободную стену, а диван развернуть спинкой ко входу / к рабочей поверхности кухни. Но тогда вопрос отцентрировать ТВ - смещать на уровень дивана - будет не по центру стены... Есть еще варианта кухню организовать не буквой "П" (с полуостровом) а буквой "Г" рабочей зоной вдоль стенки "кухня-ванная" и вдоль стенки до окна. Но тогда не понятно как распорядится свободным местом так, что бы было удобно разместить обеденный стол, диван и ТВ, который будет удобно смотреть и с обеденной зоны и с дивана. Посилання на коментар Поділитися на інших сайтах More sharing options...
BugS Опубліковано: 9 липня 2014 Поділитись Опубліковано: 9 липня 2014 Как вариант 1 Посилання на коментар Поділитися на інших сайтах More sharing options...
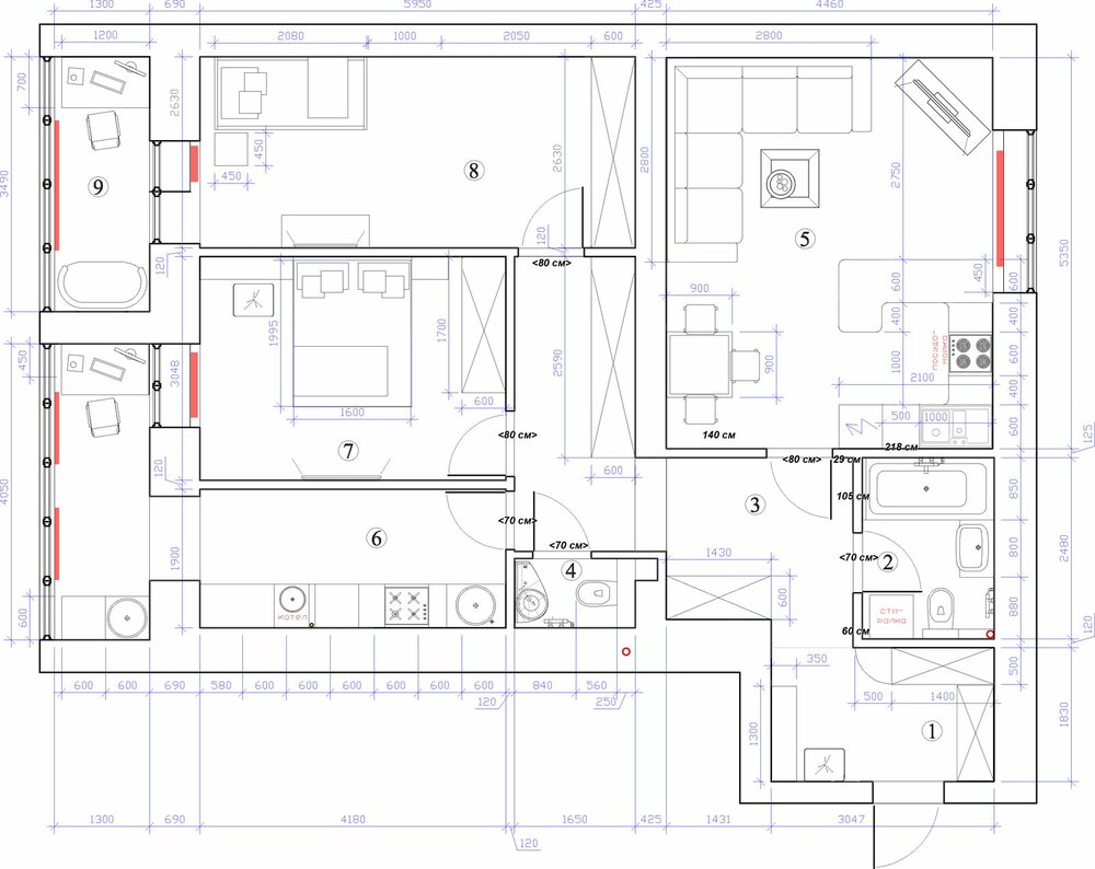
2234424 Опубліковано: 9 липня 2014 Поділитись Опубліковано: 9 липня 2014 план 3 у вас называется оптимум с точки зрения эргономики просмотра с дивана ну а кофе с булочкой можно и за журнальным столиком позавтракать под новости при желании 1 Посилання на коментар Поділитися на інших сайтах More sharing options...
Livesms Опубліковано: 9 липня 2014 Автор Поділитись Опубліковано: 9 липня 2014 план 3 у вас называется оптимум с точки зрения эргономики просмотра с дивана ну а кофе с булочкой можно и за журнальным столиком позавтракать под новости при желании Вариант 3 хорош тем, что смотреть ТВ удобно, но диван перекрывает доступ до окна. Да и саму вариант кухни (П образный) мы "подсмотрели" на форумах С небольшими уточнениями, что посудомойка уйдет под поверхность, духовки нет (она в другом помещении). При плане 3 вариант с барной стойкой/столешнецей по периметру кухони не получится... Посилання на коментар Поділитися на інших сайтах More sharing options...
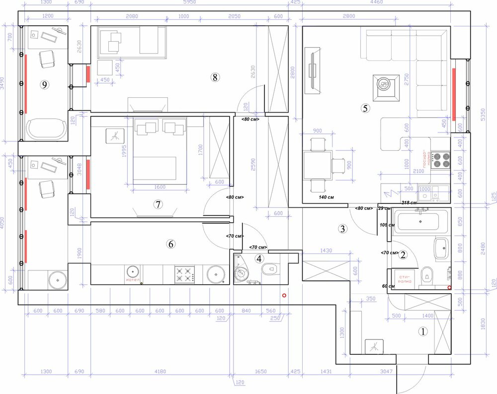
2234424 Опубліковано: 9 липня 2014 Поділитись Опубліковано: 9 липня 2014 Телевизор смотрится в семье чаще чем необходимость доступа к окну. Весной на проветривание открыл, и до осени не трогаешь. Только если кондиционер включаешь - тогда закрываешь. Барная стойка - ну и бог с ней. Плюс - при такой установке как на план 3 у вас есть реальная возможность еще и нормально поставить стереосистему или даже 5.1 кинотеатр со временем, а желание появится. Исходите из того что это ключевое помещение в квартире - здесь будет проходить большинство времени - и готовить здесь, и кушать здесь, и вечера проводить здесь, и гостей принимать здесь же. 1 Посилання на коментар Поділитися на інших сайтах More sharing options...
Anatoliy85 Опубліковано: 18 липня 2014 Поділитись Опубліковано: 18 липня 2014 ТВ на стену, диванчик в угол и всех делов Посилання на коментар Поділитися на інших сайтах More sharing options...
Livesms Опубліковано: 18 липня 2014 Автор Поділитись Опубліковано: 18 липня 2014 ТВ на стену, диванчик в угол и всех делов ;) а на какую стену? и в какой угол диван? Так как в вложении? Посилання на коментар Поділитися на інших сайтах More sharing options...
2234424 Опубліковано: 18 липня 2014 Поділитись Опубліковано: 18 липня 2014 Livesms так а что вам в плане 3 не нравится? что смущает? Посилання на коментар Поділитися на інших сайтах More sharing options...
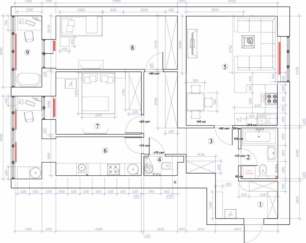
Livesms Опубліковано: 18 липня 2014 Автор Поділитись Опубліковано: 18 липня 2014 Livesms так а что вам в плане 3 не нравится? что смущает? - нет доступа к окну - открыть на проветривание и т.д. - с обеденного стола не видно ТВ - диван перекрывает радиатор отопления - окно выходит на крыльцо и сидя на диване (голова на уровне окна) - видно тех кто ходит "туды-сюды" и да и проходящим вполне видно - скажем я знаю что они меня видят )) - внутренний блок кондиционера запланирован в углу у окна на стенке - границе секции (которая напротив входного проема ) - при таком размещении диван будет под кондиционером. Посилання на коментар Поділитися на інших сайтах More sharing options...
2234424 Опубліковано: 18 липня 2014 Поділитись Опубліковано: 18 липня 2014 - нет доступа к окну - открыть на проветривание и т.д. - с обеденного стола не видно ТВ - диван перекрывает радиатор отопления - окно выходит на крыльцо и сидя на диване (голова на уровне окна) - видно тех кто ходит "туды-сюды" и да и проходящим вполне видно - скажем я знаю что они меня видят )) - внутренний блок кондиционера запланирован в углу у окна на стенке - границе секции (которая напротив входного проема ) - при таком размещении диван будет под кондиционером. 1. Реально через диван не достать? Если ногами на диван стать? Как часто в день вам надо открывать/закрывать окно? 2. Как много вы смотрите телек за обеденным столом, и как много на диване? Как часто на диване смотрит семья телевизор? 3. Отодвинуть диван от окна и стены на 10-15 см. Радиатор у вас конвекционного типа, ему и 10 см. достаточно. 4. Жалюзи? Плотная тюль? 5. Кондиционер повесить так чтобы он дул в телевизор, а уже оттуда расходился по комнате холодный воздух. Посилання на коментар Поділитися на інших сайтах More sharing options...
Рекомендовані повідомлення
Створіть акаунт або увійдіть у нього для коментування
Ви маєте бути користувачем, щоб залишити коментар
Створити акаунт
Зареєструйтеся для отримання акаунта. Це просто!
Зареєструвати акаунтУвійти
Вже зареєстровані? Увійдіть тут.
Увійти зараз