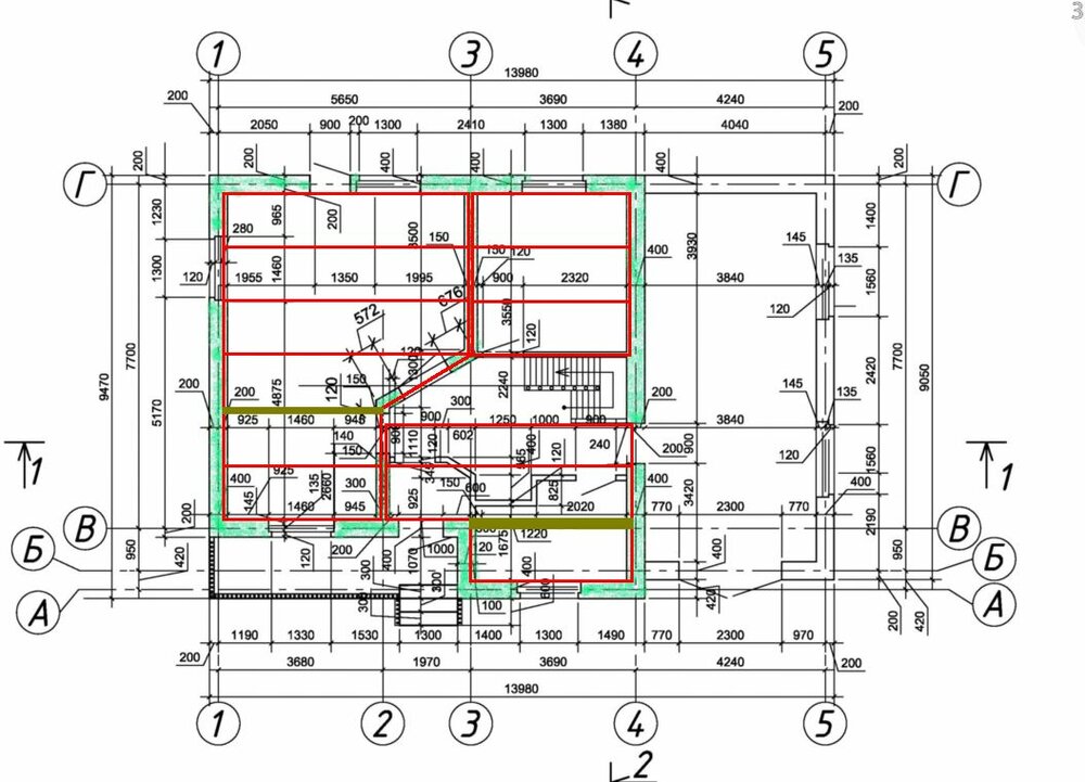
Alexander_84 Опубліковано: 9 липня 2014 Поділитись Опубліковано: 9 липня 2014 Уважаемые специалисты, и любители! Посоветуйте, пожалуйста, возможно ли сделать перекрытие из пустотных плит для первого этажа указанного дома - схема во вложении (несущие стены выделены зеленым цветом). В частности смущает изгиб в центральной несущей стене. Как его лучше перекрыть - пустотные плиты со свесом вроди как ложить нельзя. Или все-таки монолитом всю полосу от стенки до стенки напротив изгиба заливать? Заранее спасибо! Посилання на коментар Поділитися на інших сайтах More sharing options...
Drosselbeere Опубліковано: 9 липня 2014 Поділитись Опубліковано: 9 липня 2014 нечего сложного нет, у вас довольно простая схема. единственное есть вопросы по лестнице. а вообще если дом не строили, то упростите схему еще пс. плиты лучше обрезать на заводе или же заказать нужной формы 1 Посилання на коментар Поділитися на інших сайтах More sharing options...
Alexander_84 Опубліковано: 9 липня 2014 Автор Поділитись Опубліковано: 9 липня 2014 нечего сложного нет, у вас довольно простая схема. единственное есть вопросы по лестнице. а вообще если дом не строили, то упростите схему еще пс. плиты лучше обрезать на заводе или же заказать нужной формы НУ возле лестницы придется в любом случае кусок монолитить. А что касается обрезки плиты, не знал, что на заводах могут такое делать. Там ведь арматура идет продольная, и по идее опираться плита должна именно на торцы. В любом случае спасибо, звякну на завод, порасспрашиваю. Кстати производителя, или поставщика плит не посоветуете нормального? Посилання на коментар Поділитися на інших сайтах More sharing options...
Drosselbeere Опубліковано: 9 липня 2014 Поділитись Опубліковано: 9 липня 2014 или поставщика плит не посоветуете нормального? а как же догадаться где вы территориально или вы готовы даже из-за границы вести пустотки Посилання на коментар Поділитися на інших сайтах More sharing options...
Alexander_84 Опубліковано: 9 липня 2014 Автор Поділитись Опубліковано: 9 липня 2014 нечего сложного нет, у вас довольно простая схема. единственное есть вопросы по лестнице. а вообще если дом не строили, то упростите схему еще пс. плиты лучше обрезать на заводе или же заказать нужной формы Размеры плит не могли бы указать на рисунке? П.С. Дом уже построен - без этого косого простенка там было никак! Добавлено через 2 минуты Монолитное перекрытие со своей опалубкой От 140 гр.м.кв 099 5444815 Не - монолитом дорого получается... Добавлено через 5 минут Монолитное перекрытие со своей опалубкой От 140 гр.м.кв 099 5444815 Васильковский раён, Киевская область - 17 км. от Киевского кп. по одесской трассе! Посилання на коментар Поділитися на інших сайтах More sharing options...
Drosselbeere Опубліковано: 9 липня 2014 Поділитись Опубліковано: 9 липня 2014 Размеры плит не могли бы указать на рисунке? нет, так как раскладывал, не особо привязываясь к размерам помещений. Посилання на коментар Поділитися на інших сайтах More sharing options...
Alexander_84 Опубліковано: 10 липня 2014 Автор Поділитись Опубліковано: 10 липня 2014 Короче, на заводе сказали, что плиту под этот "откос" можно будет самому после укладки подрезать! Мол плита несущей способности потеряет немного конечно, но для котеджа в полтора этажа все равно с головой хватит! Будем посмотреть! Посилання на коментар Поділитися на інших сайтах More sharing options...
Рекомендовані повідомлення
Створіть акаунт або увійдіть у нього для коментування
Ви маєте бути користувачем, щоб залишити коментар
Створити акаунт
Зареєструйтеся для отримання акаунта. Це просто!
Зареєструвати акаунтУвійти
Вже зареєстровані? Увійдіть тут.
Увійти зараз