Перейти до публікації
Пошук в
  • Додатково...
Шукати результати, які містять...
Шукати результати в...

СИП дом на 100 кв.м. под Киевом

gogan419

Рекомендовані повідомлення

Всем привет, в этой ветке я хочу рассказать о нашей стройке.

 

Есть участок в 11 соток недалеко от Киева. Половина под застройку - 13 м в ширину (выход к дороге), 45 м в длину, остальное под огород. В этом году решили строить дом.

В марте 2014 я попал на сайт одной киевской фирмы, которая предлагает СИП дома, посмотрел по ценам, почитал про технологию, съездили на объект, посмотрели, обсудили с семьей и приняли решение строить такой дом.

 

Про СИП технологию здесь не хочу писать, выбор сделан, плюсы и минусы всем известны (либо можно легко найти в интернете).

Также, сразу скажу, что я не назову застройщика, чтобы не создавать ему рекламу или антирекламу. Поскольку я строю один единственный дом, и мне не с чем сравнивать, я не могу объективно оценивать в плюс или минус своего подрядчика. Мне кажется, все фирмы делают как-то хорошо, у всех есть свои плюсы и минусы.

 

Апрель ушел на поиски застройщика, выбор планировки.

 

В мае с помощью одной из фирм сделал строительный паспорт, подписал в районном отделе архитектуры и градостроительства, подал уведомление о начале стройки в ГАСК (в Киеве на печерске), уведомил пожарников и сельсовет.

Если кому интересны подробности, могу расказать об этом этапе подробнее и показать документы.

 

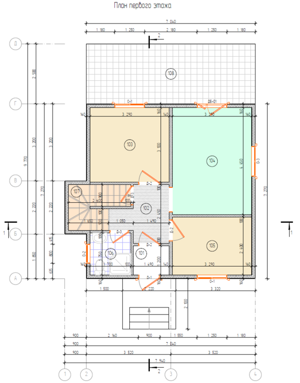
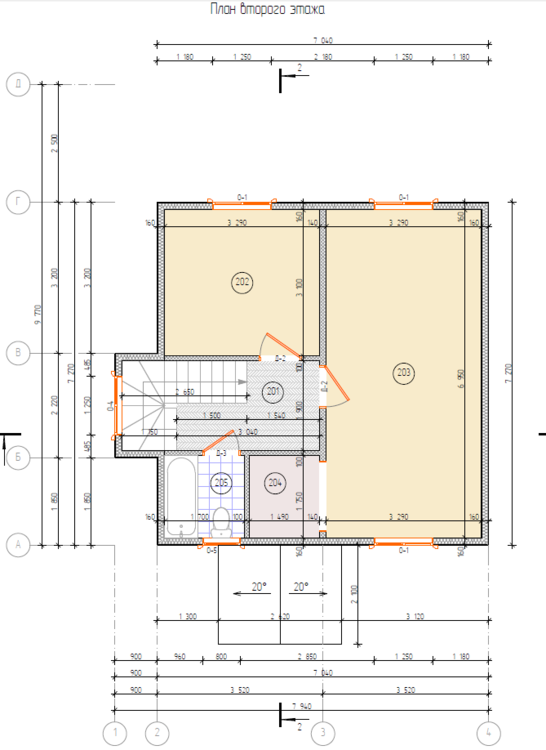
Ниже планы будущего дома и фотографии участка (март 2014).

plan-1.thumb.PNG.53f2c445cc3d5c1f4310147c65f38ad2.PNG

plan-2.thumb.PNG.3b1fc4a7eb55c7659bade981345c7ad8.PNG

dom.jpg.6dcf8397c2ce05bf77f6c55d9159c4b3.jpg

IMG_0870.thumb.JPG.6dd764abc343d526284b0026376eff52.JPG

IMG_0905.thumb.JPG.57f542bc8ce7e0a33071899edd1c63c5.JPG

  • Лайк 1
Посилання на коментар
Поділитися на інших сайтах

На участке нужно было срубить около 15 деревьев, одну большую грушу и завалить старый глиняный домик 3х6 м. Нашелся хороший местный знакомый, который организовал всю эту работу.

За 4000 грн ребята порубили и сложили деревья, разобрали и вывезли домик.

В мае ему же заплатил 2800 грн за выкорчевывание пеньков (12 шт) и вывоз корней.

 

Мы же тем временем с тестем собрали туалет для себя и рабочих. Материал - старая половая доска и лист шифера.

IMG_0897.thumb.JPG.6d8bc7dac8ce0be5247f13f373d8d90f.JPG

322543340_Volodymyrs_IMG_0148.thumb.JPG.c81bdd50e2ea2420f6789c73dc94907d.JPG

1626618628_Volodymyrs_IMG_0154.thumb.JPG.7075c160af925ea74993a5378a905a65.JPG

1832427561_Volodymyrs_IMG_0253.thumb.JPG.5799a56f006927b405f72d8a326ec6ad.JPG

  • Лайк 1
Посилання на коментар
Поділитися на інших сайтах

В конце мая я подписал договор с застройщиком и внес предоплату.

По договору застройщик обещает сделать: фундамент, коробку дома, окна и входная дверь, кровля крыши.

По ценам (дом 7х7 м с выступом 1х2 м, терраса 7х2.5 м):

фундамент железобетонный - 4 200 $

утепленная стяжка первого этажа - 2 300 $

домокомплект (СИП-160, перекрытия на двутавровых балках, крыша также СИП-160, без пола) - 14 800 $

монтаж домокомплекта - 3 700 $

Окна - 1800 $

Накрытие кровли - 1 550 $

лестница - 660 $

итого 29 100 $

По срокам - 2 месяца.

курс взяли 11.75 грн/$.

 

Дополнительно к этому проплатил 20 000 грн за фундамент и пол террасы 7х2.5 - свайно-винтовой фундамент, обвязка брусом, настил половой доски, грунтовка, покраска 2 раза.

 

Еще дополнительно 6 000 грн за закладку в фундамент разводки для холодной/горячей воды, канализационных труб, закладка трубы для входа от скважины и трубы для подачи воздуха в топку (твердотопливный котел(?)).

 

4 июня заехали фундаментщики. Оказалось, что их нужно где-то поселить. Хорошо, что у меня было где их разместить рядом с участком, а то пришлось искать где арендовать пару комнат для 4 рабочих на 2-3 недели.

Также, для работы нужно электричество на участке. Огромное спасибо соседям, которые тоже строятся на соседнем участке, разрешили попользоваться ихней розеткой на столбе.

Вода также была рядом возле дороги - в колодце.

 

К концу июня фундамент закончили. Сам процесс я почти не видел, потому как пропадал в командировках, был на участке только 14го июня, а потом уже 8 июля. Подрядчик по моей просьбе прислал мне фотографии этапов стройки фундамента.

1IMAG0315.thumb.jpg.8337e2ba49ddea9c3dc44a2291b1c5e6.jpg

1071189302_2Volodymyrs_IMG_0371.thumb.JPG.09357755350221976d3a69cae8ef16d2.JPG

94186396_3Volodymyrs_IMG_0372.thumb.JPG.a2ba34529fa5d45b02ded79cf25de6ec.JPG

618860197_4Volodymyrs_IMG_0373.thumb.JPG.ae3281227dd44e039d5fcecdb09c52ac.JPG

294332529_5Volodymyrs_IMG_0375.thumb.JPG.50d729632bd291ebfec26ac1c83d340b.JPG

114715245_6Volodymyrs_IMG_0377.thumb.JPG.63b79076d7af0e0f91368a7343ae5ba3.JPG

IMAG0323.thumb.jpg.25215db08f4de0568c5d5c2a57638028.jpg

IMAG0326.thumb.jpg.9ad6690f01fd60481d90f0eb301338fb.jpg

IMG_0938.thumb.JPG.78e20b400b8739a6c8b39a00c59dabc3.JPG

IMG_0939.thumb.JPG.13525c77f97b9321f9b7feb69a612a3a.JPG

IMG_0942.thumb.JPG.c2d470e1dd7ae942736c9f6074920fea.JPG

  • Лайк 3
Посилання на коментар
Поділитися на інших сайтах

8 июля заехала бригада монтажников с домокомплектом. Дополнительно заплатил 1600 грн за доставку и выгрузку бытовки.

Сегодня 16 июля, за 8 дней коробка почти готова, заканчивают крышу. Завтра договорились встретиться на участке - прием коробки дома. Обещают за следующую неделю поставить окна и накрыть крышу.

 

В планах сейчас:

- сделать крыльцо (длинная история, в общем забыли внести сначала в чертежи фундамента, а потом когда посчитали дополнительно - я решил не заказывать на фирме, бо дорого, в итоге будут заливать местные мастера)

- навес над крыльцом (оплачено)

- навес над террасой

- внешняя отделка (пенополистирол 50 мм + короед)

- водостоки

- септик (выгребная яма)

- отмостка

- проект по электрике, монтаж

- внутренняя отделка гипсокартоном

- ввод в эксплуатацию

- скважина с насосной станцией

после этого можно немножко отдохнуть и браться за ремонты внутренних помещений, если хватит денег =)

IMG_0991.thumb.JPG.75aad190885fe043eefd677b286a842c.JPG

IMG_0992.thumb.JPG.d3b2157e89969c3c725deed13ddf8fb5.JPG

IMG_0994.thumb.JPG.c10878ca6b01c76c98bc00cebd9fcfa0.JPG

IMG_0997.thumb.JPG.2644ba2512666055312ce782403512d2.JPG

IMG_1001.thumb.JPG.c0e4f13c9676ee16dadea2acc5046d8d.JPG

IMG_1002.thumb.JPG.b2a950cf3c8b58d1b49cd8cbcbefb0f2.JPG

IMG_1006.thumb.JPG.a06269c2bd29a221706be939a8da2b21.JPG

IMG_1007.thumb.JPG.c4d4ae7988aa6342576be3808c4a5bd8.JPG

IMG_1010.thumb.JPG.472feb4696b2758be75f9cc75cc4ba84.JPG

  • Лайк 2
Посилання на коментар
Поділитися на інших сайтах

Спасибо. Скорее дом, чем дача. Еще думаем об этом, возможно дедушка с бабушкой будут здесь жить с весны по осень, может и мы тоже. Делаем все как для дома.
Посилання на коментар
Поділитися на інших сайтах

Делаем все как для дома.

Подсказывать, что уже нужно переделать можно? :-)

Посилання на коментар
Поділитися на інших сайтах

 

В мае с помощью одной из фирм сделал строительный паспорт, подписал в районном отделе архитектуры и градостроительства, подал уведомление о начале стройки в ГАСК (в Киеве на печерске), уведомил пожарников и сельсовет.

Если кому интересны подробности, могу расказать об этом этапе подробнее и показать документы.

 

 

Во первых поздравляю с началом, и дай Бог с скорейшим окончанием стройки. Мне оч интерестно, поскольку уже заказал домокомплект и оплатил.

Во вторых подскажите плиз контакты фирмы которая вам делала паспорт. Заранее спасибо.

Посилання на коментар
Поділитися на інших сайтах

Мне оч интерестно, поскольку уже заказал домокомплект и оплатил.

Во вторых подскажите плиз контакты фирмы которая вам делала паспорт. Заранее спасибо.

Вкратце - важно расположить дом на участке по ДБН. В моем случае расстояние от моего дома III категории до соседнего дома должно быть не мене 10 метров. Пришлось задвинуть дом вглубь участка и поставить по средине, потому что еще одно правило - по 3 м от границ участка. План участка, все документы на собственность, фасады и план дома, ксероксы паспортов и т.д. - все складывается в папочку, в конце прикладывается копия сертификата проектировщика. В районе мне подписали за 10 минут в тот же день. Потом ксеро-копию всего этого приложил к уведомлению о начале стройки в ГАСК. 16 мая сдал, 16 июня забрал свой листик уведомления с номером регистрации. Вечером подготовлю все картинки и документы.

 

Подсказывать, что уже нужно переделать можно? :-)

Конечно можно, ради этого я тему и создал, критика приветствуется. Я даже не собираюсь защищаться :).

Посилання на коментар
Поділитися на інших сайтах

Вот строительный паспорт, можно понять порядок документов и как оформлять. По факту на месте женщина обратила внимание только на план участка с расположение дома и других построек и проверила наличие всех документов. Сделала замечание, что на чертеже участок ориентирован неправильно, т.е. север не сверху. Но там в углу оказалась стрелочка с указанием на север, вобщем прокатило.

Приходите с двумя копиями строй-паспорта. В одном из них нотариально заверенная копия акта права собственности (у меня была дарственная), которую оставляете им, а вторую с печатью и подписями на титулке и плане забираете себе.

Также, на проекте от строй-фирмы были их печати и подписи.

 

Для ГАСК я подготовил полностью ксерокопию строительного паспорта (все что там), также приложил копии своего паспорта и идент. номера. Ну и сама заява (см. файлик) - 2 копии (одну вернут с номером). Эти все документы я пришел и бросил им в ящик в рабоче (не приемное) время. Там нужно постучаться, говоришь что просто подать доки, и тебе показывают на ящик. Не требовал никаких корешков и справок о том, что приняли доки, ничего ценного там небыло. Через неделю позвонил и мне продиктовали входной номер моих доков.

 

Козы писем пожарникам в сельсовет находил здесь же на сайте. Они одинаковые, только отличаются адресатом. Эти письма я отправил заказным письмо (без уведомления) с почты через пару дней после подачи уведомления в ГАСК.

 

Когда прошел месяц я позвонил в ГАСК и спросил, готово ли, сказали да. Пришел в приемное время, там куча народу, все паникуют. Вышла девочка, записывала кто за чем пришел. Через 10 минут выдала уведомление с регистрационным номером.

 

в доках я все данные параноидально позатирал, сам не знаю зачем, но так:).

stroypasport.zip

уведомление.doc

в сельсовет.doc

в ДержТехноБеспеку.doc

Посилання на коментар
Поділитися на інших сайтах

Я правильно Вас понял, Вы заплатили 31 000 у.е. уже по новому курсу только за коробку и разводку комуникаций в середине? Еще и с фундаментом какая-то проблема... просто внутрянка, електрика по дому, + внешняя отделка и остальное, что Вы описали очень не дешего будет.... без стоимости земли, без какого либо ограждения дома, и без стоимости комуникаций (подключение газа, света) дорогой дом выходит имхо конечно...
Посилання на коментар
Поділитися на інших сайтах

Я правильно Вас понял, Вы заплатили 31 000 у.е. уже по новому курсу только за коробку и разводку комуникаций в середине? Еще и с фундаментом какая-то проблема... просто внутрянка, електрика по дому, + внешняя отделка и остальное, что Вы описали очень не дешего будет.... без стоимости земли, без какого либо ограждения дома, и без стоимости комуникаций (подключение газа, света) дорогой дом выходит имхо конечно...

Да дорого, но это соответствует средней цене по рынку. 300 у.е. за квадратный метр коробки (фундамент+коробка+окна+кровля) - вроде как норм. Остальные работы по дому (без мебели) - еще 200-250 на квадрат. И конечно же, это все без учета остальных расходов по участку. Посмотрим как оно пойдет.

Как оказалось, в стоимость коробки не входили двери на террасу и входная дверь. Почему-то был уверен, что входят, потому что когда считал проект у других контор - там все говорили о входной двери.

  • Лайк 1
Посилання на коментар
Поділитися на інших сайтах

Продолжаю свой домоблог :)

17 июля принял коробку дома. Монтажники закончили крышу. Крыть черепицу собирались в субботу или воскресенье, но из-за дождей пока не кроют. Уже 3 дня (с субботы по понедельник) идут дожди, дом мокнет, с крыши капает на пол второго этажа, дальше сливается через щели на фундамент. Часть сливается через щели наружу, часть впитывается в ОСБ плиты стен. Подрядчик обещает, что ничего страшного, когда дожди закончатся и дом подсохнет на солнце (день-два), они его накроют.

 

Заказал сегодня двери на террасу. Проем 1220х2050, делаю дверь из двух частей - одна 800 мм открывающаяся с ручкой и замком, вторая на защелках (штульповая) 420 мм. Профиль rehau-70, фурнитура maco. Ручка прижимная, т.е. как для дверей, но профиль оконный. 5700 грн, обещают за неделю сделать и установить 28 числа.

 

Сейчас в поисках входной двери. Прочитал здесь ветку:

www.stroimdom.com.ua/forum/showthread.php?t=133387

решил ставить либо дешевые китайские либо что-то среднее утепленное. Внутри вторую деревянную дверь, плюс будет неотапливаемый хол (шлюз :)). Открыт для предложений по входным дверям, хочу через неделю закрыть дом.

 

Также, сейчас в планах заняться забором. Хочу ставить забор из металлических штахет высотой 1.6м спереди и вдоль участка на глубину 20-30 м, а дальше пойдет сетка рябица.

437529793_Volodymyrs_IMG_0826.thumb.JPG.515f0010711f737da732c8e384df4732.JPG

413297781_Volodymyrs_IMG_0827.thumb.JPG.b5cd28bf7356711316e553f2a5336da6.JPG

1608946411_Volodymyrs_IMG_0834.thumb.JPG.f0c0046cdc7868855b3aebbf179f6201.JPG

1394468804_Volodymyrs_IMG_0836.thumb.JPG.3eaf3fbb2c756c22cfdfb2e006b2f4ea.JPG

Посилання на коментар
Поділитися на інших сайтах

Проем 1220х2050, делаю дверь из двух частей - одна 800 мм открывающаяся с ручкой и замком, вторая на защелках (штульповая) 420 мм.

Плохое решение

Фактически, открывающаяся часть будет меньше 800 мм по проему (минус импосты и тп) - этого мало для входной двери

Посилання на коментар
Поділитися на інших сайтах

Если дверь на террасу МП, почему и входную не сделать МП?

Я думал об этом, но не нашел решений, где металлопластиковая дверь выглядела бы красиво. Вчера заказал дверь с покрытием винорит portes.ua/pi/cPath/742/products_id/3776 (не реклама, первое что выпало в гугле :)) - 5150 грн. В будущем планирую за ней вплотную поставить вторую МП дверь.

 

Оказывается, вчера уже накрыли кровлю. В субботу был дождь (фотографии, что я выкладывал выше, я делал в субботу вечером), в воскресенье утром было солнце. После обеда я уехал, и вечером в воскресенье в Киеве был сильный дождь, а в селе, по словам строителей, дождя не было. В понедельник утром они проверили крышу, она оказалась достаточно сухой, приняли решение крыть. До обеда накрыли рубироидом и начали крыть битумку, прошел небольшой дождь и после обеда закончили. Обещают, что остаточная влажность уйдет, т.к. дом проветривается. Посмотрим.

door_portes.jpg.d0f870f2e6d9266df8329bd34e87b915.jpg

Змінено користувачем gogan419
Посилання на коментар
Поділитися на інших сайтах

Это была шутка - намек на то, что вы попросили советов тогда, когда некоторые вещи исправить нельзя. Хотя, в каждой шутке есть доля шутки. Конкретно в фундаменте меня удивило совмещение ленточного и свайного фундаментов, а так же стяжка по грунту. Если это именно стяжка, то она не должна быть связана с фундаментом, если это плита, то она должна по другому армироваться.
  • Лайк 1
Посилання на коментар
Поділитися на інших сайтах

... Конкретно в фундаменте меня удивило совмещение ленточного и свайного фундаментов, а так же стяжка по грунту. Если это именно стяжка, то она не должна быть связана с фундаментом, если это плита, то она должна по другому армироваться.

Не могу комментировать по поводу этого, так как не специалист. Но по поводу толщины стяжки:

Изначально подрядчик говорил что в утепленной стяжке пола будет 100 мм пенополистирола и 100 мм стяжки. По факту мастера положили 50 мм пенополистирола и 100 стяжки, во вложении чертежи разреза фундамента и стяжки. По фотографиям мне показалось, что стяжки там меньше чем 100 мм, я собираюсь это проверить с помощью перфоратора.

930850514_.thumb.PNG.78927f0c0f9c8a9be07818589d81dff2.PNG

1IMAG0323.jpg.eea57eb4bf95b93fa54a8eafa8bd6fb2.jpg

3Img_1099.jpg.b00e13b147298595e808ea2204384c54.jpg

Посилання на коментар
Поділитися на інших сайтах

Чтобы хоть намного исправить ситуацию, нужно утеплить цоколь экструдированным пенополистиролом + делать теплую отмостку - чтобы убрать мостик холода.

 

Похожий дом (по реализации) был в проекте "Дача" на ICTV, и там отмечали что пол первого этажа очень холодный.

 

Теплая отмостка защитит фундамент и от пучения (пучение самая страшная вещь для этих фундаментов - столбики зажимает в грунте, а ленту выдавливает).

Посилання на коментар
Поділитися на інших сайтах

Смотрите сами. На первой фото (рис.3) изображена стяжка по грунту, абсолютно правильно она никак не связана с фундаментом. Но ваши умельцы завязали ее с фундаментом и получилась ни стяжка, ни плита, что является грубым нарушением проекта. И сколько там сантиметров бетона уже не так важно, поскольку она в принципе не правильна.
Посилання на коментар
Поділитися на інших сайтах

  • 2 тижні потому...

Продолжаю.

 

Установили входную дверь 5150 дверь плюс 460 доставка, 500 монтаж (всего 6110).

Установили террасную дверь - всего 5700 с доставкой и установкой, профиль Rehau-70. Этот профиль считается оконным, но зато дешевле, чем если бы ставить полноценный металлопластик для наружных дверей - там сразу цена в 2 раза выше. Замок поставили такой, что перед закрытием ключем нужно ручку вверх поднимать, чтобы дверь поджалась.

Сделал навес над террасой - 13000 грн навес плюс 2700 обриштовка (перила).

 

По поводу электричества:

Как я писал выше, я заказал у облэнерго еще в начале июня 8 кВт, потом в июле проплатил по счету 10080 грн. Через несколько дней после проплаты установили опору возле угла участка, но со стороны дороги. Потом еще через пару дней приехали мастера и кинули мне воздушку на фасад дома. Сначала уговаривали поставить счетчик на опоре, но я настоял, чтобы бросали на фасад. Съездил на рынок и быстро купил крюк и мощные шурупы, чтобы закрепиться на фасаде. Поскольку в месте крепления не проходил брус, пришлось крюк сместить влево, и то он мощно закрепился только двумя болтами, а два других вкрутили в пенопласт (под осб).

Электрики говорят - что ж ты не подготовился, если бы был внутренний щит с автоматами и провод проброшен, мы бы тебе сразу подключили. А я говорю - так я не вкурсе, мне никто не говорил.

 

Потом сделал контур заземления - 1400 грн за все. Контакты мастеров узнал у инженера в том же облэнерго.

 

Я купил щиток на 36 ячеек, пару автоматов для начала, вводной провод 3х10+1х6 (с запасом, может потом докуплю до 16 кВт) и провод для подключения заземления в щит 1х10 (многожильный). Все это запихнул в металлорукав 25мм и протянул в дом. В СИП просто просверлил отверстие около 40 мм и завел внутрь. Потом в отверстие просто напихаю минеральной ваты, а снаружи будет пенопласт с короедом.

 

Также, подрядчик доделал навес над крыльцом - две колоны из бруса и пару сип панелей. Получился коротковат, но какой уже был в проекте, может чем-нибудь его удлиню, посмотрим.

 

все фотографии ниже.

 

Также, нашел подрядчиков, которые будут делать фасадные работы, свесы крыши и водостоки. За фасад расчет такой - 260 грн за кв.м. Считают площадь внешних стен дома вместе с окнами, так чтобы не пересчитывать отдельно стоимость откосов. Предварительно, здесь около 180 кв.м. - итого около 45 тыс грн. Это пенопласт 40 мм (50 мм на переднюю сторону, чтобы скрыть электрокабеля с гофрой) и короед. (всякие там сетки, грунтовки - я не вкурсе, но мастера опытные, сами знают).

За отвесы крыши - подшивка софитом и металлическая планка по торцу крыши, плюс кровля террасы, плюс монтаж водостоков - работа 12 тыс, и предварительные стоимости материалов: битумная черепица 25 квадрат на террасу - 2 тыс.грн, софит - 4, планки по торцу - 3, водостоки - 6. Пока предварительно, ребята будут начинать с сентября, обещают фасад сделать за 5-6 дней, если погода будет хорошой.

 

Внутреннюю электропроводку решил делать сам. Все буду вести в металлорукаве. Часть стен, где будут розетки и выключатели, буду зашивать гипсокартоном по обрешетке, а на остальные стены буду ложить гипсокартон просто на ОСБ.

door1.thumb.JPG.2edcf8a6167c38130665c500266fd385.JPG

door2.thumb.JPG.6fece981584a7b792c539be651f98c44.JPG

door3.thumb.JPG.78475bc0e20cd574d36feba9b0e1ce64.JPG

door4_terrasa1.thumb.JPG.a08130670cf7d0cf888e74dfbe9eea32.JPG

door5_terrasa2.thumb.JPG.502c30b5508340d5366c8b4ad77beedd.JPG

electric0_opora.thumb.JPG.e384cd50db92ed756bc43a3b5dde33f3.JPG

electric1.thumb.JPG.b9e40944d092c834c5cb4173e90acf8e.JPG

electric2.thumb.JPG.6a3151904f6cbe6927ade1fce5f44699.JPG

electric3-kruk.thumb.JPG.d0b96869ae294574dc107ec157afa679.JPG

electric4-zazemlenna.thumb.jpg.9832f486af207293b68bbcf69f8ce44f.jpg

electric5-vvodnoy_provod.thumb.JPG.4fe76b524b887f3899fd0644d0368ccf.JPG

krilco_naves.thumb.JPG.c71d4e73088e226303dadaf3d7e9e6b5.JPG

  • Лайк 1
Посилання на коментар
Поділитися на інших сайтах

Створіть акаунт або увійдіть у нього для коментування

Ви маєте бути користувачем, щоб залишити коментар

Створити акаунт

Зареєструйтеся для отримання акаунта. Це просто!

Зареєструвати акаунт

Увійти

Вже зареєстровані? Увійдіть тут.

Увійти зараз
×
×
  • Створити...