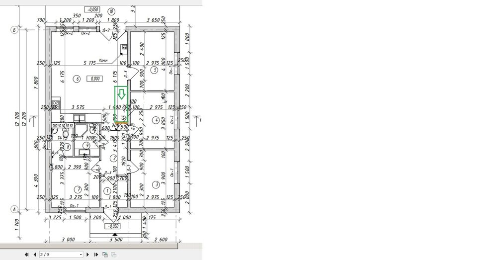
Gorenichi Опубліковано: 24 липня 2014 Поділитись Опубліковано: 24 липня 2014 Небольшой дом из керамоблоков, окна-стеклопакеты, перекрытие деревянное, лестница на мансардный этаж там же где камин. План прилагается. Нужно чтобы печь можно было использовать для обогрева дома, планируется вент. разводка по комнатам первого этажа. Посилання на коментар Поділитися на інших сайтах More sharing options...
Dima_dimohod Опубліковано: 24 липня 2014 Поділитись Опубліковано: 24 липня 2014 Небольшой дом из керамоблоков, окна-стеклопакеты, перекрытие деревянное, лестница на мансардный этаж там же где камин. План прилагается. Нужно чтобы печь можно было использовать для обогрева дома, планируется вент. разводка по комнатам первого этажа. Печь для разводки тепла по комнатам не подходит. Вам нужна каминная топка. Что бы подобрать топку по мощности нужна еще планировка 2 мансардного этажа. Посилання на коментар Поділитися на інших сайтах More sharing options...
Gorenichi Опубліковано: 24 липня 2014 Автор Поділитись Опубліковано: 24 липня 2014 Спасибо за ответ. Мансардный этаж представляет собой 1 большую комнату, с 4 мя мансардными окнами. Посилання на коментар Поділитися на інших сайтах More sharing options...
T-Kiev Опубліковано: 24 липня 2014 Поділитись Опубліковано: 24 липня 2014 Небольшой дом из керамоблоков, окна-стеклопакеты, перекрытие деревянное, лестница на мансардный этаж там же где камин. План прилагается. Нужно чтобы печь можно было использовать для обогрева дома, планируется вент. разводка по комнатам первого этажа. А топки Dovre не рассматривали kaminhouse.com.ua/kamin/category/%D0%BA%D0%B0%D0%BC%D0%B8%D0%BD%D0%BD%D1%8B%D0%B5-%D1%82%D0%BE%D0%BF%D0%BA%D0%B8-dovre Серию 2180 к примеру греет достойно а цена как на печи ютутул Посилання на коментар Поділитися на інших сайтах More sharing options...
Gorenichi Опубліковано: 25 липня 2014 Автор Поділитись Опубліковано: 25 липня 2014 В ходе чтения форума тех. требования изменились: 1. Каминная топка (спасибо Дмитрию) 2. Внешний подвод воздуха 3. Разводка с вентилятором по комнатам Требования к каминной топке в порядке приоритета: - отопление (возможность долгого топления и всё необходимое для этого) - эстетический вид огня P.S. Вопрос: в случае отключения электричества как работает вентилятор? Что-то пропускает дальше или нет. На какой дистанции от печи он должен быть установлен(электрику надо сказать)? По поводу производителя - как понимаю подойдёт любой норвежский производитель. Но в идеале хотелось бы Jotul, в виду многих позитивных рекломаций. Посилання на коментар Поділитися на інших сайтах More sharing options...
Dima_dimohod Опубліковано: 25 липня 2014 Поділитись Опубліковано: 25 липня 2014 В ходе чтения форума тех. требования изменились: 1. Каминная топка (спасибо Дмитрию) 2. Внешний подвод воздуха 3. Разводка с вентилятором по комнатам Требования к каминной топке в порядке приоритета: - отопление (возможность долгого топления и всё необходимое для этого) - эстетический вид огня P.S. Вопрос: в случае отключения электричества как работает вентилятор? Что-то пропускает дальше или нет. На какой дистанции от печи он должен быть установлен(электрику надо сказать)? По поводу производителя - как понимаю подойдёт любой норвежский производитель. Но в идеале хотелось бы Jotul, в виду многих позитивных рекломаций. Так из норвежских остался только один. Без электричества вент. не работает. Система "by-pass" сможет защить вентилятор от перегрева. Расстояние от вентилятора до топки до 2 метров. Возмите 570-ку не пожалеете. Посилання на коментар Поділитися на інших сайтах More sharing options...
Gorenichi Опубліковано: 25 липня 2014 Автор Поділитись Опубліковано: 25 липня 2014 570я не слишком мощная под этот дом? Посилання на коментар Поділитися на інших сайтах More sharing options...
Dima_dimohod Опубліковано: 25 липня 2014 Поділитись Опубліковано: 25 липня 2014 570я не слишком мощная под этот дом? Под площадь 170-180м2, чтобы не замерзнуть, самое оно. 1 Посилання на коментар Поділитися на інших сайтах More sharing options...
Туз Опубліковано: 25 липня 2014 Поділитись Опубліковано: 25 липня 2014 Чесно говоря залез на данную ветку случайно, так как до камина еще есть более важные работы, но о камине уже мечтаю, да и о Jotul слышал исключительно позитывние мнения. Прочитав последний пост "Возмите 570-ку не пожалеете" и порывшись 2 мин в нете нашел следующее видео: после просмотра которого ОДНОЗНАЧНО определился с печью. Единственным очень существенным её недостатком (для меня), её сегодняшняя цена... Посилання на коментар Поділитися на інших сайтах More sharing options...
Gonchik Опубліковано: 25 липня 2014 Поділитись Опубліковано: 25 липня 2014 Чесно говоря залез на данную ветку случайно, так как до камина еще есть более важные работы, но о камине уже мечтаю, да и о Jotul слышал исключительно позитывние мнения. Прочитав последний пост "Возмите 570-ку не пожалеете" и порывшись 2 мин в нете нашел следующее видео: после просмотра которого ОДНОЗНАЧНО определился с печью. Единственным очень существенным её недостатком (для меня), её сегодняшняя цена... "Сегодняшняя" звучит, как будто завтра может быть дешевле. Каждый год только дорожает, проц. на 7-10:D 1 Посилання на коментар Поділитися на інших сайтах More sharing options...
Gorenichi Опубліковано: 25 липня 2014 Автор Поділитись Опубліковано: 25 липня 2014 Спасибо за помощь! Как установим, обязуюсь выложить отчёт. Посилання на коментар Поділитися на інших сайтах More sharing options...
T-Kiev Опубліковано: 25 липня 2014 Поділитись Опубліковано: 25 липня 2014 Чесно говоря залез на данную ветку случайно, так как до камина еще есть более важные работы, но о камине уже мечтаю, да и о Jotul слышал исключительно позитывние мнения. Прочитав последний пост "Возмите 570-ку не пожалеете" и порывшись 2 мин в нете нашел следующее видео: после просмотра которого ОДНОЗНАЧНО определился с печью. Единственным очень существенным её недостатком (для меня), её сегодняшняя цена... Этим видео уже не кого не удавишь можете вот еще посмотреть kaminhouse.com.ua/kamin/item/panorama-ni-25?category_id=59 kaminhouse.com.ua/kamin/item/%D0%BA%D0%B0%D0%BC%D0%B8%D0%BD%D0%BD%D0%B0%D1%8F-%D1%82%D0%BE%D0%BF%D0%BA%D0%B0-dovre-2180-cbc-2?category_id=73 kaminhouse.com.ua/kamin/item/harmony-ni-25?category_id=59 Посилання на коментар Поділитися на інших сайтах More sharing options...
Рекомендовані повідомлення
Створіть акаунт або увійдіть у нього для коментування
Ви маєте бути користувачем, щоб залишити коментар
Створити акаунт
Зареєструйтеся для отримання акаунта. Це просто!
Зареєструвати акаунтУвійти
Вже зареєстровані? Увійдіть тут.
Увійти зараз