Перейти до публікації
Пошук в
  • Додатково...
Шукати результати, які містять...
Шукати результати в...

Moderate house

ХХХХ

Рекомендовані повідомлення

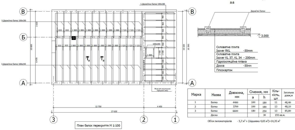
по проекту: широкий пролёт - 6,6м-180*250мм, узкий пролёт и гараж - 3,7м и 4,5м-100*180мм соответственно. шаг везде 1м между серединами балок. но шаг корректировал, что бы не попасть балкой на трубу камина.

кстати, утеплять перекрытие планировал минватой - в последний момент жена отговорила в пользу юнизола - просто засыпали между балками. мне понравился по всем параметрам больше ваты. рекомендую. цена с ватой почти одинаковая.

14.thumb.JPG.d23024a2c62289933d6f29b969b890fe.JPG

Змінено користувачем ХХХХ
Посилання на коментар
Поділитися на інших сайтах

ещё ракурсы кухни:

1323655024_P1050733_.thumb.JPG.0bfc3badba4079b938c7d37d9724d872.JPG

шторы на кухню ещё не придумали - какие рекомендации?

1056884457_P1050734_.thumb.JPG.b9cdd7f55a6a0e28a4d78838b5e8f009.JPG 733900794_P1050736_.thumb.JPG.bc99cc8539b01469c8bc3799613932f2.JPG 1529059286_P1050735_.thumb.JPG.bf6c6a4a43f09a0f6329ccc1e6096a37.JPG 1354807205_P1050737_.thumb.JPG.aa801355e28104510c9c3e64547898df.JPG

подсветку сделал сам диодной лентой - после обычных люминисцентных ламп - небо и земля. только вот сколько прослужат пока выгорят? пока 9 мес. светят...

1316985777_P1050738_.thumb.JPG.923e6ebc88ced21ff99ef62ae13e26c3.JPG 1221167634_P1050740_.thumb.JPG.5c122404049300c226bc7f3b6d6cbbb3.JPG 1594986446_P1050747_.thumb.JPG.9a1fe41fbc052846b82875805deb19e7.JPG 1271837728_P1050750_.thumb.JPG.65951df7c3cde5ad91b6bb98109ce200.JPG

  • Лайк 6
Посилання на коментар
Поділитися на інших сайтах

ну и сразу похвалю мебельщиков за стулья.

месяца три выбирал стулья. пересмотрел и перещупал сотни штук. даже испанские или итальянские хотел заказать... и тут нашёл наши белоцерковские за 1280грн. в ясене. сказка!

добавили нашу ткань - и вуа-ля:

цвет под кухню-

1325695125_P1050774_.thumb.JPG.c043776f5a3109119519c28253fbf6b9.JPG

цвет под мебель в гостиной с пастиной и втиранием-

49804854_P1050772_.thumb.JPG.eeaa233e5748422d9bc9d09b626f4b46.JPG 1730838330_P1050773_.thumb.JPG.b423748a1757e19ec5fe454ac379d3cf.JPG

стол и шкаф в спальню их же. мебель в детскую и с/у будет наверно тоже их.

  • Лайк 5
Посилання на коментар
Поділитися на інших сайтах

Теперь в дом надо завести воду и электрику и вывести канализацию.

Згрузил своего "пыжика" под крышу и вуа-ля:

Почти все соединения канальи 90гр. Пишут пишут сантехники, учат учат нас неразумных застройщиков так не делать. Зачем же Вы делаете вопреки их рекомендациям...

  • Лайк 2
Посилання на коментар
Поділитися на інших сайтах

мои "сантехники" учат иначе - "так уси люды роблять и ничого - стоить" :D

думаю вертикальные 90 град не так страшны как горизонтальные...

вот я ещё покажу вам, какие позднее пришлось углы делать под биде и унитаз из-за проссчёта в 20см:

P1050012.thumb.JPG.fc4220651fc27440865f4d9cec95a86e.JPG

тут нечистотам минимум 4 угла в 90* преодалеть на пути к септику придётся. пока преодалевают успешно :-D

Посилання на коментар
Поділитися на інших сайтах

ещё ракурсы кухни:

[ATTACH]376182[/ATTACH]

шторы на кухню ещё не придумали - какие рекомендации?

[ATTACH]376183[/ATTACH] [ATTACH]376184[/ATTACH] [ATTACH]376192[/ATTACH] [ATTACH]376185[/ATTACH]

подсветку сделал сам диодной лентой - после обычных люминисцентных ламп - небо и земля. только вот сколько прослужат пока выгорят? пока 9 мес. светят...

[ATTACH]376186[/ATTACH] [ATTACH]376187[/ATTACH] [ATTACH]376188[/ATTACH] [ATTACH]376189[/ATTACH]

 

Попробуйте римские тканевые ролеты. ИМХО - практичней штор. Мы себе будем делать на весь первый этаж.

  • Лайк 1
Посилання на коментар
Поділитися на інших сайтах

пойдём-те дальше по дому:

круговая панорама из кухни в гостинную -

339181348_P1050759_.thumb.JPG.cb7f700b4dd05dd5fff0f7e76cd493d8.JPG 280216034_P1050757_.thumb.JPG.4a65b30cc185daf83a7f67a23ac42c55.JPG 270280551_P1050778_.thumb.JPG.792140b0d6a6a9824b1a7626dd26f84c.JPG 193357394_P1050777_.thumb.JPG.0991a20210be1b94d776c1d619b2401a.JPG 1650020130_P1050779_.thumb.JPG.0c99f6714d6aaf3b0ab4833597af0451.JPG 223261524_P1050780_.thumb.JPG.610f54df5ae36f785e2290026c2c0686.JPG

диван, кстати, долго искал, т.к. найти 4-местный по вменяемой цене большая проблема. Ромира Гранд 2,4м шириной за 6000грн. да ещё и выкатной механизм!

а камин обогревает 50 м.кв. гостиной+кухни и за ним детская 13 кв.м. = больше, чем полдома!

  • Лайк 11
Посилання на коментар
Поділитися на інших сайтах

Центральный розовый предмет интерьера на последнем фото просто впечатлил:)
Посилання на коментар
Поділитися на інших сайтах

Центральный розовый предмет интерьера на последнем фото просто впечатлил:)

 

зато сразу видно, что жилое помещение :) и пол ребёнка ясен.

Посилання на коментар
Поділитися на інших сайтах

ну раз о детях - то детская:

1355061044_P1050753_.thumb.JPG.dbf93fcc538836834a0c1c94b6994d98.JPG 1878736808_P1050754_.thumb.JPG.4d083baad1b3e584ebc794a4b6569cad.JPG

пока мы обитаем все вместе, так что из 5 комнат дома двумя не пользуемся.

осенью закажем мебель как для школьника. хотя потенциальный школьник пока ещё писается по ночам, но жить надо с прицелом на будущее... ;)

бордюр жена полгода искала и таки нашла в канадских каталогах.

684201389_P1050662_.thumb.JPG.97ed73f6894ebce0996bfd7ff92e1d58.JPG

а это парадоровский ламинат с жуткими размерами - доска 2,20м в длину - так что 13м.кв. ламината в детской в итоге обшлись как 48 м.кв. в гостиной и кухне. но он того стоит...;-)

684987028_P1050663_.thumb.JPG.428951e3856956415250d28375e65da1.JPG

только что глянул цену - 409грн/м.кв. :shock:Дуб Patina белый V4 TrendTime 6 Артикул: 125 482 7 Формат планки: 2200 х 243 х 9,0 мм. Как курсы цены загнали вверх!!

  • Лайк 5
Посилання на коментар
Поділитися на інших сайтах

не сказать, что я поклонник хрусталя, но т.к. большая часть люстр переместилась с квартиры, а там они покупались 7 лет назад, то на тот момент не было почти ничего приличного за нормальные деньги кроме хрусталя. на фото - ArtGlass и Preciosa.

сейчас бы купил с никелироваными рожками и небольшими хрустальными подвесами. я, как уже понятно, за минимализм во всём. например такое:

resize2_php.jpg.519e9953542465c242677bd0ce49ea95.jpg

в спальню, гостевую, тамбур и с/у докупил простенькие металлические польские Nowodvorski - просто хрустальные ой как непросто отмывать от пыли. с меня хватит и тех, что есть...

Посилання на коментар
Поділитися на інших сайтах

ну и теперь наша спальня. тут пока только шкаф прописался. дитя категорически против нашего переезда из её детской в нашу спальню. да и мне проще укачать вставать:

1417696011_P1050665_.thumb.JPG.0a5f12142c679830119c47ef13d65890.JPG 409063230_P1050666_.thumb.JPG.4953d72b15973b0ab07e43b2233d4053.JPG 1675945904_P1050667_.thumb.JPG.38edc263774c1e1637a88e954252b3db.JPG

ещё бы 5 лет назад низачто бы не сделал "классическую" спальню для себя - но видимо с возрастом меняются и вкусы.

но вот я постарел :-) и моя спальня теперь такая. и мне нравится: просто, чётко, светло и без лишней витиеватости.

  • Лайк 1
Посилання на коментар
Поділитися на інших сайтах

Спасибо за краткий отчет,люблю что бы быстро и опа все готово.Теперь озеленение и тд.:flag1:
Посилання на коментар
Поділитися на інших сайтах

пока закончим с комнатами.

последняя - гостевая.

пока используется как склад и просто место для игр.

814144465_P1050769_.thumb.JPG.7f2510d836a5188458a7b04a79c1aad1.JPG 1266062556_P1050768_.thumb.JPG.c874b971dd28ae88b20cf85ee3740c61.JPG

а вот такую дыру-окно сделали, что бы утром добавить света в небольшом тамбуре перед спальней и гостевой. прикрыто стеклом с рисунком.

1427805331_P1050771_.thumb.JPG.27328e97612fc823c5ed96fd0914a1ff.JPG 2027282793_P1050770_.thumb.JPG.2e963c1a34e9a76315f3e71ab2460038.JPG

  • Лайк 4
Посилання на коментар
Поділитися на інших сайтах

маленький санузел:

тут на 3 м.кв. влез компакт, раковина и ванна 130*70

2093521953_P1050668_.thumb.JPG.ebc521dc273254dd95fa893c01d6f43b.JPG 1297897895_P1050767_.thumb.JPG.166c0043f437739d4f50ac5ce5568d6a.JPG

284797915_P1050761_.thumb.JPG.8d80f9ac69c6ebac9a81ba2b449426f8.JPG 1627235922_P1050765_.thumb.JPG.c88e9458018c6af23caffc99f9e5b5b1.JPG

и большой санузел - тут влезло всё:

1707536814_P1050751_.thumb.JPG.51f79ecc73947ec68408c497d22e5c55.JPG 8503285_P1050760_.thumb.JPG.88c2b9606f656cb96efca0bd18528191.JPG

 

плитка в с/у одинаковая, но разной расцветки.

 

после использования в большом с/у ярко-сиреневой затирки появилась идея: вложить стены вообще белой плиткой, а эффект декора сделать за счёт кислотно-яркой затирки - салатовой, фиолетовой, бирюзовой.

 

ещё могу рекомендовать делать потолки в с/у из обычного влагостойкого ГКЛ + обычные багеты на клей. всевозможные вагонки - ужас. опыт 7 лет квартиры показал, что с потолком ничего страшного не случится. особенно, если проветривать и вентилятор включать.

 

ну и последнее. вешайте люстры в с/у - реально эффектно, удобно и много света. точечники - брр-р-р!!....

  • Лайк 6
Посилання на коментар
Поділитися на інших сайтах

ещё могу рекомендовать делать потолки в с/у из обычного влагостойкого ГКЛ + обычные багеты на клей. всевозможные вагонки - ужас. опыт 7 лет квартиры показал, что с потолком ничего страшного не случится. особенно, если проветривать и вентилятор включать.

Підтримаю, вологостійкі ГКП пофарбовані вологостійкою фарбою витримують усі водні процедури, з природною вентиляцією та вікном.

Не бачу у Вас вікон.

В мене навіть душова кабіна з ГКП і плитка виконує свої функції.

Посилання на коментар
Поділитися на інших сайтах

Санузлы очень и очень здорово !!! а что у вас за фаянс сантехнический ? очень красиво !!
Посилання на коментар
Поділитися на інших сайтах

Тоже обратила внимание на Ваши люстры в санузлах. Согласна, смотрятся эффектно! Но как же безопасность? Вроде ж нельзя обычные люстры во влажные помещения? Помнится, мы спецом искали такие светильники, с защитной функций от влаги...:)
Посилання на коментар
Поділитися на інших сайтах

Підтримаю, вологостійкі ГКП пофарбовані вологостійкою фарбою витримують усі водні процедури, з природною вентиляцією та вікном.

Не бачу у Вас вікон.

В мене навіть душова кабіна з ГКП і плитка виконує свої функції.

 

окна нет. но есть вентканал + вентилятор. за 2-3 минуты влага уходит. видно по распотевшему :) запотевшему зеркалу...

 

Добавлено через 3 минуты

Санузлы очень и очень здорово !!! а что у вас за фаянс сантехнический ? очень красиво !!

 

РАК Керамик эмиратский. Консоль на ножках - супер. Мне очень нравится.

1328787093-500x500.jpg.c7e8b5a3ae6211448d859970e22e20d7.jpg

И фаянс у них белый-белый, прям голубоватый какой-то. очень красивый.

А вот унитазы мне не очень - они немонолитно льются на фабрике, а потому изнутри видны замазанные части. как-то не хорошо это.

По цене - смотрите Гассиб и Эпицентр - их там полно.

 

Добавлено через 1 минуту

Тоже обратила внимание на Ваши люстры в санузлах. Согласна, смотрятся эффектно! Но как же безопасность? Вроде ж нельзя обычные люстры во влажные помещения? Помнится, мы спецом искали такие светильники, с защитной функций от влаги...:)

 

На этот случай стоят у нас УЗО и качественно сделано заземление. На этих люстрах Новодворски есть заземление корпуса люстры.

Поверьте, точечные светильники вообще вряд ли кто-то заземляет.

Ну и лить воду на люстру - зачем? ;)

  • Лайк 1
Посилання на коментар
Поділитися на інших сайтах

вообще, братцы, внутренняя отделка - это не проблема. сейчас можно легко построить дом по качеству и удобству неотличимый внутри от квартиры.

главная разница - снаружи:

960208504_P1050687_.thumb.JPG.8c6bbb8ea9340387a7448c6b1b237e52.JPG1082730160_P1050685_.thumb.JPG.cf9a08f7b90b29c6cc9cd4e295a4a08d.JPG 1118135647_P1050724_.thumb.JPG.be9145d1da7d713acbc83a14f89fcabe.JPG 871372366_P1050726_.thumb.JPG.649fe9ef6651f2e3f4a7433b614a4be8.JPG 1960526674_P1050727_.thumb.JPG.d3cf7f90f80ca5a675fef1f90311b20c.JPG 972237619_P1050728_.thumb.JPG.0992bc2ac7872a2af1aec0c72eb28717.JPG 1883288675_P1050729_.thumb.JPG.cfd6f3d5d327b55689e7a64186eff90d.JPG 1952256706_P1050730_.thumb.JPG.62b19eca7c0c5ea1293374b60b05d9a7.JPG 815746440_P1050731_.thumb.JPG.2a782e3173a4bab62d10b1c4ae53f2a9.JPG 1463703365_P1050697_.thumb.JPG.9c3cf6c7c200223c9b8ddca525eeb73c.JPG

  • Лайк 6
Посилання на коментар
Поділитися на інших сайтах

Красотень какой!!!:rolleyes:

а можно контакты по детскому комплексу (где, цена)? и по беседке( кто, где и если можно стоимость "под ключ") :)

Посилання на коментар
Поділитися на інших сайтах

Красотень какой!!!:rolleyes:

а можно контакты по детскому комплексу (где, цена)? и по беседке( кто, где и если можно стоимость "под ключ") :)

 

контакт можно - это я! :) рисовал, проектировал, снабжал и контролировал.

далали мои строители. из специнструмента китайский фрезер и шлифмашинка.

 

Стоимость детского комплекса около 18000 грн.(курс 8,2):

уголки металические 250

дерево 3 500

труба, бордюр и кронштейны 1 000

пластиковая горка 1 250

краска 800

металл (трубы) 600

песок 1 000

работа - 10000

 

Беседка - тоже под 20000грн.:

кладка столбиков и заливка площадки - оплата труда 4 080

дерево 3 500

цемент и песок на гарцовку для укладки плитки 3 000

шифер 8 листов + 8 коньков - были остатки

кирпич для столбиков ок. 200шт. - были остатки

пропитка для дерева 970

крепёж для стропилки и пр. МШП 1 500

водочка, вагонка, джутовый канат и пр. 1 500

оплата труда 5450

 

По детской площадке пересмотрел море вариантов и производителей, но цены у них мягко говоря неадекватные. Аналог моего был бы под 40000грн с установкой.

Беседка - аналогично. Цены сами найдёте.

 

А вот мои проекты и визуализации (дом рисовал в АрКон, а тут оказалось удобнее в СкетчАпе):

1473035509_.thumb.jpg.36ea9308b37f85d4fbe69f226916d385.jpg 1058279324_2.thumb.jpg.fec3b936daea4e58e6b6085a13805a21.jpg

А тут кроме беседки ещё и раскладку тротуарной плитки сделал:

1742379871__.thumb.jpg.d53972223fd19c79987f65243eafc9d5.jpg

 

 

P/S/ И вот нашол расладку под камин для заказа мрамора:

369004143_1_.thumb.jpg.1e649edafd9a1e9f61b158cf578ad3f9.jpg

  • Лайк 3
Посилання на коментар
Поділитися на інших сайтах

Створіть акаунт або увійдіть у нього для коментування

Ви маєте бути користувачем, щоб залишити коментар

Створити акаунт

Зареєструйтеся для отримання акаунта. Це просто!

Зареєструвати акаунт

Увійти

Вже зареєстровані? Увійдіть тут.

Увійти зараз
×
×
  • Створити...